1. Reihe hochwertige Neubau-Meerblick Wohnung mit 1 SZ, Terrasse und Gemeinschaftspool (S2B)

Eckdaten

 Zimmer
 Wohnfl.
 Grundst.
Kaufpreis
 Zimmer
 Wohnfl.
Grundst.

Kaufpreis

Basisdaten

Objektnummer
Immopark ID
IP-272023
Objekt ID
214089
Adresse
Ort
21224 Slatine
zus. Info
Mischgebiet
Fakten und Zahlen
Wohnungstyp
Apart­ments
Vermarktungsart
Kauf
Nutzungsart
wohnen
Baujahr
2025
Kerndaten
Wohnfläche
108 m2
Zimmer
2.0
Schlafzimmer
1.0
Badezimmer
1.0
Bauweise / Substanz
Neubau
Objektzustand
neuwertig
Bauweise
Massivhaus
Etagenanzahl der Immobilie
3
Lage im Gebäude
links
Wohnungsnummer
S2B
Verfügbarkeit
Verfügbar ab
3. Quartal 2026

Preisdaten

Preis
Kaufpreis
608.000 €
Courtage
provisionspflichtig
Käufercourtage
3,75% vom Kaufpreis inkl. 25% MwSt.
inkl. MwSt.

Merkmale

Zimmer und Bereiche
Voll unterkellert
Anzahl (Balkone)
1.0
Schlaf­zimmer
Abstell­raum
Ausstattung und Technik
Qualität der Ausstattung
gehoben
Einbau­küche
Offene Küche
Fliesen­boden
Stein­boden
Kabel Sat TV
Rollä­den
Klima­anlage
Sanitäre Einrichtung
Dusche
Besondere Merkmale
rollstuhl­gerecht
Nutzung als Ferienimmobilie
Stellplätze
Carport
Anzahl
1.0
Kaufpreis
19.900 €
Tiefgarage

Energie

Befeuerungsart
Luft-/Wasser-Wärmepumpe

Umgebung

Es wurden keine Daten angegeben.

Objektbeschreibung

Die moderne Wohnanlage, bestehend aus zwei Häusern mit jeweils sechs exklusiven Wohneinheiten, liegt in einer traumhaften Lage direkt in der ersten Reihe zum Meer im malerischen Küstenort Slatine auf der Insel Čiovo. Die Wohnungen bestechen durch einen großzügigen Grundriss, der ein offenes und helles Wohngefühl vermittelt. Im Mittelpunkt steht der offene Wohn- und Essbereich mit einer großen, modernen Küche, die zum gemeinsamen Kochen und Genießen einlädt. Große, bodentiefe Fensterfronten lassen viel Tageslicht herein und geben den Blick auf das glitzernde Meer frei.

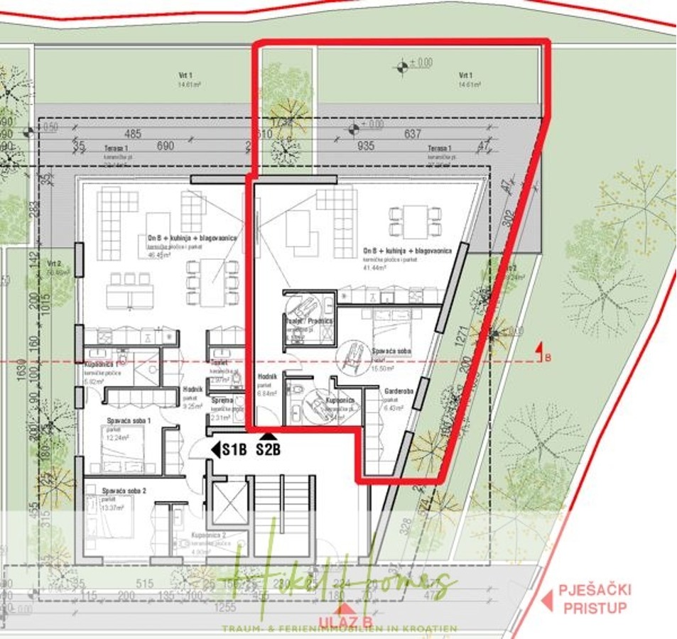
Diese Wohnung verfügt über ein komfortable und sehr geräumiges Schlafzimmer mit einem Bad-en-Suite. Sowie einen weiterem Bad für Gäste und als praktischer Hauswirtschaftsraum. Die großzügige Sonnenterrasse lädt zum Entspannen und Verweilen ein und ist der perfekte Ort, um die einzigartige dalmatinische Landschaft und das milde Klima zu genießen. Im Gegensatz zur Nachbarwohnung bietet dieses och weitere 20m² mehr Raum zum Wohnen und Leben.

Zur Ausstattung der Wohneinheiten gehören eine moderne Klimaanlage und Heiztechnik sowie SAT-TV-Anschlüsse und WLAN in allen Räumen. Die Anlage bietet zudem großzügige Gemeinschaftsflächen, die höchsten Ansprüchen gerecht werden. Ein beheizter Pool steht allen Bewohnern zur Verfügung und schafft eine Atmosphäre von Exklusivität und Wohlbefinden.

Für zusätzlichen Komfort sorgt ein Aufzug im Haus, der alle Etagen bequem zugänglich macht. Ein kleiner Abstellraum im Untergeschoss bietet weiteren Stauraum, während ein Tiefgaragenstellplatz optional gegen Aufpreis erworben werden kann.

Dieses Objekt bietet eine einzigartige Kombination aus hochwertiger Bauweise, durchdachter Ausstattung und erstklassiger Lage. Es ist ideal für Menschen, die den mediterranen Lebensstil in einer exklusiven Wohnanlage direkt am Meer genießen möchten.

Das Objekt ist auch ideal für Kapitalanleger zum Kauf mit einer kroatischen Gesellschaft, durch welche weitere steuerliche Vorteile möglich sind. Lassen Sie sich von uns beraten und entscheiden Sie sich frühzeitig für dieses attraktive Objekt, somit können sie bei der Ausstattung, Bädern und Boden- und Wandbelägen aktiv mitgestalten.

Ausstattung

AUSSTATTUNG:
- offener Wohn- und Essbereich mit großer offener Küche
- 1 Schlafzimmer
- 2 Bäder
- großzügige Grundriss
- Sonnenterrase
- große zu öffnende Fensterfronten mit bodentiefen Fenstern
- Aufzug im Haus
- kleiner Abstellraum im Untergeschoss
- 2 Tiefgaragenstellplatz
- Fußbodenheizung in den Bädern
- großzügige Gemeinschaftsflächen
- moderner Pool mit Heizung für die Hausgemeinschaft
- moderne Klimaanlage und Heizungstechnik
- SAT TV-Anschlüsse in allen Zimmern
- WIFI in allen Räumen

WEITERE OPTIONEN
- vollständige Möblierung
- Vermietungsservice
- deutschsprachige Hausverwaltung

Lage

Der malerische Küstenort Slatine liegt auf der Nordostseite der Insel Čiovo, direkt gegenüber der historischen Altstadt von Trogir, die zum UNESCO-Weltkulturerbe zählt. Slatine vereint die Ruhe eines traditionellen dalmatinischen Fischerdorfes mit der Nähe zu beliebten touristischen Attraktionen und erstklassiger Infrastruktur.

Čiovo ist über eine moderne Brücke mit Trogir verbunden, sodass Slatine sowohl vom Flughafen Split (nur ca. 15 km entfernt) als auch von der dalmatinischen Metropole Split in weniger als 30 Minuten erreichbar ist. Diese ausgezeichnete Anbindung macht Slatine zu einem beliebten Wohn- und Urlaubsort für Menschen, die Natur, Kultur und Stadtleben miteinander verbinden möchten.

Slatine besticht durch seine langen Strände mit kristallklarem Wasser, versteckte Buchten und herrliche Pinienwälder, die zu entspannten Spaziergängen einladen. Der berühmte Strand Kava, ein Naturparadies am östlichen Ende der Insel, ist ein Highlight für Badegäste und Naturliebhaber. Gleichzeitig bietet der Ort eine charmante Uferpromenade mit traditionellen Restaurants, Cafés und einem kleinen Hafen, der auch als Ausgangspunkt für Bootstouren zu den benachbarten Inseln dient.

Neben den Freizeitmöglichkeiten am Meer sind auch kulturelle und historische Sehenswürdigkeiten leicht erreichbar. Trogir und Split beeindrucken mit ihrer beeindruckenden Architektur, darunter der Diokletianpalast in Split und die Festung Kamerlengo in Trogir. Zudem bietet die Region zahlreiche Freizeitaktivitäten wie Segeln, Wandern, Radfahren und Tauchen.

Mit seiner einzigartigen Kombination aus idyllischer Lage, hervorragender Verkehrsanbindung und vielfältigen Freizeitmöglichkeiten ist Slatine ein perfekter Ort für einen Zweitwohnsitz, ein Ferienhaus oder eine Investition in Immobilien.
Lade Orte in der Umgebung

Sonstiges

WEITERE INFORMATIONEN
-----------------------------
Sie benötigen weitere Informationen dann sprechen Sie uns an: info@hikelhomes.de
Wir sprechen Deutsch, English, Français und Schwäbisch

BESICHTIGUNG
-----------------------------
Planen Sie Ihren Urlaub vor Ort und möchten das Objekt oder den Bauplatz LIVE Besichtigung? Kein Problem! sprechen Sie uns an. Wir bieten auch virtuelle Besichtigungen an. Somit bekommen Sie einen ersten Eindruck aus der ferne

MEHR SERVICE FÜR SIE
-----------------------------
- Komplette Betreuung vor Ort in deutscher Sprache
- Steuerberatung vor Ort
- Rechtsberatung vor Ort
- Bauträger vor Ort
- Handwerker Netzwerk
- Touristische Vermietung (wir kümmern uns um die komplette Vermietung)
- Hausverwaltung / Property Service
- Concierge Service vor Ort

Meerblick
Entfernung zum Meer: 0,1km

Anbieterdaten

Daniel Hikel

Ansprech­partner

Daniel Hikel

Ihre Nachricht an HIKEL HOMES - Daniel Hikel

Ihr Ansprechpartner: Daniel Hikel

Mit (*) gekennzeichnete Felder sind Pflichtangaben.