1 Zimmer Appartement im Wohnpark Engelsdorf mit Tiefgaragenstellplatz
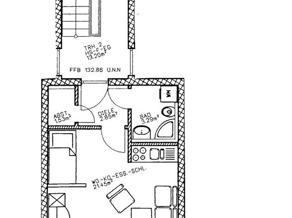
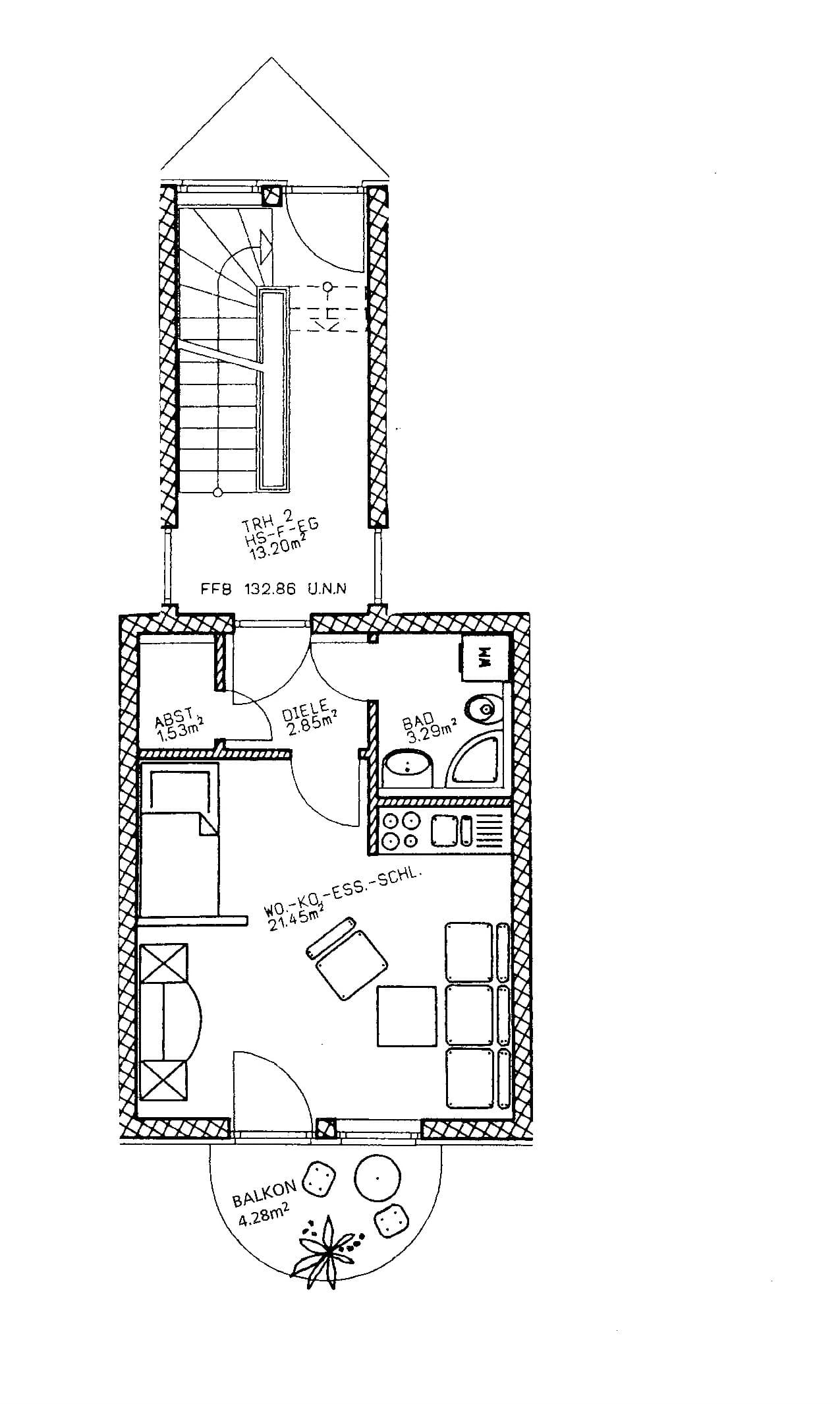
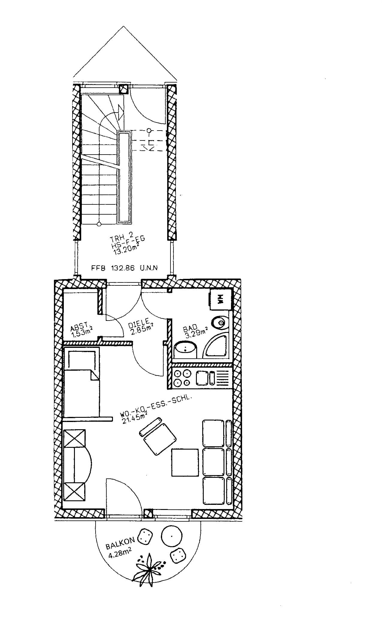
Wohnanlage in ruhiger LageWohnanlage in Engelsdorfgepflegte Treppenhäuserein Balkon zur SüdseiteGrundriss zur Wohnung WE 97Wohn und Schlafbereich mit offener Küche ( ohne EBK)Wohn-, und Schlafbereichinliegendes Bad mit Dische und WM Anschlusskleiner DielenbereichKennwert EnergieausweisGrundriss zur Wohnung WE 97Balkone zur Südseite ausgerichtet
Eckdaten
Zimmer
Wohnfl.
Grundst.
Nettokaltmiete
Zimmer
Wohnfl.
Grundst.
385.0€ Nettokaltmiete
Basisdaten
Objektnummer
Immopark ID
IP-310068
Objekt ID
WP / WE 97
Adresse
04319 Leipzig
Ort
04319 Leipzig
Fakten und Zahlen
Vermarktungsart
Miete / Pacht
Nutzungsart
wohnen
Verkaufsstatus
offen
Baujahr
1996
Kerndaten
Wohnfläche
31,26 m2
Zimmer
1.0
Badezimmer
1.0
Anzahl Stellplätze (gesamt)
1.0
Bauweise / Substanz
Objektzustand
neuwertig
Bauweise
Massivhaus
Lage im Gebäude
Etage
1
Verfügbarkeit
Verfügbar ab
01.10.2022
Preisdaten
Preis
Nebenkosten
90 €
Warmmiete
475 €
Nettokaltmiete
385 €
Mietpreis pro Quadratmeter
12,32 €
Mieten Pachten
Heizkosten enthalten
Weitere Kosten
Kaution
770 €
Merkmale
Zimmer und Bereiche
Typ
Voll unterkellert
Anzahl (Balkone)
1.0
Zimmer und Räume
Abstellraum
Ausstattung und Technik
Böden
Fliesenboden
Böden
Parkettboden
Böden
Linoleum
TV Anschluss
Kabel Sat TV
Sanitäre Einrichtung
Sanitäre Einrichtung
Dusche
Stellplätze
Anzahl Stellplätze (gesamt)
1.0
Stellplatzdetails
Tiefgarage
Anzahl
1.0
Mietpreis
45 €
Energie
Energieausweis
Typ
Verbrauchsausweis
EnEV
ab 01.05.2014 (gemäß EnEV 2014)
Energieausweis gültig bis
2018-09-24
Energieverbrauchskennwert gemessen in kWh/(m²a)
55,00
A+ABCDEFGH
Energieverbrauch für Warmwasser enthalten
Energieverbrauch für Warmwasser enthalten
Energieeffizienzklasse
B
Baujahr lt. Energieausweis
1996
Gebäudeart lt. Energieausweis
Wohngebäude
Heizung
Heizungsart
Zentralheizung
Befeuerungsart
Befeuerungsart
Gas
Umgebung
Es wurden keine Daten angegeben.
Objektbeschreibung
Die Wohnanlage wurde 1996 erbaut und liegt am Randgebiet von Leipzig. Attraktiv gestaltete Grünanlagen mit Beton und Asphaltwegen, Stellplätze mit Rasengittersteinen schmücken die Wohnanlage.
Tiefgaragenstellplätze befinden sich unter der gesamten Wohnanlage. Jede Wohnung hat einen Balkon oder eine Terrasse in verschiedenen Formen und Größen.
Oberirdische Stellplätze können von allen Mietern der Wohnanlage kostenlos genutzt werden.
Die Warmwasseraufbereitung in den Wohnungen erfolgt über Durchlauferhitzer.
Ausstattung
Individuelle Ausstattungsmerkmale:
- Tiefgaragenstellplatz 45,00 € inkl-Balkon zur Südseite mit Blick ins Grüne - EBK gegen Ablöse - Bad ohne Fenster
Kleine gemütliche 1 Raumwohnung zu vermieten, ideal auch als Zweitwohnung.
Marmorfliesen befinden sich in den sanitären Räumen und Parkettboden in den Wohnräumen. Ein Balkon ist zur Südseite ausgerichtet.
Ein kombinierter Wohn-, und Schlafbereich mit einer offenen Küche bieten ausreichend Fläche. Das inliegende Bad verfügt über eine Dusche, Waschtisch, WC, WM -Anschluss und Spiegel. Innerhalb der Wohnung befindet sich eine Abstellkammer.
Ein Tiefgaragenstellplatz gehört zur Wohnung dazu und kann nicht ausgeklammert werden, dieser ist bereits in der Kaltmiete enthalten.
.Keller, TV und Telefonanschluss, Gegensprechanlage sind selbstverständlich. .
Lage
Nur 7 km vom Leipziger Zentrum entfernt. Zum Einkaufspark und Bürocentrum Paunsdorf sind es nur wenige Schritte. Das Freizeit und Badespaße Center ist nur 900 m. entfernt Die Leipziger Messe, BMW, Mercedes, Porsche etc. kann man gut über die nicht weit entfernte Autobahnanbindung erreichen.
Straßenbahn , Bus und S Bahn sind auch nicht weit entfernt, Sie kommen bequem in die City und zum Hauptbahnhof. Ihr Auto können Sie also bequem zu Hause lassen
Lade Orte in der Umgebung
Zusätzliche Information
Widerrufsbelehrung
Widerrufsrecht
Sie haben das Recht, binnen vierzehn Tagen ohne Angabe von Gründen diesen Vertrag zu widerrufen. Die Widerrufsfrist beträgt vierzehn Tage ab dem Tag des Vertragsabschlusses.
Um Ihr Widerrufsrecht auszuüben, müssen Sie unsBaumgartl Immobilien und Hausverwaltung
Cunnersdorfer Straße 24
04318 Leipzig
Tel.: 0341 - 23 46 019
Fax: 0341 - 23 46 014
E-Mail: Baumgartl-Immobilien@t-online.de
Inhaberin: Kristina Baumgartl Rechtsform: Einzelunternehmen Gewerbeerlaubnis: Gewerbeerlaubnis gemäß § 34c GewO, erteilt von der Stadt Leipzig, Gewerbeamt Finanzamt: Leipzig I Steuer – Nr.: 232 / 204 / 02738
mittels einer eindeutigen Erklärung (z.B. ein mit der Post versandter Brief, Telefax oder E-Mail) über Ihren Entschluss, diesen Vertrag zu widerrufen, informieren. Sie können dafür das beigefügte Muster-Widerrufsformular verwenden, das jedoch nicht vorgeschrieben ist.
Zur Wahrung der Widerrufsfrist reicht es aus, dass Sie die Mitteilung über die Ausübung des Widerrufsrechts vor Ablauf der Widerrufsfrist absenden.
Folgen des Widerrufs
Wenn Sie diesen Vertrag widerrufen, haben wir Ihnen alle Zahlungen, die wir von Ihnen erhalten haben, einschließlich der Lieferkosten (mit Ausnahme der zusätzlichen Kosten, die sich daraus ergeben, dass Sie eine andere Art der Lieferung als die von uns angebotene, günstigste Standardlieferung gewählt haben), unverzüglich und spätestens binnen vierzehn Tagen ab dem Tag zurückzuzahlen, an dem die Mitteilung über Ihren Widerruf dieses Vertrags bei uns eingegangen ist. Für diese Rückzahlung verwenden wir dasselbe Zahlungsmittel, das Sie bei der ursprünglichen Transaktion eingesetzt haben, es sei denn, mit Ihnen wurde ausdrücklich etwas anderes vereinbart; in keinem Fall werden Ihnen wegen dieser Rückzahlung Entgelte berechnet.
Haben Sie verlangt, dass die Dienstleistung während der Widerrufsfrist beginnen soll, so haben Sie uns einen angemessenen Betrag zu zahlen, der dem Anteil der bis zu dem Zeitpunkt, zu dem Sie uns von der Ausübung des Widerrufsrechts hinsichtlich dieses Vertrags unterrichten, bereits erbrachten Dienstleistungen im Vergleich zum Gesamtumfang der im Vertrag vorgesehenen Dienstleistungen entspricht.
Muster-Widerrufsformular(Wenn Sie den Vertrag widerrufen wollen, dann füllen Sie bitte dieses Formular aus und senden Sie es zurück.)
- An: Baumgartl Immobilien, Breite Straße 8, 04317 Leipzig, Tel.: 0341 - 23 46 019, Fax: 0341 - 23 46 014, E-Mail: baumgartl-immobilien@t-online.de, Inhaberin: Kristina Baumgartl Rechtsform: Einzelunternehmen Gewerbeerlaubnis: Gewerbeerlaubnis gemäß § 34c GewO, erteilt von der Stadt Leipzig, Gewerbeamt Finanzamt: Leipzig I Steuer – Nr.: 232 / 204 / 02738
- Hiermit widerrufe(n) ich/wir (*) den von mir/uns (*) abgeschlossenen Vertrag über den Kauf der folgenden Waren (*)/ die Erbringung der folgenden Dienstleistung (*)
- Bestellt am (*)/erhalten am (*)
- Name des/der Verbraucher(s)
- Anschrift des/der Verbraucher(s)
- Unterschrift des/der Verbraucher(s) (nur bei Mitteilung auf Papier)
- Datum
_______________
(*) Unzutreffendes streichen.
Sonstiges
Besichtigungen können nach Absprache vorgenommen werden. Diese Wohnung steht d e m n ä c h s t zur Verfügung.
Die Singleküche ist gegen eine Gebühr von 150,00 € vom Vormieter zu übernehmen