2. Obergeschoss plus 80 m² Dachterrasse mit Blick aufs Meer

Eckdaten

 Zimmer
 Wohnfl.
 Grundst.
Kaufpreis
 Zimmer
 Wohnfl.
Grundst.

Kaufpreis

Basisdaten

Objektnummer
Immopark ID
IP-312506
Objekt ID
9630
Adresse
Ort
Vodice
Fakten und Zahlen
Wohnungstyp
Pent­house
Vermarktungsart
Kauf
Nutzungsart
wohnen
Verkaufsstatus
offen
Baujahr
2026
Kerndaten
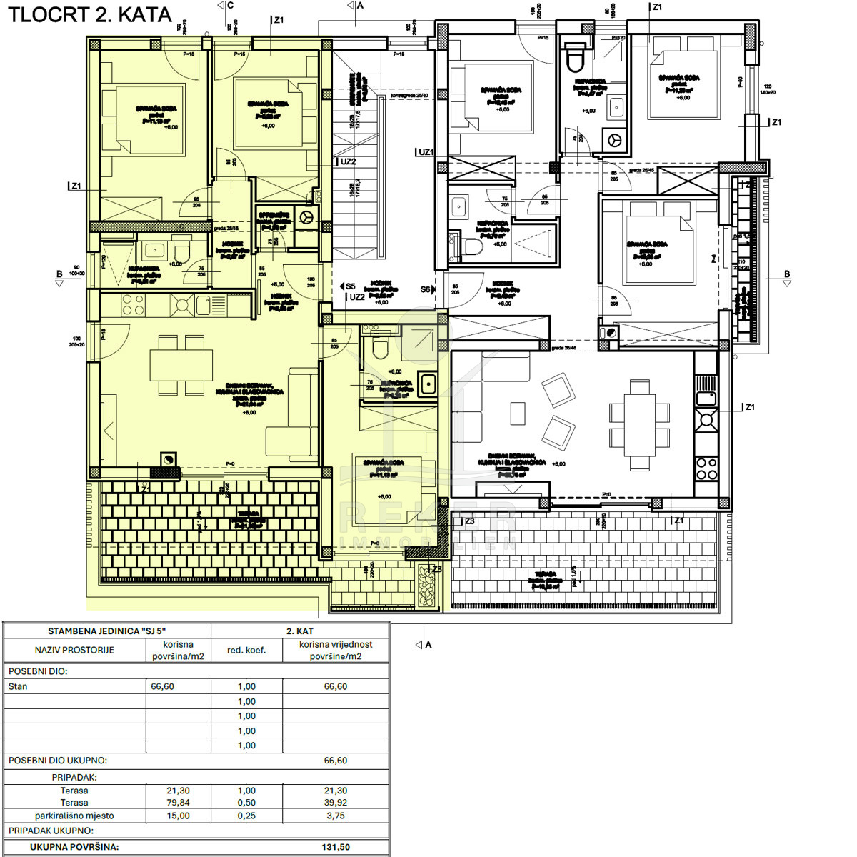
Wohnfläche
167,74 m2
Zimmer
4.0
Schlafzimmer
3.0
Badezimmer
2.0
Anzahl Stellplätze (gesamt)
1.0
Bauweise / Substanz
Objektzustand
Erstbezug
Etagenanzahl der Immobilie
1
Lage im Gebäude
Etage
2

Preisdaten

Preis
Kaufpreis
460.000 €
Courtage
Käufercourtage
3,75 % inkl. MwSt. in Kroatien

Merkmale

Zimmer und Bereiche
Ausrichtung
Südwest
Schlaf­zimmer
Ausstattung und Technik
Klima­anlage
Stellplätze
Anzahl Stellplätze (gesamt)
1.0
Freiplatz
Anzahl
1.0
Ausblick
Meer

Energie

Energieausweis
Gebäudeart lt. Energieausweis
Wohngebäude
Heizung
Fußboden­heizung

Umgebung

Es wurden keine Daten angegeben.

Objektbeschreibung

Im 2. Obergeschoss wohnen, darüber Ihre private Dachfläche. Fast 80 m² für Lounge, Sonnenbereich oder Outdoor-Küche. Drei Schlafzimmer bieten Platz für Familie oder Gäste. Moderne Technik, Klimaanlage in allen Zimmern und Fußbodenheizung in den Bädern sorgen für Komfort.

Ausstattung

https://www.reker-immobilien.de/kroatien/penthouse-vodice-erstbezug-parkplatz_9630?utm_source=ausstattung&utm_medium=txt&utm_campaign=9630
~

Lage

Vodice gehört zu den gefragten Küstenorten Kroatiens. Genau hier entsteht dieses Neubauprojekt mit angenehmer Distanz zum Meer. Rund 550 m trennen Sie vom bekannten Strand Vodice. Das Stadtzentrum erreichen Sie nach etwa 1 km. Sie leben nah am Stadtleben und genießen zugleich eine ruhige Umgebung. Eine Kombination, die sowohl für den Urlaub als auch für längere Aufenthalte überzeugt.

Das Gebäude umfasst acht Wohnungen auf drei Etagen: Erdgeschoss, 1. Obergeschoss und 2. Obergeschoss. Überschaubar und angenehm privat. Eine Dachterrasse erweitert das Haus um zusätzlichen Freiraum. Beim Bau setzt der Entwickler auf hochwertige Materialien und eine solide Ausstattung. Die Fertigstellung ist für 2026 vorgesehen. Jede Wohnung verfügt über einen Stellplatz direkt vor dem Haus. Bei Bedarf sichern Sie sich einen weiteren Stellplatz.
Lade Orte in der Umgebung

Anbieterdaten

Ansprech­partner

Ihre Nachricht an Reker Immobilien

Ihr Ansprechpartner: admin@reker-immobilien.de

Mit (*) gekennzeichnete Felder sind Pflichtangaben.