Heute schon an später denken

Eckdaten

 Zimmer
 Wohnfl.
 Grundst.
Kaufpreis
 Zimmer
 Wohnfl.
Grundst.

Kaufpreis

Basisdaten

Objektnummer
Immopark ID
IP-271613
Objekt ID
FALC-AL-42217
Adresse
Ort
53773 Hennef
Fakten und Zahlen
Wohnungstyp
Erd­geschoss
Vermarktungsart
Kauf
Nutzungsart
wohnen
Baujahr
1962
Kerndaten
Wohnfläche
108 m2
Zimmer
3.0
Schlafzimmer
2.0
Badezimmer
1.0
Gesamtfläche
108 m2
Anzahl Stellplätze (gesamt)
1.0
Bauweise / Substanz
Objektzustand
vollsaniert
Letzte Renovierung
2009

Preisdaten

Preis
Kaufpreis
359.000 €
Courtage
provisionspflichtig
Käufercourtage
3,57 % inkl. gesetzl. MwSt.

Merkmale

Zimmer und Bereiche
Voll unterkellert
Schlaf­zimmer
Abstell­raum
Ausstattung und Technik
Qualität der Ausstattung
gehoben
Sanitäre Einrichtung
Fenster
Dusche
Wanne
Gäste WC
Besondere Merkmale
barriere­frei
Stellplätze
Anzahl Stellplätze (gesamt)
1.0
Freiplatz
Anzahl
1.0
Kaufpreis
60 €
Ausblick
Ferne

Energie

Energieausweis
Typ
Bedarfs­ausweis
EnEV
ab 01.05.2014 (gemäß EnEV 2014)
Energieausweis gültig bis
27.03.2024
Endenergiebedarf gemessen in kWh/(m²a)
98

A+ABCDEFGH

Energieeffizienz­klasse
C
Ausstelldatum
27.03.2014
Gebäudeart lt. Energieausweis
Wohngebäude
Heizung
Fußboden­heizung
Befeuerungsart
Pellets

Umgebung

Es wurden keine Daten angegeben.

Objektbeschreibung

Aus Rücksicht gegenüber der Mieter sind die Bilder digital möbliert.

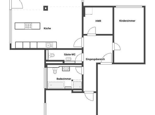
In ruhiger und grüner Wohnlage von Hennef befindet sich diese moderne Erdgeschosswohnung, die im Jahr 2009 komplett saniert wurde. Sie erreichen die Wohnung barrierefrei und leben auf einer Ebene. So eignet sich die Wohnung auch optimal fürs Alter. Die Wohnung verfügt über drei Zimmer, davon zwei Schlafzimmer, und bietet mit einer Wohnfläche von 108 m² ausreichend Platz für Singles, Paare oder kleine Familien.

Das Highlight der Wohnung ist die riesige Fensterfront im Wohnzimmer, die viel Tageslicht in den Raum lässt und einen schönen Weitblick ins Grüne und auf den Michelsberg von Siegburg bietet. Die offene Küche lädt zum gemeinsamen Kochen und Essen ein. Das Badezimmer verfügt über eine Badewanne, eine Dusche und ein großes Fenster, das für eine angenehme Belüftung sorgt.

Zur Wohnung gehört ein Außenstellplatz sowie ein Keller und ein Hauswirtschaftsraum in der Wohnung. Die Ausstattung ist gehoben und die Fußbodenheizung sorgt für eine angenehme Wärme im Winter. Die Wohnung wird derzeit vermietet und eignet sich daher auch ideal als Kapitalanlage. Die aktuelle Miete beläuft sich auf 996,- kalt inkl. Stellplatz. Der Erbbauzins beläuft sich auf ca. 105,-/Monat.

Das Gäste-WC bietet zusätzlichen Komfort und die Holzpelletsheizung sorgt für eine umweltfreundliche und kostengünstige Beheizung der Wohnung. Der Energieverbrauchsausweis weist einen Endenergieverbrauch von 78 kWh/(m²*a) aus und die Energieeffizienzklasse ist mit C angegeben.

Eine absolut einzigartige Wohnung in bester Lage, grün und doch zentral.

Ausstattung

Die angebotene Immobilie wurde im Ursprungsbaujahr 1962 errichtet und im Jahr 2009 umfassend saniert, wodurch sie den modernen Wohnansprüchen voll und ganz gerecht wird. Eine Fußbodenheizung, die sich über separate Regler individuell einstellen lässt, sorgt in allen Räumen für wohlige Wärme. Das Herzstück der Heizungsanlage bildet eine umweltfreundliche Holz-Pelletheizung, die ebenfalls im Jahr 2009 installiert wurde und effiziente Wärmeversorgung gewährleistet.

Das Badezimmer ist stilvoll gestaltet und verfügt über eine Badewanne, eine Dusche, ein Hänge-WC sowie einen praktischen Handtuchheizungshalter. Die Wände sind hier bis zur halben Höhe gefliest, was dem Raum eine moderne und zugleich pflegeleichte Optik verleiht. Auch das Gäste-WC ist halbhoch gefliest und fügt sich harmonisch in das Gesamtbild des Hauses ein.

Der Wohnbereich ist mit hochwertigem Holzparkettboden ausgestattet (aktuell vom Mieter mit Laminat überdeckt), der nicht nur optisch ansprechend ist, sondern auch eine pflegeleichte und robuste Bodenlösung darstellt. Zu der Immobilie gehört zudem ein Außenstellplatz, der bequemes Parken direkt vor dem Haus ermöglicht. Ein Hauswirtschaftsraum bietet zusätzlichen Stauraum und erleichtert die Organisation des Haushalts. Für weiteren Platz sorgt ein Kellerraum, der vielseitig genutzt werden kann.

Die Bilder sind auf Wunsch und Schutz der Privatsphäre des Mieters digital bearbeitet, die Räume, Ausstattungen, Schnitte und Aussichten sind aber Original. Weitergehende Informationen zu der Istsituation, die im Übrigen einen wirklich gut gepflegten Eindruck macht, erhalten Sie im persönlichen Gespräch mit uns.

Lage

Diese attraktive Wohnimmobilie befindet sich in einer bevorzugten Lage, die nicht nur durch ihre naturnahe Umgebung, sondern auch durch die exzellente Anbindung an wesentliche Einrichtungen überzeugt. Die Nähe zu grundlegenden Versorgungsmöglichkeiten und Bildungseinrichtungen macht diese Adresse besonders interessant für Familien und anspruchsvolle Immobilieninteressenten.

Die Vielfalt und Nähe an Spielplätzen wie dem Spielplatz Geistinger Park in nur 152 Metern Entfernung bieten ideale Voraussetzungen für Familien mit Kindern, die naturnahe Erholungsmöglichkeiten schätzen. Für eine ausgezeichnete schulische Bildung sorgen nahegelegene Bildungseinrichtungen, darunter der LANO-Standort Hennef, der lediglich 206 Meter entfernt ist. Diese kurzen Distanzen gewährleisten, dass Schulwege sicher und bequem zu Fuß zurückgelegt werden können.

Die Anbindung an den öffentlichen Nahverkehr ist hervorragend, mit Bushaltestellen wie Lorenzhöhe, Waldfrieden und Helenenstift alle in einem Radius von rund 600 Metern. Dies ermöglicht eine flexible und unkomplizierte Mobilität, die sowohl für Pendler als auch für Freizeitaktivitäten von großem Vorteil ist. Zudem ist die Nähe zur Autobahn und die gute Erreichbarkeit des nächstgelegenen internationalen Flughafens ein weiteres Merkmal, das diese Lage für Vielreisende und Berufspendler äußerst attraktiv macht.

Gepflegte Grünflächen und eine hohe Flächenbedeckung, die zur Erhöhung der Gesundheitsqualität beitragen, laden zur Entspannung und zu vielfältigen sportlichen Aktivitäten ein. Dies wird unterstrichen durch ein starkes Angebot an sportlichen Aktivitäten, das in dieser Region besonders hervorsticht.

Insgesamt zeichnet sich diese Lage durch eine ausgewogene Mischung aus urbanem Komfort und naturnaher Lebensqualität aus, was sie zu einer perfekten Wahl für alle macht, die hohen Wert auf eine ebenso praktische wie ansprechende Wohnumgebung legen.
Lade Orte in der Umgebung

Sonstiges

Sofern Sie auf eine ruhige und gleichzeitig zentrale Lage, eine beeindruckende Aufteilung und ein sehr gepflegtes Umfeld Wert legen, ist diese Immobilie das ideale Angebot für Sie.

Wir bieten nicht nur eine kostenlose Hotline, sondern auch einen Service am Wochenende. Bei Interesse geben Sie bitte immer Ihre vollständigen Kontaktdaten an.

Die Objektbeschreibung beruht größtenteils auf den Angaben des Eigentümers. Für die Richtigkeit oder Vollständigkeit übernehmen wir keine Gewähr. Lassen Sie sich von uns gern auch in Sicherheitstechniken beraten, wir führen sehr interessante Alarmanlagen in unserem Angebot.

Sie wollen Ihre Immobilie ebenfalls professionell vermarkten, rufen Sie uns an, wir stehen Ihnen von Mo. bis So. von 6.00 - 22.00 h persönlich zur Seite, über 150.000 aktive Interessenten warten bereits auf Sie.

Anbieterdaten

Andreas Laarmann

Ansprech­partner

Andreas Laarmann

Ihre Nachricht an FALC Immobilien Hennef (Sieg) (Andreas Laarmann)

Ihr Ansprechpartner: Andreas Laarmann

Mit (*) gekennzeichnete Felder sind Pflichtangaben.