Objektbeschreibung
Kerpen-City! Luxus-Penthouse mit 3 Zimmern und 2 Dachterrassen! (MB 4861)
Modernes Wohnen in zentraler Lage - stilvoll, effizient und barrierefrei!
In bester Lage von Kerpen-City präsentiert sich dieses luxuriöse Maisonette-Penthouse als 3-Zimmer Eigentumswohnung mit 2 Dachterrassen, barrierefreiem Zugang, durchdachtem Grundriss und Stellplatz (+8.500 EUR) - eingebettet in ein exklusives Neubauprojekt mit nur 8 Parteien in energieeffizienter KfW 55-Bauweise.
IMMOBILIE IM ÜBERBLICK
Baujahr: 2023
Etage: Dachgeschoss
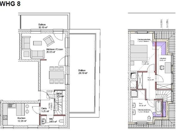
Wohnfläche: ca. 127,17 m²
Zimmer: 3
Raumaufteilung:
Wohn-/Esszimmer, Küche, Duschbad, Abstellbereich, Diele und 2 Terrassen in der unteren Ebene. Schlafzimmer, elegantes Vollbad und Büro/Kinderzimmer in der oberen Ebene.
AUSSTATTUNGSHIGHLIGHTS
KfW 55 Effizienzhaus - niedriger Energieverbrauch, Energieeffizienzklasse A+
Holzfarbener Vinyl-Designboden mit unterlegter Fußbodenheizung in allen Räumen
Dreifachverglaste Kunststofffenster mit elektrischen Rollläden
Weiße Sicherheits-Wohnungstür und elegante weiße Innentüren
Anthrazitfarbene großformatige Fliesen in beiden Bädern
Hocheffiziente Luftwärmepumpe + dezentrale Warmwasseraufbereitung
Personenaufzug
Eigener Kellerraum + Fahrradraum + gemeinschaftliche Waschküche
Optionaler Stellplatz
BESONDERER KOMFORT - Ein Wohnkonzept mit Stil und Funktion:
Die helle 3-Zimmer Maisonette-Wohnung befindet sich im Ober- und Dachgeschoss und erstreckt sich mit ihrer gelungenen Raumaufteilung auf ca. 127 m². Mit exklusivem Fernblick und 2 großen Balkonen/Dachterrassen ist sie zurecht ein ganz besonderes Sahnestück.
Schon beim Betreten durch die weiße Sicherheits-Wohnungstür fällt die hell-freundliche Atmosphäre auf. Durchgängig hochwertige Ausstattungsmerkmale werden beschrieben durch einen Mix aus verlegtem, holzfarbenen Vinyl-Designboden und großformatigen, anthrazitfarben Fliesen in den Bädern sowie eleganten, weißen Innentüren. Alle Innenwände sind mit weißem Malervlies versehen und die Zimmerdecken weiß verputzt.
Die in der ganzen Wohnung unterlegte Fußbodenheizung spendet angenehme Wärme. Große Fensterflächen (teils bodentief) fluten die Wohnung mit viel Sonnenlicht, wodurch ein ansprechendes Wohnambiente entsteht. Das Wohn-/ Esszimmer überzeugt durch einen gelungenen, L-förmigen Zuschnitt mit individuellen Möblierungsmöglichkeiten.
Breite, bodentiefe Fensterfronten bieten Zugang auf die schönen großen Balkone/Dachterrassen. Die separate Küche bietet reichlich Raum für die Gestaltung Ihrer eigenen Einbauküche. Vervollständigt wird diese Ebene durch das moderne Duschbad rechterhand des Eingangs.
Das große, ebenmäßig geschnittene (Eltern)Schlafzimmer im Dachgeschoss zeigt sich mit großen Fenstern zur guten Belichtung und Belüftung und Platz für Bett und Kleiderschrank! Genießen Sie außerdem den herrlichen Weitblick über unsere schöne Kolpingstadt. Das 2. Zimmer präsentiert sich ideal als Büro/Arbeitszimmer oder als alternatives Kinderzimmer mit großformatigen Fenstern.
Durch seine ebenfalls üppige Größe überzeugt das gegenüberliegende Vollbad mit großem Fenster. Dank anthrazitfarbenen Wand- und Bodenfliesen und weißen Wandaussparungen liegt es ganz im Trend der Zeit. Eine ebenerdige Walk-In-Dusche mit Regenwaldduschkopf, Badewanne, Waschtisch und Hänge-WC beschreiben die elegante und moderne Ausstattung.
Zusätzlich gibt es auch im Untergeschoss des Hauses noch einen eigenen, großen Abstellraum, welcher der Wohnung zugeordnet ist.
Ergänzt wird das Wohnungsangebot durch einen optional zu erwerbenen Stellplatz direkt hinter dem Haus.
GEBÄUDE-HIGHLIGHT: KfW 55 BAUWEISE
Ein Standard für zukunftssicheres, nachhaltiges Wohnen:
Ein KfW-Effizienzhaus 55 benötigt nur 55 % der Primärenergie eines vergleichbaren Neubaus. Das bedeutet: extrem niedrige Heizkosten und hohe Umweltfreundlichkeit.
ENERGIEWERTE
Energieausweis: Bedarfsausweis
Endenergiebedarf: nur 15,7 kWh/(m²*a)
Energieeffizienzklasse: A+
Heizung: Luftwärmepumpe mit Fußbodenheizung
Warmwasser: dezentral
EIGENNUTZ ODER INVESTMENT MIT PERSPEKTIVE
Die Wohnung ist frei und ab sofort verfügbar.
Ideal für Eigennutzer aber auch für Kapitalanleger, die langfristig sorgenfrei in ein neues Gebäude investieren möchten.
HAUSGELD & NEBENKOSTEN
Das monatliche Hausgeld steht noch nicht endgültig fest.
Orientierungswert: ca. 2,90 EUR/m² inkl. Heizkosten
LAGE - MITTEN IN KERPEN
Zentral und lebendig: Kerpen-City vereint städtischen Komfort mit hoher Lebensqualität:
Vielfältige Einkaufsmöglichkeiten, Gastronomie und medizinische Versorgung
Schulen, Kitas und Freizeitangebote (Sport, Schwimmbäder, Kultur)
Sehr gute Verkehrsanbindung:
A1/A61 in wenigen Minuten erreichbar
Ca. 25 Min. Fahrzeit nach Köln mit dem Auto
VIRTUELLER 360°-RUNDGANG
Erleben Sie die Wohnung jetzt online!
Schalten Sie den virtuellen Rundgang frei unter: www.zeitundwert.de
FAZIT
Ob als sorgloses Investment oder zukünftiges Zuhause in Bestlage - diese junge, exzellent ausgestattete 3-Zimmer-Wohnung bietet Ihnen beides: hohen Wohnkomfort und langfristige Wertstabilität mitten im Herzen von Kerpen.
Zögern Sie nicht - jetzt Exposé anfordern oder Besichtigungstermin vereinbaren!
IHR ANSPRECHPARTNER
Herr Michael Bodelier steht Ihnen gerne unter Tel: 0 22 35 - 92 92 620 für weitere Informationen oder einen Besichtigungstermin zur Verfügung. Rufen Sie an!