Grundstück mit Baugenehmigung in Speyer

Eckdaten

 Zimmer
 Wohnfl.
 Grundst.
Kaufpreis
Zimmer
Wohnfl.
 Grundst.

Kaufpreis

Basisdaten

Objektnummer
Immopark ID
IP-287661
Objekt ID
FALC-DH-71158
Adresse
Ort
67346 Speyer
Fakten und Zahlen
Grundstückstyp
Wohnen
Vermarktungsart
Kauf
Nutzungsart
wohnen
Kerndaten
Grundstücksfläche
278 m2
Bebaubar nach
Nachbarschaft ­(§34 BauGB)
Stand der Erschließung
teilerschlossen
Verfügbarkeit
Verfügbar ab
sofort

Preisdaten

Preis
Kaufpreis
200.000 €
Courtage
provisionspflichtig
Käufercourtage
3,57 % inkl. MwSt. durch Abwälzung, siehe sonstige Angaben

Merkmale

Es wurden keine Daten angegeben.

Umgebung

Es wurden keine Daten angegeben.

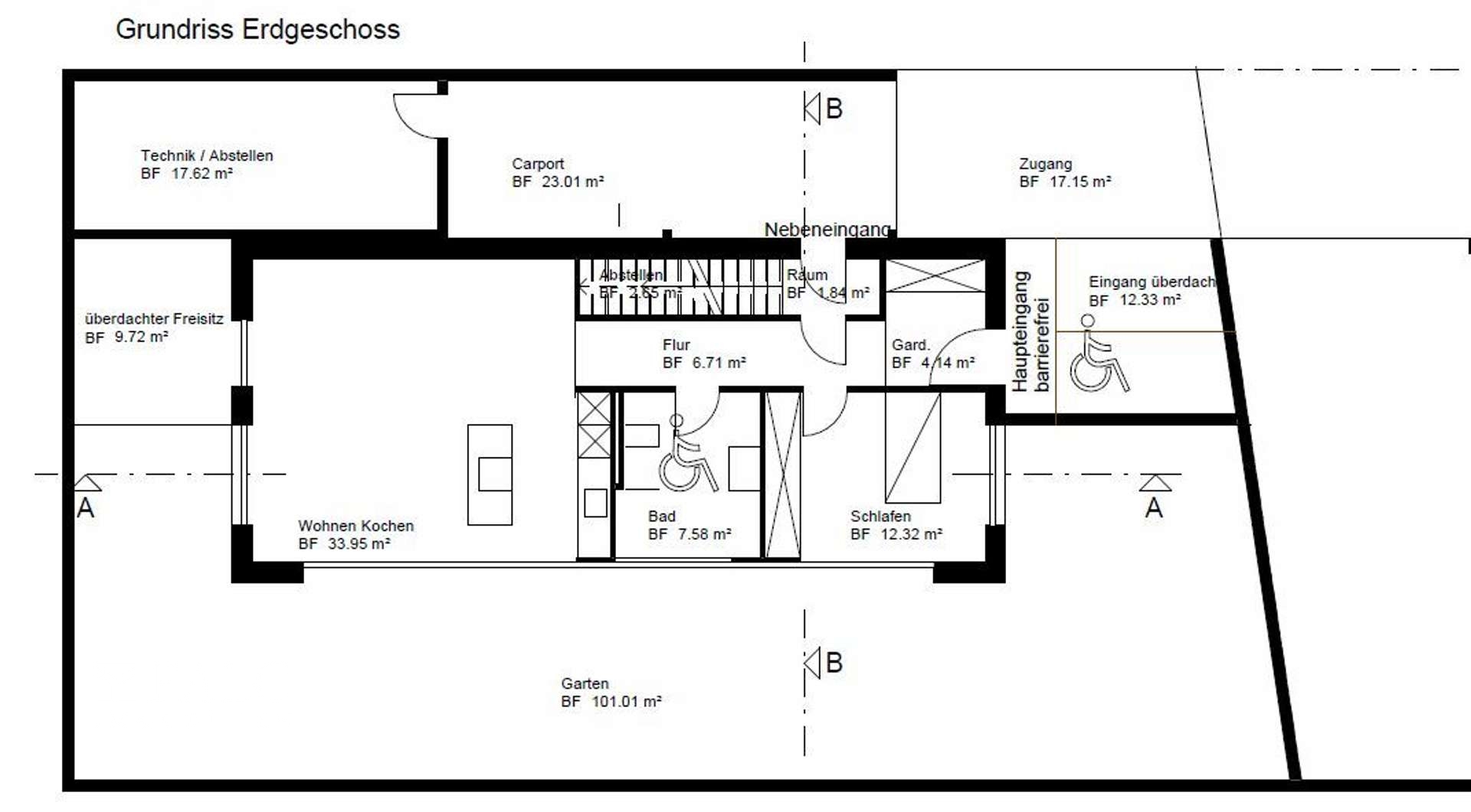
Objektbeschreibung

Das Grundstück in Speyer-Nord bietet eine großzügige Fläche von 278m² und liegt in einer ruhigen Wohngegend in zweiter Reihe. Die Umgebung ist eine Wohlfühloase, geprägt von gepflegten Gärten und bestehenden Wohnhäusern, was das Potenzial des Grundstücks unterstreicht.

Für das Grundstück besteht eine Genehmigungsplanung mit Baugenehmigung. Mit dem Bau wurde bereits begonnen (Abriss einer Garage, Zufahrt, Abgrenzung zum vorderen Grundstück usw.).

Die Innenaufteilung des genehmigten Hauses, sowie die Bauausführung können noch entsprechend den Vorstellungen des Käufers angepasst werden.

Die Grundrissgestaltung des 2-geschossigen Gebäudes (Zugangsmöglichkeit zum OG zusätzlich über einen separaten Nebeneingang) erlaubt vielfältige Nutzungsmöglichkeiten z.B. als Familienwohnung mit 2 Kinderzimmern, für Paare mit großzügigem Schlafzimmer und Arbeitszimmer, als altengerechte Wohnung mit zweiter Wohnung für eine Pflegeperson.

Die Gebäudeplanung ist auf dem aktuellen Stand der Technik, die nach Süden gerichtete Dachfläche ist unbeschattet und für eine PV-Anlage (ca. 5 - 7 kWp) konzipiert.

Die Lage ist optimal für Familien, die eine ruhige, aber dennoch gut angebundene Wohngegend suchen. In unmittelbarer Nähe befinden sich Schulen, Kindergärten und Einkaufsmöglichkeiten, die den Alltag erleichtern. Die gute Anbindung an den öffentlichen Nahverkehr und die Nähe zu wichtigen Verkehrswegen machen das Grundstück besonders attraktiv. Es ist der ideale Ort, um ein Zuhause zu schaffen, das den Bedürfnissen einer modernen, jungen Familie gerecht wird.

Mit einem Kaufpreis von 200.000,- € für das Grundstück bietet es eine hervorragende Investitionsmöglichkeit in einer begehrten Lage. Die bereits entstandenen Baukosten für die Umsetzung werden wir Ihnen im persönlichen Gespräch beim Besichtigungstermin mitteilen.

Nutzen Sie die Chance, dieses attraktive Grundstück zu besichtigen und lassen Sie sich von den Möglichkeiten inspirieren, die es bietet. Ein Ort, an dem Sie Ihre Wohnträume verwirklichen können.

Ausstattung

- Grundstücksfläche 278 m²

- genehmigter Bauantrag liegt vor, Bauvorhaben bereits begonnen

- sofort verfügbar

- Grundstück gerodet

- bebaubar siehe Pläne

Lage

Speyer ist ein begehrtes Mittelzentrum, in dem sämtliche Schulformen, eine vielfältige Gastronomie und zwei Krankenhäuser angesiedelt sind. Die Freizeitmöglichkeiten in der Stadt und im näheren Umfeld sind sehr gut. Ebenso die Verkehrsanbindung an den Pfälzer Wald und die auch mit ÖPNV erreichbaren größeren Zentren wie Ludwigshafen, Mannheim, Neustadt, Landau oder Karlsruhe, sowie an das nahe Elsass.

Das Grundstück befindet sich in zweiter Reihe mit Wege- und Leitungsrecht zu einer Stichstraße. Die ruhige Einbettung zwischen angrenzender Bebauung und Gärten macht es zu einem interessanten Objekt für Familien die im Grünen leben möchten.

Die fußläufige Erreichbarkeit von Supermärkten, Ärzten und Apotheken, Kindergarten und Grundschule, sowie mehrere direkte Busverbindungen zu einer Vielzahl von weiteren Einkaufsmärkten, zum Bahnhof und zum Zentrum der Stadt, machen das Grundstück zu einem attraktiven Standort.

Für Autofahrer ist die nächste Autobahnauffahrt und Bundesstraße ebenfalls schnell erreichbar, was die Flexibilität im Alltag erhöht.
Lade Orte in der Umgebung

Sonstiges

Eine Besichtigung lohnt sich auf jeden Fall und ist nach persönlicher Absprache möglich.

Die Objektbeschreibung beruht ganz oder zum Teil auf Angaben des Eigentümers und eigenen Erhebungen. Für die Richtigkeit oder Vollständigkeit übernehmen wir keine Gewähr.

Ich freue mich über Ihre Kontaktaufnahme.
Mobil: 0179 - 68 12 144
Tel.: 07251 - 44 13 404
E-mail: dieter.haselmayer@falcimmo.de

FALC Immobilien
Dieter Haselmayer
Prof.-A.-Riffel-Str. 9
76689 Karlsdorf-Neuthard

Sie denken selbst über die Veräußerung Ihrer Immobilie nach oder möchten einfach nur wissen, was diese wert ist? Bei uns erhalten Sie kostenlos eine professionelle Wertermittlung ! Rufen Sie uns einfach an oder kontaktieren uns per E-mail !

Anbieterdaten

Dieter Haselmayer

Ansprech­partner

Dieter Haselmayer

Ihre Nachricht an FALC Immobilien Karlsdorf-Neuthard (Dieter Haselmayer)

Ihr Ansprechpartner: Dieter Haselmayer

Mit (*) gekennzeichnete Felder sind Pflichtangaben.