Freistehendes Haus in Meinerzhagen - Stadtnah und doch im Grünen

Eckdaten

 Zimmer
 Wohnfl.
 Grundst.
Kaufpreis
 Zimmer
 Wohnfl.
 Grundst.

Kaufpreis

Basisdaten

Objektnummer
Immopark ID
IP-289831
Objekt ID
FALC-GEB-70188
Adresse
Ort
58540 Meinerzhagen
Fakten und Zahlen
Haustyp
Zwei­familien­haus
Vermarktungsart
Kauf
Nutzungsart
wohnen
Baujahr
1908
Kerndaten
Wohnfläche
157 m2
Zimmer
6.0
Schlafzimmer
4.0
Badezimmer
3.0
Grundstücksfläche
829 m2
Anzahl Stellplätze (gesamt)
5.0
Bauweise / Substanz
Objektzustand
teil- vollrenoviert
Etagenanzahl der Immobilie
3
Verfügbarkeit
Verfügbar ab
nach Absprache

Preisdaten

Preis
Kaufpreis
287.500 €

Merkmale

Zimmer und Bereiche
Voll unterkellert
Gesamtfläche
15 m2
Anzahl (Balkone)
1.0
Anzahl (Terrassen)
1.0
Schlaf­zimmer
Abstell­raum
Ausstattung und Technik
Einbau­küche
Teppich­boden
Fliesen­boden
Lami­nat
Kamin
Sanitäre Einrichtung
Fenster
Wanne
Gäste WC
Stellplätze
Anzahl Stellplätze (gesamt)
5.0
Freiplatz
Garage
Anzahl
5.0

Energie

Energieausweis
Typ
Bedarfs­ausweis
EnEV
ab 01.05.2014 (gemäß EnEV 2014)
Energieausweis gültig bis
01.05.2032
Endenergiebedarf gemessen in kWh/(m²a)
313.0

A+ABCDEFGH

wesentlicher Energieträger
Elektro
Energieeffizienz­klasse
H
Ausstelldatum
02.05.2022
Gebäudeart lt. Energieausweis
Wohngebäude

Umgebung

Es wurden keine Daten angegeben.

Objektbeschreibung

Altbau mit viel Charakter und Geschichte von 1908: Ideal geeignet für eine große Familie, als Mehrgenerationen-Haus oder zum „Wohnen und Arbeiten unter einem Dach“. Auch als Invest mit guten Mieteinnahmen interessant!
Die freistehende Immobilie wurde regelmäßig gewartet und gepflegt. Eigene Ideen und Modernisierungen lassen sich mit wenig Aufwand umsetzen.

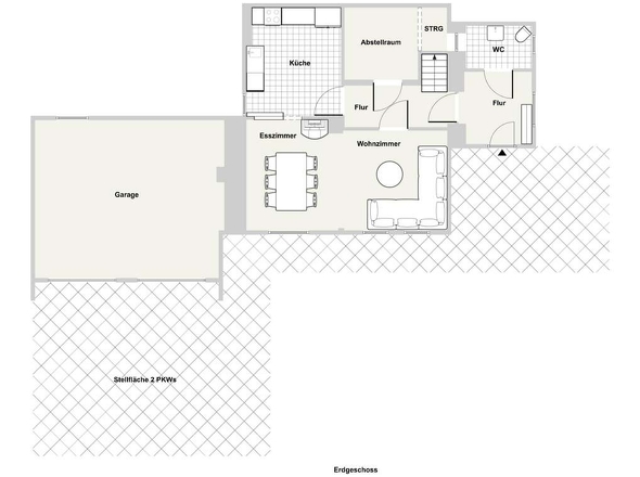
Über 3 Ebenen verteilen sich 5 Zimmer, 2 Wohnküchen, 3 Bäder, 1 Gäste-WC. Es gibt genügend Abstellmöglichkeiten - vom Kellerraum bis hinauf zum Spitzboden. Eine windgeschützte Terrasse - Sonne von morgens bis abends - kann vielseitig genutzt
werden. Im Garten stehen Apfelbäume, es gibt eine Wiese und Gemüse-Beete. Zusammen mit dem großen Vorgarten und den Stellplätzen misst das Grundstück 829 m². Es ist komplett umzäunt und mit Toren eingefasst, ideal für Kinder und Hunde. Gartengeräte und Kaminholz finden Platz in einem festen Anbau. Außerdem gibt es eine Doppelgarage und 3 Stellplätze. Heizung und Warmwasser laufen zur Zeit über Strom (Nachtspeicherheizungen/ Durchlauferhitzer). Kaminöfen auf 2 Etagen machen das Leben im Winter extra gemütlich.

Das Haus hat einen isolierenden Anstrich, alle Fenster mit Doppelverglasung und Vollholzrahmen, Dachdämmung und nachhaltige Dachpfannen. Ein Konzept für eine neue Pellett-Heizung liegt bereits vor. Wirtschaftlich und zukunftssicher wäre auch eine Umrüstung der vorhandenen Stromspeicher-Heizungen mit Elektroheizung der neuesten Generation. Ein Internet-Glasfaseranschluss zum Haus ist installiert. Satelliten-Schüssel vorhanden. Mit relativ wenig Aufwand kann man das Haus nach eigenen Vorstellungen nutzen und so gestalten, wie man es braucht, wie man sich wohlfühlt. Das Haus ist seit 1908 durchgängig
von einer Familie bewohnt.

Fußboden: Kork-Laminatt, Teppichboden (Vorwerk, Ziegenhaar), Keramik-Fliesen

Wenn Sie sich angesprochen fühlen und nähere Informationen wünschen, fordern Sie gerne weiterführende Informationen an, oder vereinbaren Sie einen Besichtigungstermin.

Ausstattung

Baujahr: 1908
5 Zimmer, 3 Wohnküchen, 2 Bäder, 2 Gäste-WCs
windgeschützte Terrasse
Grundstück 829 m² komplett umzäunt und mit Toren eingefaßt
Doppelgarage und 3 Stellplätze
Heizung über Nachtspeicherheizung
Warmwasser über Durchlauferhitzer
Kaminöfen auf 2 Etagen
Holzfenster doppelt verglast
Dachdämmung und nachhaltige Dachpfannen
Ein Konzept für eine neue Pellett-Heizung liegt bereits vor
Glasfaseranschluss zum Haus ist installiert
Satelliten-Schüssel
Fußboden: Kork-Laminatt, Teppichboden (Vorwerk, Ziegenhaar), Keramik-Fliesen

Lage

Lagebeschreibung – ruhig, naturverbunden und bestens angebunden

Diese Immobilie liegt in einer Seitenstraße direkt neben der B54 – hier genießen Sie Wohnqualität, ohne auf schnelle Verkehrsanbindung verzichten zu müssen.

Infrastruktur & Alltag

Fußläufig erreichbar: Lebensmittelgeschäfte, Schulen, Kindergärten und medizinische Versorgung befinden sich in wenigen Minuten zu Fuß und machen viele tägliche Wege mit dem Auto überflüssig

Attraktive Wohnlage: Die Umgebung ist von ländlichem Charme geprägt, gepaart mit dem Komfort urbaner Infrastruktur.

Verkehrsanbindung

PKW: Sie erreichen die Innenstadt von Meinerzhagen in weniger als 5 Minuten, nachdem Sie von der A45 „Sauerlandlinie“ (Abfahrt Meinerzhagen) fahren – ebenso ist die B54 direkt angebunden

ÖPNV: Am Bahnhof Meinerzhagen verkehrt die Regionalbahn RB 25, die Köln (Hansaring) im Stundentakt anbindet – eine ideale Option für Pendler

Regionale Einbindung

Meinerzhagen liegt im westlichen Gebiet des Sauerlands im Märkischen Kreis, nahe der Grenze zum Oberbergischen Land. Grünflächen und sanfte Höhenzüge prägen das Bild – ideal für alle, die Wohnen in der Natur mit moderner Infrastruktur verbinden möchten.

Zusammenfassung:

Hier finden Sie ein ausgewogenes Wohnumfeld: ruhig und naturnah, aber hervorragend angebunden – perfekt für Familien, Berufspendler und Erholungssuchende. Wenn Sie mehr über die Umgebung oder die Verkehrslage wissen möchten, melden Sie sich gerne – wir senden Ihnen alles Weitere zu!
Lade Orte in der Umgebung

Sonstiges

Die Immobilienbörsen kürzen Texte und begrenzen die Bilderanzahl! Fordern Sie unser komplettes Exposé per E-Mail oder telefonisch an. Bei Kontaktaufnahme bitten wir um Angabe Ihrer vollständigen Daten mit Adresse und Rufnummer.

Der Verkauf erfolgt für Kaufende PROVISIONSFREI !!!

Werte gemäß Gebäudeenergiegesetz (vormals: EnEV):
Energieausweistyp: Bedarf
gültig bis: 01.05.2032
Baujahr des Hauses: 1908
Baujahr der Heizung: unterschiedlich
Hauptenergieträger: Strom-Mix
Energiekennwert: 313,0 kWh/(m²*a)
Energieeffizienzklasse: H

Sie haben auch ein Haus, eine Wohnung oder ein Gewerbeobjekt zu verkaufen bzw. zu vermieten? Wir sind die deutschlandweiten Immobilienprofis mit vielen Tausend Interessenten und Hunderten Objekten. Rufen Sie uns an, wir beraten Sie gerne!

Als Immobilienexperten mit zahlreichen Auszeichnungen bieten wir Ihnen einen Service, der Sie als Verkäufer von Beginn an bis weit über den Notartermin hinaus begleitet. Mit unserer langjährigen Erfahrung und der hervorragenden Kenntnis des aktuellen Immobilienmarktes möchten wir gerne auch Sie bei Ihrem Verkauf unterstützen. Schenken Sie uns Ihr Vertrauen! Sie erreichen uns jederzeit unter der kostenfreien Rufnummer 0800 - 646 0 646.

Die Objektbeschreibung beruht ganz oder zum Teil auf Informationen der Eigentümer. Trotz sorgfältiger Prüfung übernimmt FALC Immobilien für die Richtigkeit oder Vollständigkeit der Angaben keine Gewähr.

Anbieterdaten

Gerhard Barden

Ansprech­partner

Gerhard Barden

Ihre Nachricht an FALC Immobilien Overath (Gerhard Barden)

Ihr Ansprechpartner: Gerhard Barden

Mit (*) gekennzeichnete Felder sind Pflichtangaben.