Ihr Zuhause mit Photovoltaik und grünem Rückzugsort!

Eckdaten

 Zimmer
 Wohnfl.
 Grundst.
Kaufpreis
 Zimmer
 Wohnfl.
 Grundst.

Kaufpreis

Basisdaten

Objektnummer
Immopark ID
IP-293861
Objekt ID
FALC-MAG-73478
Adresse
Ort
53809 Ruppichteroth
Fakten und Zahlen
Haustyp
Einfamilien­haus
Vermarktungsart
Kauf
Nutzungsart
wohnen
Baujahr
1900
Kerndaten
Wohnfläche
98 m2
Zimmer
3.0
Schlafzimmer
2.0
Badezimmer
1.0
Grundstücksfläche
847 m2
Anzahl Stellplätze (gesamt)
2.0
Bauweise / Substanz
Objektzustand
vollsaniert
Verfügbarkeit
Verfügbar ab
nach Absprache

Preisdaten

Preis
Kaufpreis
289.000 €
Courtage
provisionspflichtig
Käufercourtage
3,57 % inkl. 19 % MwSt. vom notariellen Kaufpreis

Merkmale

Zimmer und Bereiche
Anzahl (Balkone)
1.0
Anzahl (Terrassen)
1.0
Schlaf­zimmer
Ausstattung und Technik
Einbau­küche
Fliesen­boden
Lami­nat
Kamin
Sanitäre Einrichtung
Fenster
Dusche
Stellplätze
Anzahl Stellplätze (gesamt)
2.0
Freiplatz
Garage
Anzahl
2.0

Energie

Energieausweis
Gebäudeart lt. Energieausweis
Wohngebäude

Umgebung

Es wurden keine Daten angegeben.

Objektbeschreibung

Dieses in solider Bauweise errichtete Einfamilienhaus in Ruppichteroth vereint den Charme des Haupthauses von 1900 mit einem funktionalen Anbau aus dem Jahr 1966. Auf ca. 98 m² Wohnfläche und einem großzügigen Grundstück von 847 m² bietet es behagliches Wohnen mit durchdachter Aufteilung und vielen Nutzungsmöglichkeiten. Es vereint den Charme eines gewachsenen Eigenheims mit dem Potenzial, individuelle Wohnideen zu verwirklichen.

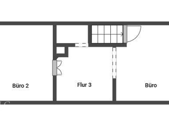
Beim Betreten des Hauses empfängt Sie ein einladender Eingangsbereich, der genügend Platz für eine Garderobe oder dekorative Akzente bietet. Linkerhand befindet sich das Badezimmer, praktisch gelegen und so vom gesamten Erdgeschoss aus gut erreichbar. Gehen Sie geradeaus, öffnet sich der zentrale Flur, der als Herzstück des Hauses fungiert und von dem aus alle weiteren Räume erschlossen werden.

Auf der linken Seite liegt die Küche mit angrenzendem Essbereich – ein freundlicher, heller Platz, an dem man gemeinsam kocht, isst und ins Gespräch kommt. Durch die Nähe zum Essbereich lässt sich der Alltag hier besonders angenehm gestalten. Rechterhand lädt das gemütliche Wohnzimmer zum Entspannen ein, mit ausreichend Platz für eine großzügige Sitzgarnitur und persönlichen Wohnstil. Am Ende des Flurs befindet sich das Schlafzimmer, das sich als ruhiger Rückzugsort anbietet. Die Räume verfügen über eine eher niedrigere Deckenhöhe, was ihnen eine behagliche, gemütliche Atmosphäre verleiht.
Eine Treppe führt ins ausgebaute Dachgeschoss, wo sich ein weiteres Schlafzimmer befindet.

Der Außenbereich überzeugt mit einer gemütlichen Terrasse, die an warmen Tagen zum Frühstück im Freien oder zu geselligen Grillabenden einlädt. Der weitläufige, gepflegte Garten bietet jede Menge Platz für Spiel, Erholung oder den eigenen Gemüseanbau. Ein besonderes Highlight ist das vorhandene Gewächshaus, das Hobbygärtnern und Selbstversorgern ideale Bedingungen bietet.

Auch die Parkmöglichkeiten sind komfortabel gelöst: Eine lange Einfahrt bietet Stellfläche für mehrere Fahrzeuge hintereinander, zusätzlich steht eine Garage zur Verfügung, die nicht nur als Abstellplatz für das Auto, sondern auch für Fahrräder oder Gartengeräte genutzt werden kann.

So verbindet dieses Haus praktischen Wohnkomfort mit einem großzügigen Grundstück, das Raum für Familie, Hobbys und Erholung gleichermaßen schafft – ein ideales Zuhause für alle, die Wert auf Funktionalität, Freiraum und eine charmante Wohnlage legen.

Ausstattung

Das Einfamilienhaus überzeugt durch eine solide Grundsubstanz und eine Ausstattung, die sowohl funktional als auch wohnlich ist. Die vorhandene Einbauküche ist praktisch geschnitten und bietet ausreichend Stauraum sowie alle notwendigen Geräte für den täglichen Bedarf.

Die Fenster sind in pflegeleichten Kunststoffrahmen eingefasst und mit Rollläden ausgestattet, was für zusätzlichen Sicht- und Wärmeschutz sorgt. Der Boden ist überwiegend mit Laminat ausgelegt, was eine warme Wohnatmosphäre schafft und sich leicht reinigen lässt. Im Badezimmer wurden pflegeleichte Fliesen verlegt. Es ist mit einer Dusche, einem Fenster sowie einem Waschmaschinenanschluss ausgestattet und erfüllt damit sowohl praktische als auch komfortable Anforderungen.

Eine moderne Gasheizung, die in den letzten Jahren erneuert wurde, sorgt für effiziente Wärme im ganzen Haus. Der dazugehörige Gastank befindet sich dezent im hinteren Bereich des Gartens – gut erreichbar, aber optisch unauffällig platziert.

Ein Einbauschrank im Flur sorgt für zusätzlichen Stauraum und nutzt den vorhandenen Platz optimal aus. Vor dem Haus lädt eine schöne Terrasse zum Verweilen ein, während der großzügige Garten vielfältige Nutzungsmöglichkeiten bietet. Das dort vorhandene Gewächshaus eignet sich ideal für Hobbygärtner, und ein kleiner Schuppen bietet zusätzlichen Platz für Gartengeräte oder Fahrräder.

Ein besonderer Pluspunkt ist die Photovoltaikanlage auf dem Dach, die umweltfreundlich zur Stromerzeugung beiträgt und so die Energiekosten spürbar reduziert. Sie ist von einer renommierten Fachfirma gemietet – so profitieren Sie von moderner Solartechnik, ohne die hohen Investitionskosten tragen zu müssen.

Damit verbindet die Ausstattung dieses Hauses Komfort, Funktionalität und umweltbewusste Technik auf besonders attraktive Weise.

Lage

Diese bezaubernde Immobilie befindet sich in einer ruhigen und dennoch hervorragend angebundenen Gegend von Ruppichteroth, einem charmanten Ort, der eine perfekte Balance zwischen ländlicher Idylle und städtischer Infrastruktur bietet. Hier können Sie die Vorzüge eines entspannten Landlebens genießen, ohne auf die Annehmlichkeiten des modernen Alltags verzichten zu müssen.

Die Umgebung ist besonders familienfreundlich gestaltet. In unmittelbarer Nähe finden sich sowohl eine Grundschule als auch ein Gymnasium, die den täglichen Schulweg für Ihre Kinder angenehm kurz halten.
Für Ihre täglichen Besorgungen stehen Ihnen vielfältige Einkaufsmöglichkeiten zur Verfügung. Kulinarisch kommen Sie ebenfalls auf Ihre Kosten: Zahlreiche Restaurants in der Umgebung laden dazu ein, die Vielfalt der regionalen und internationalen Küche zu entdecken. Ob ein schneller Snack für zwischendurch oder ein ausgedehnter Abend mit Freunden – hier ist für jeden Geschmack etwas dabei.

Die Anbindung an den öffentlichen Nahverkehr ist ausgezeichnet. Eine Bushaltestelle in unmittelbarer Nähe ermöglicht es Ihnen, schnell und unkompliziert die umliegenden Städte und Gemeinden zu erreichen. Für Pendler ist die Autobahn in kurzer Fahrzeit erreichbar, was den täglichen Arbeitsweg erleichtert. Auch der nächste Flughafen ist gut angebunden, was Reisen in ferne Länder oder den Empfang von Besuchern besonders komfortabel macht.

Diese Lage vereint das Beste aus beiden Welten: die Ruhe und Beschaulichkeit des Landlebens mit der praktischen Nähe zu wichtigen Einrichtungen und Verkehrsanbindungen. Ein idealer Ort für alle, die Wert auf eine ausgewogene Lebensweise legen und die Vorzüge einer gut durchdachten Infrastruktur zu schätzen wissen. Ob Sie nun die Natur genießen, die Freizeitangebote der Umgebung nutzen oder einfach nur die Seele baumeln lassen möchten – hier finden Sie den perfekten Rückzugsort für Ihr neues Zuhause.
Lade Orte in der Umgebung

Sonstiges

Falls Sie Wert auf eine ruhige Lage, eine durchdachte Raumaufteilung und ein gehobenes Wohnumfeld legen, könnte dieses Objekt genau das Richtige für Sie sein. Wir bieten Ihnen eine kostenlose 24/7-Hotline unter der Rufnummer 0800-6460646, über die Sie uns jederzeit erreichen können.

Wenn Sie Interesse an der Immobilie haben, fordern Sie gerne das ausführliche Exposé an, das Ihnen in der Regel kurzfristig und automatisch zugesandt wird. Sollten Sie eine Besichtigung wünschen, antworten Sie am besten direkt per E-Mail auf das Exposé. Wir setzen uns umgehend mit Ihnen in Verbindung und unterbreiten Ihnen passende Terminvorschläge. Bitte geben Sie dabei stets Ihre vollständigen Kontaktdaten an.

Die Objektbeschreibung basiert ganz oder teilweise auf den Angaben des Eigentümers. Für die Richtigkeit und Vollständigkeit dieser Informationen übernehmen wir keine Gewähr.

Möchten auch Sie Ihre Immobilie professionell vermarkten? Dann kontaktieren Sie uns gerne! Wir stehen Ihnen täglich von Montag bis Sonntag zwischen 6:00 und 22:00 Uhr persönlich zur Verfügung. Über 200.000 aktive Interessenten warten bereits auf Ihr Angebot.

Bitte beachten Sie, dass das Exposé möglicherweise unter Zuhilfenahme von Künstlicher Intelligenz (KI) erstellt oder überarbeitet wurde. Dabei wurden jedoch keine wesentlichen Merkmale verändert.

Anbieterdaten

Marc Grießhammer

Ansprech­partner

Marc Grießhammer

Ihre Nachricht an FALC Immobilien Hennef (Sieg) (Andreas Laarmann)

Ihr Ansprechpartner: Marc Grießhammer

Mit (*) gekennzeichnete Felder sind Pflichtangaben.