3-Zimmer-Wohnung mit großer Süd-Loggia und exklusiver Wellness Oase in ruhiger Lage

Eckdaten

 Zimmer
 Wohnfl.
 Grundst.
Kaufpreis
 Zimmer
 Wohnfl.
Grundst.

Kaufpreis

Basisdaten

Objektnummer
Immopark ID
IP-297317
Objekt ID
1065-4450-NVO
Adresse
Ort
85716 Unterschleißheim / Lohhof
Fakten und Zahlen
Wohnungstyp
Etage
Vermarktungsart
Kauf
Nutzungsart
wohnen
Verkaufsstatus
offen
Baujahr
1973
Kerndaten
Wohnfläche
79,3 m2
Zimmer
3.0
Schlafzimmer
2.0
Badezimmer
1.0
Anzahl Stellplätze (gesamt)
1.0
Bauweise / Substanz
Objektzustand
gepflegt

Preisdaten

Preis
Kaufpreis
398.000 €
Kaufpreis pro Quadratmeter
5.018,92 €
Weitere Kosten
Hausgeld
558 €
Courtage
Käufercourtage
3,57% inkl. ges. MwSt.
inkl. MwSt.

Merkmale

Zimmer und Bereiche
Gesamtfläche
15,5 m2
Schlaf­zimmer
Fahrrad­raum
Abstell­raum
Ausstattung und Technik
Qualität der Ausstattung
standard
Einbau­küche
Wellness
Wellness­bereich
Sauna
Swimming-Pool
Stellplätze
Anzahl Stellplätze (gesamt)
1.0
Tiefgarage
Anzahl
1.0
Garten
Garten­nutzung

Energie

Energieausweis
Typ
Verbrauchs­ausweis
EnEV
ab 01.05.2014 (gemäß EnEV 2014)
Energieausweis gültig bis
2028-04-29
Energie­verbrauchs­kennwert gemessen in kWh/(m²a)
140.00

A+ABCDEFGH

Energieeffizienz­klasse
E
Baujahr lt. Energieausweis
1973
Gebäudeart lt. Energieausweis
Wohngebäude
Heizung
Zentral­heizung
Befeuerungsart
Gas

Umgebung

Es wurden keine Daten angegeben.

Objektbeschreibung

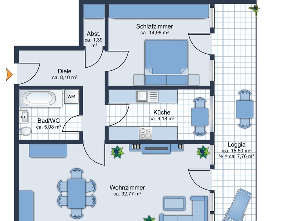
Diese großzügige 2/3-Zimmer-Wohnung befindet sich in einer schönen, ruhigen Lage und überzeugt gleichzeitig mit einer hervorragenden Verkehrsanbindung.
Mit einer Wohnfläche von ca. 80 m² bietet sie ein modernes und komfortables Wohnambiente. Sie erreichen den 2. Stock bequem mit dem Aufzug.
Eine Wellnessoase mit exklusivem Pool und neuem Saunabereich mit Duschen bietet Ihnen ein Plus an Komfort!

Sie haben die Wahl: eine geräumige 2 Zimmer Wohnung mit separater Küche (derzeit so gebaut) oder aber eine 3 Zimmer Wohnung mit Platz für die Familie (2 Schlafzimmer)

Derzeit ist die Wohnung umgebaut in eine 2 Zimmer Wohnung. Mit wenigen Handgriffen kann die Küche wieder zurück ins große Wohnzimmer verlegt werden (Anschlüsse alle vorhanden - die Verkäufer bauen auch die EBK aus) somit haben Sie ein drittes Zimmer oder ein zweites Schlafzimmer.

Ein besonderes Highlight ist die kaum einsehbare Süd-Loggia mit unverbautem Blick ins Grüne, der sich über die gesamte Breite der Wohnung erstreckt und sowohl vom Wohnzimmer als auch vom Schlafzimmer aus zugänglich ist. Hier lassen sich sonnige Stunden und eine angenehme Aussicht genießen.

Das Badezimmer ist mit einer Badewanne ausgestattet und verfügt, ebenso wie der Flur, über hochwertige Granit-Bodenfliesen. Die Wohnung ist zudem mit großen Kunststofffenstern ausgestattet, die für eine optimale Helligkeit sorgen. Rollläden sind vorhanden.

Zusätzlichen Stauraum bietet ein Abstellraum sowie ein eigener Kellerraum. Ein Tiefgaragenstellplatz (Tiefgarage kürzlich saniert) gehört ebenfalls zur Wohnung, sodass das Auto sicher und bequem geparkt werden kann. Für Fahrräder steht ein separater Fahrradkeller zur Verfügung, und in der gemeinschaftlichen Waschküche können Waschmaschine und Trockner genutzt werden.

Ein weiteres Highlight ist das kürzlich renovierte Schwimmbad mit Sauna zur Nutzung welche den Bewohnern exklusiv zur Verfügung steht – ideal für entspannte Stunden und sportliche Aktivitäten direkt im Haus.

Ausstattung

-Top saniertes Mehrfamilienhaus
- Absolut ruhige Lage
- 2/3-Zimmer-Wohnung im 2. OG mit Aufzug
- Ruhige, sonnige Wohngegend mit viel Grün
- TOP gepflegtes exklusives Schwimmbad mit Sauna (Pflege, Wartung in Nebenkosten enthalten)
- Baujahr: 1973 TOP gepflegter Zustand
- Sonnige Süd-West Loggia über die gesamte Wohnungsbreite
- Moderne, weiße Hochglanz-Einbauküche inkl. Elektrogeräten
- Hochwertiger Ahorn-Parkettboden in den Wohnräumen, Granitfliesen in Bad und Flur
- Taghell durch große Fensterflächen
- Abstellkammer
- Kürzlich sanierte Tiefgarage – 1 Tiefgarageneinzelstellplatz
- Hochwertige Sauna- und Schwimmbadlandschaft im Haus
- Fahrradkeller
- Aufzug
- Hausgeld 558 € mtl.

Lage

Die gepflegte Wohnung in Unterschleißheim besticht durch ihre ruhige und dennoch verkehrsgünstige Lage.
Die Bushaltestelle "Lohhof, Margaretenanger" liegt nur 100 Meter entfernt und ist in ca. 2 Minuten zu Fuß erreichbar. Von dort verkehrt die Buslinie 215 regelmäßig zum S-Bahnhof Unterschleißheim, der an der S-Bahn-Linie S1 liegt. Diese bietet direkte Verbindungen nach München und zum Flughafen.
Für den täglichen Bedarf sind mehrere Supermärkte und Einkaufsmöglichkeiten in der Umgebung vorhanden, die innerhalb weniger Minuten zu Fuß erreichbar sind.
Zudem bietet Unterschleißheim eine Vielzahl von Freizeit- und Erholungsmöglichkeiten, darunter Parks, Sporteinrichtungen und kulturelle Angebote, die zur hohen Lebensqualität in diesem Wohngebiet beitragen.
Lade Orte in der Umgebung

Sonstiges

Alle Angaben sind freibleibend, unverbindlich, ohne Gewähr und basieren auf Informationen, die uns von unserem Auftraggeber mitgeteilt wurden. Wir übernehmen keine Gewähr für Vollständigkeit, Richtigkeit und Aktualität. Zwischenvermittlung bleibt vorbehalten.

Sollte Ihnen die von uns nachgewiesene Immobilie bereits bekannt sein, teilen Sie uns dieses bitte unverzüglich mit. Die Weitergabe dieses Exposés an Dritte ohne unsere Zustimmung löst gegebenenfalls Schadensersatzansprüche aus.

Wir weisen Sie darauf hin, dass unsere Tätigkeit im Erfolgsfall eine Vermittlungs- und/oder Nachweisprovision nach sich zieht. Bei Verkauf beträgt die Provision 3,57 % inkl. ges. MwSt. des notariell beurkundeten Kaufpreises. Der Immobilienmakler hat einen provisionspflichtigen Maklervertrag mit dem Verkäufer in gleicher Höhe abgeschlossen. Bitte beachten Sie dass es sich bei dem angegebenen Kaufpreis um den Mindestangebotspreis handelt.

Wir stehen Ihnen gerne mit weiteren Informationen zur Immobilie sowie für Besichtigungen zur Verfügung.

Anbieterdaten

Nadine Vonmetz

Ansprech­partner

Nadine Vonmetz

Ihre Nachricht an RE/MAX Living / MDV Consult GmbH

Ihr Ansprechpartner: Nadine Vonmetz

Mit (*) gekennzeichnete Felder sind Pflichtangaben.