Exklusive Erdgeschosswohnung in Uelsen – mit attraktiver Abschreibungsmöglichkeit

Eckdaten

 Zimmer
 Wohnfl.
 Grundst.
Kaufpreis
 Zimmer
 Wohnfl.
Grundst.

Kaufpreis

Basisdaten

Objektnummer
Immopark ID
IP-302537
Objekt ID
1049-116-1
Adresse
Ort
49843 Uelsen
Fakten und Zahlen
Wohnungstyp
Erd­geschoss
Vermarktungsart
Kauf
Nutzungsart
wohnen
Verkaufsstatus
offen
Baujahr
2024
Kerndaten
Wohnfläche
96 m2
Zimmer
3.0
Bauweise / Substanz
Objektzustand
projektiert

Preisdaten

Preis
Kaufpreis
305.500 €
Courtage
Käufercourtage
4,76 %

Merkmale

Stellplätze
Freiplatz

Energie

Es wurden keine Daten angegeben.

Umgebung

Es wurden keine Daten angegeben.

Objektbeschreibung

Herzlich willkommen zu Ihrem potenziellen neuen Zuhause! Inmitten der begehrten Wohngegend Uelsen - Waterfall präsentieren wir mit Stolz dieses exklusive Neubauprojekt – ein Wohnhaus mit insgesamt vier Wohneinheiten und ansprechenden Nebengebäuden. Diese Immobilie vereint zeitgemäßes Design mit höchstem Wohnkomfort und bietet eine erstklassige Lebensqualität.

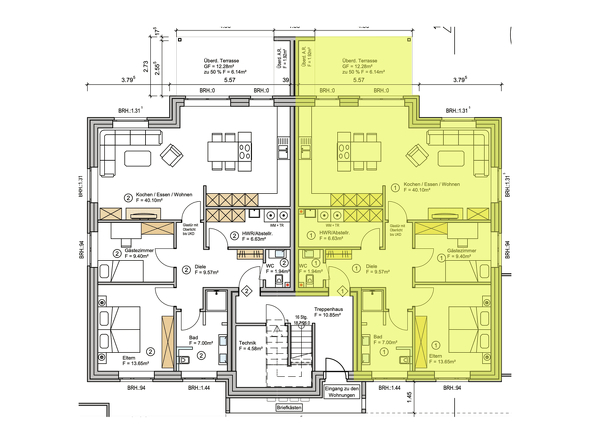
Die angebotene Erdgeschosswohnung überzeugt durch eine durchdachte Raumaufteilung und eine gute Ausstattung. Die Räume sind lichtdurchflutet und schaffen eine angenehme Wohnatmosphäre, die zum Wohlfühlen einlädt.

Aufteilung:
- Diele
- Kochen / Essen / Wohnen
- Schlafzimmer
- Gästezimmer
- Bad
- HWR / Abstellraum mit Waschmaschinen- und Trockneranschluss
- Gäste-WC

Besonders hervorzuheben ist der Garten (siehe Anlage Gartenanteil - WHG 1) mit einer großzügigen Terrasse, welche eine Südausrichtung hergibt, die nicht nur sonnige Stunden verspricht, sondern auch einen idyllischen Rückzugsort im Freien bietet. Hier können Sie entspannte Momente genießen und gesellige Stunden mit Familie und Freunden verbringen.

Ein weiteres Highlight ist der gemeinschaftliche Geräteraum, der Platz für Fahrräder und andere Utensilien bietet. Diese praktische Einrichtung ermöglicht eine organisierte Aufbewahrung und fördert die Gemeinschaft der Bewohner. Zudem verfügt die Wohnung über zwei eigene Stellplätze im Freien, die Ihnen bequeme Parkmöglichkeiten an der Immobilie garantieren.

Diese Erdgeschosswohnung ist nicht nur eine Immobilie – sie ist ein Zuhause, in dem Sie sich wohlfühlen werden.

Standort: Tannenweg in Uelsen
Konkret: Gemarkung Uelsen, Flur 1, Flurstück 53/11

Das Haus wird als Klimafreundliches Wohngebäude gebaut. Hier bestehen Möglichkeiten zur Förderung, welche besprochen werden können.

Ausstattung

- Fenster und Fenstertüren werden als hochwertige Kunststofffenster gefertigt. Isolierglasscheiben als hochwertige 3-fach Isolierglasscheiben.
- Rolladen werden an den Fenstern im Erd- und Obergeschoss eingebaut. Es werden Kunststoffrollladen in der Farbe Weiß eingebaut.
- Es werden edelholzfunierte Türen inkl. Holzzarge in den Ausführung Standard Buche oder gleichwertig mit Drückergarnitur montiert. Die Tür von Wohnen/ Flur hat einen Glasausschnitt mit Klarglas verglast.
- In den Räumen: WC, HWR, Bad und Küche/Essen/Wohnen werden Bodenfliesen parallel zu den Wänden auf dem Estrich verlegt, wobei die Fugen in Zementgrau ausgeschlemmt sind. In den gefliesten Räumen ohne Wandfliesen werden Fußleisten aus Holz montiert.
Die Anschlussfugen zwischen Wand- und Bodenfliesen werden elastisch versiegelt. Im Bad werden Wandfliesen deckenhoch verfliest und verfugt. Die Fliesen werden nach einer Bemusterung festgelegt.
- Die Innenfensterbänke sind aus Aglo- oder Tranimarmor in verschiedenen Ausführungen. Im Badezimmer wird die Fensterbank gefliest.
- Auf den Terrassen ca. 25 m² sind Terrassenplatten mit Nano-Beschichtung verlegt.
- Badheizkörper
- kontrollierte Wohnraumlüftung
weiss RAL 9016 VE2,5
- Luft/ Wasser-Wärmepumpe
- Sprechanlage

Lage

Uelsen ist eine charmante Gemeinde im westlichen Niedersachsen, Deutschland. Diese ländliche Region zeichnet sich durch ihre idyllische Landschaft, traditionelle Architektur und freundliche Gemeinschaft aus.

Die Gemeinde bietet eine Mischung aus modernen Annehmlichkeiten und dem rustikalen Charme eines typisch deutschen Dorfes. Uelsen ist von grünen Feldern, Wäldern und sanften Hügeln umgeben, was es zu einem idealen Ort für Naturliebhaber und Outdoor-Aktivitäten macht. Wander- und Radwege erstrecken sich durch die Umgebung und bieten die Möglichkeit, die Schönheit der Natur zu erkunden.

Das Ortsbild von Uelsen wird von gepflegten Fachwerkhäusern, traditionellen Bauernhöfen und malerischen Kirchen geprägt. Die Bewohner schätzen ihre lokale Geschichte, die sich in den Gebäuden und Denkmälern widerspiegelt. Der historische Charme der Gemeinde verbindet sich harmonisch mit modernen Einrichtungen, darunter Geschäfte, Restaurants und gemütliche Cafés.

Die Menschen in Uelsen sind für ihre Gastfreundschaft und Gemeinschaftsgeist bekannt. Traditionelle Feste und Veranstaltungen stärken das soziale Leben und bieten Besuchern die Möglichkeit, die lokale Kultur hautnah zu erleben. Die regionale Küche mit ihren schmackhaften Gerichten trägt ebenfalls zur einladenden Atmosphäre bei.

Uelsen ist nicht nur ein Ort, sondern ein Erlebnis. Ob Sie die Natur erkunden, historische Stätten besichtigen oder sich einfach mit den Einheimischen austauschen möchten, diese deutsche Gemeinde hat für jeden etwas zu bieten.
Lade Orte in der Umgebung

Sonstiges

Widerrufsbelehrung für Verbraucher:
Sie haben das Recht, binnen vierzehn Tagen ohne Angabe von Gründen diesen Vertrag zu widerrufen. Die Widerrufsfrist beträgt vierzehn Tage ab dem Tag des Vertragsabschlusses.
Um Ihr Widerrufsrecht auszuüben, müssen Sie uns:
RE/MAX Immobilien Grafschaft Bentheim, Veldhausener Str. 34, 49828 Neuenhaus
Tel. 05941 – 98990 0, Fax. 05941 – 98990 29, E-Mail: info@remax-grafschaft.de
mittels einer eindeutigen Erklärung (z.B. ein mit der Post versandter Brief, Telefax oder E-Mail) über Ihren Entschluss, diesen Vertrag zu widerrufen, informieren. Zur Wahrung der Widerrufsfrist reicht es aus, dass Sie die Mitteilung über die Ausübung des Widerrufsrechts vor Ablauf der Widerrufsfrist absenden.
Folgen des Widerrufs:
Wenn Sie diesen Vertrag widerrufen, haben wir Ihnen alle Zahlungen, die wir von Ihnen erhalten haben, unverzüglich und spätestens binnen vierzehn Tagen ab dem Tag zurückzuzahlen, an dem die Mitteilung über Ihren Widerruf dieses Vertrags bei uns eingegangen ist. Für diese Rückzahlung verwenden wir dasselbe Zahlungsmittel, das Sie bei der ursprünglichen Transaktion eingesetzt haben, es sei denn, mit Ihnen wurde ausdrücklich etwas anderes vereinbart; in keinem Fall werden Ihnen wegen dieser Rückzahlung Entgelte berechnet. Haben Sie verlangt, dass die Dienstleistungen während der Widerrufsfrist beginnen soll, so haben Sie uns einen angemessenen Betrag zu zahlen, der dem Anteil der bis zu dem Zeitpunkt, zu dem Sie uns von der Ausübung des Widerrufsrechts hinsichtlich dieses Vertrags unterrichten, bereits erbrachten Dienstleistungen im Vergleich zum Gesamtumfang der in Vertrag vorgesehenen Dienstleistungen entspricht.

Käuferprovision:
Die auf Seite 2 genannte Käuferprovision (inkl. gesetzlicher Umsatzsteuer, derzeit 19%) ist vom Käufer zu zahlen. Verdient und fällig wird diese erst mit notarieller Beurkundung. Die Berechnungsgrundlage ist der notariell festgeschriebene Kaufpreis.

Sämtliche Angebote sind freibleibend und basieren auf Informationen, die der Eigentümer erteilt hat; eine Haftung für deren Richtigkeit und Vollständigkeit kann deshalb nicht übernommen werden. Zwischenverkauf bzw. -vermietung bleibt dem Eigentümer vorbehalten.

Anbieterdaten

Gerfried Gosselink

Ansprech­partner

Gerfried Gosselink

Ihre Nachricht an RE/MAX Grafschaft Bentheim - Frank grote Hölmann eK

Ihr Ansprechpartner: Gerfried Gosselink

Mit (*) gekennzeichnete Felder sind Pflichtangaben.