Attraktive 4-Zimmer-Maisonettewohnung mit zwei Balkonen, Garage und Stellplätze in ruhiger Wohnlage!

Eckdaten

 Zimmer
 Wohnfl.
 Grundst.
Kaufpreis
 Zimmer
 Wohnfl.
Grundst.

Kaufpreis

Basisdaten

Objektnummer
Immopark ID
IP-306903
Objekt ID
LDW1.LB.10641
Adresse
Ort
71069 Sindelfingen
Fakten und Zahlen
Wohnungstyp
Mai­sonette
Vermarktungsart
Kauf
Nutzungsart
wohnen
Verkaufsstatus
reserviert
Baujahr
1991
Kerndaten
Wohnfläche
93 m2
Zimmer
4.0
Schlafzimmer
3.0
Badezimmer
2.0
separate WC
1.0
Bauweise / Substanz
Bauweise
Massivhaus
Etagenanzahl der Immobilie
2
Verfügbarkeit
Verfügbar ab
sofort

Preisdaten

Preis
Kaufpreis
340.000 €
Courtage
Käufercourtage
jeweils 3,57 % inkl. MwSt. vom Käufer und Verkäufer auf den beurkundeten Kaufpreis zu zahlen

Merkmale

Zimmer und Bereiche
Voll unterkellert
Schlaf­zimmer
Wasch- / Trocken­raum
Sanitäre Einrichtung
Gäste WC
Stellplätze
Freiplatz
Anzahl
2.0
Kaufpreis
25.000 €
Garage
Anzahl
2.0
Kaufpreis
25.000 €

Energie

Energieausweis
Typ
Verbrauchs­ausweis
EnEV
ab 01.05.2014 (gemäß EnEV 2014)
Energieausweis gültig bis
2028-01-01
Energie­verbrauchs­kennwert gemessen in kWh/(m²a)
157.40

A+ABCDEFGH

wesentlicher Energieträger
Öl
Energieeffizienz­klasse
E
Baujahr lt. Energieausweis
2024
Gebäudeart lt. Energieausweis
Wohngebäude
Heizung
Zentral­heizung
Befeuerungsart
Öl

Umgebung

Es wurden keine Daten angegeben.

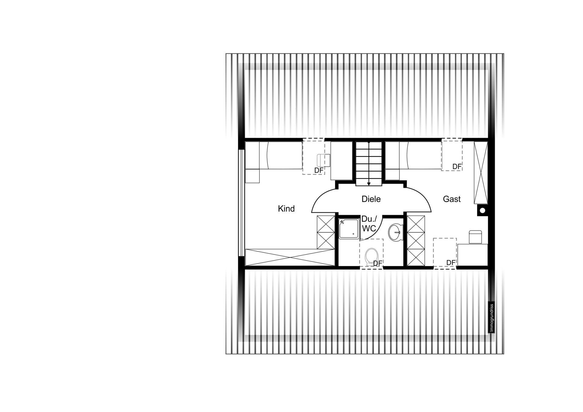
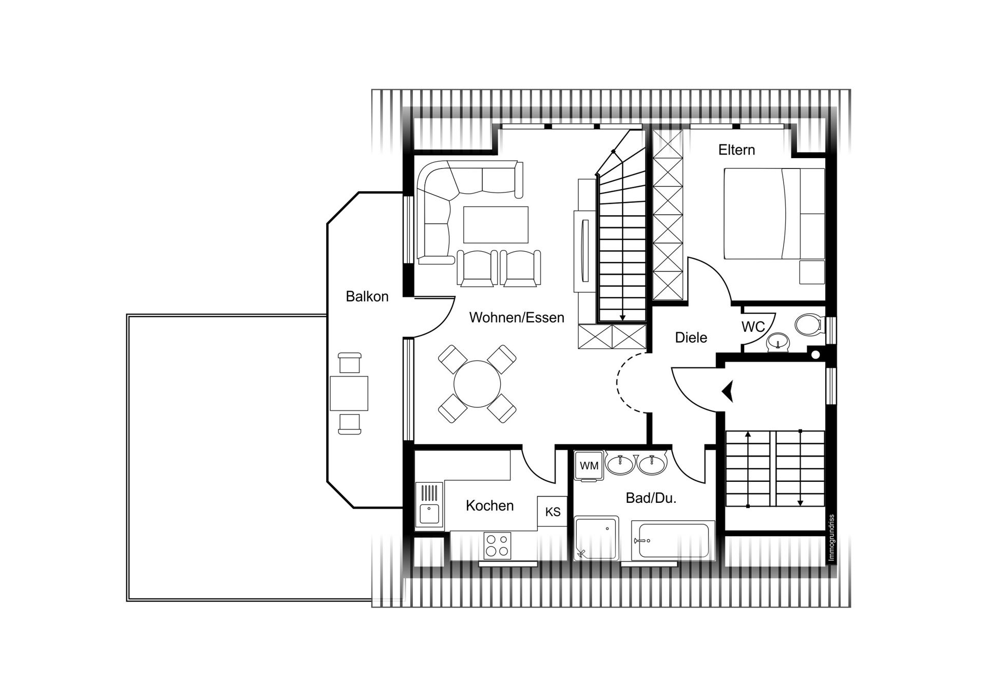
Objektbeschreibung

Zum Verkauf steht eine gepflegte 4-Zimmer-Eigentumswohnung in Maisonette-Bauweise mit ca. 93 m² Wohnfläche. Die Wohnung befindet sich in einem Mehrfamilienhaus aus dem Baujahr 1991 und überzeugt durch ihre durchdachte Raumaufteilung, den großzügigen Grundriss sowie den besonderen Maisonette-Charakter.

Die Immobilie eignet sich ideal für Paare, Familien oder anspruchsvolle Eigennutzer, die Wert auf Ruhe, Wohnkomfort und ausreichend Platz legen. Auch für Kapitalanleger stellt die Wohnung aufgrund ihrer Größe und Lage eine interessante Option dar.


Die Wohnung verfügt über insgesamt vier Zimmer, die flexibel als Wohn-, Schlaf-, Kinder- oder Arbeitszimmer genutzt werden können. Ein besonderes Highlight sind die insgesamt zwei Balkone. Diese bieten zusätzlichen Wohnkomfort und laden zum Verweilen im Freien ein.

Zur Immobilie gehören eine Garage sowie einen zusätzlichen Stellplatz, was komfortables und stressfreies Parken gewährleistet.

Das monatliche Hausgeld beträgt derzeit ca. 250 €.

Die Heizungsanlage wurde im Jahr 2025 erneuert, was einen wichtigen Beitrag zu einer zeitgemäßen und effizienten Energieversorgung darstellt.

Ausstattung

- schöne Zimmeraufteilung
- große Fensterflächen im Wohnzimmer
- Holzfenster, 2 Fach verglast
- 2 Tageslichtbäder
- separates Gäste WC
- Je ein Balkon pro Stockwerk
- Stellpatz im Freien
- Garage

Lage

Die Immobilie befindet sich in einer gewachsenen und beliebten Wohnlage von Sindelfingen. Das Umfeld ist geprägt von gepflegten Mehrfamilien- und Einfamilienhäusern sowie ruhigen Anliegerstraßen, wodurch ein angenehmes und familienfreundliches Wohnklima entsteht.

Alle Einrichtungen des täglichen Bedarfs wie Einkaufsmöglichkeiten, Bäckereien, Apotheken sowie Ärzte sind in kurzer Zeit erreichbar. Kindergärten, Schulen und vielfältige Freizeitangebote befinden sich ebenfalls in der näheren Umgebung.

Die Anbindung an den öffentlichen Personennahverkehr ist gut und ermöglicht eine schnelle Verbindung in die Sindelfinger Innenstadt sowie nach Böblingen und Stuttgart. Auch die Autobahnen A81 und A8 sind in wenigen Fahrminuten erreichbar, was den Standort besonders für Berufspendler attraktiv macht.

Ergänzt wird die Lage durch nahegelegene Grün- und Erholungsflächen, die zu Spaziergängen, sportlichen Aktivitäten und zur Erholung im Freien einladen. Die Kombination aus ruhiger Wohnlage, guter Infrastruktur und hervorragender Verkehrsanbindung macht diese Lage besonders lebenswert.
Lade Orte in der Umgebung

Sonstiges

Da wir uns bei allen Angaben auf die Informationen Dritter stützen müssen, können wir keine Gewähr für deren Richtigkeit und Vollständigkeit übernehmen.

Bitte haben Sie Verständnis dafür, dass wir nur Anfragen mit vollständiger Adressangabe und erreichbarer Handynummer bearbeiten können.

Nachdem Ihre Anfrage per E-Mail bei uns eingegangen ist, werden wir uns mit Ihnen zur Abstimmung eines Besichtigungstermins in Verbindung setzen. Bitte nennen Sie deshalb in Ihrer E-Mail eine Tel.-Nr., unter der wir Sie sicher erreichen können.

Widerrufsbelehrung für Verbraucher:
Sie haben das Recht, binnen vierzehn Tagen ohne Angabe von Gründen diesen Vertrag zu widerrufen. Die Widerrufsfrist beträgt vierzehn Tage ab dem Tag des Vertragsabschlusses.

Um Ihr Widerrufsrecht auszuüben, müssen Sie uns (Königskinder Immobilien GmbH, Königstraße 62, 70173 Stuttgart, Tel: 0711 4005440, Fax: 0711 40054433, info@koenigskinder.de) mittels einer eindeutigen Erklärung (z. B. ein mit der Post versandter Brief, Telefax oder E-Mail) über Ihren Entschluss, diesen Vertrag zu widerrufen, informieren.

Zur Wahrung der Widerrufsfrist reicht es aus, dass Sie die Mitteilung über die Ausübung des Widerrufsrechts vor Ablauf der Widerrufsfrist absenden.

Folgen des Widerrufs:
Wenn Sie diesen Vertrag widerrufen, haben wir Ihnen alle Zahlungen, die wir von Ihnen erhalten haben, unverzüglich und spätestens binnen vierzehn Tagen ab dem Tag zurückzuzahlen, an dem die Mitteilung über Ihren Widerruf dieses Vertrags bei uns eingegangen ist. Für diese Rückzahlung verwenden wir dasselbe Zahlungsmittel, das Sie bei der ursprünglichen Transaktion eingesetzt haben, es sei denn, mit Ihnen wurde ausdrücklich etwas anderes vereinbart; in keinem Fall werden Ihnen wegen dieser Rückzahlung Entgelte berechnet.

Haben Sie verlangt, dass die Dienstleistungen während der Widerrufsfrist beginnen soll, so haben Sie uns einen angemessenen Betrag zu zahlen, der dem Anteil der bis zu dem Zeitpunkt, zu dem Sie uns von der Ausübung des Widerrufsrechts hinsichtlich dieses Vertrags unterrichten, bereits erbrachten Dienstleistungen im Vergleich zum Gesamtumfang der im Vertrag vorgesehenen Dienstleistungen entspricht.

Anbieterdaten

Lisa Bruckner

Ansprech­partner

Lisa Bruckner

Ihre Nachricht an Königskinder Immobilien GmbH

Ihr Ansprechpartner: Lisa Bruckner

Mit (*) gekennzeichnete Felder sind Pflichtangaben.