" Büttenwarder-Gefühl inklusive: Traditionskneipe mit modernisiertem Saalbetrieb "

Eckdaten

 Zimmer
 Wohnfl.
 Grundst.
Kaufpreis
Zimmer
Wohnfl.
Grundst.

Kaufpreis

Basisdaten

Objektnummer
Immopark ID
IP-306975
Objekt ID
1057-277-CT
Adresse
Ort
26826 Weener
Fakten und Zahlen
Immobilientyp
Gastro­nomie
Vermarktungsart
Kauf
Nutzungsart
Gewerbliche Nutzung
Verkaufsstatus
offen
Baujahr
1927
Kerndaten
Bürofläche
73,2 m2
Lagerfläche
8 m2
Gesamtfläche
311 m2
Nutzfläche
164,52 m2
Gastrofläche
31.7
Bauweise / Substanz
Objektzustand
modernisiert
Verfügbarkeit
Verfügbar ab
Sofort

Preisdaten

Preis
Kaufpreis
225.000 €
Courtage
Käufercourtage
4,17 % Käuferprovision (inkl. gesetzl. MwSt.)

Merkmale

Sanitäre Einrichtung
Gäste WC
Gewerbe Merkmale
Bürofläche
73,2 m2
Stellplätze
Anzahl Stellplätze (gesamt)
12.0
Sonstiger Stellplatz
Anzahl
12.0

Energie

Energieausweis
Typ
Bedarfs­ausweis
EnEV
ab 01.05.2014 (gemäß EnEV 2014)
Energieausweis gültig bis
2030-02-04
Endenergiebedarf gemessen in kWh/(m²a)
168.10

A+ABCDEFGH

Energieeffizienz­klasse
F
Baujahr lt. Energieausweis
1927
Gebäudeart lt. Energieausweis
Nicht Wohngebäude

Umgebung

Es wurden keine Daten angegeben.

Objektbeschreibung

Urige ostfriesische Kneipe mit modernisiertem Saal und Clubraum (optional Imbissbetrieb möglich)

Dieses alt eingesessene Gastronomie-Objekt in Weener/Holthusen bietet jede Menge Potenzial. Mit ein paar Ideen kann man hier seinen Traum von einer Schank-Wirtschaft mit Saalbetrieb und einem Imbiss von heute auf morgen realisieren.

Die Möglichkeiten sind vielfältig: Der reguläre Betrieb als Kneipe (Büttenwarder lässt grüßen). Ein moderner Saalbetrieb, in dem Hochzeiten, Mottopartys, Firmen- und Familienfeiern, Trauerfeiern (Kirche und Friedhof nebenan) bis 100 Personen möglich sind. Ein separater Clubraum für Vereine. Und optional noch der Betrieb eines Imbiss, für den die Genehmigung vorliegt.

Dazu kann das gesamte Inventar mit allem Drum und Dran für 15.000 € separat erworben werden. Dazu gehören die Kneipen- und Saaleinrichtung samt Theken, Barhockern, 25 Tische, 105 Stühle, Zapf- und Kühlanlagen, DJ-Pult, Sound- und Lichtanlage und vieles mehr.

Zum Objekt gehört zudem eine 4-Zimmer-Oberwohnung von 73 qm, die 2023 komplett renoviert wurde.

Die gesamten Angaben stammen vom Eigentümer/in, sowie auch der Energieausweis wurde durch diesen beauftragt!


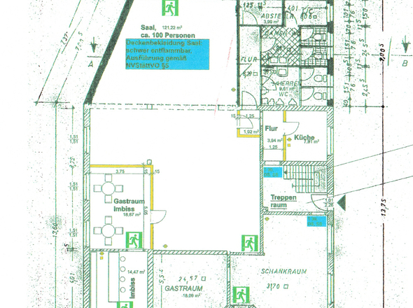
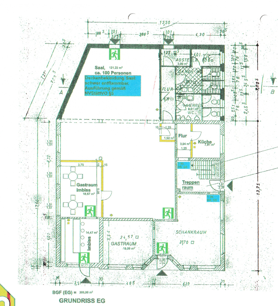
Hier nun die Raumaufteilungen:

Erdgeschoss

- Schankraum (Kneipe): ca. 31,7 m² (Gastrofläche)
- Gastraum/Clubraum: ca. 24,5 m² (Nutzfläche)
- Imbiss: ca. 14,4 m² (Nebenfläche)
- Gastraum Imbiss: ca. 18,8 m² (Nutzfläche)
- Saal (für ca. 100 Personen): ca. 121,2 m² (Nutzfläche)
- Küche: ca. 7,9 m² (Nebenfläche)
- Flur: ca. 5,8 m² (Nebenfläche)
- Flur zu den Toiletten: ca. 6,2 m² (Nebenfläche)
- Abstellraum: ca. 8 m² (Lager)


Obergeschoss

- Flur: ca. 8,2 m²
- Bad: ca. 5,5 m²
- Küche: ca. 8,9 m²
- Wohnzimmer: ca. 17,1 m²
- Schlafen: ca. 7,8 m²
- Schlafen: ca. 8,9 m²
- Schlafen: ca. 16,8 m²

Gesamt: ca. 73 m²

Gesamte Flächen: ca. 311 m²

Grundstücksgröße: ca. 1640 m²

Angaben zum Energieausweis:

- Art: Bedarfsausweis
- Gültig bis: 04.02.2030
- Baujahr: 1927
- Endenergieverbrauch: 168,1 kWh (m²*a)
- Wesentlicher Energieträger: Erdgas
- Energieeffiziensklasse: F

Ausstattung

+++ Highlights +++

- gesamte Einrichtung kann zusätzlich erworben werden für 15.000,-€
- modernisiert
- insgesamt guter Zustand, man kann so loslegen!
- Gaststätte, Saalbetrieb (ca. 100 Pers.) & Imbiss direkt möglich
- Heizung aus 2015 + jährliche Wartung durch Fachbetrieb
- Elektrik bereits erneuert (im Saal alles neu 2018/2019)
- Clubraum separat
- toller Thekenbereich im Saal und Gaststätte
- Nutzungsänderung für Imbiss liegt vor
- Toiletten: Damen 2x, Herren 2x + 4 Pissoirs
- Dj-Einrichtung + Lichtanlage
- Klimaanlage in der Gaststätte
- Wohnung Dachgeschoss 2023 renoviert
- Eingangstür Gaststätte 2024
- Flachdach 2019 erneuert
- Decke im Saal ca. 2017 erneuert

Lage

Weener ist eine Kleinstadt in Ostfriesland im Nordwesten des deutschen Bundeslandes Niedersachsen. Es ist die einzige Stadt der historischen Region Rheiderland, und sie erstreckt sich linksseits der Ems. Politisch gehört Weener seit 1932 zum Landkreis Leer und war vorher die Kreisstadt des Kreises Weener, der mit dem Rheiderland nahezu flächengleich war.

Weener hat 15.215 Einwohner auf 81,24 Quadratkilometer Fläche. In der Kernstadt Weener leben mit rund 6700 Einwohnern knapp 43 % aller Weeneraner. Die Stadt ist durch Eingemeindungen im Jahr 1973 stark gewachsen. 4,4 % der Einwohner der grenznahen Stadt sind Niederländer.

Quelle: Wikipedia
Lade Orte in der Umgebung

Sonstiges

Es liegt ein Energiebedarfsausweis vor.
Dieser ist gültig bis 4.2.2030.
Endenergiebedarf beträgt 168.10 kwh/(m²*a).
Wesentlicher Energieträger der Heizung ist Erdgas leicht.
Das Baujahr des Objekts lt. Energieausweis ist 1927.
Die Energieeffizienzklasse ist F.

**** BITTE SCHICKEN SIE UNS EINE E-Mail, DAMIT WIR IHRE ANFRAGE BERÜCKSICHTIGEN KÖNNEN !!!! ****

Christian Tammen
RE/MAX Immo-Team
geprüfter Immobilienmakler IHK
nach § 34c GewO


Tel.: 04961/ 77 909-19

E-Mail: christian.tammen@remax.de
Facebook & Instagram: Immobilien Tammen

Provision: 4,17 % vom Kaufpreis inkl. MwSt.

Impressum:
Vertretungsberechtigter: Christian Tammen
Genehmigung nach § 34 c Abs. 1 1 Satz 1 Nr. 1 GewO
Berufsaufsichtsbehörde: IHK für Ostfriesland und Papenburg, Postfach 1752, 26697 Emden
USt.ID: 053/144/01890

Anbieterdaten

Christian Tammen

Ansprech­partner

Christian Tammen

Ihre Nachricht an RE/MAX Immo - Team

Ihr Ansprechpartner: Christian Tammen

Mit (*) gekennzeichnete Felder sind Pflichtangaben.