Geräumige 4-Zi.-Eigentumswohnung mit Südbalkon

Eckdaten

 Zimmer
 Wohnfl.
 Grundst.
Kaufpreis
 Zimmer
 Wohnfl.
Grundst.

Kaufpreis

Basisdaten

Objektnummer
Immopark ID
IP-307207
Objekt ID
DS-12-25-260
Adresse
Ort
78224 Singen
Fakten und Zahlen
Wohnungstyp
Etage
Vermarktungsart
Kauf
Nutzungsart
wohnen
Verkaufsstatus
offen
Baujahr
1963
Kerndaten
Wohnfläche
111 m2
Zimmer
4.0
Schlafzimmer
3.0
Badezimmer
1.0
Anzahl Stellplätze (gesamt)
1.0
Bauweise / Substanz
Objektzustand
gepflegt
Etagenanzahl der Immobilie
1

Preisdaten

Preis
Kaufpreis
298.000 €
Weitere Kosten
Hausgeld
455 €
Courtage
Käufercourtage
3,57%
inkl. MwSt.

Merkmale

Zimmer und Bereiche
Gesamtfläche
5 m2
Schlaf­zimmer
Stellplätze
Anzahl Stellplätze (gesamt)
1.0
Garage
Anzahl
1.0

Energie

Energieausweis
Typ
Verbrauchs­ausweis
EnEV
ab 01.05.2014 (gemäß EnEV 2014)
Energieausweis gültig bis
2031-02-13
Energie­verbrauchs­kennwert gemessen in kWh/(m²a)
176.00

A+ABCDEFGH

wesentlicher Energieträger
Öl
Energieeffizienz­klasse
F
Baujahr lt. Energieausweis
2021
Gebäudeart lt. Energieausweis
Wohngebäude
Heizung
Zentral­heizung
Befeuerungsart
Öl

Umgebung

Es wurden keine Daten angegeben.

Objektbeschreibung

Diese sehr geräumige Wohnung befindet sich in einem 3-Familienhaus mit einer Gewerbeeinheit in einer ruhigen Nebenstraße der Singener Südstadt. Sämtliche Geschäfte des täglichen Bedarfs sind fussläufig erreichbar und auch das Singener Zentrum ist nur 5 Minuten per Bus, Auto oder Fahrrad entfernt.

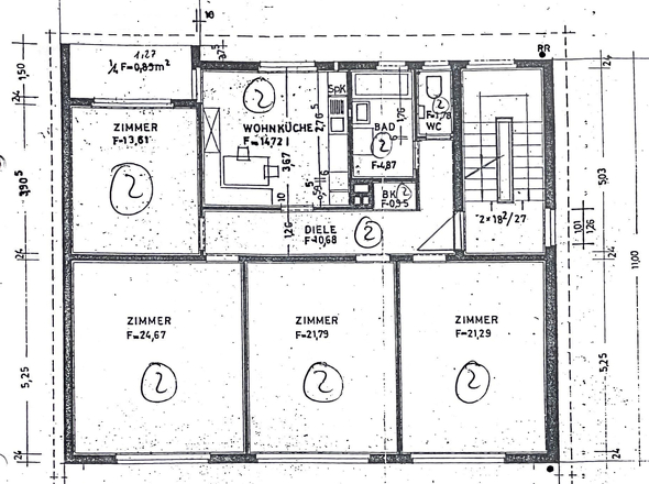
Die schöne Wohnung mit 111 m² Wohnfläche ist im 1. OG und verfügt über 3 große Schlafzimmer, 1 großes Wohn-/Esszimmer, 1 Ess-/Küche mit angrenzendem Südbalkon, 1 Bad mit Badewanne, Dusche und elektr. Fussbodenheizung, 1 separates WC, 1 Flur, 1 großen Kellerraum und 1 Garage.

Folgende Modernisierungen wurden duchgeführt:

- 2001 Kernsanierung der Wohnung inkl. Wasser- und Elektroleitungen
- 2001 Fenster und Rolladenaustausch
- 2001 Boden-, Wand- und Deckensanierung
- 2001 Sanierung der Bäder
- 2008 Neue Einbauküche
- 2021 Erneuerung der Heizung

Die Wohnung ist ab 01.07.2026 frei.
Lade Orte in der Umgebung

Anbieterdaten

Dirk Solbach

Ansprech­partner

Dirk Solbach

Ihre Nachricht an RE/MAX in Konstanz

Ihr Ansprechpartner: Dirk Solbach

Mit (*) gekennzeichnete Felder sind Pflichtangaben.