Wohn- und Geschäftshaus

Eckdaten

 Zimmer
 Wohnfl.
 Grundst.
Kaufpreis
 Zimmer
 Wohnfl.
 Grundst.

Kaufpreis

Basisdaten

Objektnummer
Immopark ID
IP-307336
Objekt ID
1111-3263-AH
Adresse
Ort
66981 Münchweiler an der Rodalb
Fakten und Zahlen
Vermarktungsart
Kauf
Nutzungsart
wohnen
Verkaufsstatus
offen
Baujahr
1954
Kerndaten
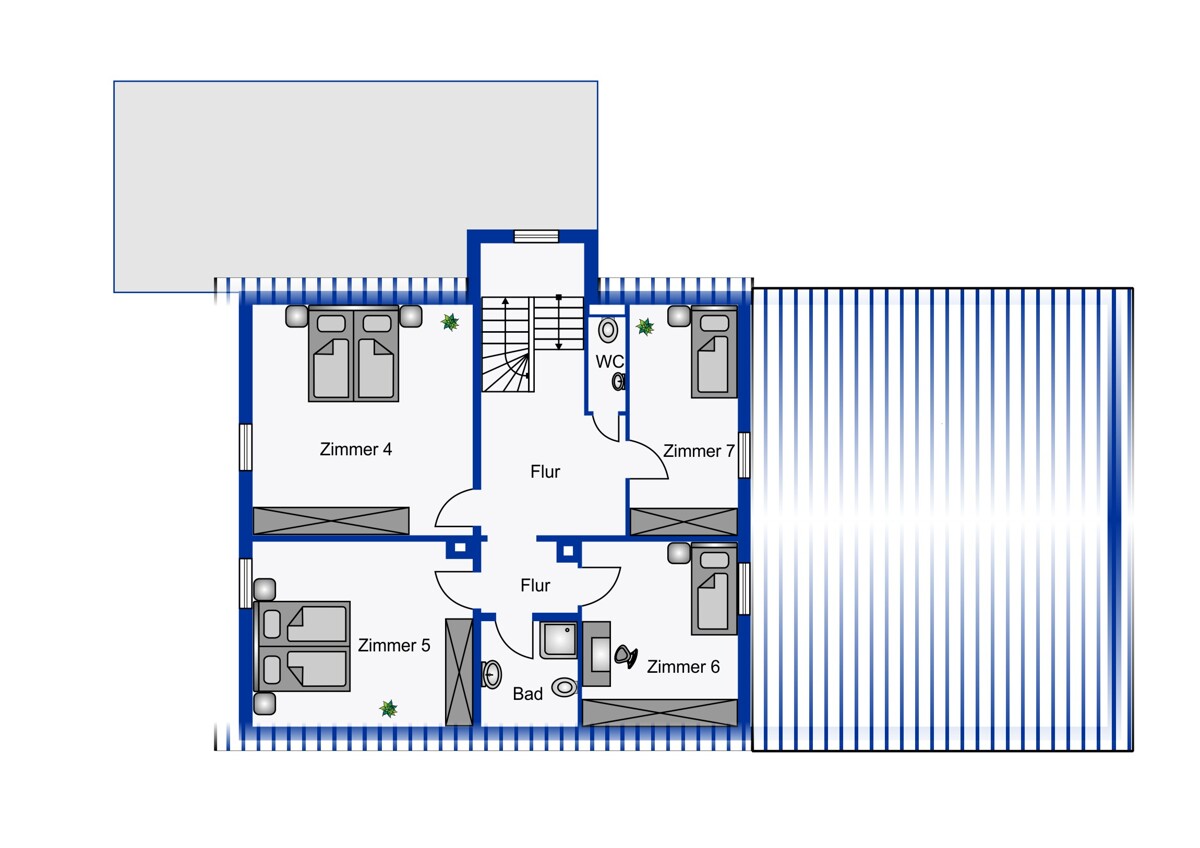
Wohnfläche
242 m2
Zimmer
12.0
separate WC
1.0
Nutzfläche
371 m2
Grundstücksfläche
557 m2
Anzahl Stellplätze (gesamt)
7.0
Bauweise / Substanz
Objektzustand
gepflegt
Etagenanzahl der Immobilie
3

Preisdaten

Preis
Kaufpreis
198.000 €
Courtage
Käufercourtage
3,57 % inkl. MwSt

Merkmale

Zimmer und Bereiche
Anzahl (Terrassen)
1.0
Abstell­raum
Sanitäre Einrichtung
Gäste WC
Einliegerwohnung
Einlieger­wohnung
Stellplätze
Anzahl Stellplätze (gesamt)
7.0
Freiplatz
Anzahl
6.0
Garage
Anzahl
1.0

Energie

Energieausweis
Typ
Bedarfs­ausweis
EnEV
ab 01.05.2014 (gemäß EnEV 2014)
Energieausweis gültig bis
2034-08-01
Endenergiebedarf gemessen in kWh/(m²a)
502.00

A+ABCDEFGH

wesentlicher Energieträger
Gas
Energieeffizienz­klasse
H
Baujahr lt. Energieausweis
1999
Gebäudeart lt. Energieausweis
Wohngebäude
Befeuerungsart
Gas

Umgebung

Es wurden keine Daten angegeben.

Objektbeschreibung

Diese vielseitig nutzbare Immobilie besteht aus einer ehemaligen Gaststätte (Baujahr 1954) mit Fremdenzimmern und separater Wohnung im Obergeschoss. Der Anbau wurde zu weiteren Wohnzwecken 1983 errichtet, insgesamt haben wir eine Wohnfläche von ca. 242 m². Die zwei Häuser stehen auf einem ca. 557 m² großen Grundstück mit
6 Stellplätzen und einer Doppelgarage.
Gewerbefläche ca. 235 m².
Sind aber bereits nach WEG geteilt.
Hier vereinen sich Wohnen und Arbeiten unter einem Dach.
Diese Flexibilität macht die Immobilie besonders attraktiv für Selbstständige, Unternehmer oder als Mehrgenerationenhaus.

Ausstattung

- Doppelgarage
- 6 Stellplätze
- Terrasse
- Einbauküche
- Vollunterkellert
- Fremdenzimmer
- Gaststätte

Lage

Diese Wohn- und Geschäftsimmobilie in Münchweiler an der Rodalb bietet eine ideale Lage für all jene, die Wert auf eine gute Infrastruktur und eine ruhige Umgebung legen.
Die Anbindung an den öffentlichen Nahverkehr ist hervorragend, mit einer Bushaltestelle nur wenige Schritte entfernt und dem Bahnhof Münchweiler (Rodalb) in fußläufiger Entfernung.
Für Autofahrer ist die nächste Autobahnauffahrt in etwa 10 km erreichbar, was eine schnelle Verbindung zu umliegenden Städen ermöglicht.
Die Umgebung der Immobilie bietet zahlreiche Freizeitmöglichkeiten, die zu Spaziergängen und Erholung einladen.
Auch die medizinische Versorgung ist gesichert, mit mehreren Arztpraxen und dem St. Elisabeth-Krankenhaus in der Nähe.
Die Wohnlage ist besonders für Familien attraktiv, da sie eine hohe Eigentümerquote und großzügige Wohnfläche bietet.
Die ruhige und dennoch gut angebundene Lage macht diese Immobilie zu einem idealen Zuhause für alle, die eine harmonische Balance zwischen Stadtleben und Natur suchen.
Lade Orte in der Umgebung

Anbieterdaten

Alfred Hehr

Ansprech­partner

Alfred Hehr

Ihre Nachricht an RE/MAX Classic Ludwigshafen - N. H. Immobilien Vertriebs GmbH

Ihr Ansprechpartner: Alfred Hehr

Mit (*) gekennzeichnete Felder sind Pflichtangaben.