Exklusives Anwesen mit Wellnessbereich – Wohnen, Arbeiten und Entspannen
Eingangsbereich mit SüdbalkonHaupthaus OstseiteAnsicht AnbauHintere Gesamtansicht Carportanlage mit elektrischem HoftorSüdterrasseIndividuelle KücheKochinselBalkon vor der KücheSpindeltreppe verbindet EG und DGKüchezeile DG Zimmer 3 - DG Balkon vorm SchlafzimmerZimmer 4 - DGRuhezone im SchwimmbadWC im SchwimmbadSchwimmbeckenTerrasse am PoolhausWärmepumpenanlagePhotovoltaik-Anlage-SpeicherLagekarteHaupthaus - ErdgeschossAnbau - ErdgeschossHaupthaus - DachgeschossAnbau - DachgeschossKellergeschoss im HaupthausHaupthaus Südseite
Eckdaten
Zimmer
Wohnfl.
Grundst.
Kaufpreis
Zimmer
Wohnfl.
Grundst.
1384000.0€ Kaufpreis
Basisdaten
Objektnummer
Immopark ID
IP-307380
Objekt ID
5067
Adresse
22946 Trittau
Ort
22946 Trittau
Fakten und Zahlen
Haustyp
Einfamilienhaus
Vermarktungsart
Kauf
Nutzungsart
wohnen
Verkaufsstatus
offen
Baujahr
1973
Kerndaten
Wohnfläche
390 m2
Zimmer
7.0
Badezimmer
2.0
separate WC
3.0
Nutzfläche
163 m2
Grundstücksfläche
1.547 m2
Verfügbarkeit
Verfügbar ab
August 2026
Preisdaten
Preis
Kaufpreis
1.384.000 €
Merkmale
Zimmer und Bereiche
Typ
Teilweise unterkellert
Anzahl (Balkone)
2.0
Anzahl (Terrassen)
3.0
Ausstattung und Technik
Qualität der Ausstattung
gehoben
Küche
Offene Küche
Weitere Ausstattung
Kamin
Wellness
Wellness Merkmale
Sauna
Wellness Merkmale
Swimming-Pool
Energie
Energieausweis
Typ
Bedarfsausweis
EnEV
ab 01.05.2014 (gemäß EnEV 2014)
Energieausweis gültig bis
2036-01-26
Endenergiebedarf gemessen in kWh/(m²a)
121.00
A+ABCDEFGH
Energieeffizienzklasse
D
Baujahr lt. Energieausweis
1973
Gebäudeart lt. Energieausweis
Wohngebäude
Heizung
Heizungsart
Fußbodenheizung
Befeuerungsart
Befeuerungsart
Gas
Befeuerungsart
Erdwärme
Umgebung
Es wurden keine Daten angegeben.
Objektbeschreibung
Sie suchen das Außergewöhnliche und möchten jeden Tag ein besonderes Wohnerlebnis genießen?
Dieses einzigartige Anwesen vereint luxuriöses Wohnen mit perfekter Work-Life-Balance und bietet Ihnen Raum für Familie, Rückzug, Entspannung und professionelles Arbeiten unter einem Dach. Auf ca. 390 m² Wohnfläche, verteilt auf sieben großzügige Zimmer, erleben Sie ein individuelles Wohnkonzept mit Wellnessbereich inklusive Schwimmbecken und Sauna, zwei Küchen, zwei Bädern, zwei Balkonen sowie weiteren Neben- und Nutzflächen. Dieses Einfamilienhaus eröffnet vielseitige Möglichkeiten – vom repräsentativen Wohnen bis hin zum Homeoffice auf hohem Niveau.
Hinter dem zunächst zurückhaltenden Zugang über die Carportanlage offenbart sich ein beeindruckendes Anwesen, das ursprünglich im Jahr 1973 mit Nebengebäude errichtet wurde. Das Haus steht auf insgesamt vier Grundstücken in leichter Hanglage und fügt sich harmonisch in die umliegenden Grünflächen ein. Über die Jahre wurde die Immobilie stets an die Lebenssituation der Bewohner angepasst.
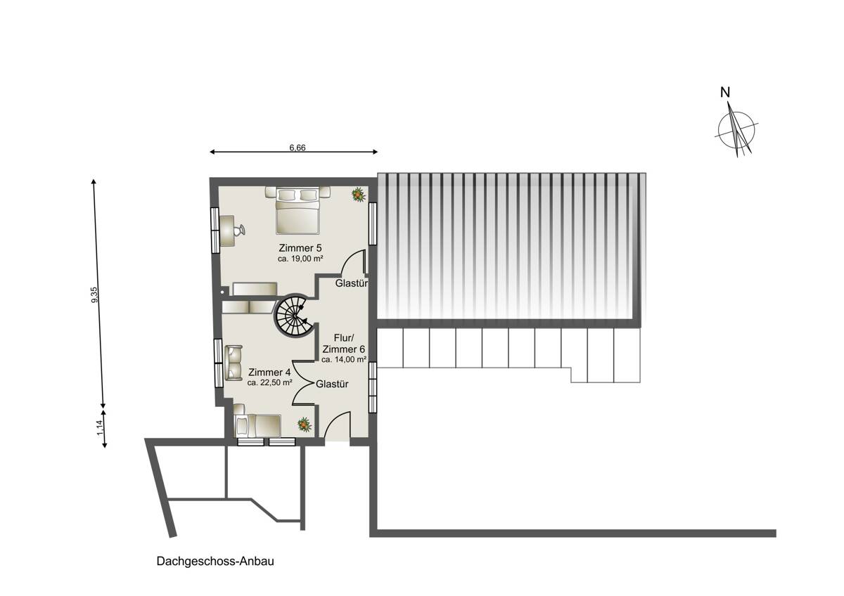
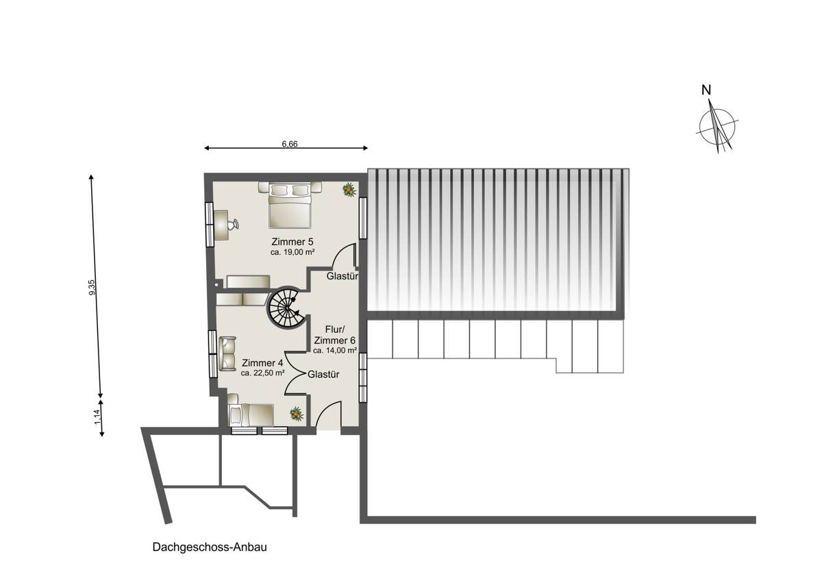
Im Jahr 1998 erfolgte der Ausbau des Dachgeschosses inklusive zusätzlicher Gauben, wodurch ein lichtdurchflutetes und weitläufiges Raumgefühl entstand. Auf dem Nebengebäude wurde ein Aufbau im Schwedenhausstil realisiert. Hier entstanden ein geräumiges Schlafzimmer mit Ankleide sowie ein Bad en Suite, die das Dachgeschoss hochwertig ergänzen. Aktuell bietet diese Etage fünf Zimmer, zwei Bäder und eine Küche. Der großzügige Wohnbereich mit Kaminofen und offener Küche wird von großflächigen Fensterfronten auf drei Seiten umgeben und vermittelt eine besondere Atmosphäre von Weite und Behaglichkeit. Eine elegante Spindeltreppe verbindet das Dachgeschoss mit dem Erdgeschoss des Haupthauses.
Das Erdgeschoss des Haupthauses wurde im Jahr 2016 umfassend modernisiert. Der Grundriss präsentiert sich offen, modern und lichtdurchflutet. Eine Fußbodenheizung sorgt für höchsten Wohnkomfort, ebenso wie die exklusive, maßgefertigte Küche mit Kochinsel. Ausgestattet mit einem BORA-Kochfeld mit integrierter Abluft, einem großen Standkühlschrank mit Eiswürfelbereiter und hochwertigen Einbaugeräten erfüllt sie höchste Ansprüche. Der angrenzende Balkon sowie die Südterrasse mit Außenkamin laden zu entspannten Stunden und stilvollen Abenden ein.
Ein besonderes Highlight ist der großzügige Anbau aus dem Jahr 2014. Hier befindet sich im Erdgeschoss der exklusive Wellnessbereich mit Schwimmbad und Sauna, während im Dachgeschoss zwei ruhige Büroräume untergebracht sind – ideal für konzentriertes Arbeiten. Auch hier verbindet eine Spindeltreppe die Ebenen.
Das Anwesen verfügt über eine großzügige Photovoltaikanlage zur Eigenstromversorgung. Zwei separate Heizkreisläufe gewährleisten effiziente und bedarfsgerechte Wärmeversorgung:
– Das Haupthaus wird über eine Gas-Brennwerttherme (2016) beheizt – Der Anbau mit Schwimmbad über eine Erd-Wärmepumpe (2014)
Mit Ausnahme des Dachgeschosses im Haupthaus und des Hauswirtschaftsraumes im Erdgeschoss werden sämtliche Räume sowie das Schwimmbad über Fußbodenheizung beheizt.
Dieses außergewöhnliche Anwesen verbindet luxuriösen Wohnkomfort, moderne Technik und eine einzigartige Raumstruktur zu einem Zuhause der Extraklasse – ideal für anspruchsvolle Käufer, die Wohnen, Arbeiten und Entspannung harmonisch vereinen möchten.
Ausstattung
Sonstige Ausstattungsmerkmale •Doppel-Carportanlage mit integriertem Fahrradschuppen •Garage für zwei Fahrzeuge •Garten-Gerätehaus •Viktorianisches Metall-Gewächshaus •Schornsteinverkleidung und Abgasrohr erneuert (2016) •Zwei elektrisches Hoftore
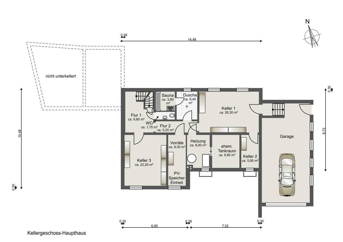
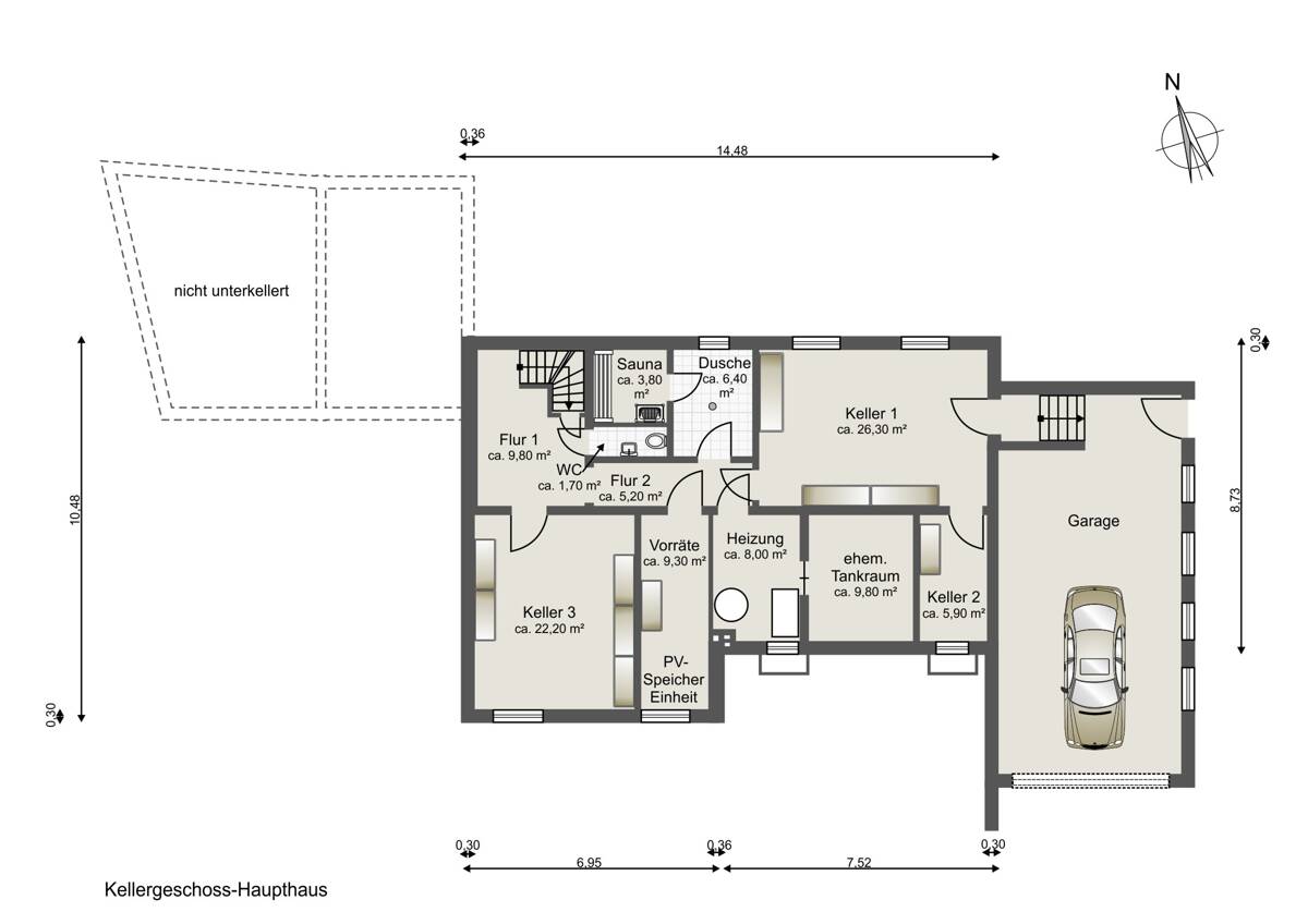
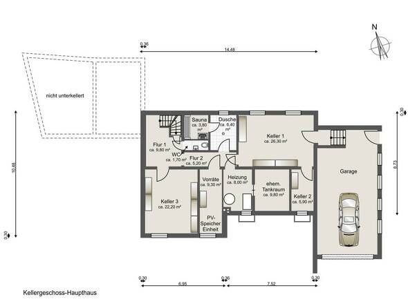
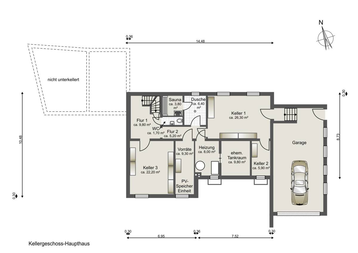
Kellergeschoss •Gäste-WC sowie separater Duschbereich •Sauna •Großzügiges Souterrain-Zimmer •Vielseitig nutzbarer Partyraum •Direkter Zugang zur Garage •Gas-Zentralheizung mit moderner Brennwerttherme
Haupthaus – Erdgeschoss •Großzügiger, offen gestalteter Wohn-, Ess- und Kochbereich •Fußbodenheizung im gesamten Erdgeschoss •Zeitlos-moderne Fliesenböden •Neue Innentüren sowie Holzfenster mit 3-fach-Verglasung •Hochwertige Küche mit Kochinsel und Bora-Kochfeld und neuwertigem Standkühlschrank mit Eiswürfelbereiter •Südbalkon direkt vor der Küche •Hochwertiger, schwenkbarer Kaminofen im Wohn- und Essbereich •Zugang vom Wohnbereich zu zwei Terrassen, beide mit Douglasien-Holzdielen ausgestattet •Südterrasse mit Außenkamin und Edelstahlgeländer •Separater Hauswirtschaftsraum •Erneuerte Elektrik •Großzügige Empfangsdiele direktem Zugang zum rückwärtigen Garten •Gäste-WC
Haupthaus – Dachgeschoss •Offene Küchenzeile •Wohnbereich mit Spindeltreppe zum Erdgeschoss •Kaminofen •Gäste-Badezimmer mit Dachfenster (derzeit ohne Dusche) •Teppichböden in den Wohnräumen •Schlafzimmer mit separater Ankleide und En-Suite-Vollbad •Südbalkon vor dem Schlafzimmer •Dielenboden in der Dachgeschosserweiterung •Sämtliche Fenster mit 3-fach-Verglasung
Anbau – Wellness- & Arbeitsbereich •Schwimmbecken mit Gegenstromanlage und integriertem Whirlpool •Reinigungsroboter zur Oberflächen- und Beckenwandreinigung •Elektrische Schwimmbadabdeckung •Sauna •Gäste-WC •Separater Duschbereich •Ruhe- oder Fitnessbereich •Spindeltreppe mit Zugang zum Dachgeschoss
Lage
Die Immobilie befindet sich in Trittau Süd, einer attraktiven Wohnlage der Gemeinde Trittau im Kreis Stormarn, Schleswig-Holstein. Trittau ist eine charmante Kleinstadt und liegt rund 30 km östlich von Hamburg. Die Gemeinde bietet eine sehr gute Infrastruktur mit Geschäften für den täglichen Bedarf, Kindergärten, Schulen sowie vielfältigen sozialen und kulturellen Einrichtungen.
Die Verkehrsanbindung ist als sehr gut zu bezeichnen. Über die nahegelegene B404 besteht eine schnelle Anbindung an die A24 (Hamburg–Berlin), wodurch Hamburg sowie das überregionale Straßennetz zügig erreichbar sind. Darüber hinaus ist Trittau in den Großbereich des Hamburger Verkehrsverbundes (HVV) eingebunden. Bushaltestellen befinden sich in fußläufiger Entfernung und gewährleisten eine gute Anbindung an den öffentlichen Nahverkehr.
Die Immobilie liegt in einem ruhigen Wohngebiet mit hohem Erholungswert. Das nahegelegene Billetal sowie der angrenzende Hanheider Forst mit Naturlehrpfad und Aussichtsplattform bieten vielfältige Freizeit- und Naherholungsmöglichkeiten. Ergänzt wird das Angebot durch weitere Attraktionen wie die historische Wassermühle Trittau sowie ein im Ort gelegenes, teilweise beheiztes Freibad.
Insgesamt zeichnet sich die Lage durch eine gelungene Kombination aus naturnahem Wohnen und guter Anbindung an die Metropolregion Hamburg aus.
Lade Orte in der Umgebung
Sonstiges
HINWEIS: Sämtliche Informationen zu diesem Immobilien-Angebot sind ausschließlich für den Anfrager/ Kaufinteressenten bestimmt. Diesem ist ausdrücklich untersagt, die Objektinformationen ohne ausdrückliche Zustimmung von m² Immobilien an Dritte weiterzugeben. Verstößt der Kunde hiergegen, und schließt der Dritte oder eine andere Person, an die der Dritte seinerseits die Information weitergegeben hat, den Hauptvertrag ohne m² Immobilien ab, so ist der Kunde verpflichtet, m² Immobilien die vertraglich vereinbarte Maklerprovision zu entrichten.
Unsere Angebote sind freibleibend. Zwischenverkauf oder -vermietung, Irrtum und Auslassungen bleiben vorbehalten. Mit dieser Immobilienanfrage erklärt sich der Interessent einverstanden, dass M-Quadrat-Immobilien Segeberg ihn bzgl. dieses und weiterer Angebote telefonisch, schriftlich oder per E-Mail-Kontakt erfasst und informiert.