Interessante Chance für Sie als Kapitalanleger in Zell: MFH mit 6 Einheiten im Zentrum

Eckdaten

 Zimmer
 Wohnfl.
 Grundst.
Kaufpreis
 Zimmer
 Wohnfl.
 Grundst.

Kaufpreis

Basisdaten

Objektnummer
Immopark ID
IP-307492
Objekt ID
1067-744-1-AM
Adresse
Ort
79669 Zell im Wiesental
Fakten und Zahlen
Haustyp
Mehr­familien­haus
Vermarktungsart
Kauf
Nutzungsart
wohnen
Verkaufsstatus
offen
Baujahr
1883
Kerndaten
Wohnfläche
408 m2
Zimmer
15.0
Schlafzimmer
10.0
Badezimmer
5.0
separate WC
4.0
Gesamtfläche
448 m2
Nutzfläche
39 m2
Vermietbare Fläche
448 m2
Grundstücksfläche
228 m2
Bauweise / Substanz
Objektzustand
modernisiert
Letzte Renovierung
2011
Einrichtungszustand
Teilweise möbliert
Etagenanzahl der Immobilie
4
Wohneinheiten
5.0

Preisdaten

Preis
Kaufpreis
590.000 €
Courtage
provisionspflichtig
Käufercourtage
3,57 % inkl. gesetzl. MwSt. (19%)
inkl. MwSt.
Mieteinnahmen
Mieteinnahmen Soll
367.200 €
pro Jahr

Merkmale

Zimmer und Bereiche
Voll unterkellert
Schlaf­zimmer
Ausstattung und Technik
Qualität der Ausstattung
standard
Sanitäre Einrichtung
Gäste WC

Energie

Energieausweis
Typ
Bedarfs­ausweis
EnEV
ab 01.05.2014 (gemäß EnEV 2014)
Energieausweis gültig bis
2028-06-27
Endenergiebedarf gemessen in kWh/(m²a)
210.00

A+ABCDEFGH

Energieeffizienz­klasse
D
Baujahr lt. Energieausweis
2002
Gebäudeart lt. Energieausweis
Wohngebäude
Heizung
Etagen­heizung
Befeuerungsart
Gas

Umgebung

Es wurden keine Daten angegeben.

Objektbeschreibung

Objektbeschreibung:
Dieses charmante Mehrfamilienhaus wurde im Jahr 1883 in solider Massivbauweise mit Holzbalkendecken und einem Satteldach errichtet. Es besticht durch seinen historischen Charakter und verfügt über einen beeindruckenden Gewölbekeller. Im Zeitraum von 2003 bis 2007 wurden umfangreiche Sanierungs- und Modernisierungsarbeiten durchgeführt, die das Gebäude in einen zeitgemäßen Zustand versetzten.

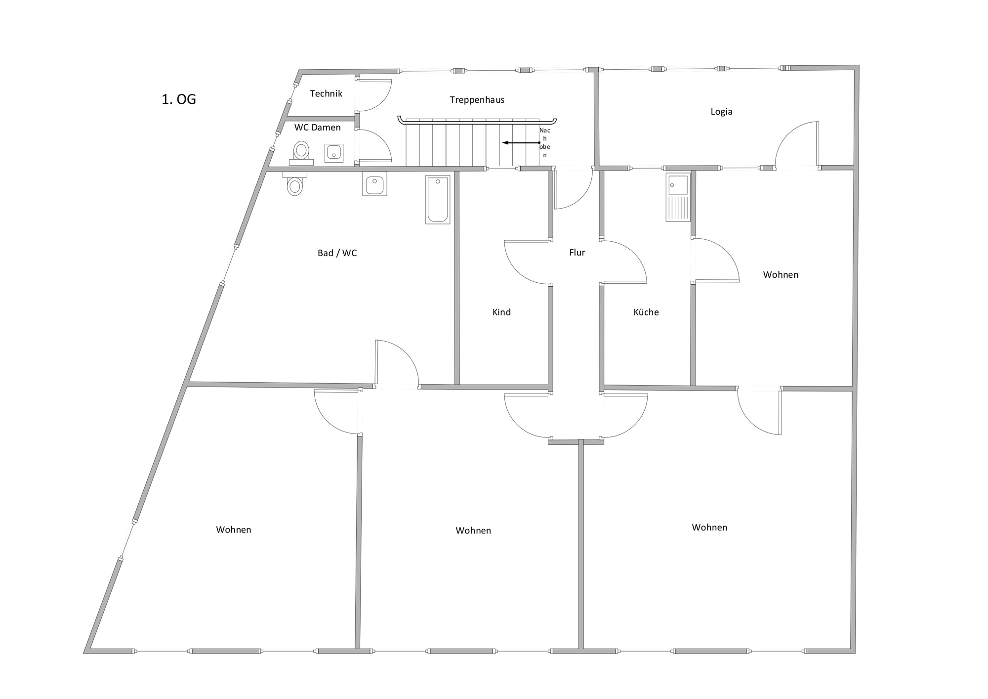
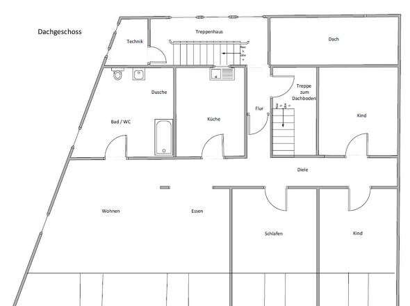
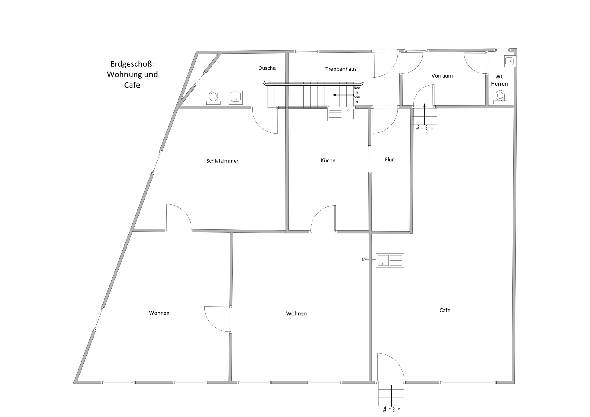
Das Haus umfasst auf drei ausgebauten Ebenen insgesamt fünf Wohneinheiten sowie ein kleines Büro/Gastronomie. Der Dachboden bietet allen Mietern praktische Abstellkammern. Sämtliche Wohnungen wurden im Zuge der Sanierung modern gestaltet, mit Laminatböden ausgestattet und erhielten eine neue Elektro- sowie Sanitärinstallation.

Besondere Merkmale:

Grundstück: 228 m² (belastet mit einem Durchfahrtsrecht)
Wohnfläche: 437 m² (voll vermietet)
Baujahr: 1883
Sanierungen: 2003-2007 (neue Dachdeckung, Kunststofffenster, modernisierte Bäder, erneuerte Elektrik und Installation, Gas-Etagenheizungen für jede Wohnung)
Heizung: 5 separate Gasthermen, zentral für jede Wohneinheit
Einnahmen: Jahresnettokaltmiete ca. 32.600 €
Denkmalschutz: Laut Auftraggeber kein Denkmalschutz

Bauweise und Ausstattung:
Fundamente: Massivbau, Bruchstein
Keller: Bruchsteinmauerwerk, beeindruckender Gewölbekeller
Geschossdecken: Holzbalkendecken
Fenster: Moderne Kunststofffenster
Treppen: Holztreppen mit einfachem Holzgeländer
Wasser- und Abwasser: Anschluss an das öffentliche Trinkwassernetz, Ableitung ins kommunale Abwassernetz

Warmwasser: Zentral über Heizung oder Boiler

Lage:
Das Gebäude befindet sich in Zell im Wiesental, einer idyllischen Stadt im südlichen Schwarzwald. Die zentrale Lage bietet eine hervorragende Anbindung an Einkaufsmöglichkeiten, Schulen, Kindergärten und öffentliche Verkehrsmittel.

Zusammenfassung:
Dieses gepflegte und vollständig vermietete Mehrfamilienhaus vereint historischen Charme mit modernen Annehmlichkeiten. Die regelmäßigen Mieteinnahmen von ca. 32.600 € p.a. machen es zu einer attraktiven Investitionsmöglichkeit.

Kaufpreis: 590.000,-€ zzgl. 3,57% Käuferprovision

Kontaktieren Sie uns gerne für weitere Informationen oder einen Besichtigungstermin!

Hinweis: Alle Angaben basieren auf Informationen des Eigentümers und sind ohne Gewähr.
Lade Orte in der Umgebung

Anbieterdaten

Alexander Maier

Ansprech­partner

Alexander Maier

Ihre Nachricht an RE/MAX Immobilienmakler Lörrach

Ihr Ansprechpartner: Alexander Maier

Mit (*) gekennzeichnete Felder sind Pflichtangaben.