Renovierungsbedürftiges 1-Zimmer-Apartment mit Balkon – viel Raum für eigene Ideen

Eckdaten

 Zimmer
 Wohnfl.
 Grundst.
Kaufpreis
 Zimmer
 Wohnfl.
Grundst.

Kaufpreis

Basisdaten

Objektnummer
Immopark ID
IP-307673
Objekt ID
1065-4714-RKL
Adresse
Ort
81475 München
Fakten und Zahlen
Wohnungstyp
Etage
Vermarktungsart
Kauf
Nutzungsart
wohnen
Verkaufsstatus
offen
Baujahr
1966
Kerndaten
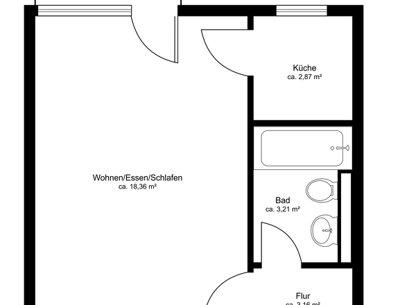
Wohnfläche
29,65 m2
Zimmer
1.0
Schlafzimmer
1.0
Badezimmer
1.0
Nutzfläche
2,04 m2
Lage im Gebäude
Etage
3

Preisdaten

Preis
Kaufpreis
180.000 €
Kaufpreis pro Quadratmeter
6.070,83 €
Weitere Kosten
Hausgeld
186,86 €
Courtage
Käufercourtage
3,57 % inkl. ges. MwSt.
inkl. MwSt.

Merkmale

Zimmer und Bereiche
Gesamtfläche
4,08 m2
Schlaf­zimmer
Fahrrad­raum

Energie

Energieausweis
Typ
Verbrauchs­ausweis
EnEV
ab 01.05.2014 (gemäß EnEV 2014)
Energieausweis gültig bis
2028-10-10
Energie­verbrauchs­kennwert gemessen in kWh/(m²a)
189.80

A+ABCDEFGH

Energieeffizienz­klasse
F
Baujahr lt. Energieausweis
1966
Gebäudeart lt. Energieausweis
Wohngebäude
Heizung
Fern­heizung
Befeuerungsart
Fernwärme

Umgebung

Es wurden keine Daten angegeben.

Objektbeschreibung

Dieses Einzimmer-Apartment in einem gepflegten Wohnkomplex in Fürstenried West bietet eine ideale Grundlage für alle, die ein individuelles Wohnprojekt oder eine durchdachte Kapitalanlage realisieren möchten. In der Vergangenheit als Atelier eines Künstlers genutzt, eröffnet die Wohnung heute vielfältige Möglichkeiten, den Raum ganz nach den eigenen Vorstellungen neu zu interpretieren.

Der kreative Ursprung der Wohnung macht sie besonders: Sie ist keine standardisierte Lösung, sondern eine Leinwand für neue Ideen. Ob zur Eigennutzung oder als Investment – hier können Sie ein Konzept umsetzen, das genau zu Ihren Anforderungen passt.

Die Wohnung befindet sich in einem renovierungsbedürftigen Zustand; eine Küche ist derzeit nicht vorhanden. Dieser Zustand eröffnet jedoch maximale Freiheit bei der individuellen Planung und Gestaltung. Der praktisch geschnittene Wohnraum bietet sehr gute Voraussetzungen, um im Zuge einer Renovierung ein modernes, funktionales und wertstabiles Apartment nach eigenen Vorstellungen zu realisieren.

Der Wohnbereich öffnet sich zum Balkon mit Ostausrichtung, der die Wohnung mit angenehmem Morgenlicht versorgt und den Wohnraum sinnvoll ergänzt.

Die Wohnung ist bequem über einen Aufzug erreichbar. Ergänzt wird das Angebot durch ein eigenes Kellerabteil, einen gemeinschaftlichen Wasch- und Trockenraum mit gemeinschaftlich genutzten Waschmaschinen sowie einen separaten Fahrradabstellraum, die zusätzlichen Komfort im Alltag bieten.

Ein ehrliches Apartment mit Substanz, Gestaltungsspielraum und klarer Perspektive – ideal für Käufer mit Blick für Potenzial. Überzeugen Sie sich selbst bei einer persönlichen Besichtigung von den Möglichkeiten, die dieses Apartment bietet – wir freuen uns auf Ihre Anfrage.

Ausstattung

- Personenaufzug
- Geräumiger Balkon in Ostausrichtung
- Rollläden
- Kellerabteil
- Gemeinschaftlicher Wasch- und Trockenraum
- Fahrradabstellraum
- Sanierungen am Haus: 2015 Balkone, 1990 Dachsanierung mit Dämmung, 1991 Aufzüge

Lage

Fürstenried West ist ein Wohnviertel im Südwesten Münchens, das eine gelungene Mischung aus urbanem Leben und Naturnähe bietet. Der angrenzende Forstenrieder Park ist ideal für Spaziergänge, sportliche Aktivitäten und Erholung im Grünen.

Die gute Anbindung an die A95, den Mittleren Ring und den öffentlichen Nahverkehr macht es leicht, in kurzer Zeit das Stadtzentrum und andere Ziele in und um München zu erreichen. Der Starnberger See, ein beliebtes Ziel für Ausflüge, ist ebenfalls in kurzer Zeit mit dem Auto oder Fahrrad erreichbar. Mit dem Auto in nur 15 und mit dem Fahrrad in nur 45 Minuten erreichen Sie den traumhaft schönen Starnberger See.

Die Wohnung überzeugt neben ihrer attraktiven Lage auch durch eine gute und zeitgemäße Nahversorgung. In unmittelbarer Nähe befindet sich ein kürzlich eröffnetes Einkaufszentrum, das mehrere Supermärkte sowie weitere Angebote für den täglichen Bedarf vereint. Dadurch lassen sich Einkäufe bequem und fußläufig erledigen, was den Alltag deutlich erleichtert und den Wohnkomfort spürbar erhöht.
Lade Orte in der Umgebung

Sonstiges

Alle Angaben sind freibleibend, unverbindlich, ohne Gewähr und basieren auf Informationen, die uns von unserem Auftraggeber mitgeteilt wurden. Wir übernehmen keine Gewähr für Vollständigkeit, Richtigkeit und Aktualität. Zwischenvermittlung bleibt vorbehalten.

Sollte Ihnen die von uns nachgewiesene Immobilie bereits bekannt sein, teilen Sie uns dieses bitte unverzüglich mit. Die Weitergabe dieses Exposees an Dritte ohne unsere Zustimmung löst gegebenenfalls Schadensersatzansprüche aus.

Wir weisen Sie darauf hin, dass unsere Tätigkeit im Erfolgsfall eine Vermittlungs- und/oder Nachweisprovision nach sich zieht. Bei Verkauf beträgt die Provision 3,57 % inkl. 19 % MwSt. des notariell beurkundeten Kaufpreises. Der Immobilienmakler hat einen provisionspflichtigen Maklervertrag mit dem Verkäufer in gleicher Höhe abgeschlossen.

Laut vorliegendem Energieausweis ist das Baujahr des Gebäudes 1966.

Mindestangebotspreis: 180.000 €

Haben Sie Fragen zum Ablauf des Angebotsverfahrens? Wir erklären Ihnen den Prozess gerne - Kontaktieren Sie uns.

Exposé Stand: 05.01.2025 – Änderungen vorbehalten.

Anbieterdaten

Regina Kletter

Ansprech­partner

Regina Kletter

Ihre Nachricht an RE/MAX Living / MDV Consult GmbH

Ihr Ansprechpartner: Regina Kletter

Mit (*) gekennzeichnete Felder sind Pflichtangaben.