Top Kapitalanlage: Modernisiertes Mehrfamilienhaus mit 3 Einheiten
BildHausansicht-EingangFrontansichtEingang in TreppenhausHausflur Wohnzimmer Richtung Küche EGDuschbad EGToilette EGAbstellraumFlurBadezimmer OGEssbereicht Richtung Küche IOGTreppenaufgang MaisonettewohnungFlur MaisonettewohnungTreppe MaisonettewohnungBadezimmer MaisonettewohnungGäste-WC MaisonettewohnungSchlafraum MaisonettewohnungWohn-Küche DGEinbauküche mit Kochinsel MaisonettewohnungWohnung Küche Richtung Essbereich MaisonettewohnungTreppe ins Schlafzimmer MaisonettewohnungDachterrasseSchlafzimmer MaisonettewohnungDachterrasseDachterrasseDachterrasse bei DunkelheitHausansicht InnenhofFenstere4c2a0cb-2329-434b-bb11-c6bea38782d4Erdgeschoss1. Obergeschoss2. ObergeschossDachgeschossSpitzbodenOffener Wohn-Koch-Bereich EG
Eckdaten
Zimmer
Wohnfl.
Grundst.
Kaufpreis
Zimmer
Wohnfl.
Grundst.
699000.0€ Kaufpreis
Basisdaten
Objektnummer
Immopark ID
IP-307696
Objekt ID
FALC-SL-79544
Adresse
42655 Solingen
Ort
42655 Solingen
Fakten und Zahlen
Renditeobjekt Typ
Mehrfamilienhaus
Vermarktungsart
Kauf
Nutzungsart
Anlage
Baujahr
1902
Kerndaten
Wohnfläche
277 m2
Zimmer
10.0
Badezimmer
3.0
Gesamtfläche
365,35 m2
Bauweise / Substanz
Objektzustand
modernisiert
Letzte Renovierung
2025
Etagenanzahl der Immobilie
4
Wohneinheiten
3.0
Preisdaten
Preis
Kaufpreis
699.000 €
Kaufpreis bezogen auf Jahresmiete (X-fache)
18.85
Courtage
Provisionspflichtig /provisionsfrei
provisionspflichtig
Käufercourtage
3.57 % inkl. 19 % gesetzl. MwSt.
Mieteinnahmen
aktuelle Mieteinnahmen
37.084,04 €
Mieteinnahmen Soll
37.084,04 €
Renditeobjekt
Nettorendite Soll
5.31
Nettorendite Ist
5.31
Merkmale
Zimmer und Bereiche
Typ
Voll unterkellert
Anzahl (Balkone)
1.0
Zimmer und Räume
Abstellraum
Ausstattung und Technik
Qualität der Ausstattung
gehoben
Küche
Einbauküche
Böden
Fliesenboden
Böden
Parkettboden
Sanitäre Einrichtung
Sanitäre Einrichtung
Fenster
Sanitäre Einrichtung
Dusche
Sanitäre Einrichtung
Wanne
Sanitäre Einrichtung
Gäste WC
Stellplätze
Anzahl Stellplätze (gesamt)
1.0
Stellplatzdetails
Carport
Anzahl
1.0
Kaufpreis
50 €
Energie
Energieausweis
Typ
Bedarfsausweis
EnEV
ab 01.05.2014 (gemäß EnEV 2014)
Energieausweis gültig bis
20.09.2031
Endenergiebedarf gemessen in kWh/(m²a)
136
A+ABCDEFGH
Energieeffizienzklasse
E
Ausstelldatum
21.09.2021
Gebäudeart lt. Energieausweis
Wohngebäude
Heizung
Heizungsart
Zentralheizung
Befeuerungsart
Befeuerungsart
Pellets
Umgebung
Es wurden keine Daten angegeben.
Objektbeschreibung
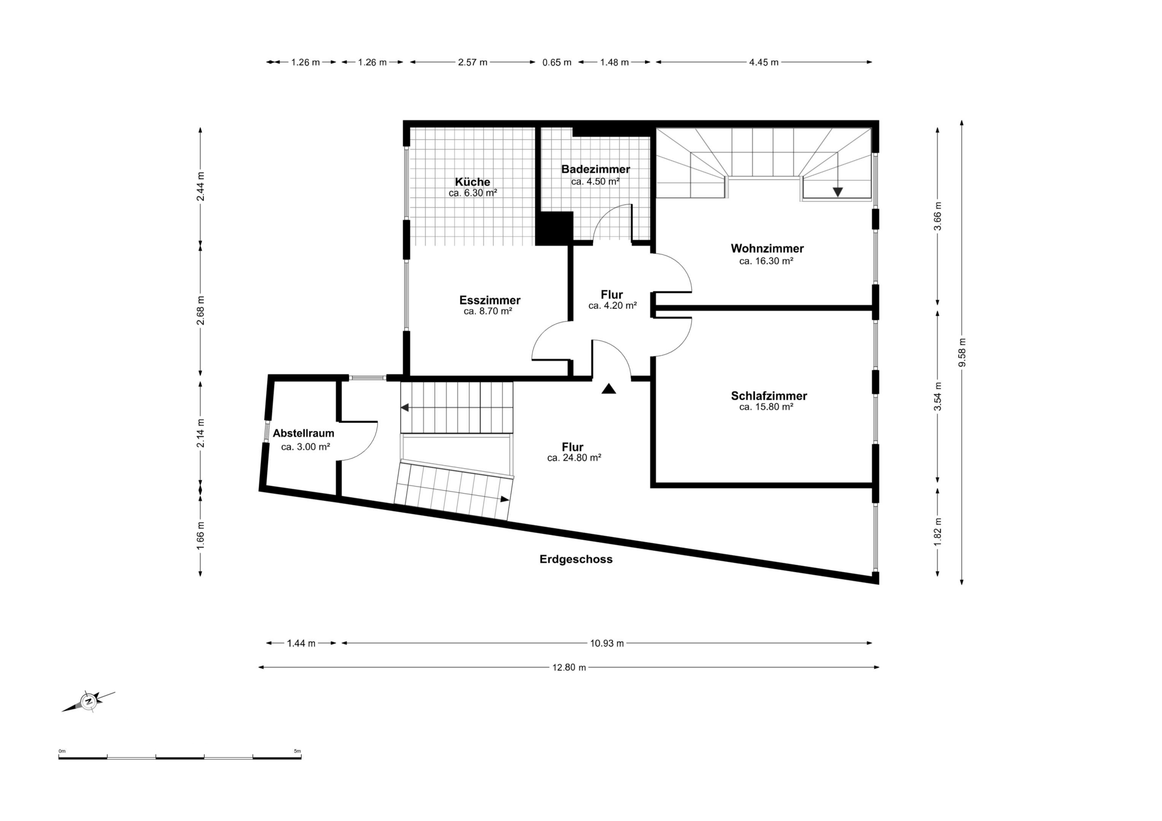
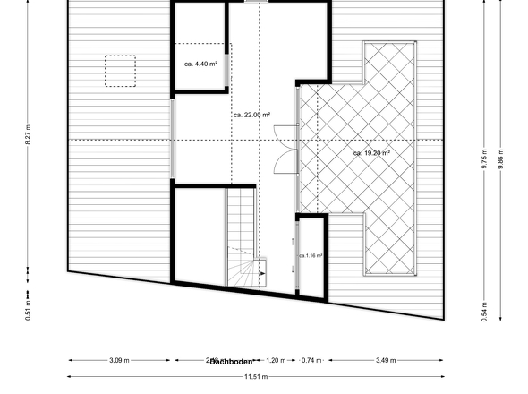
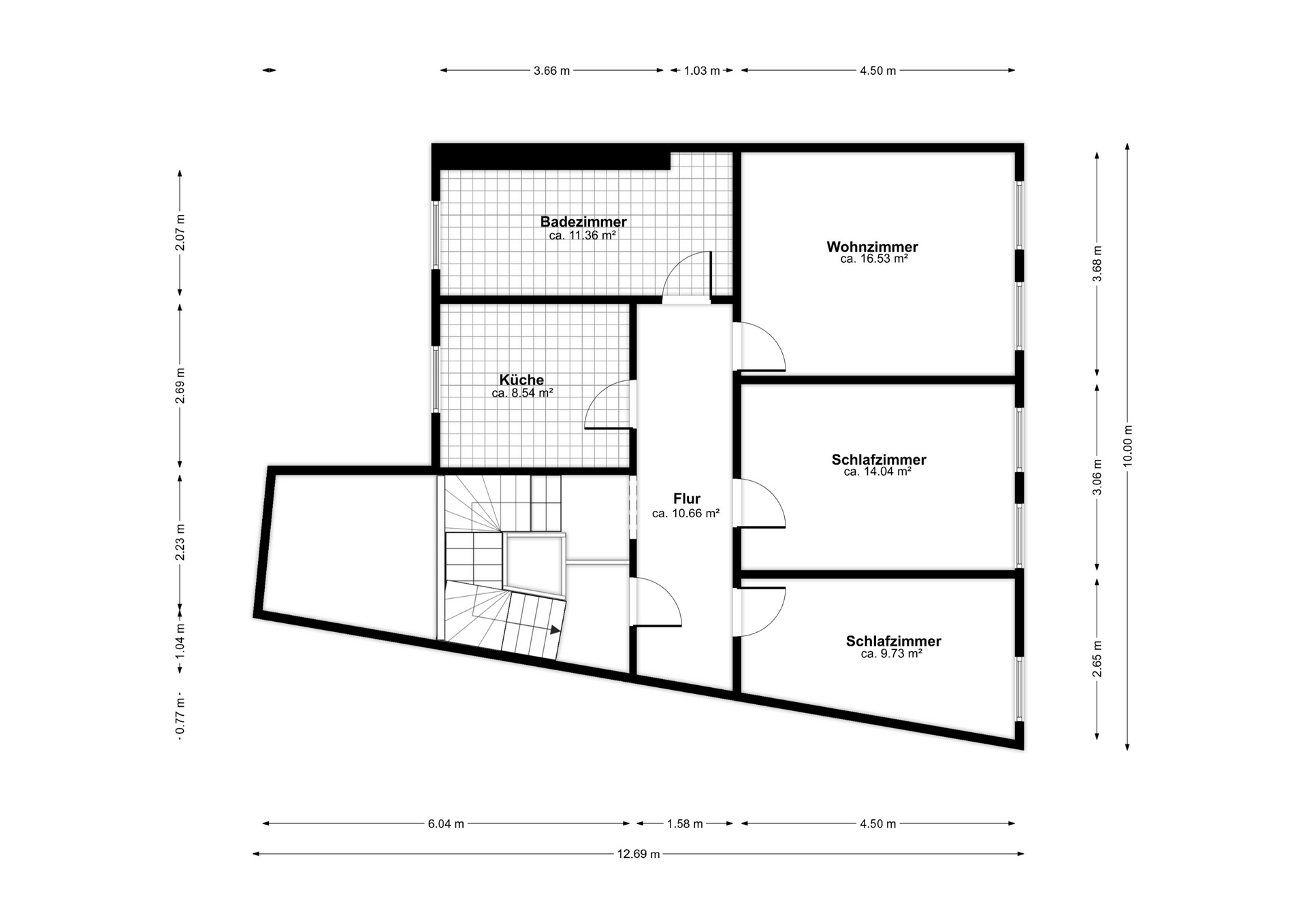
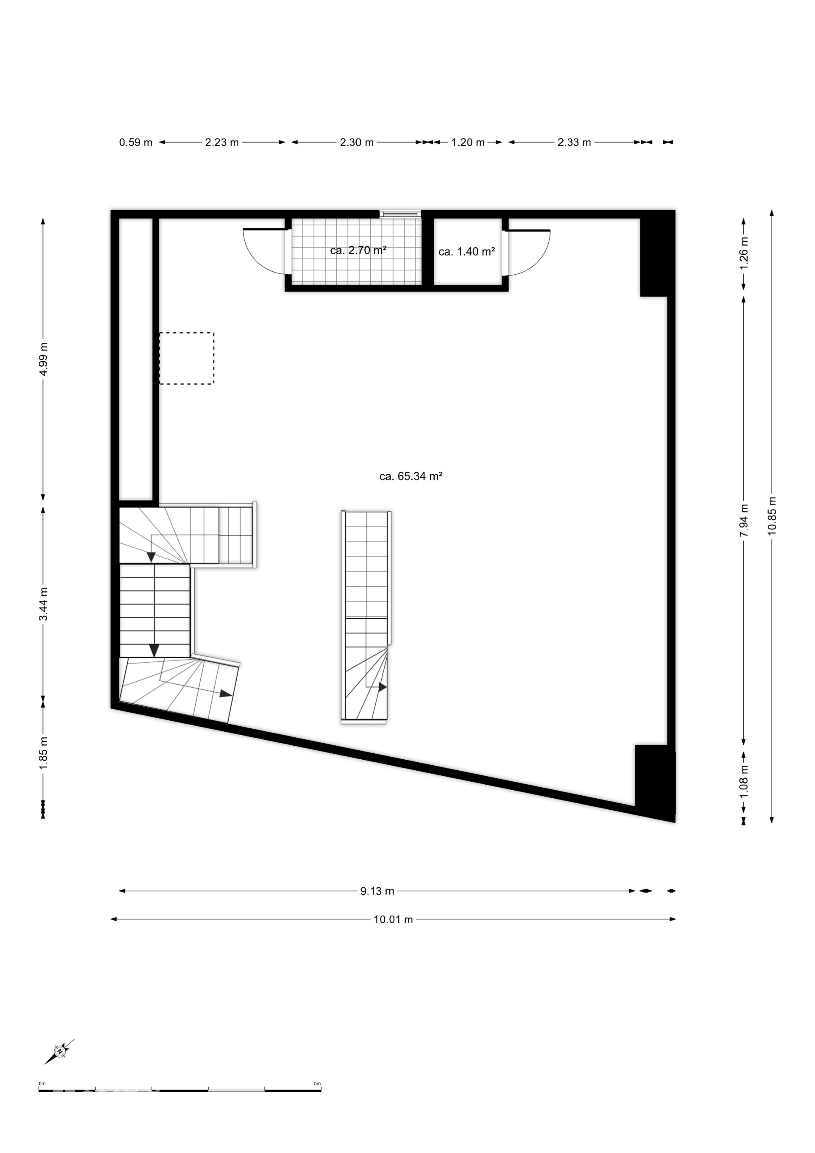
Zum Verkauf steht ein gepflegtes und fortlaufend modernisiertes Mehrfamilienhaus in zentraler Lage von Solingen aus dem Baujahr 1902. Die Immobilie umfasst drei Wohneinheiten, die sich über das Erdgeschoss, das erste Obergeschoss sowie das zweite Obergeschoss in Verbindung mit dem Dachgeschoss und dem Spitzboden erstrecken. Das Gebäude ist vollständig unterkellert und präsentiert sich in einem sehr guten baulichen und technischen Zustand.
Die Wohnung im Erdgeschoss verfügt über ca. 55 m² Wohnfläche mit erneuerten Decken und umfasst zwei Zimmer. Vom zentralen Flur aus sind alle Räume erreichbar. Die Wohnung bietet eine separate Küche mit Essbereich und dimmbare Sonder-Spots über der Kochinsel; Miele Küche aus 2024 (Eigentum Hausbesitzer) sowie ein geräumiges Wohnzimmer mit 4 dimmbaren Deckenflutern für eine gemütliche Atmosphäre. Im Erdgeschoss wurde ein stimmungsvolles Lichtkonzept mit dimmbaren LED-Spots realisiert. Schlafzimmer und Bad wurden zusammengelegt, separate Toilette. Ein weiterer Abstellraum im Hausflur gehört ebenfalls zur Einheit.
Im ersten Obergeschoss befindet sich eine weitere 2-Zimmer-Wohnung mit ca. 67 m². Sie verfügt über einen großen, offenen Wohn-Essbereich mit moderner Miele Küche aus 2024 (Eigentum Hausbesitzer), ein Schlafzimmer mit angrenzendem Tageslichtbad, das sowohl mit einer Dusche als auch mit einer Badewanne ausgestattet ist. Die Schlafzimmerfenster nach hinten verfügen über elektrische Rollladen. Diese sind bereits bei der Kernsanierung des gesamten Hauses 2006/2007 eingebaut worden. Auch dieser Wohnung ist ein separater Abstellraum im Hausflur zugeordnet.
Die größte Einheit erstreckt sich über das zweite Obergeschoss, das Dachgeschoss sowie den ausgebauten Spitzboden. Im 2. Obergeschoss befinden sich drei großzügige Zimmer, ein kleiner Garderobenraum, sowie ein großes Badezimmer mit Regendusche und Eckbadewanne. Im darüberliegenden Dachgeschoss öffnet sich ein weitläufiger, offener Wohn- und Essbereich mit einer großen und hochwertigen Miele Küche. Ergänzt wird diese Ebene durch ein Gäste-WC sowie einen praktischen Abstellraum. Im ausgebauten Spitzboden befindet sich ein großer, wohnlich nutzbarer Raum (zur Zeit Schlafzimmer mit Waschtisch und Toilette) mit Zugang zu einer Dachterrasse und Weitblick über Solingen. Ideal als Atelier, Rückzugsraum oder zusätzliche Wohnfläche. Überall neue LED's. Zwei eigene Kellerräume bieten zusätzliche Staufläche.
Das Haus wurde in den Jahren 2006/2007 kernsaniert. Die vollständige Kernsanierung der Erdgeschosswohnung erfolgte im Jahr 2023/2024: Austausch sämtlicher Fenster inklusive elektrischer Rollladen, die Modernisierung der Elektrik und Heizungsinstallation im Keller sowie die Erneuerung von Küchen, Badezimmern und Bodenbelägen. Im Erdgeschoss wurde ein stimmungsvolles Lichtkonzept mit dimmbaren LED-Spots realisiert. Darüber hinaus wurden verschiedene bauliche Maßnahmen zur Verbesserung des Einbruchschutzes sowie der Energieeffizienz umgesetzt.
Diese Immobilie überzeugt durch ihren gepflegten Zustand, die gut geschnittenen und modernen Wohnungen sowie durch das attraktive Mietverhältnis. Sie eignet sich ideal als renditestarke Kapitalanlage mit langfristiger Perspektive in einer nachgefragten Wohnlage von Solingen.
AUFTEILUNG WOHNFLÄCHE:
- Erdgeschoss: ca. 55 m² - Obergeschoss: ca. 67 m² - Maisonettewohnung: ca. 155 m²
Insgesamt aktuell mögliche jährliche Rohmieteinnahmen p.a.: 37.084,08 €
Die Maisonettewohnung im 2. OG, im DG und im Spitzboden wird durch den Eigentümer genutzt. Dieser Bereich wird nach Verkauf des Objekts frei.
Ausstattung
- Mehrfamilienhaus mit drei Wohneinheiten - Baujahr: 1902 - Massiv Bauweise - Vollständig unterkellert - Separate Abstellräume im Hausflur - Fortlaufend modernisiert (2020-2024) - Ausgebauter Spitzboden mit Dachterrasse und Edelstahlgeländer, Fenster getänt - elektrische Markise - Miele Küche in Eigentümer Wohnung: alle Geräte neu, ergänzt um Quooker, Weinkühler, Berbel Dunstabzugshaube - Mülltonnenplatz mit Überdachung - Carport mit elektrischem Rolltor
MODERNISIERUNGEN/SANIERUNGEN:
- 2025 Erneuerung der Dusche mit Glasabtrennung im Schlafzimmer der Eigentümerwohnung.
- 2025 Brandschutzfenster im Dachgeschoss der Gästetoilette (Auflage Brandschutzkonzept da Brandwand zum Nachbarhaus.
- 2024: vollständige Erneuerung der Fenster im EG mit elektrischen Rollläden, neue Unterverteilung Elektrik EG, neue Heizkörper, neues Lichtkonzept mit LEDs, neue Miele Küche im EG, Dämmung der Heizungsleitungen im Keller, zwei Kellerfenster erneuert
- 2023: Kernsanierung der EG-Wohnung, neue Haustür, Fassadenaufarbeitung, neue elektrische Außenbeleuchtung, Bora Dunstabzug, Weinkühler in der Küche DG, neue Rollladenkästen und Plissees, neue Fenster im DG, Insektenschutzrollos
- 2022: neue Küchengeräte DG, neue Dachterrasse und Spitzbodenterrasse, Erneuerung der Hauseingangstür OG, Erneuerung von Kellerfenstern und Mülltonnenplatz, neue elektrische Markise
- 2021: Parkettsanierung und Treppenaufbereitung, Abtrennung im Schlafzimmer Spitzboden, neue Böden und Elektrik im 2. OG
- 2020: Einbruchschutz Kellerfenster, neue Dusche und Glastür im Bad 2. OG, Modernisierung der Elektrik, neue Spiegel und Waschtisch
- 2019: Erweiterung der elektrischen Anlage im Dachgeschoss
Lage
Dieses attraktive Objekt befindet sich in einer sehr gefragten Wohnlage Solingens – ruhig gelegen und dennoch hervorragend angebunden. Die Umgebung zeichnet sich durch eine gewachsene Nachbarschaft, gepflegte Wohnhäuser sowie viel Grün aus, was besonders Familien und Berufspendler gleichermaßen anspricht.
In direkter Nähe finden sich sämtliche Einrichtungen des täglichen Bedarfs: Supermärkte, Bäckereien, Apotheken sowie diverse Dienstleister sind bequem fußläufig erreichbar. Auch Kindergärten, Schulen und Spielplätze sind in wenigen Minuten erreichbar und machen die Lage besonders familienfreundlich.
Die Anbindung an den öffentlichen Nahverkehr ist ausgezeichnet – mehrere Buslinien befinden sich in unmittelbarer Nähe und sorgen für eine schnelle Verbindung in die Innenstadt sowie zum Hauptbahnhof. Auch die Anbindung an das überregionale Straßennetz ist durch die Nähe zur A46 und B229 ideal – Düsseldorf, Wuppertal oder Köln sind bequem in kurzer Zeit erreichbar.
Darüber hinaus bietet das nahegelegene Umland zahlreiche Möglichkeiten zur Freizeitgestaltung. Ob ausgedehnte Spaziergänge, sportliche Aktivitäten oder einfach nur Erholung im Grünen – die umliegenden Parks, Wälder und Naherholungsgebiete laden zu vielfältigen Aktivitäten ein.
Die Kombination aus ruhiger Wohnlage, guter Infrastruktur und naturnahem Umfeld macht dieses Objekt zu einem idealen Zuhause für alle, die zentral und dennoch ruhig wohnen möchten.
Lade Orte in der Umgebung
Zusätzliche Information
Dieses attraktive Objekt befindet sich in einer sehr gefragten Wohnlage Solingens – ruhig gelegen und dennoch hervorragend angebunden. Die Umgebung zeichnet sich durch eine gewachsene Nachbarschaft, gepflegte Wohnhäuser sowie viel Grün aus, was besonders Familien und Berufspendler gleichermaßen anspricht.
In direkter Nähe finden sich sämtliche Einrichtungen des täglichen Bedarfs: Supermärkte, Bäckereien, Apotheken sowie diverse Dienstleister sind bequem fußläufig erreichbar. Auch Kindergärten, Schulen und Spielplätze sind in wenigen Minuten erreichbar und machen die Lage besonders familienfreundlich.
Die Anbindung an den öffentlichen Nahverkehr ist ausgezeichnet – mehrere Buslinien befinden sich in unmittelbarer Nähe und sorgen für eine schnelle Verbindung in die Innenstadt sowie zum Hauptbahnhof. Auch die Anbindung an das überregionale Straßennetz ist durch die Nähe zur A46 und B229 ideal – Düsseldorf, Wuppertal oder Köln sind bequem in kurzer Zeit erreichbar.
Darüber hinaus bietet das nahegelegene Umland zahlreiche Möglichkeiten zur Freizeitgestaltung. Ob ausgedehnte Spaziergänge, sportliche Aktivitäten oder einfach nur Erholung im Grünen – die umliegenden Parks, Wälder und Naherholungsgebiete laden zu vielfältigen Aktivitäten ein.
Die Kombination aus ruhiger Wohnlage, guter Infrastruktur und naturnahem Umfeld macht dieses Objekt zu einem idealen Zuhause für alle, die zentral und dennoch ruhig wohnen möchten.
Sonstiges
Wir sind stolz, durch unser Engagement in den führenden Internetportalen überdurchschnittlich gute Bewertungen erzielt zu haben. Die Fachzeitschrift "Focus-Spezial" hat unser Unternehmen seit 2013 durchgehend als eines der besten Immobilienunternehmen in Deutschland ausgezeichnet.
Als FALC Exklusivpartner bieten wir unseren Kunden noch mehr Vorteile. Wir sind jetzt Teil eines Immobiliennetzwerkes mit mehr als 150 Partnern an über 100 Standorten in Deutschland und Europa. So können wir Ihnen über 1.000 Immobilien anbieten, national wie international. In unserer Datenbank warten weit über 50.000 Interessenten auf Ihre Immobilie.
Die Objektangeben beruhen teilweise auf den Angaben des Eigentümers. Eine Gewähr auf Vollständigkeit und Richtigkeit übernehmen wir nicht.
Gerne verkaufen wir mit Kompetenz und Leidenschaft auch Ihre Immobilie. Schenken Sie uns Ihr Vertrauen! Sie erreichen uns unter