Küche/EssenKücheWohnenTerrasse/GartenTreppenaufgangSauna im BadMasterbad (2)Masterbad2. BadezimmerKinderzimmerDachterrasseEingangEinliegerwohnung Relax-FensterUntergeschoßErdgeschoßObergeschoßDachgeschoß20250915_105940
Eckdaten
Zimmer
Wohnfl.
Grundst.
Kaufpreis
Zimmer
Wohnfl.
Grundst.
1550000.0€ Kaufpreis
Basisdaten
Objektnummer
Immopark ID
IP-307803
Objekt ID
LDW1.NH.10711
Adresse
71272 Renningen
Ort
71272 Renningen
Fakten und Zahlen
Wohnungstyp
Etage
Vermarktungsart
Kauf
Nutzungsart
wohnen
Verkaufsstatus
offen
Baujahr
2023
Kerndaten
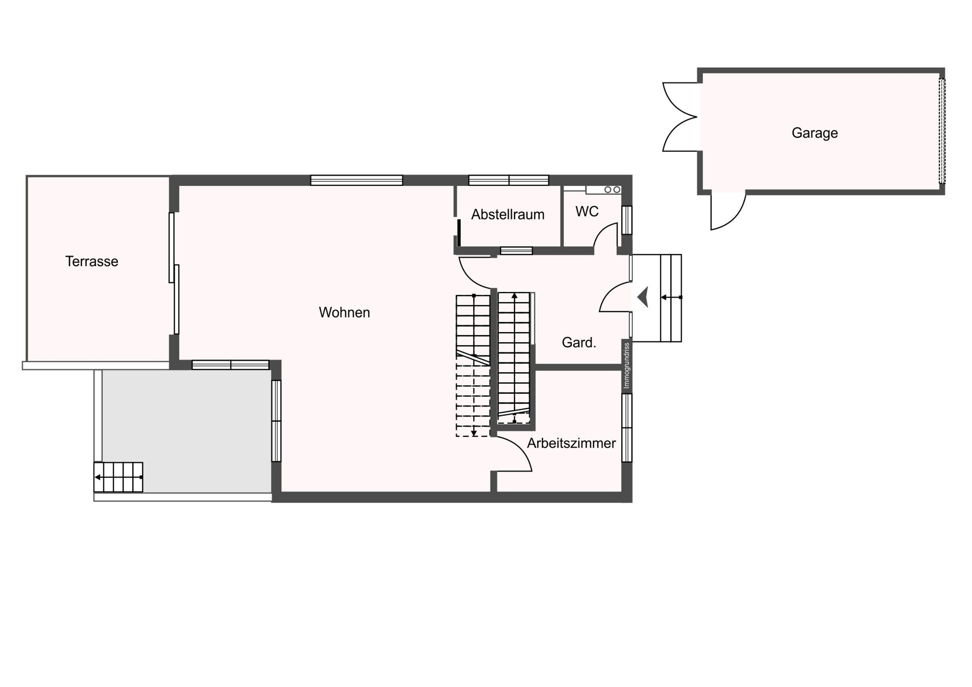
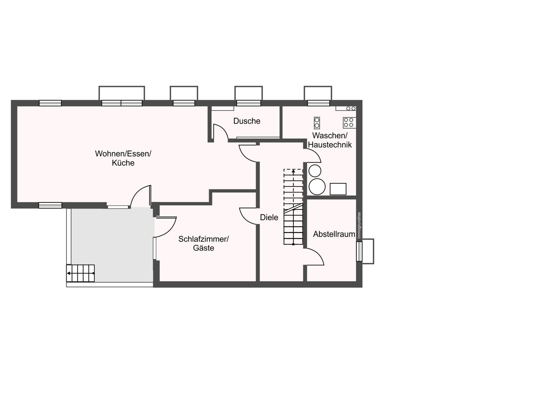
Wohnfläche
317 m2
Zimmer
9.0
separate WC
1.0
Anzahl Stellplätze (gesamt)
2.0
Bauweise / Substanz
Objektzustand
neuwertig
Bauweise
Massivhaus
Etagenanzahl der Immobilie
2
Preisdaten
Preis
Kaufpreis
1.550.000 €
Courtage
Käufercourtage
jeweils 2,38 % vom Kaufpreis inkl. der gesetzl. MwSt.
Merkmale
Zimmer und Bereiche
Zimmer und Räume
Wasch- / Trockenraum
Ausstattung und Technik
Küche
Einbauküche
Küche
Offene Küche
Sanitäre Einrichtung
Sanitäre Einrichtung
Gäste WC
Wellness
Wellness Merkmale
Sauna
Wellness Merkmale
Swimming-Pool
Einliegerwohnung
Einliegerwohnung vorhanden
Einliegerwohnung
Stellplätze
Anzahl Stellplätze (gesamt)
2.0
Stellplatzdetails
Freiplatz
Anzahl
2.0
Stellplatzdetails
Garage
Anzahl
2.0
Garten
Garten Nutzung
Gartennutzung
Energie
Energieausweis
Typ
Bedarfsausweis
EnEV
ab 01.05.2014 (gemäß EnEV 2014)
Energieausweis gültig bis
2034-12-01
Endenergiebedarf gemessen in kWh/(m²a)
6.50
A+ABCDEFGH
wesentlicher Energieträger
Luft-/Wasser-Wärmepumpe
Energieeffizienzklasse
A+
Baujahr lt. Energieausweis
2023
Gebäudeart lt. Energieausweis
Wohngebäude
Heizung
Heizungsart
Zentralheizung
Heizungsart
Fußbodenheizung
Befeuerungsart
Befeuerungsart
Luft-/Wasser-Wärmepumpe
Umgebung
Es wurden keine Daten angegeben.
Objektbeschreibung
Willkommen in Ihrem Traumhaus in Renningen! Dieses neuwertige Einfamilienhaus, im Jahr 2023 in solider Massivbauweise errichtet, bietet auf zwei Etagen höchsten Wohnkomfort und lässt keine Wünsche offen.
Auf einem großzügigen Grundstück von 560 m² erstreckt sich das beeindruckende Anwesen mit einer Gesamtwohnfläche von 317 m². Mit insgesamt 9 Zimmern bietet es ausreichend Platz für Ihre Familie und Gäste. Eine Einliegerwohnung erhöht zudem die Flexibilität der Nutzungsmöglichkeiten, sei es als separate Wohneinheit oder als private Rückzugsoase.
Die offene Einbauküche ist ein wahres Highlight, ideal für kulinarische Kreationen und gesellige Abende.
Entspannen Sie in Ihrem persönlichen Wellnessbereich mit Sauna und lassen Sie die Seele baumeln. Der großzügige Garten lädt zur Erholung ein und bietet vielfältige Nutzungsmöglichkeiten.
Erleben Sie höchstes Wohnvergnügen in einem modernen Zuhause, das keine Wünsche offenlässt. Diese Immobilie verbindet stilvoll Luxus mit Funktionalität und erwartet Ihre Besichtigung. Sichern Sie sich dieses exquisite Zuhause zum Kauf und erfüllen Sie sich Ihren Wohntraum in Renningen!
Ausstattung
Diese exquisite Immobilie bietet eine Vielzahl an Annehmlichkeiten, die Ihren Wohnkomfort auf ein neues Niveau heben. Betreten Sie ein großzügig gestaltetes Zuhause mit einer offenen Einbauküche, die ideal für kulinarische Erlebnisse und geselliges Beisammensein ist. Der weitläufige Balkon und die Möglichkeit der Gartennutzung bieten Ihnen entspannte Tage im Freien, während das Gartenhaus zusätzlichen Stauraum bereitstellt.
Entspannung und Erholung werden in der hauseigenen Sauna großgeschrieben. Für Ihre Fahrzeuge stehen Ihnen zwei Stellplätze zur Verfügung, darunter eine Garage und ein Stellplatz im Freien. Die Immobilie wird durch eine moderne Zentral- und Fußbodenheizung beheizt, die von einer effizienten Wärmepumpe betrieben wird, und gewährleistet somit ein angenehmes Raumklima das ganze Jahr über.
Diese Immobilie vereint Komfort und Stil und bietet Ihnen ein Zuhause, in dem Sie sich rundum wohlfühlen können und das keine Wünsche offen lässt.
Lage
Das charmante Einfamilienhaus befindet sich in der idyllischen Stadt Renningen, die durch ihre malerische Landschaft und die hervorragende Anbindung an regionale und städtische Zentren besticht. Eingebettet in eine ruhige Wohngegend, bietet die Lage sowohl Privatsphäre als auch eine familienfreundliche Atmosphäre. Die Umgebung zeichnet sich durch ihre Vielfalt an Naherholungsmöglichkeiten und Grünflächen aus, die zu ausgedehnten Spaziergängen und Freizeitaktivitäten einladen.
Renningen verfügt über eine ausgezeichnete Infrastruktur mit einer Vielzahl an Einkaufsmöglichkeiten, Schulen und Kindergärten, die bequem erreichbar sind. Zudem gewährleistet der nahegelegene Anschluss an das Verkehrsnetz eine schnelle und unkomplizierte Anbindung an die umliegenden Städte wie Stuttgart oder Böblingen, die sowohl mit dem Auto als auch mit öffentlichen Verkehrsmitteln innerhalb kurzer Zeit erreichbar sind.
Für Naturliebhaber bietet die Umgebung zahlreiche Rad- und Wanderwege sowie die Nähe zu den Ausläufern des Schwarzwalds, die eine Vielzahl an Outdoor-Aktivitäten ermöglichen. Renningen kombiniert auf harmonische Weise urbanen Komfort mit ländlichem Charme, was es zu einem idealen Wohnort für Familien, Paare und alle, die ein ausgeglichenes Lebensumfeld schätzen, macht.
Lade Orte in der Umgebung
Sonstiges
Da wir uns bei allen Angaben auf die Informationen Dritter stützen müssen, können wir keine Gewähr für deren Richtigkeit und Vollständigkeit übernehmen.
Bitte haben Sie Verständnis dafür, dass wir nur Anfragen mit vollständiger Adressangabe und erreichbarer Handynummer bearbeiten können.
Nachdem Ihre Anfrage per E-Mail bei uns eingegangen ist, werden wir uns mit Ihnen zur Abstimmung eines Besichtigungstermins in Verbindung setzen. Bitte nennen Sie deshalb in Ihrer E-Mail eine Tel.-Nr., unter der wir Sie sicher erreichen können.
Widerrufsbelehrung für Verbraucher: Sie haben das Recht, binnen vierzehn Tagen ohne Angabe von Gründen diesen Vertrag zu widerrufen. Die Widerrufsfrist beträgt vierzehn Tage ab dem Tag des Vertragsabschlusses.
Um Ihr Widerrufsrecht auszuüben, müssen Sie uns (FinanzKontor Farkas GmbH Franchisenehmer der Königskinder Immobilien GmbH, Aussiedlerhöfe 7, 74906 Bad Rappenau j.farkas@koenigskinder.de) mittels einer eindeutigen Erklärung (z. B. ein mit der Post versandter Brief, Telefax oder E-Mail) über Ihren Entschluss, diesen Vertrag zu widerrufen, informieren.
Zur Wahrung der Widerrufsfrist reicht es aus, dass Sie die Mitteilung über die Ausübung des Widerrufsrechts vor Ablauf der Widerrufsfrist absenden.
Folgen des Widerrufs: Wenn Sie diesen Vertrag widerrufen, haben wir Ihnen alle Zahlungen, die wir von Ihnen erhalten haben, unverzüglich und spätestens binnen vierzehn Tagen ab dem Tag zurückzuzahlen, an dem die Mitteilung über Ihren Widerruf dieses Vertrags bei uns eingegangen ist. Für diese Rückzahlung verwenden wir dasselbe Zahlungsmittel, das Sie bei der ursprünglichen Transaktion eingesetzt haben, es sei denn, mit Ihnen wurde ausdrücklich etwas anderes vereinbart; in keinem Fall werden Ihnen wegen dieser Rückzahlung Entgelte berechnet.
Haben Sie verlangt, dass die Dienstleistungen während der Widerrufsfrist beginnen soll, so haben Sie uns einen angemessenen Betrag zu zahlen, der dem Anteil der bis zu dem Zeitpunkt, zu dem Sie uns von der Ausübung des Widerrufsrechts hinsichtlich dieses Vertrags unterrichten, bereits erbrachten Dienstleistungen im Vergleich zum Gesamtumfang der im Vertrag vorgesehenen Dienstleistungen entspricht.