Super schöne 4 Zimmer Eigentumswohnung in privilegierter Wohnlage

Eckdaten

 Zimmer
 Wohnfl.
 Grundst.
Kaufpreis
 Zimmer
 Wohnfl.
Grundst.

Kaufpreis

Basisdaten

Objektnummer
Immopark ID
IP-309128
Objekt ID
FALC-SB-78537
Adresse
Ort
70825 Korntal
Fakten und Zahlen
Wohnungstyp
Etage
Vermarktungsart
Kauf
Nutzungsart
wohnen
Baujahr
2008
Kerndaten
Wohnfläche
109,2 m2
Zimmer
4.0
Anzahl Stellplätze (gesamt)
1.0
Bauweise / Substanz
Objektzustand
neuwertig
Letzte Renovierung
2024
Etagenanzahl der Immobilie
3
Lage im Gebäude
Etage
1
Wohnungsnummer
6
Verfügbarkeit
Verfügbar ab
nach Rücksprache

Preisdaten

Preis
Kaufpreis
769.000 €
Heizkosten enthalten
Weitere Kosten
Hausgeld
420 €

Merkmale

Zimmer und Bereiche
Voll unterkellert
Gesamtfläche
12,54 m2
Anzahl (Balkone)
1.0
Winter­garten
Abstell­raum
Ausstattung und Technik
Qualität der Ausstattung
gehoben
Einbau­küche
Fliesen­boden
Parkett­boden
Holz­dielen­boden
Sanitäre Einrichtung
Fenster
Dusche
Wanne
Gäste WC
Stellplätze
Anzahl Stellplätze (gesamt)
1.0
Tiefgarage
Anzahl
1.0
Kaufpreis
28.000 €
Ausblick
Ferne

Energie

Energieausweis
Typ
Bedarfs­ausweis
Energieausweis gültig bis
08.12.2030
Endenergiebedarf gemessen in kWh/(m²a)
70.4

A+ABCDEFGH

Energieeffizienz­klasse
B
Ausstelldatum
09.12.2020
Gebäudeart lt. Energieausweis
Wohngebäude
Heizung
Zentral­heizung

Umgebung

Es wurden keine Daten angegeben.

Objektbeschreibung

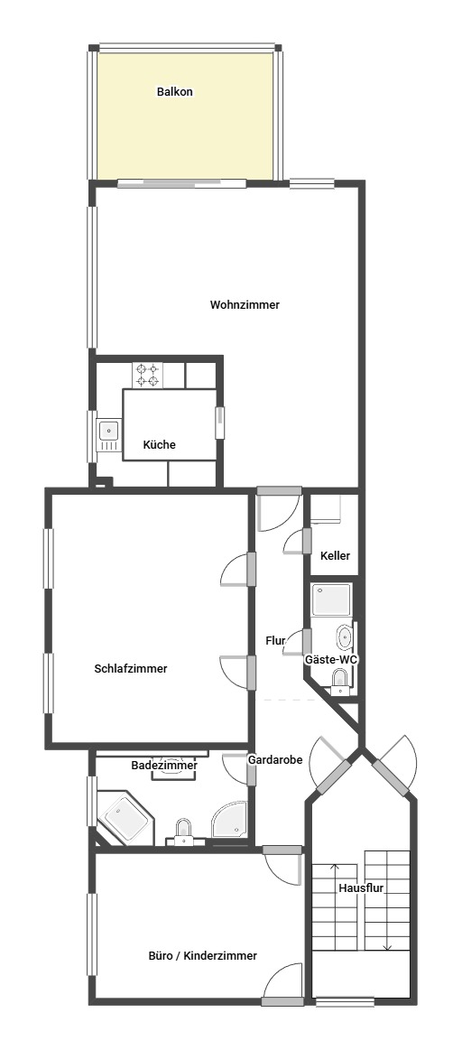
In Top Süd-Hanglage von Korntal befindet sich diese 3 bis 4 Zimmer Wohnung mit 109,20qm. Mit einer Traumaussicht vom 12qm großen Balkon aus auf Schloss Solitude, auf die Stadt Korntal, den Stuttgarter Stadtteil Weilimdorf und jahreszeitbedingt auf den Fernsehturm von Stuttgart, finden Sie das erste Highlight dieses Angebotes. Hierzu ist zu erwähnen, dass der Süd-Balkon mit hochwertigsten Glaselementen vollständig geschlossen werden kann, so dass auch in kühleren Jahreszeiten jederzeit ein gemütlicher Aufenthalt zum Kaffee trinken oder Relaxen gewährleistet ist. Der Balkon ist mit einem Edelstahlgeländer und blickdichten, satinierten Glaselementen gestaltet.

Sie betreten das Treppenhaus und gelangen über die Granitstufen bei Edelstahlhandlauf in das 1. OG. Eine weiße Eingangstüre öffnet Ihnen den Blick auf die Diele, von wo Sie linker Hand in das Nordzimmer (Schlafzimmer/Büro) gelangen. Dieses Zimmer verfügt über ein Nord- sowie ein Westfenster.

Nebenliegend findet sich das deckenhoch, weiß geflieste Bad mit Tageslichtfenster, Badewanne, Dusche, WC, Waschbecken mit Unterschrank, Hochschränkchen, LED-Deckenstrahlern und einem Waschmaschinenanschluss (neben Waschmaschinenraum eine weitere Möglichkeit).

Vom Flur aus, linker Hand, ist der große (25qm), derzeit als Schlafzimmer genutzte Raum mit zwei Tageslichtfenstern angeordnet. Hier lassen sich in einfacher und kostengünstiger Form auch 2 (Kinder-) Zimmer gestalten, da beide Eingangstüren beibehalten wurden und die Fenster auch auf beide Zimmer zugeschnitten wären.

Rechter Hand besitzt das Gäste-WC (oder Kinderbad) zusätzlich eine bodengleiche Dusche und im daran nebenliegenden kleinen Abstellraum, lassen sich die wichtigsten Dinge für den Tagesbedarf lagern und beispielsweise ein zusätzlicher Kühlschrank stellen.

Nun öffnet sich Ihnen der große Wohn- Essbereich, in dem sich zuerst linker Hand und durch eine Glasschiebetüre getrennt, die Einbauküche zeigt. Die hochwertige Küche verfügt neben den Einbauschränken (teilweise Teleskoptechnik) u.a. über eine Kühlgefrierkombination, Backofen mit Mikrowelle, Geschirrspüler, Elektrogasherd mit Cerankochfeld und einen Luxus Berbel-Dunstabzug.

Im hellen Wohnzimmer mit großer Ost-Fensterfront, Südfenster und großem nach Süden ausgerichtetem Schiebefrontelement zum Austritt auf den Balkon, haben Sie ausreichend Stellfläche und Platz, um sich eine schöne Ess-Aussichtsecke und einen gemütlichen Platz zum Chillen einzurichten.

Die gesamte Wohneinheit ist mit einer Fußbodenheizung, Glattputzwänden und überwiegend Glattputzdecken, durchweg mit Elektrorollladen, Bolch-Insektenschutzelementen, ausreichend Steckdosen, TV-Anschlüssen (SAT-Anlage) in Wohn- und weiterem Zimmer ausgestattet.
Echtholzparkettboden mit hochwertigsten Landhausdielen finden sich im Wohnzimmer, Flur und Schlafzimmer (Büro/Gästezimmer mit Parkett Buche). Küche, Flur und Bad mit LED - Strahlern sind gefliest.

Tiefgaragen-Stellplatz, 28.000 Euro (kann zusätzlich miterworben werden)

Der (unüblich große) Tiefgaragenstellplatz verfügt über eine eigene Beleuchtung und eine eigene, abschließbare Stromsteckdose. Außerdem ist der Stellplatz bereits für die e-Mobilität bei Lastmanagement vorinstalliert (lediglich noch Wallbox zu beschaffen).

Ausstattung

Raumnutzung momentan: Wohnzimmer (31,77qm), Küche (7,66qm), großes Schlafzimmer (23,98qm), Bad mit Dusche und Badewanne (7,67qm), 3. Zimmer (17,53qm), Gäste-Toilette mit zusätzlicher bodengleicher Dusche (2,77qm), Abstellraum (2,13qm), Diele (9,48qm), Balkon (12,54qm)

Wertsteigernde Maßnahmen durch umfangreiche/hochwertige Umbauten/Sanierungen im nachweisbaren Wert von 41.000 Euro

2015 Verlegung von exkl. Landhausdielen „Parkett“ im Wohn-, Schlafzimmer und in der Diele. 2 Kinderzimmer wurden geöffnet und zu einem großen (ca. 25qm) Schlafzimmer umgewandelt. Kann jederzeit einfach und kostengünstig wieder zurückgebaut werden (lediglich Trennwand einziehen). Wände in den Wohn-/Schlafräumen, Flur, Küche mit feinem Schlier-Putz versehen, ebenso an den Decken Wohn-/Schlafzimmer.

2015 Eine Wand im Wohnzimmer mit besonderer Spachtel-/Wischtechnik in zart grün bearbeitet.

2015 Bolch-Insektengitter-Spannrahmen - Balkon und 5 weitere Fenster.

2020 Einbau einer exkl. Spülrandlosen Tiefspüler WC in der Gästetoilette.

2021 Verlegung hochwertiger WPC-Dielen auf dem Balkon.

2021 Einbau eines modernen Dunstabzugs, Marke „Berbel“

2023 Grundinstallation in Tiefgarage für e-Mobilität. Es muss lediglich noch noch eigene Wallbox und Anschluss an das Lastmanagement bei Bedarf eingerichtet werden.

2023 Glasfaser verfügbar (T-online)

2024 Badsanierung; neues Waschbecken mit Unterschrank, neuer Armatur und neuem Unterbau; Wandschrank.Der Badspiegel ist mit Beleuchtung; Gäste-WC Siphon und Zuläufe erneuert.

2025 Zwei elektrische Rollladen-Motoren ersetzt.

Lage

Das Objekt befindet sich mit in bester Wohnlage von Korntal, fast oberste Hanglage, unterhalb von Feldern und Wiesen, in direkter Verbindung zum Teilort Münchingen. Kürzester Fuß- oder Radweg zum Korntaler Wald oder hervorragenden Radwegen. Ruhig in einer Seitenstraße und ideal in wenigen Gehminuten zum Ortskern gelegen. Der gigantische Ausblick vom Balkon aus, zeigt im Weitblick den Stadtteil Weilimdorf, das Schloss Solitude und im Herbst/Winter den Fernsehturm. Freuen Sie sich auf ein atemberaubendes Erlebnis an Silvester.

Mit dem Auto ideal in wenigen Minuten an der Autobahnauffahrt Richtung München oder Heilbronn, oder den gewünschten Bundesstraßen zum Erreichen der umliegenden Orte. Viele Busverbindungen vom Bahnhof Korntal aus und natürlich die S-Bahnen S6 und S60 (12min Gehstrecke), die Sie entweder in 15min in die Landeshauptstadt oder entgegengesetzt nach Weil der Stadt bringen.

Infrastruktur: Die Stadt Korntal-Münchingen, mit ihren rund 20.000 Einwohnern, bietet Ihnen Kindergärten, Grund-, Realschule und Gymnasium an. Eine Volkshochschule ermöglicht Ihnen wirklich fast alles an interessanten Angeboten zur Weiterbildung oder Freizeit. Viele Sportvereine, u.a. Tennisclub, Fußball-/Handball, Turnen, die Musikschule oder der Tanzclub, ermöglichen Ihnen die Regeneration vom Alltagsstress, das Auftanken Ihres Akkus.
Holen Sie sich ein Abo für die Stadthalle Korntal, mit Veranstaltungen, die mit bekannten Fernsehgrößen bestückt sind.
Den tägl. Einkauf kann man umfassend in Korntal erledigen. Viele Bäckereien, Metzger, Penny, Lidl, Müller-Drogerie, weitere Einkaufszentren in unmittelbarer Nähe, die Post, Brillengeschäfte, Buchladen, mehrere Apotheken, Banken, Modegeschäfte, Altenheime... Es ist alles vorhanden.
Nicht zu vergessen natürlich die Gastronomie, mit vielen Angeboten, entlastend zum heimischen Herd.
Lade Orte in der Umgebung

Sonstiges

Die Objektbeschreibung beruht ganz oder zum Teil auf Angaben des Eigentümers. Dieses Expose wurde teilweise mit Hilfe von KI-Tools erstellt. Für die Richtigkeit oder Vollständigkeit übernehmen wir keine Gewähr.

Beim ausgewiesenen Preis handelt es sich um den Angebotspreis, der sich durch Verhandlungen auch verändern kann.

Vereinbaren Sie noch heute einen unverbindlichen Besichtigungstermin und überzeugen Sie sich selbst!
Da wir die Termine für Besichtigungen mit größter Sorgfalt planen, bitten wir Sie um Verständnis dafür, dass Termine ausschließlich in schriftlicher Form per E-Mail vereinbart werden können. Um fair und gerecht gegenüber jedem unserer Interessenten zu werden, ist dies unumgänglich. Wir freuen uns über Ihre Kontaktaufnahme!
Geben Sie bitte immer die vollständige ADRESSE und RUFNUMMER an!

Ihr Ansprechpartner:
Stephan Buchholz
+49 175 888 90 88
FALC Immobilien Lizenzpartner
https://www.falcimmo.de/immobilienmakler-in-ditzingen.html

FALC Immobilien Ditzingen - Autenstrasße 6 - 71254 Ditzingen

FALC-Hotline Mo-So 6.00-22.00 : 0800 / 646 0 646 kostenlos

E-Mail: stephan.buchholz@falcimmo.de

Sie denken selbst über die Veräußerung Ihrer Immobilie nach oder möchten einfach nur wissen, was diese wert ist? Bei uns erhalten Sie kostenlos eine professionelle Wertermittlung! Gehen Sie hierzu auf: www.falcimmo.de/Das-ist-meine-Immobilie-wert.htm oder kontaktieren Sie uns.

Anbieterdaten

Stephan Buchholz

Ansprech­partner

Stephan Buchholz

Ihre Nachricht an FALC Immobilien Ditzingen

Ihr Ansprechpartner: Stephan Buchholz

Mit (*) gekennzeichnete Felder sind Pflichtangaben.