Dein erster Schritt in die Immobilienwelt: Kaufe und vermiete dieses attraktive Reihenmittelhaus!

Eckdaten

 Zimmer
 Wohnfl.
 Grundst.
Kaufpreis
 Zimmer
 Wohnfl.
 Grundst.

Kaufpreis

Basisdaten

Objektnummer
Immopark ID
IP-311344
Objekt ID
1057-424-AJ
Adresse
Ort
26639 Wiesmoor
Fakten und Zahlen
Haustyp
Reihen­mittel­haus
Vermarktungsart
Kauf
Nutzungsart
Anlage
Verkaufsstatus
offen
Baujahr
1968
Kerndaten
Wohnfläche
140 m2
Zimmer
5.0
Schlafzimmer
4.0
Badezimmer
1.0
Nutzfläche
53,61 m2
Grundstücksfläche
280 m2
Anzahl Stellplätze (gesamt)
2.0
Bauweise / Substanz
Objektzustand
gepflegt
Etagenanzahl der Immobilie
2

Preisdaten

Preis
Kaufpreis
210.000 €
Courtage
Käufercourtage
4,17 % vom Kaufpreis inkl.MwSt

Merkmale

Zimmer und Bereiche
Ausrichtung
Nordwest
Anzahl (Terrassen)
1.0
Schlaf­zimmer
Ausstattung und Technik
Einbau­küche
Teppich­boden
Fliesen­boden
Lami­nat
Kunst­stoff­boden
Sanitäre Einrichtung
Fenster
Dusche
Gäste WC
Stellplätze
Anzahl Stellplätze (gesamt)
2.0
Freiplatz
Anzahl
2.0

Energie

Energieausweis
Typ
Bedarfs­ausweis
EnEV
ab 01.05.2014 (gemäß EnEV 2014)
Energieausweis gültig bis
2031-09-06
Endenergiebedarf gemessen in kWh/(m²a)
173.80

A+ABCDEFGH

wesentlicher Energieträger
Gas
Energieeffizienz­klasse
F
Baujahr lt. Energieausweis
1968
Gebäudeart lt. Energieausweis
Wohngebäude
Befeuerungsart
Gas

Umgebung

Es wurden keine Daten angegeben.

Objektbeschreibung

Dieses charmante Reihenmittelhaus ist nicht nur eine großartige Wohnmöglichkeit, sondern auch eine hervorragende Investition für alle, die neu im Immobilien-Business sind.

Für nur 219.000 € bietet diese Immobilie eine großzügige Wohnfläche von 140,69 m² – perfekt geeignet für Familien, die Platz und Komfort schätzen. Das Dachgeschoss wurde bereits ausgebaut und beheizt und kann flexibel als modernes Studio oder kreativer Rückzugsort genutzt werden. Dank des Vollkellers mit 53,61 m² Zusatzfläche stehen Ihnen viele Nutzungsmöglichkeiten offen, sei es für Hobbyräume oder Lagerflächen.

Die Ausstattung ist bereits auf einem hohen Standard: Eine neuwertige Einbauküche und eine 2023 neu installierte Heizung sorgen für ein angenehmes Wohnklima. Das Haus ist herrlich gut gedämmt, was nicht nur den Wohnkomfort erhöht, sondern auch Ihre Energiekosten optimiert.

Besonders hervorzuheben ist der Glasfaseranschluss, der Ihnen blitzschnelles Internet ermöglicht – ein unschätzbarer Vorteil für junge Investoren oder Familien, die auf digitale Angebote angewiesen sind.

Zwei Stellplätze rund um die Immobilie und ein pflegeleichter Garten bieten zusätzlichen Komfort und ansprechende Gestaltungsmöglichkeiten für Ihre Freizeit im Freien.

Nutzen Sie die Gelegenheit, diese Immobilie zu kaufen und zu vermieten – besonders interessant für neue Investoren, die sich ein passives Einkommen aufbauen möchten. Die Nachfrage nach Mietwohnungen in dieser Region ist hoch, was Ihnen einen stabilen Ertrag verspricht.

Erleben Sie die Vorzüge des Lebens in Wiesmoor – zentrumsnah und zugleich im Einklang mit der Natur. Dieses Reihenmittelhaus ist der ideale Ort, um Ihre Träume zu verwirklichen und in die Welt der Immobilien zu starten!


Wohnfläche-und Nutzfläche:

Erdgeschoss:

Diele: 2,61 qm
WC: 2,05 qm
Flur: 5,15 qm
Küche: 13,22 qm
Wohnen/Essen 26,81 qm

Terrasse: 60,18 qm

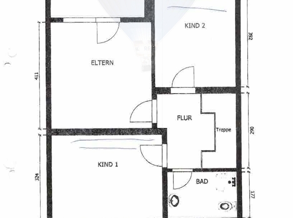
1. Obergeschoss:

Flur: 5,35 qm
Bad: 4,45 qm
Kind 1: 13,33 qm
Eltern: 15,45 qm
Kind 2: 11,69 qm
Balkon : 2,59 qm

Dachgeschoss:

Dachstudio: 23,07 qm
Flur: 4,60 qm


Kellergeschoss:

Flur: 5,14 qm
Vorräte: 4,18 qm
Werkstatt: 13,37 qm
Keller: 19,52 qm
Waschkeller: 11,40 qm

Angaben zum Energieausweis
- Art: Bedarfsausweis
- Gültig bis: 06.09.2031
- Endenergiebedarf: 173,8 kWh (m²*a)
- Baujahr lt. Energieausweis: 1968
- Wesentlicher Energieträger: Gas
- Baujahr Heizung: 2023
- Energieeffiziensklasse F

Ausstattung

* Highlights *

- Zentrale und ruhige Lage: Perfekte Kombination aus Stadtleben und ruhigem Wohnumfeld.

- Großzügige Wohnfläche: 140,69 m², verteilt auf zwei Etagen – ideal für Familien oder Paare.

- Ausgebautes Dachgeschoss: Gemütliches, beheiztes Studio für kreative Projekte oder als Rückzugsort.

- Vollunterkellert: Zusätzliche Nutzfläche von 53,61 m² für vielseitige Nutzungsmöglichkeiten.

- Neuwertige Einbauküche: Stilvolle und moderne Ausstattung für genussvolles Kochen und gesellige Abende.

- Neue Heizanlage: Heizungsanlage erst vor eineinhalb Jahren erneuert – beachten Sie, dass der Energieverbrauch im Energieausweis nicht den Energiebedarf der neuen Heizung widerspiegelt.

- Optimal gedämmt: Hohe Energieeffizienz für reduzierte Energiekosten.

- Komfortable Außenjalousien: Sorgen für Blendschutz und Privatsphäre.

- Überdachte Terrasse: Idealer Ort für gesellige Zusammenkünfte im Freien.

- Balkon im Schlafzimmer: Entspannender Rückzugsort mit Ausblick.

- Zwei Stellplätze: Bequeme Parkmöglichkeiten direkt am Haus.

- Pflegeleichter Garten: Genießen Sie Ihre grüne Oase für entspannte Stunden ohne großen Pflegeaufwand.

- Vorgarten: Ansprechende Gesamtoptik und Eingangsbereich des Hauses.

- Ein weiteres Highlight ist der Glasfaseranschluss, der im Haus verfügbar ist und Ihnen höchste Internetgeschwindigkeiten ermöglicht.

Lage

Das charmante Reihenmittelhaus befindet sich in der idyllischen Stadt Wiesmoor, einer einladenden Gemeinde im Herzen Ostfrieslands. Wiesmoor hat sich über die Jahre hinweg einen Namen als "Blumengemeinde" gemacht und bietet das ganze Jahr über malerische Szenen sowie kulturelle und naturverbundene Freizeitmöglichkeiten. Die Umgebung ist geprägt von einem harmonischen Zusammenspiel aus städtischer Infrastruktur und ländlichem Charme.

In unmittelbarer Nähe des Hauses befinden sich Einkaufsmöglichkeiten, Schulen und Kindergärten, was die Lage besonders für Familien attraktiv macht. Die zahlreichen Grünflächen und gepflegten Gartenanlagen laden zu Spaziergängen und sportlichen Aktivitäten ein, umrahmt von einer ruhigen und freundlichen Nachbarschaft. Dank der hervorragenden Verkehrsanbindung sind auch nahegelegene Städte und Sehenswürdigkeiten Ostfrieslands schnell und bequem erreichbar.

Erleben Sie die perfekte Balance aus modernem Wohnkomfort und naturnahem Leben im wunderschönen Wiesmoor – ein Ort, der mit seiner Vielseitigkeit und seinem Charme überzeugt.
Lade Orte in der Umgebung

Sonstiges

Es liegt ein Energiebedarfsausweis vor.
Dieser ist gültig bis 6.9.2031.
Endenergiebedarf beträgt 173.80 kwh/(m²*a).
Wesentlicher Energieträger der Heizung ist Gas.
Das Baujahr des Objekts lt. Energieausweis ist 1968.
Die Energieeffizienzklasse ist F.

**** BITTE SCHICKEN SIE UNS EINE E-Mail, DAMIT WIR IHRE ANFRAGE BERÜCKSICHTIGEN KÖNNEN !!!! ****

Agnieszka Jaroszewicz
Immobilienmaklerin

Tel.: 0491 997568-22
Mobil: 0157 38843445

E-Mail: agnieszka.jaroszewicz(at)remax.de

Provision: 4,17 % vom Kaufpreis inkl. 19% MwSt.

Die hier vereinbarte Maklerprovision (Courtage) ist NICHT verhandelbar!

Impressum:
Berufsaufsichtsbehörde:nach § 34c GewO: IHK für Ostfriesland und Papenburg, Postfach 1752, 26697 Emden
USt.ID: DE358178273
Informationen zur Online-Streitbeilegung: Die Europäische Kommission wird ab dem ersten Quartal 2016 eine Plattform zur Online-Streitbeilegung (sog. „OS-Plattform") bereitstellen. Diese finden Sie unter http://ec.europa.eu/consumers/odr/ Unsere E-Mail Adresse lautet: agnieszka.jaroszewicz@remax.de

Anbieterdaten

Agnieszka Jaroszewicz

Ansprech­partner

Agnieszka Jaroszewicz

Ihre Nachricht an RE/MAX Immo - Team

Ihr Ansprechpartner: Agnieszka Jaroszewicz

Mit (*) gekennzeichnete Felder sind Pflichtangaben.