Haus-im-Haus-Charakter: Luxuriöse 3-Zimmer-Maisonette mit 650m² eigenem Grundstück in Top-Lage Neuss
Eingangsbereich 3Terrasse WohnzimmerWohnzimmer EssbereichKücheKücheFlurBadezimmer EGBadezimmer EGGästebadezimmerBadezimmer OG 2Badezimmer OG 1Schlafzimmer EGSchlafzimmer OG AufgangGrundriss EGGrundriss OGEingangsbereich 1
Eckdaten
Zimmer
Wohnfl.
Grundst.
Kaufpreis
Zimmer
Wohnfl.
Grundst.
985000.0€ Kaufpreis
Basisdaten
Objektnummer
Immopark ID
IP-312300
Objekt ID
LDW1.TBA.10963
Adresse
41468 Neuss
Ort
41468 Neuss
Fakten und Zahlen
Wohnungstyp
Maisonette
Vermarktungsart
Kauf
Nutzungsart
wohnen
Verkaufsstatus
offen
Baujahr
2021
Kerndaten
Wohnfläche
165 m2
Zimmer
3.0
Schlafzimmer
2.0
Badezimmer
2.0
separate WC
2.0
Nutzfläche
200 m2
Anzahl Stellplätze (gesamt)
2.0
Bauweise / Substanz
Objektzustand
neuwertig
Etagenanzahl der Immobilie
2
Wohneinheiten
1.0
Bestimmungen
Nichtraucher - Haustiere
Nichtraucher
Preisdaten
Preis
Kaufpreis
985.000 €
Courtage
Käufercourtage
3,57 % inkl. MwSt. vom beurkundeten Kaufpreis
Innen- / Außencourtage
inkl. MwSt.
Merkmale
Zimmer und Bereiche
Gesamtfläche
40 m2
Anzahl (Terrassen)
1.0
Zimmer und Räume
Schlafzimmer
Ausstattung und Technik
Weitere Ausstattung
Kamin
Sanitäre Einrichtung
Sanitäre Einrichtung
Gäste WC
Stellplätze
Anzahl Stellplätze (gesamt)
2.0
Stellplatzdetails
Garage
Anzahl
2.0
Garten
Garten Nutzung
Gartennutzung
Energie
Energieausweis
Typ
Verbrauchsausweis
EnEV
ab 01.05.2014 (gemäß EnEV 2014)
Energieausweis gültig bis
2035-06-18
Energieverbrauchskennwert gemessen in kWh/(m²a)
109.40
A+ABCDEFGH
wesentlicher Energieträger
Gas
Energieeffizienzklasse
D
Baujahr lt. Energieausweis
2021
Gebäudeart lt. Energieausweis
Wohngebäude
Befeuerungsart
Befeuerungsart
Gas
Umgebung
Es wurden keine Daten angegeben.
Objektbeschreibung
Diese im Jahr 2021 errichtete, abgeschlossene Maisonette-Wohnung vereint modernen Wohnkomfort mit einem ausgeprägten Haus-im-Haus-Charakter. Mit drei Zimmern, eigenem Eingang sowie einem vollständig dieser Einheit zugeordneten Grundstück bietet sie ein Höchstmaß an Privatsphäre und Eigenständigkeit. Die Wohnung ist sofort bezugsfrei und präsentiert sich in einem nahezu neuwertigen Gesamtzustand.
Die offizielle Wohnfläche von ca. 165 m² erstreckt sich über zwei Ebenen und überzeugt durch ein durchdachtes Raumkonzept mit großzügigen, lichtdurchfluteten Bereichen. Besonders hervorzuheben ist, dass das ca. 650 m² große Grundstück vollständig und exklusiv dieser Maisonette-Wohnung zugeordnet ist – eine Seltenheit im Wohnungseigentum und ein wesentliches Alleinstellungsmerkmal. Der rund 440 m² große Garten schafft ein Wohngefühl, das eher an ein Einfamilienhaus erinnert. Die ca. 40 m² große Süd-Ost-Terrasse bietet optimale Sonnenausrichtung und ermöglicht geschützte Aufenthaltsqualität mit maximaler Privatsphäre.
Die technische Ausstattung entspricht höchsten Standards. Ein neuer Brennwertofen in Kombination mit einer vollflächigen Fußbodenheizung gewährleistet eine effiziente und gleichmäßige Wärmeversorgung im gesamten Haus. Ein hochwertiger Gaskamin sorgt zusätzlich für eine stilvolle und behagliche Atmosphäre im Wohnbereich. Doppelverglaste Fenster aus dem Baujahr 2021 unterstützen die Energieeffizienz und sorgen für angenehme Wohnruhe.
Das vollständig elektrifizierte und sprachgesteuerte Smart-Home-Konzept unterstreicht den modernen, zukunftsorientierten Charakter der Immobilie und ermöglicht die komfortable Steuerung zahlreicher Funktionen. Hochwertige automatische Komfort-WCs im gehobenen Preissegment (Investition ca. 4.000–5.000 € pro Einheit) ergänzen den luxuriösen Anspruch.
Die exklusive Einbauküche mit einem ursprünglichen Investitionsvolumen von rund 50.000 € ist mit hochwertigen Elektrogeräten ausgestattet und verfügt über eine individuell designte High-End-Abzugshaube. Zwei hochwertige Kühlschränke sowie ein separater Weinkühlschrank runden das anspruchsvolle Küchendesign ab.
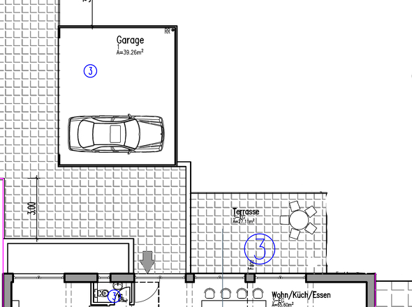
Eine große Doppelgarage mit Platz für zwei Fahrzeuge komplettiert dieses Angebot. Insgesamt handelt es sich um eine hochwertig und luxuriös ausgestattete Maisonette-Wohnung mit eigenem, vollständig zugeordnetem Grundstück – eine Kombination aus maximaler Privatsphäre, modernster Technik und nachhaltiger Wertqualität in begehrter Lage.
Ausstattung
- Sofort bezugsfrei - ca. 650 m² Grundstück - ca. 440 m² großzügiger Garten - ca. 40 m² Süd-Ost-Terrasse mit optimaler Sonnenausrichtung - Offizielle Wohnfläche: ca. 165 m² - Doppelverglaste Fenster (Baujahr 2021) - Höchste technische Standards - Vollständig elektrifiziertes Smart-Home-Konzept (sprachgesteuert) - Neuer Brennwertofen - Fußbodenheizung im gesamten Haus - Hochwertiger Gaskamin - Automatische Komfort-WCs (Investition ca. 4.000–5.000 € pro Einheit) - Hochwertige Einbauküche mit High-End-Abzugshaube (ca. 5 Jahre alt, Neupreis ca. 50.000 €) - Zwei hochwertige Kühlschränke und Weinkühlschrank - Exklusive Elektrogeräte - Große Doppelgarage für 2 KFZ - Nahezu neuwertiger Gesamtzustand - Modernste Ausstattung in allen Bereichen - Hochwertige & luxuriöse Gesamtausstattung
Lage
Die Immobilie befindet sich im äußerst beliebten Neusser Stadtteil Uedesheim und verbindet ruhiges, familienfreundliches Wohnen mit einer außergewöhnlichen Lagequalität. Hier genießen Sie ein nahezu dörfliches Umfeld mit hoher Privatsphäre und gewachsener Nachbarschaft – und zugleich eine Umgebung, die durch ihre unmittelbare Nähe zum Rhein fast schon Urlaubscharakter vermittelt.
Neuss-Uedesheim zählt zu den gefragtesten Wohnlagen im gesamten Neusser Stadtgebiet. Der Stadtteil überzeugt durch seine direkte Rheinlage, weitläufige Grünflächen und zahlreiche Freizeitmöglichkeiten entlang der Rheinauen. Spaziergänge, Joggingrunden oder Fahrradtouren beginnen praktisch vor der Haustür. Trotz dieser naturnahen Atmosphäre hat sich Uedesheim seine hervorragende infrastrukturelle Anbindung bewahrt: Die Neusser Innenstadt sowie die Landeshauptstadt Düsseldorf sind in kurzer Zeit erreichbar.
Die sehr gute Anbindung an den öffentlichen Personennahverkehr – insbesondere über die Buslinien 851 und 875 – gewährleistet eine komfortable Verbindung in Richtung Neuss, Düsseldorf und in das umliegende Rhein-Ruhr-Gebiet. Auch mit dem Pkw profitieren Pendler von einer schnellen Erreichbarkeit der umliegenden Autobahnachsen. Einkaufsmöglichkeiten des täglichen Bedarfs, Kindergärten, Schulen sowie medizinische Versorgungseinrichtungen befinden sich in gut erreichbarer Nähe und unterstreichen die hohe Wohn- und Lebensqualität dieses Standorts.
Die Kombination aus naturnaher Rheinlage, ruhiger Wohnstruktur, ausgezeichneter Infrastruktur und Nähe zur Landeshauptstadt sorgt nicht nur für ein angenehmes Wohnumfeld, sondern auch für eine nachhaltige Wertstabilität. Diese Lage bietet somit ideale Voraussetzungen sowohl für anspruchsvolle Eigennutzer als auch mit Blick auf eine langfristig stabile Wiederverkaufsperspektive.
Lade Orte in der Umgebung
Sonstiges
Für die Richtigkeit sowie der Vollständigkeit der genannten Immobilienangabe übernehmen wir keine Haftung. Diese basieren ausschließlich auf Angaben vom Eigentümer.
Provisionsanspruch: Wir haben Ihnen für diese Immobilie eine Gelegenheit zum Kauf vorgestellt und nachgewiesen. Sollte es infolgedessen für dieses Objekt zu einem Kaufvertragsabschluss mit der Eigentümerseite kommen, wird hiermit darauf hingewiesen, dass Nachweis bzw. Vermittlung ausschließlich durch uns zustande kamen und somit wird, im Falle des Zustandekommens eines Kaufvertrages, die nachfolgend aufgeführte Maklerprovision fällig und zahlbar.
Maklerprovision: Die Höhe der vom Käufer bei Abschluss eines Kaufvertrages zu entrichtende Maklerprovision beträgt im Falle des Erwerbs einer Immobilie 3,57 % inkl. MwSt. des notariell beurkundeten Kaufpreises. Diese Maklerprovision ist verdient und fällig bei Abschluss des Kaufvertrages.
Der Maklervertrag mit uns kommt entweder durch schriftliche Vereinbarung oder auch durch die Inanspruchnahme unserer Maklertätigkeit auf der Basis des Objekt-Exposés und seiner Bedingungen zustande. Sollte das von uns nachgewiesene Objekt bereits bekannt sein, teilen Sie uns dieses bitte unverzüglich mit.
Widerrufsrecht: Ihr Widerrufsrecht ist in § 355 des BGB geregelt und schützt Sie als Verbraucher vor vertraglichen Bedingungen. Sie als Verbraucher haben das Recht, sich unter bestimmten Voraussetzungen von einem bereits geschlossenen Vertrag innerhalb gesetzlicher Fristen durch Erklärung des Widerrufs zu lösen.
GELDWÄSCHE: Als Immobilienmaklerunternehmen sind wir nach § § 1, 2 Abs. 1 Nr. 10, 4 Abs. 3 Geldwäschegesetz (GwG) dazu verpflichtet, vor Begründung einer Geschäftsbeziehung die Identität des Vertragspartners festzustellen und zu überprüfen. Hierzu ist es erforderlich, dass wir die relevanten Daten Ihres Personalausweises festhalten - beispielsweise mittels einer Kopie. Das Geldwäschegesetz (GwG) sieht vor, dass der Makler die Kopien bzw. Unterlagen fünf Jahre aufbewahren muss.