Sofort verfügbar ! Gepflegtes Zweifamilienhaus in ruhiger Lage.

Eckdaten

 Zimmer
 Wohnfl.
 Grundst.
Kaufpreis
 Zimmer
 Wohnfl.
 Grundst.

Kaufpreis

Basisdaten

Objektnummer
Immopark ID
IP-313610
Objekt ID
LDW1.MV.11028
Adresse
Ort
76596 Forbach
Fakten und Zahlen
Haustyp
Zwei­familien­haus
Vermarktungsart
Kauf
Nutzungsart
Anlage
Verkaufsstatus
offen
Baujahr
1955
Kerndaten
Wohnfläche
182,15 m2
Zimmer
8.0
Schlafzimmer
4.0
Badezimmer
2.0
Nutzfläche
85 m2
Vermietbare Fläche
182,15 m2
Grundstücksfläche
339 m2
Anzahl Stellplätze (gesamt)
2.0
Bauweise / Substanz
Objektzustand
gepflegt
Bauweise
Massivhaus
Etagenanzahl der Immobilie
3

Preisdaten

Preis
Kaufpreis
449.000 €
Courtage
Käufercourtage
4,76 % vom Kaufpreis inkl. gesetzl. Mehrwertsteuer

Merkmale

Zimmer und Bereiche
Voll unterkellert
Anzahl (Terrassen)
1.0
Schlaf­zimmer
Winter­garten
Wasch- / Trocken­raum
Ausstattung und Technik
Einbau­küche
Kamin
Sanitäre Einrichtung
Gäste WC
Stellplätze
Anzahl Stellplätze (gesamt)
2.0
Freiplatz
Anzahl
2.0
Garage
Anzahl
2.0

Energie

Energieausweis
Typ
Bedarfs­ausweis
EnEV
ab 01.05.2014 (gemäß EnEV 2014)
Energieausweis gültig bis
2031-09-21
Endenergiebedarf gemessen in kWh/(m²a)
24.08

A+ABCDEFGH

wesentlicher Energieträger
Öl
Energieeffizienz­klasse
H
Baujahr lt. Energieausweis
2003
Gebäudeart lt. Energieausweis
Wohngebäude
Befeuerungsart
Öl
Solar
Holz

Umgebung

Es wurden keine Daten angegeben.

Objektbeschreibung

Das äußerst großzügige Zweifamilienhaus wurde im Jahr 1955 in massiver Bauweise in einer ruhigen Lage von Forbach-Gausbach errichtet. Die Immobilie wurde im Jahr 1986 komplett umgebaut und modernisiert.

Das Anwesen befindet sich fernab der städtischen Hektik und ist auch hervorragend für eine große Familie geeignet. Die großzügige Raumaufteilung, die ideale Anordnung der Zimmer und die durchweg sehr hellen Räume vermitteln allzeit ein Gefühl von Freiheit und guter Laune.

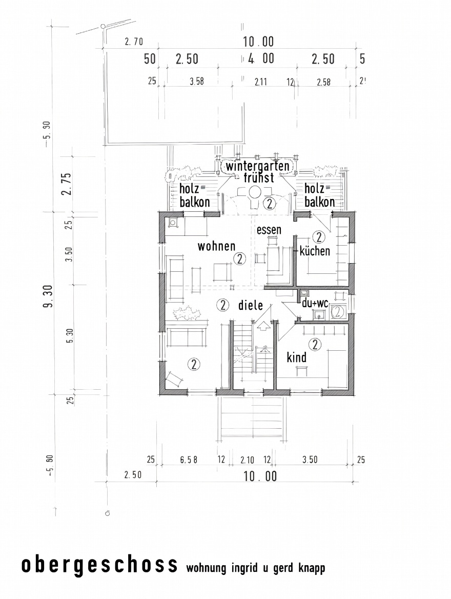
Das Herzstück des Hauses bildet sicherlich im I.OG der große und offen gestaltete Wohn- und Essbereich mit offenem Kamin und direktem Zugang zu den zwei Sonnenbalkonen. Des Weiteren befindet die Küche, ein Kinderzimmer/Büro und das Gäste-WC mit Dusche. Das Dachgeschoss wurde im Zuge der Sanierung ausgebaut, dort befindet sich das Elternschlafzimmer, ein weiteres Kinderzimmer und ein großzügiges Tageslichtbad.

Die Erdgeschosswohnung mit 3 Zimmern, und ca. 70m² einer neuwertigen Einbauküche und großem Balkon runden das Bild ab.

Ob Großfamilie, Teilvermietung (EG) oder Kapitalanlage.

Dieses Schmuckstück bietet großes Potenzial zu Verwirklichung Ihrer (Wohn) Träume.

Das Anwesen wird momentan noch vom Eigentümer bewohnt und ist kurzfristig verfügbar.

Überzeugen Sie sich selbst von dieser außergewöhnlichen Immobilie, und vereinbaren Sie am besten noch heute Ihren ganz persönlichen Besichtigungstermin. Ich freue mich auf Ihre Kontaktaufnahme!

Ausstattung

UG:
-Technikraum Öl-Zentralheizung oder wahlweise Holz (auch kombinierbar) zusätzlich wurde im Jahr 2008 eine Solaranlage installiert, welche größtenteils den gesamten Warmwasserbereich abdeckt.
- Waschraum
- Hobbyraum

EG:
- 3-Zimmer-Wohnung ca. 70m²
- großer Balkon
- neue Einbauküche
- barrierefreies Tageslichtbad

OG:
- 5-Zimmer-Wohnung ca. 112m²
- Wintergarten
- offener Kamin
- Einbauküche
- 2 Sonnenbalkone
- schöne Raumaufteilung

- Einzelgarage
- Zusätzliche Garage geeignet für Fahrräder, Kinderwagen....
- Stellplatz

Lage

Das Baden-Württembergische Forbach liegt mit ca. 4700 Einwohnern im nördlichen Schwarzwald und gehört zum Landkreis Rastatt. Die angebotene Immobilie befindet sich in familienfreundlicher, ruhiger Lage von Forbach-Gausbach. Alle Dinge des täglichen Bedarfs wie Einkaufsmöglichkeiten, medizinische Versorgung, Schulen, Kitas sowie gastronomische Angebote und Freizeitmöglichkeiten sind im Umland vorhanden. An den öffentlichen Nahverkehr sind Sie per S-Bahn gut angebunden, die nächste Haltestelle ist ca. 5 Gehminuten entfernt.
Lade Orte in der Umgebung

Sonstiges

Da wir uns bei allen Angaben auf die Informationen Dritter stützen müssen, können wir keine Gewähr für deren Richtigkeit und Vollständigkeit übernehmen.

Bitte haben Sie Verständnis dafür, dass wir nur Anfragen mit vollständiger Adressangabe und erreichbarer Handynummer bearbeiten können.

Nachdem Ihre Anfrage per E-Mail bei uns eingegangen ist, werden wir uns mit Ihnen zur Abstimmung eines Besichtigungstermins in Verbindung setzen. Bitte nennen Sie deshalb in Ihrer E-Mail eine Tel.-Nr., unter der wir Sie sicher erreichen können.

Widerrufsbelehrung für Verbraucher:
Sie haben das Recht, binnen vierzehn Tagen ohne Angabe von Gründen diesen Vertrag zu widerrufen. Die Widerrufsfrist beträgt vierzehn Tage ab dem Tag des Vertragsabschlusses.

Um Ihr Widerrufsrecht auszuüben, müssen Sie uns (Königskinder Immobilien GmbH, Königstraße 62, 70173 Stuttgart, Tel: 0711 4005440, Fax: 0711 40054433, info@koenigskinder.de) mittels einer eindeutigen Erklärung (z. B. ein mit der Post versandter Brief, Telefax oder E-Mail) über Ihren Entschluss, diesen Vertrag zu widerrufen, informieren.

Zur Wahrung der Widerrufsfrist reicht es aus, dass Sie die Mitteilung über die Ausübung des Widerrufsrechts vor Ablauf der Widerrufsfrist absenden.

Folgen des Widerrufs:
Wenn Sie diesen Vertrag widerrufen, haben wir Ihnen alle Zahlungen, die wir von Ihnen erhalten haben, unverzüglich und spätestens binnen vierzehn Tagen ab dem Tag zurückzuzahlen, an dem die Mitteilung über Ihren Widerruf dieses Vertrags bei uns eingegangen ist. Für diese Rückzahlung verwenden wir dasselbe Zahlungsmittel, das Sie bei der ursprünglichen Transaktion eingesetzt haben, es sei denn, mit Ihnen wurde ausdrücklich etwas anderes vereinbart; in keinem Fall werden Ihnen wegen dieser Rückzahlung Entgelte berechnet.

Haben Sie verlangt, dass die Dienstleistungen während der Widerrufsfrist beginnen soll, so haben Sie uns einen angemessenen Betrag zu zahlen, der dem Anteil der bis zu dem Zeitpunkt, zu dem Sie uns von der Ausübung des Widerrufsrechts hinsichtlich dieses Vertrags unterrichten, bereits erbrachten Dienstleistungen im Vergleich zum Gesamtumfang der im Vertrag vorgesehenen Dienstleistungen entspricht.

Anbieterdaten

Martin Voigt

Ansprech­partner

Martin Voigt

Ihre Nachricht an Königskinder Immobilien GmbH

Ihr Ansprechpartner: Martin Voigt

Mit (*) gekennzeichnete Felder sind Pflichtangaben.