Erdgeschosswohnung mit Garten und Garage - solide Gelegenheit in Ibbenbüren-Püsselbüren

Eckdaten

 Zimmer
 Wohnfl.
 Grundst.
Kaufpreis
 Zimmer
 Wohnfl.
Grundst.

Kaufpreis

Basisdaten

Objektnummer
Immopark ID
IP-314476
Objekt ID
1049-192
Adresse
Ort
49479 Ibbenbüren / Püsselbüren
Fakten und Zahlen
Wohnungstyp
Erd­geschoss
Vermarktungsart
Kauf
Nutzungsart
wohnen
Verkaufsstatus
offen
Baujahr
1980
Kerndaten
Wohnfläche
96 m2
Zimmer
3.0
Schlafzimmer
2.0
Badezimmer
1.0
separate WC
1.0
Bauweise / Substanz
Objektzustand
gepflegt

Preisdaten

Preis
Kaufpreis
238.500 €
Courtage
Käufercourtage
3,57 inkl. MwSt.
inkl. MwSt.

Merkmale

Zimmer und Bereiche
Anzahl (Terrassen)
1.0
Schlaf­zimmer
Sanitäre Einrichtung
Dusche
Wanne

Energie

Energieausweis
Typ
Bedarfs­ausweis
EnEV
ab 01.05.2014 (gemäß EnEV 2014)
Energieausweis gültig bis
2036-03-10
Endenergiebedarf gemessen in kWh/(m²a)
214.80

A+ABCDEFGH

wesentlicher Energieträger
Gas
Energieeffizienz­klasse
G
Baujahr lt. Energieausweis
1999
Gebäudeart lt. Energieausweis
Wohngebäude

Umgebung

Es wurden keine Daten angegeben.

Objektbeschreibung

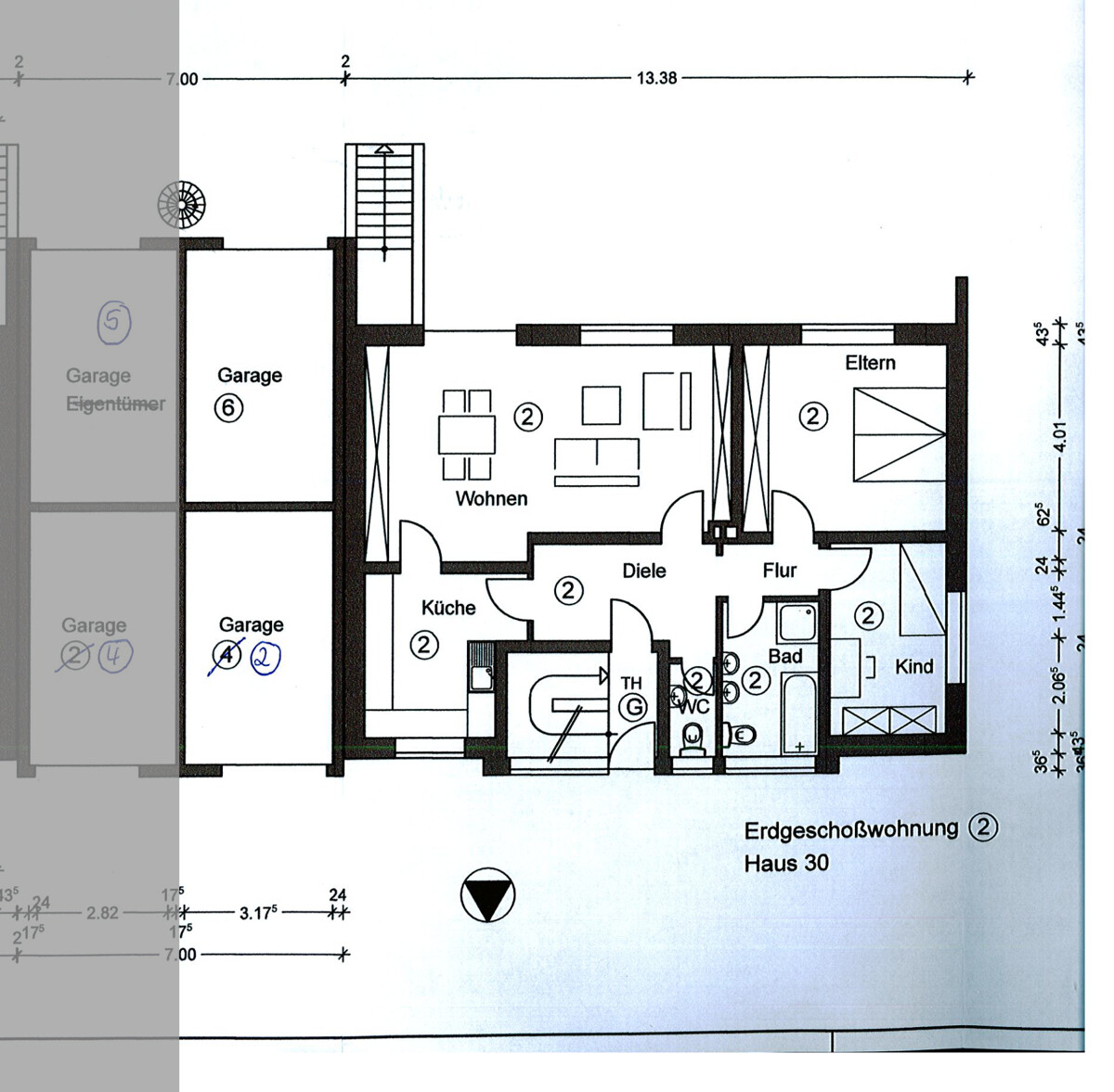
Diese gepflegte Erdgeschosswohnung aus dem Baujahr 1978 überzeugt mit einer durchdachten Raumaufteilung und einem schönen, eigenen Gartenbereich. Auf ca. 96 m² Wohnfläche bietet die Wohnung ausreichend Platz. Die Wohnung befindet sich in ruhiger Wohnlage von Ibbenbüren-Püsselbüren.

Beim Betreten der Wohnung gelangen Sie in den zentralen Flur, von dem aus alle Räume bequem erreichbar sind. Die separate Küche bietet ausreichend Platz zum Kochen und Verstauen.

Das Herzstück der Wohnung bildet der großzügige Wohn- und Essbereich mit direktem Zugang in den liebevoll angelegten Garten. Dieser lädt zum Entspannen ein.

Das Badezimmer wurde bereits modernisiert und ist sowohl mit einer Dusche als auch mit einer Badewanne ausgestattet. Zusätzlich steht ein ebenfalls modernisiertes Gäste-WC zur Verfügung.

Ein geräumiges Elternschlafzimmer sowie ein weiteres Zimmer, das flexibel als Gästezimmer, Kinderzimmer oder Hobbyraum genutzt werden kann, runden das Raumangebot ab.

Zur Wohnung gehört zudem ein eigener, abschließbarer Kellerraum. Darüber hinaus stehen ein gemeinschaftlicher Waschkeller sowie ein Trockenraum zur Verfügung.

Auch im Außenbereich überzeugt die Immobilie: Der Garten ist schön angelegt und bietet neben einer angenehmen Privatsphäre praktische Zugänge sowohl zur Vorderseite als auch direkt zum Hinterhof und zur Garage.

Einkaufsmöglichkeiten, Ärzte, Schulen und Kindergärten sind in wenigen Minuten erreichbar. Auch die Anbindung an das Stadtzentrum von Ibbenbüren sowie die umliegenden Verkehrsachsen ist gut gegeben.

Die Wohnung ist seit dem 01.10.2025 vermietet und eignet sich somit auch ideal als Kapitalanlage. Weitere Informationen zu den Mietdetails stellen wir Ihnen gerne auf Anfrage zur Verfügung.

Lage

Die Wohnung befindet sich in einem überwiegend wohnbaulich geprägten Teil von Ibbenbüren im Ortsteil Püsselbüren. Die Umgebung ist durch Ein- und Mehrfamilienhäuser geprägt und wirkt insgesamt ruhiger und gewachsener als zentrale Stadtlagen, jedoch ohne besonderen städtebaulichen Anspruch. Es handelt sich um ein klassisches Wohngebiet mit einfacher Struktur, in dem sich Nachbarschaften über die Jahre entwickelt haben. Einkaufsmöglichkeiten für den täglichen Bedarf sowie grundlegende Einrichtungen sind im weiteren Umfeld vorhanden, allerdings meist nicht direkt fußläufig erreichbar.

Die Anbindung an das Stadtgebiet von Ibbenbüren ist gegeben, sodass auch weiterführende Infrastruktur wie größere Einkaufsmöglichkeiten, Ärzte, Schulen und Freizeitangebote genutzt werden können. Die Lage eignet sich insbesondere für Personen, die eine eher ruhige, wohnorientierte Umgebung bevorzugen, dabei jedoch bereit sind, für viele Erledigungen kurze Fahrwege in Kauf zu nehmen. Insgesamt handelt es sich um eine funktionale Wohnlage ohne besondere Highlights, die vor allem durch ihre solide und unaufgeregte Struktur geprägt ist.
Lade Orte in der Umgebung

Sonstiges

Widerrufsbelehrung für Verbraucher:
Sie haben das Recht, binnen vierzehn Tagen ohne Angabe von Gründen diesen Vertrag zu widerrufen. Die Widerrufsfrist beträgt vierzehn Tage ab dem Tag des Vertragsabschlusses.
Um Ihr Widerrufsrecht auszuüben, müssen Sie uns:
RE/MAX Immobilien Grafschaft Bentheim, Veldhausener Str. 34, 49828 Neuenhaus
Tel. 05941 – 98990 0, Fax. 05941 – 98990 29, E-Mail: info@remax-grafschaft.de
mittels einer eindeutigen Erklärung (z.B. ein mit der Post versandter Brief, Telefax oder E-Mail) über Ihren Entschluss, diesen Vertrag zu widerrufen, informieren. Zur Wahrung der Widerrufsfrist reicht es aus, dass Sie die Mitteilung über die Ausübung des Widerrufsrechts vor Ablauf der Widerrufsfrist absenden.
Folgen des Widerrufs:
Wenn Sie diesen Vertrag widerrufen, haben wir Ihnen alle Zahlungen, die wir von Ihnen erhalten haben, unverzüglich und spätestens binnen vierzehn Tagen ab dem Tag zurückzuzahlen, an dem die Mitteilung über Ihren Widerruf dieses Vertrags bei uns eingegangen ist. Für diese Rückzahlung verwenden wir dasselbe Zahlungsmittel, das Sie bei der ursprünglichen Transaktion eingesetzt haben, es sei denn, mit Ihnen wurde ausdrücklich etwas anderes vereinbart; in keinem Fall werden Ihnen wegen dieser Rückzahlung Entgelte berechnet. Haben Sie verlangt, dass die Dienstleistungen während der Widerrufsfrist beginnen soll, so haben Sie uns einen angemessenen Betrag zu zahlen, der dem Anteil der bis zu dem Zeitpunkt, zu dem Sie uns von der Ausübung des Widerrufsrechts hinsichtlich dieses Vertrags unterrichten, bereits erbrachten Dienstleistungen im Vergleich zum Gesamtumfang der in Vertrag vorgesehenen Dienstleistungen entspricht.

Käuferprovision:
Die auf Seite 2 genannte Käuferprovision (inkl. gesetzlicher Umsatzsteuer, derzeit 19%) ist vom Käufer zu zahlen. Verdient und fällig wird diese erst mit notarieller Beurkundung. Die Berechnungsgrundlage ist der notariell festgeschriebene Kaufpreis.

Sämtliche Angebote sind freibleibend und basieren auf Informationen, die der Eigentümer erteilt hat; eine Haftung für deren Richtigkeit und Vollständigkeit kann deshalb nicht übernommen werden. Zwischenverkauf bzw. -vermietung bleibt dem Eigentümer vorbehalten.

Anbieterdaten

Nele Willering

Ansprech­partner

Nele Willering

Ihre Nachricht an RE/MAX Grafschaft Bentheim - Frank grote Hölmann eK

Ihr Ansprechpartner: Nele Willering

Mit (*) gekennzeichnete Felder sind Pflichtangaben.