Großzügige, lichtdurchflutete Maisonettewohnung mit vielen technischen Highlights am Central

Eckdaten

 Zimmer
 Wohnfl.
 Grundst.
Kaufpreis
 Zimmer
 Wohnfl.
Grundst.

Kaufpreis

Basisdaten

Objektnummer
Immopark ID
IP-315820
Objekt ID
5246
Adresse
Ort
42653 Solingen
Fakten und Zahlen
Wohnungstyp
Pent­house
Vermarktungsart
Kauf
Nutzungsart
wohnen
Verkaufsstatus
offen
Baujahr
1983
Kerndaten
Wohnfläche
155 m2
Zimmer
5.0
Schlafzimmer
2.0
Badezimmer
2.0
Nutzfläche
17 m2
Anzahl Stellplätze (gesamt)
1.0
Bauweise / Substanz
Objektzustand
teil- vollsaniert
Etagenanzahl der Immobilie
4
Lage im Gebäude
Etage
3
Verfügbarkeit
Verfügbar ab
nach Vereinbarung

Preisdaten

Preis
Kaufpreis
385.000 €
Weitere Kosten
Hausgeld
628 €
Courtage
Käufercourtage
2,98 % inkl. MwSt.
inkl. MwSt.

Merkmale

Zimmer und Bereiche
Voll unterkellert
Gesamtfläche
28 m2
Anzahl (Terrassen)
1.0
Schlaf­zimmer
Wasch- / Trocken­raum
Ausstattung und Technik
Qualität der Ausstattung
gehoben
Einbau­küche
Kabel Sat TV
Kamin
Sanitäre Einrichtung
Gäste WC
Wellness
Sauna
Stellplätze
Anzahl Stellplätze (gesamt)
1.0
Garage
Anzahl
1.0
Kaufpreis
15.000 €

Energie

Energieausweis
wesentlicher Energieträger
Elektro
Baujahr lt. Energieausweis
1983
Gebäudeart lt. Energieausweis
Wohngebäude

Umgebung

Es wurden keine Daten angegeben.

Objektbeschreibung

Sehr geehrte/r Interessent/in,

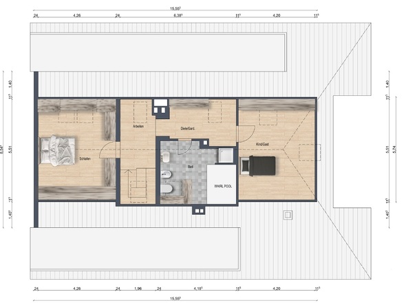
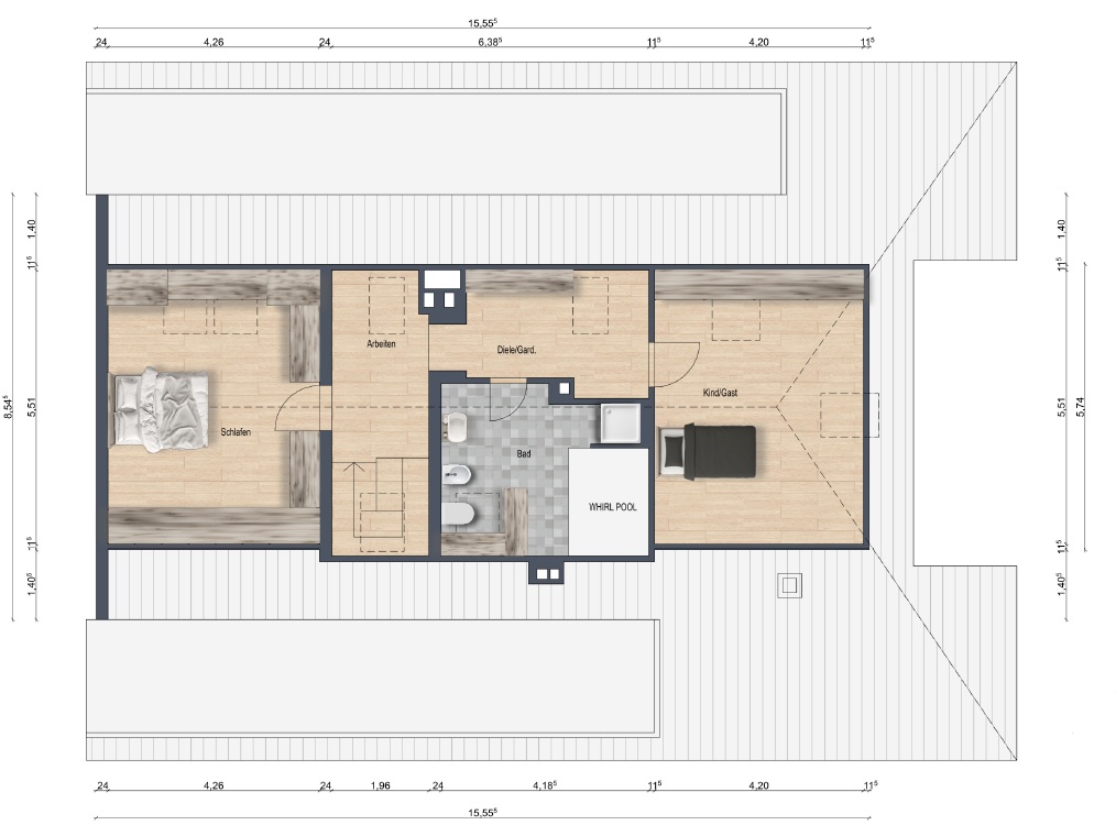
wir möchten Ihnen hier eine schöne, großzügige Maisonettewohnung in einer gepflegten Eigentümergemeinschaft vorstellen. Die Wohnung, die auf der obersten Etage des Hauses relativ autark liegt, erstreckt sich auf einer Wohnfläche von ca. 155 m² über zwei Etagen und kann auch als Haus im Haus gesehen werden.
Sie betreten die Wohnung über die untere der beiden Etagen und gelangen direkt in den hellen Flurbereich. Von dort erreichen Sie das geräumige Wohnzimmer mit dem direkt angeschlossenen, derzeitigen Arbeits- und Hobbyzimmer. Die beiden Räume sind durch eine charmante und stilvolle Schiebetür getrennt, die hinter einem hochwertigen Holzregal verschwindet. Im Wohnzimmer mit vielen großen Fensterflächen u.a. zur Dachterrasse, befindet sich ein intakter Kachelofen, der auch von einem Schornsteinfeger abgenommen wurde. Das Hobbyzimmer verfügt über einen kleinen Kamin, der derzeit wenig in Betrieb ist.
Zwischen Küche und Hobbyzimmer (auch vom Flur direkt erreichbar) befindet sich der Essbereich. Dieser wird abgerundet von sehr praktischen Einbauschränken. Die Küche verfügt über eine wenige Jahre alte, moderne und hochwertig ausgestattete Einbauküche und ein praktisches Einbauregal mit Schiebetüren für Vorräte. Die Küche ist im Kaufpreis bereits enthalten.
Auf der unteren Etage befindet sich ebenfalls ein vollwertiges Badezimmer mit Fenster, Waschbecken, WC, Bidet und Dusche. Vom Flur der unteren Etage gelangt man direkt auf die ca. 28 m² große, neu gestaltete Dachterrasse mit Süd- West- Ausrichtung, die reichlich Platz für Sitzgelegenheiten und einen Grill bietet. Die Markise bietet neben Sonnenschutz auch an kühleren Tagen Schutz, da sie quasi die gesamte Dachterrasse abdeckt. Rechts und links von der Dachterrasse gehen kleine Abstellräume (mit Fenster und Heizung) ab, einer beinhaltet die Anschlüsse für Waschmaschine und Trockner, und bietet ebenfalls Stauraum, der andere Abstellraum beherbergt eine Blocksauna. Dieser Raum könnte ebenfalls als Hobbyraum genutzt werden und bietet aufgrund der Größe auch Platz für weitere Vorräte oder Abstellmöglichkeiten.
Zurück im Essbereich befindet sich eine elegante, geschlossene Holztreppe, die ins obere Stockwerk der Wohnung führt. Dort befinden sich das großzügige Schlafzimmer mit ebenfalls vielen praktischen Einbauschränken, das ebenfalls gut geschnittene und große Kinderzimmer und das große Master- Badezimmer mit Dusche, großer Eck- Wellnessbadewanne, Bidet, Waschbecken und WC, sowie einem Fenster. Im Flur des oberen Stockwerks befinden sich ebenfalls viele Einbauschränke.
Aufgrund der Lage in den obersten beiden Stockwerken ist diese Wohnung kaum einsehbar, die Dachterrasse bietet zudem ein hohes Maß an Privatsphäre. Von allen Fenstern der Wohnung bietet sich ein naturnaher Blick ins Grüne.

Ausstattung

In den Jahren 2019, 2020 und 2021 wurde die Wohnung umfangreich renoviert. So wurden alle Fenster erneuert und auf der Sonnenseite mit Rollläden versehen, der Holzboden im unteren Geschoss wurde abgezogen und die Regler der Fußbodenheizung modernisiert.
Am Haus selbst wurde im Oktober 2025 eine Hybridheizungsanlage mit Wärmepumpe (und Gas als Sekundärwärmeträger) eingebaut, und es wurde beschlossen, dass ein Lademanagementsystem für den Anschluss von Wallboxen installiert werden soll. Ebenfalls wurde ein Glasfaseranschluss beantragt.
In der Wohnung wurde eine Klimaanlage mit 3 Innengeräten (2x Schlafzimmer und 1x Wohnbereich) angebracht, welche auch für die Warmwasseraufbereitung (190 L Speicher) genutzt werden kann. Außerdem wurde ein Balkonkraftwerk angebracht.
Durch die vielen und teilweise großen Fenster kann die Wohnung auch an dunklen, verregneten Tagen mit Helligkeit punkten.
Abgerundet wird das Angebot von einem eigenen Kellerraum, sowie einer Garage, die für einen Preis von 15.000 € angeboten wird. Durch die Lage im Haus ist die Garage immer trocken und relativ warm.

Lage

Der Stadtteilbereich Central liegt ideal zwischen der Stadtmitte, Wald und Gräfrath. Hier finden Sie alle wichtigen Geschäfte des täglichen Bedarfs wie Supermärkte, Banken, Post, Ärzte, Bäcker usw. in unmittelbarer Nähe zur Wohnung (auch fußläufig zu erreichen). Hinzu kommt die ideale Anbindung der Buslinen entweder in die City, nach Ohligs/Wald oder Gräfrath. Kindergärten und Schulen befinden sich ebenfalls in einer angenehmen Nähe zur Wohnung.
Auch die nahe Anbindung zur Autobahn A46 ist ein Vorteil für Berufspendler nach Düsseldorf, Köln, Wuppertal und Dortmund.
Trotz der sehr zentralen Lage der Wohnung sind es nur wenige Minuten ins Grüne, wie bspw. ins Ittertal, nach Nümmen, ins Bärenloch oder die Fauna. Wer ein Zuhause mit Nähe zur Natur, und dennoch in zentraler, aber grüner Umgebung sucht, ist hier genau richtig.
Lade Orte in der Umgebung

Sonstiges

Haben wir Ihr Interesse an der Wohnung geweckt? Dann rufen Sie uns gerne an und vereinbaren Sie einen Besichtigungstermin. Wir freuen uns, Ihnen diese schöne Wohnung persönlich zeigen zu dürfen.

RECHTSHINWEIS
Da wir Objektangaben nicht selbst ermitteln, übernehmen wir hierfür keine Gewähr. Dieses Exposé ist nur für Sie persönlich bestimmt. Eine Weitergabe an Dritte ist an unsere ausdrückliche Zustimmung gebunden und unterbindet nicht unseren Provisionsanspruch bei Zustandekommen eines Vertrages. Alle Gespräche sind über unser Büro zu führen. Bei Zuwiderhandlung behalten wir uns Schadenersatz bis zur Höhe der Provisionsansprüche ausdrücklich vor. Zwischenverkauf ist nicht ausgeschlossen.

Anbieterdaten

Ramona Dietz

Ansprech­partner

Ramona Dietz

Ihre Nachricht an m² Immobilien GmbH

Ihr Ansprechpartner: Ramona Dietz

Mit (*) gekennzeichnete Felder sind Pflichtangaben.