Außenansicht - DrohneAußenansichtAußenansichtAußenansichtGebäudezugangGebäude-EingangFlur im EGFlur im EGFlur im EGEmpfangsbüro im EGGroßes Büro im EGGroßes Büro im EGBesprechungsbereich im EGBesprechungsraum 1 im EGBesprechungsraum 1 im EGBesprechungsraum 2 im EGBesprechungsraum 2 im EGWC im EGWC im EGTreppenhaus im EGFlur im 1. OGFlur und Teeküche im 1. OGWC im 1. OGWC im 1. OGBüro 2 im 1. OGBüro 2 im 1. OGBüro 3 im 1. OGBüro 3 im 1. OGBüro 4 im 1. OGBüro 4 im 1. OGGegensprechanlage im 1. OGTreppenhaus im 1. OGZugang 2. OGFlur im 2. OGFlur im 2. OGBüro 1 im 2. OGBüro 1 im 2. OGBüro 2 im 2. OGBüro 2 im 2. OGBüro 3 im 2. OGBüro 3 im 2. OGBüro 4 im 2. OGBüro 4 im 2. OGTreppe ins DGFlur im DGPausenbereich im DGEinbauküche im DGPausenbereich im DGErdgeschoss - Grundriss1. Obergeschoss - Grundriss2. Obergeschoss - GrundrissDachgeschoss - GrundrissWZ DG-2976
Eckdaten
Zimmer
Wohnfl.
Grundst.
Kaltmiete
Zimmer
Wohnfl.
Grundst.
8800.0€ Kaltmiete
Basisdaten
Objektnummer
Immopark ID
IP-304928
Objekt ID
DG-2976
Adresse
30175 Hannover
Ort
30175 Hannover
Fakten und Zahlen
Immobilientyp
Bürohaus
Vermarktungsart
Miete / Pacht
Nutzungsart
Gewerbliche Nutzung
Verkaufsstatus
offen
Baujahr
1910
Kerndaten
Gesamtfläche
605 m2
Bürofläche
397 m2
Bauweise / Substanz
Objektzustand
gepflegt
Preisdaten
Preis
Kaltmiete
8.800 €
Nebenkosten
700 €
Weitere Kosten
Kaution
26.400 €
Kaution Info
3 NKM
Courtage
Käufercourtage
3 NKM
Betriebskosten
Betriebskostennetto
700 €
Merkmale
Zimmer und Bereiche
Typ
Voll unterkellert
Kellerfläche
139 m2
Ausstattung und Technik
Küche
Einbauküche
Gewerbe Merkmale
Bürofläche
397 m2
Energie
Energieausweis
Energieausweis vorhanden ja/ nein ?
Energieausweis ist nicht notwendig nach EnEV
Gebäudeart lt. Energieausweis
Nicht Wohngebäude
Heizung
Heizungsart
Zentralheizung
Befeuerungsart
Befeuerungsart
Gas
Umgebung
Es wurden keine Daten angegeben.
Objektbeschreibung
Im Herzen des exklusiven Zooviertels von Hannover präsentiert sich diese repräsentative Büro-Villa als stilvolles und zugleich funktionales Arbeitsumfeld. Das Gebäude wurde über die Jahre hinweg sorgfältig instand gehalten und gepflegt, sodass es heute in einem sehr gepflegten Gesamtzustand überzeugt.
Das Raumkonzept ist klar strukturiert und bietet viel Platz für unterschiedliche Nutzungen:
• Souterrain (ca. 139 m²): gut nutzbar, ideal für Archiv, Lager oder ergänzende Arbeitsbereiche.
• Erdgeschoss (ca. 139 m²): vier großzügige Büroräume, dazu ein WC, perfekt für repräsentative Arbeitsplätze oder Besprechungsräume.
• 1. Obergeschoss (ca. 129 m²): ebenfalls vier Büroräume und ein WC, ergänzt durch eine praktische Teeküche im Flur.
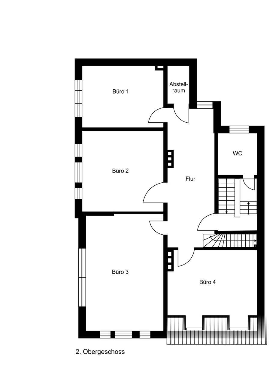
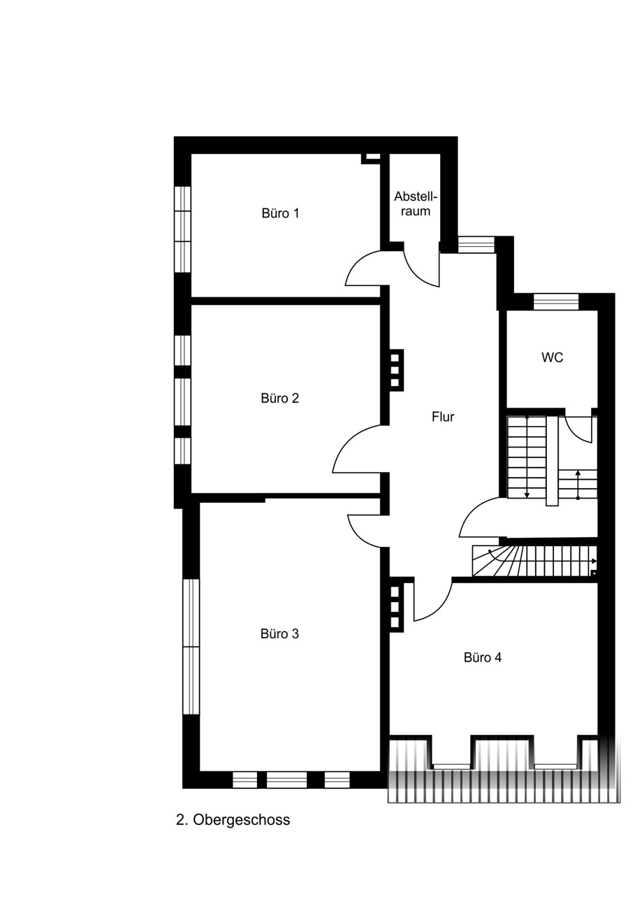
• 2. Obergeschoss (ca. 129 m²): vier weitere Räume mit WC, ideal für konzentriertes Arbeiten oder Teamflächen.
• Dachgeschoss (ca. 69 m²): als Pausenbereich ausgebaut, ausgestattet mit einer hochwertigen Einbauküche, ein Ort zum Durchatmen und für entspannte Pausen.
Alle Büroräume verfügen über eine angenehme Größe und lassen sich flexibel möblieren. Die Villa bietet zudem eine Garage, die dieses Mietangebot abrundet.
Ausstattung
• Repräsentatives Erscheinungsbild • Gegensprechanlage in jeder Etage • 12 Büroräume • Kat.7-Verkabelung • WC auf drei Etagen • Teeküche im 1. OG • Einbauküche im DG • Großer Pausenbereich im DG • Gut nutzbares Souterrain • Fahnenmast • 1-2 PKW Stellplätze auf dem Hof • Garage • Öffentliche Parkplätze in ausreichender Anzahl • Bushaltestelle vor der Tür • u.v.m.
Lage
ZOO - Die Immobilie befindet sich im renommierten hannoverschen Zooviertel und damit in einer ausgewiesenen 1A-Lage. Der Stadtteil zeichnet sich durch repräsentative Gründerzeitbauten, ruhige Seitenstraßen und kurze Wege in die Innenstadt aus. In der direkten Umgebung liegen das Hannover Congress Centrum (HCC), der Erlebnis-Zoo und der Stadtwald Eilenriede.
Die Erreichbarkeit ist sowohl für Mitarbeitende als auch für Besucher sehr komfortabel. Parkmöglichkeiten gibt es direkt gegenüber der Immobilie an der Eilenriede. Auch die Bushaltestelle Friedenstraße befindet sich praktisch direkt vor der Tür. Ebenfalls ist die Stadtbahn (Linie 11) fußläufig erreichbar und verbindet in wenigen Minuten mit Kröpcke, Aegidientorplatz und dem Hauptbahnhof, der auch in etwa 20 Minuten zu Fuß erreichbar ist. Mit dem Pkw besteht eine direkte Anbindung an den Messeschnellweg sowie an die Autobahnen A2 und A7, wodurch die Innenstadt, das Messegelände und überregionale Ziele schnell erreichbar sind. Der Flughafen Hannover-Langenhagen liegt rund 20 Fahrminuten entfernt. Auch die Mikromobilität ist attraktiv: Das Viertel bietet fahrradfreundliche Wege in Richtung Innenstadt und Eilenriede. Zudem befinden sich Car-Sharing-Stationen und E-Ladepunkte in der näheren Umgebung.
Die Nahversorgung ist optimal: Cafés und Restaurants für den Mittagstisch, eine Bäckerei sowie ein Supermarkt liegen im direkten Umfeld. So lassen sich Arbeitsalltag und Meetings effizient planen, ohne lange Wege in Kauf nehmen zu müssen. Für Erholung in der Pause oder sportliche Aktivitäten nach Feierabend lädt die Eilenriede zu Spaziergängen und Joggingrunden ein, während das HCC und der Zoo zusätzliche Attraktionen und Veranstaltungsorte bieten. Insgesamt verbindet die Lage repräsentative Qualität mit hervorragender Erreichbarkeit und einer Infrastruktur, die modernen Büroansprüchen in jeder Hinsicht gerecht wird.
Lade Orte in der Umgebung
Sonstiges
Das Recht auf Untervermietung einzelner Etagen ist nach Absprache möglich. Die Netze (Internet) lassen sich in diesem Fall problemlos trennen.
Mietvertragsbeginn nach Absprache.
Alle Angaben beruhen auf Aussage des Vermieters. Für die Richtigkeit der hier gemachten Angaben wird keine Garantie oder Gewährleistung übernommen.
Weitere Interessante Immobilien finden Sie unter www.guelke-immobilien.de.