Attraktive Ladeneinheit mit 44m²-sichtbar, individuell gestaltbar-mit 35m² Lagerbereich

Eckdaten

 Zimmer
 Wohnfl.
 Grundst.
Kaufpreis
Zimmer
Wohnfl.
Grundst.

Kaufpreis

Basisdaten

Objektnummer
Immopark ID
IP-313807
Objekt ID
LDW1.MV.10934
Adresse
Ort
72135 Dettenhausen
Fakten und Zahlen
Immobilientyp
Einzel­han­dels­laden
Vermarktungsart
Kauf
Nutzungsart
Gewerbliche Nutzung
Verkaufsstatus
offen
Baujahr
1994
Kerndaten
Lagerfläche
35,7 m2
Verkaufsfläche
43,75 m2
Bauweise / Substanz
Objektzustand
gepflegt
Bauweise
Massivhaus

Preisdaten

Preis
Kaufpreis
149.000 €
Courtage
Käufercourtage
3,57 % vom Kaufpreis inkl. gesetzl. MwSt.

Merkmale

Zimmer und Bereiche
Voll unterkellert
Ausstattung und Technik
Fliesen­boden
Stellplätze
Anzahl Stellplätze (gesamt)
2.0
Sonstiger Stellplatz
Anzahl
2.0
Kaufpreis
20.000 €

Energie

Energieausweis
Typ
Bedarfs­ausweis
EnEV
ab 01.05.2014 (gemäß EnEV 2014)
Energieausweis gültig bis
2030-11-11
Endenergiebedarf gemessen in kWh/(m²a)
78.40

A+ABCDEFGH

wesentlicher Energieträger
Gas
Energieeffizienz­klasse
C
Baujahr lt. Energieausweis
2020
Gebäudeart lt. Energieausweis
Nicht Wohngebäude

Umgebung

Es wurden keine Daten angegeben.

Objektbeschreibung

Mitten im Zentrum von Dettenhausen gelegen befindet sich das Wohn-u. Geschäftshaus, dieses wurde in massiver und solider Bauweise im Jahr 1994 erstellt.


Die Gewerbeeinheit bietet eine attraktive Gelegenheit für Unternehmer, Investoren oder Dienstleister, die eine flexibel nutzbare Gewerbefläche in Top-Lage suchen.

Es überzeugt durch ihre offene Raumstruktur, eine angenehme Atmosphäre sowie eine funktionale Ausstattung, die sich für unterschiedlichste Nutzungskonzepte eignet - Feinkost, Büro, Agentur, Studio, Friseur, Praxis oder sonstiger Einzelhandel.

Ausstattung

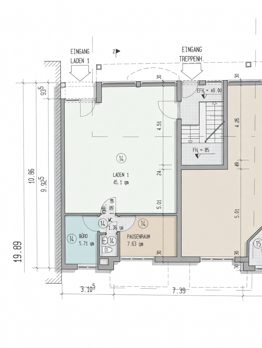
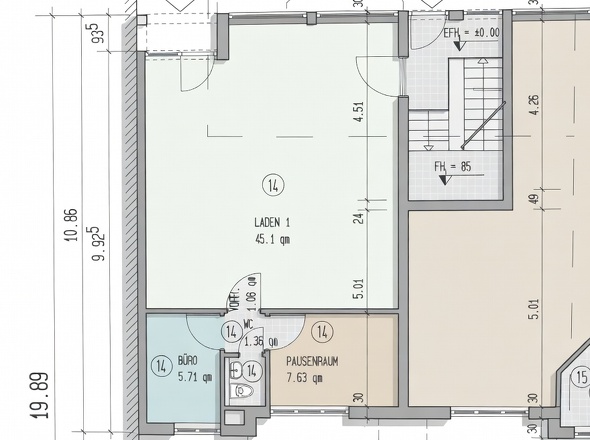
- Ladenfläche ca. 44m²
- Vorratsraum mit Kühlzelle WC und ca. 15m²
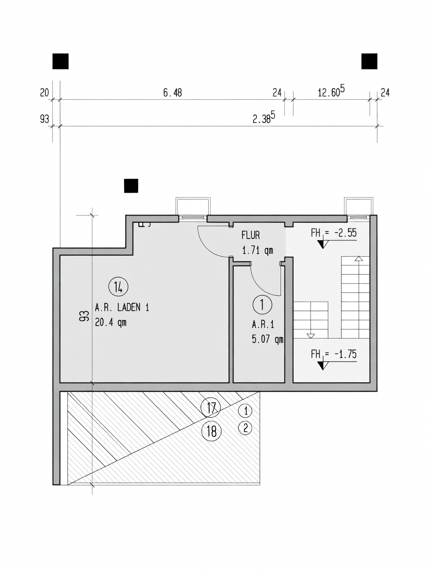
- separat, abschließbarer Lagerraum ca. 20m² im UG
- 2 KFZ Stellplätze direkt vor der Gewerbeeinheit € 10.000.- pro Stellplatz

Lage

Dettenhausen liegt im Tal der Schaich im Naturpark Schönbuch mit den Naturschutzgebieten Schaichtal und Eisenbachhain als eine attraktive und lebenswerte Wohngemeinde in der Randzone des Großraumes Stuttgart.

Es besteht dadurch eine gute Anbindung an den öffentlichen Personennahverkehr nach Stuttgart und Tübingen.

Die besondere Attraktivität der Gemeinde macht die Zentralität zwischen Tübingen (15 km), Stuttgart (20 km) und Böblingen/Sindelfingen (12 km) und die Lage im Naturpark Schönbuch aus. Damit besitzt Dettenhausen auch einen hohen Naherholungs- und Freizeitwert. Abgerundet wird das Ganze durch die örtlichen und regionalen Kultur- und Freizeitangebote.
Lade Orte in der Umgebung

Sonstiges

Da wir uns bei allen Angaben auf die Informationen Dritter stützen müssen, können wir keine Gewähr für deren Richtigkeit und Vollständigkeit übernehmen.

Bitte haben Sie Verständnis dafür, dass wir nur Anfragen mit vollständiger Adressangabe und erreichbarer Handynummer bearbeiten können.

Nachdem Ihre Anfrage per E-Mail bei uns eingegangen ist, werden wir uns mit Ihnen zur Abstimmung eines Besichtigungstermins in Verbindung setzen. Bitte nennen Sie deshalb in Ihrer E-Mail eine Tel.-Nr., unter der wir Sie sicher erreichen können.

Widerrufsbelehrung für Verbraucher:
Sie haben das Recht, binnen vierzehn Tagen ohne Angabe von Gründen diesen Vertrag zu widerrufen. Die Widerrufsfrist beträgt vierzehn Tage ab dem Tag des Vertragsabschlusses.

Um Ihr Widerrufsrecht auszuüben, müssen Sie uns (Königskinder Immobilien GmbH, Königstraße 62, 70173 Stuttgart, Tel: 0711 4005440, Fax: 0711 40054433, info@koenigskinder.de) mittels einer eindeutigen Erklärung (z. B. ein mit der Post versandter Brief, Telefax oder E-Mail) über Ihren Entschluss, diesen Vertrag zu widerrufen, informieren.

Zur Wahrung der Widerrufsfrist reicht es aus, dass Sie die Mitteilung über die Ausübung des Widerrufsrechts vor Ablauf der Widerrufsfrist absenden.

Folgen des Widerrufs:
Wenn Sie diesen Vertrag widerrufen, haben wir Ihnen alle Zahlungen, die wir von Ihnen erhalten haben, unverzüglich und spätestens binnen vierzehn Tagen ab dem Tag zurückzuzahlen, an dem die Mitteilung über Ihren Widerruf dieses Vertrags bei uns eingegangen ist. Für diese Rückzahlung verwenden wir dasselbe Zahlungsmittel, das Sie bei der ursprünglichen Transaktion eingesetzt haben, es sei denn, mit Ihnen wurde ausdrücklich etwas anderes vereinbart; in keinem Fall werden Ihnen wegen dieser Rückzahlung Entgelte berechnet.

Haben Sie verlangt, dass die Dienstleistungen während der Widerrufsfrist beginnen soll, so haben Sie uns einen angemessenen Betrag zu zahlen, der dem Anteil der bis zu dem Zeitpunkt, zu dem Sie uns von der Ausübung des Widerrufsrechts hinsichtlich dieses Vertrags unterrichten, bereits erbrachten Dienstleistungen im Vergleich zum Gesamtumfang der im Vertrag vorgesehenen Dienstleistungen entspricht.

Anbieterdaten

Martin Voigt

Ansprech­partner

Martin Voigt

Ihre Nachricht an Königskinder Immobilien GmbH

Ihr Ansprechpartner: Martin Voigt

Mit (*) gekennzeichnete Felder sind Pflichtangaben.