Attraktive Produktions- und Lagerfläche

Eckdaten

 Zimmer
 Wohnfl.
 Grundst.
Kaufpreis
Zimmer
Wohnfl.
 Grundst.

Kaufpreis

Basisdaten

Objektnummer
Immopark ID
IP-313812
Objekt ID
8340
Adresse
Ort
32108 Bad Salzuflen
Fakten und Zahlen
Immobilientyp
Produktion
Vermarktungsart
Kauf
Vermarktungsart
Erbpacht
Nutzungsart
Gewerbliche Nutzung
Verkaufsstatus
offen
Baujahr
1971
Kerndaten
Bürofläche
3.856 m2
Lagerfläche
4.646 m2
Sonstfläche
20.422 m2
Gesamtfläche
28.924 m2
Bauweise / Substanz
Objektzustand
gepflegt
Verfügbarkeit
Verfügbar ab
Mai 2026

Preisdaten

Preis
Kaufpreis
6.650.000 €
Erbpacht
26.190 €
Restlaufzeit (in Jahren)
43
Courtage
provisionspflichtig
Käufercourtage
3,57 %
inkl. MwSt.

Merkmale

Gewerbe Merkmale
Bürofläche
3.856 m2

Energie

Energieausweis
Typ
Verbrauchs­ausweis
EnEV
ab 01.05.2014 (gemäß EnEV 2014)
Energieausweis gültig bis
2036-03-08
Energieverbrauch für Warmwasser enthalten
wesentlicher Energieträger
Gas
Stromwert
64,30
Wärmewert
46,70
Baujahr lt. Energieausweis
1972/1980
Ausstelldatum
09.03.2026
Gebäudeart lt. Energieausweis
Nicht Wohngebäude
Befeuerungsart
Gas

Umgebung

Es wurden keine Daten angegeben.

Objektbeschreibung

Dieser Produktions- und Lagerbetrieb in Bad Salzuflen bietet eine hervorragende Gelegenheit für Unternehmen, ihre Produktion zu erweitern oder neu zu etablieren. Die Immobilie ist ideal für verschiedene Branchen, die eine gute Verkehrsanbindung benötigen. Die Hallen bieten Platz für 15.000 Palettenstellplätze. Durch die Lage im Industriegebiet Schötmar und in der Nähe zum Messegelände Bad Salzuflen ist der Betrieb leicht zu erreichen und ist durch eine gute Infrastruktur geprägt. Der Produktionsbetrieb bietet eine solide Basis für Unternehmen, um erfolgreich zu sein. In Bad Salzuflen finden Sie eine gute Mischung aus Wirtschaft, Kultur und Freizeitangeboten.

Ausstattung

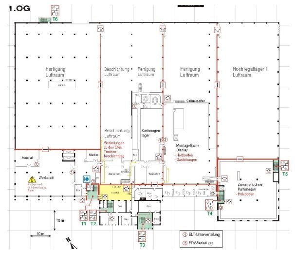
Hochregallager, Lastenaufzüge, Rolltore, Rampen, Ausstellungsflächen, Büro- und Sozialräume

Lage

Die Immobilie in Bad Salzuflen, einem staatlich anerkannte Kneippheilbad und Thermal-Heilbad, bietet ein städtisches Flair und liegt annähernd 2,5 km südlich vom Stadtzentrum. Die Stadt Bad Salzuflen, mit ihren rund 54.800 Einwohnern, gilt seit 2015 als "allergikerfreundliche Kommune" und bietet eine gute Infrastruktur. Zudem befindet sich eine Bushaltestelle in der Nähe, während die nächste Zugstation rund 1,6 km und die Autobahnauffahrt zur A 2 ungefähr 5,5 km entfernt sind.
Lade Orte in der Umgebung

Zusätzliche Information

--------------------------------------------------------------------------------------------- +++ VERBRAUCHERINFORMATION für unsere Maklerkunden +++ +++ bei außerhalb von Geschäftsräumen geschlossenen Maklerverträgen und bei Fernabsatzmaklerverträgen +++ --------------------------------------------------------------------------------------------- 1. Wesentliche Eigenschaften der Maklerleistung Der Maklervertrag mit der LBS Immobilien GmbH NordWest beinhaltet den Nachweis der Gelegenheit zum Abschluss eines Vertrages oder die Vermittlung eines Vertrages (z. B. Kauf-, Miet-, Pachtvertrag usw.) über eine Immobilie (z. B. unbebautes/bebautes Grundstück) gegen die Verpflichtung des Maklerkunden zur Zahlung einer Maklercourtage. Wird die LBS Immobilien GmbH NordWest für den Verkäufer im Alleinauftrag tätig, ist sie zu intensiven Nachweis- oder Vermittlungsbemühungen verpflichtet. Dieses beinhaltet neben der Auswertung des vorhandenen Interessentenbestandes auch, individuell nach einem geeigneten Vertragspartner zu suchen. Im Allgemeinauftrag erbringt die LBS Immobilien GmbH NordWest allgemeine Nachweis- oder Vermittlungstätigkeit, die im Wesentlichen auf die Auswertung des vorhandenen Interessentenbestandes ausgerichtet ist. Die LBS Immobilien GmbH NordWest ist hier zu werblichen Vorleistungen nicht verpflichtet. 2. Identität des Unternehmers, ladungsfähige Anschrift und Adressat für Beschwerden LBS Immobilien GmbH NordWest Himmelreichallee 40 48149 Münster Tel.: 0251/973233-997, E-Mail: info@lbsi-nw.de Geschäftsführer: Martin Englert, Volker Goldbeck 3. Art der Courtageberechnung Die Maklercourtage kann aufgrund der Beschaffenheit der Maklerleistung im Voraus nicht benannt werden. In der Regel wird sie als ein Bruchteil des wirtschaftlichen Wertes des vermittelten bzw. nachgewiesenen Vertrages bzw. als ein Vielfaches der Monatsmiete/-pacht berechnet. Sie orientiert sich grundsätzlich an der Ortsüblichkeit. 4. Zahlungs- und Leistungsbedingungen Die Maklercourtage ist fällig und zahlbar mit Wirksamkeit des nachgewiesenen Vertrages. Die unter Ziffer 1 beschriebenen Maklerleistungen werden bis zum Eintritt des Erfolges (wirksamer Abschluss des angestrebten Vertrages), beim Maklervertrag mit dem Verkäufer längstens bis zur Beendigung des Maklervertrages, erbracht. 5. Laufzeit des Maklervertrags Der Maklervertrag mit dem Verkäufer hat eine Festlaufzeit von 6 Monaten und ist danach mit einmonatiger Frist in Textform kündbar. Ihr Widerrufsrecht in Bezug auf den Maklervertrag: ------------------------------------------ +++ Widerrufsbelehrung +++ ------------------------------------------ --- Widerrufsrecht --- Sie haben das Recht, binnen vierzehn Tagen ohne Angabe von Gründen diesen Vertrag zu widerrufen. Die Widerrufsfrist beträgt vierzehn Tage ab dem Tag des Vertragsabschlusses. Um Ihr Widerrufsrecht auszuüben, müssen Sie uns (LBS Immobilien GmbH NordWest, Himmelreichallee 40, 48149 Münster, Tel.: 0251/973233-997, E-Mail: info@lbsi-nw.de) mittels einer eindeutigen Erklärung (z. B. ein mit der Post versandter Brief oder E-Mail) über Ihren Entschluss, diesen Vertrag zu widerrufen, informieren. Sie können dafür das beigefügte Muster-Widerrufsformular verwenden, das jedoch nicht vorgeschrieben ist. Zur Wahrung der Widerrufsfrist reicht es aus, dass Sie die Mitteilung über die Ausübung des Widerrufsrechts vor Ablauf der Widerrufsfrist absenden. --- Folgen des Widerrufs --- Wenn Sie diesen Vertrag widerrufen, haben wir Ihnen alle Zahlungen, die wir von Ihnen erhalten haben, einschließlich der Lieferkosten (mit Ausnahme der zusätzlichen Kosten, die sich daraus ergeben, dass Sie eine andere Art der Lieferung als die von uns angebotene, günstigste Standardlieferung gewählt haben), unverzüglich und spätestens binnen vierzehn Tagen ab dem Tag zurückzuzahlen, an dem die Mitteilung über Ihren Widerruf dieses Vertrages bei uns eingegangen ist. Für diese Rückzahlung verwenden wir dasselbe Zahlungsmittel, das Sie bei der ursprünglichen Transaktion eingesetzt haben, es sei denn, mit Ihnen wurde ausdrücklich etwas anderes vereinbart; in keinem Fall werden Ihnen wegen dieser Rückzahlung Entgelte berechnet. Haben Sie verlangt, dass die Dienstleistung während der Widerrufsfrist beginnen soll, so haben Sie uns einen angemessenen Betrag zu zahlen, der dem Anteil der bis zu dem Zeitpunkt, zu dem Sie uns von der Ausübung des Widerrufsrechts hinsichtlich dieses Vertrages unterrichten, bereits erbrachten Dienstleistungen im Vergleich zum Gesamtumfang der im Vertrag vorgesehenen Dienstleistungen entspricht. -------------------------------------------------- +++ Muster-Widerrufsformular +++ -------------------------------------------------- (Wenn Sie den Vertrag widerrufen wollen, dann füllen Sie bitte dieses Formular aus und senden Sie es zurück.) - An LBS Immobilien GmbH NordWest, Himmelreichallee 40, 48149 Münster, E-Mail: info@lbsi-nw.de - Hiermit widerrufe(n) ich/wir(*) den von mir/uns(*) abgeschlossenen Vertrag über den Kauf der folgenden Waren(*)/die Erbringung der folgenden Dienstleistung(*) - Bestellt am(*)/erhalten am(*) - Name des/der Verbraucher(s) - Anschrift des/der Verbraucher(s) - Unterschrift des/der Verbraucher(s) (nur bei Mitteilung auf Papier) - Datum ____________ * Unzutreffendes streichen. ---------------------------------------------------------------------------- +++ Vorzeitiges Erlöschen des Widerrufsrechts +++ ---------------------------------------------------------------------------- Ihr zunächst bestehendes Widerrufsrecht erlischt, wenn die LBS Immobilien GmbH NordWest die Maklerleistung vollständig erbracht hat und mit der Ausführung der Maklerleistung erst begonnen hat, nachdem Sie dazu Ihre ausdrückliche Zustimmung gegeben haben und gleichzeitig Ihre Kenntnis davon bestätigt haben, dass Sie Ihr Widerrufsrecht bei vollständiger Vertragserfüllung durch die LBS Immobilien GmbH NordWest verlieren.

Sonstiges

Die Übernahme kann kurzfristig nach vollständiger Freistellung erfolgen.
Für das Grundstück existiert ein Erbpachtvertrag, der noch bis Ende 2069 läuft. Die jährliche Erbpachtzins beträgt 26.190,00 €.
VERBRAUCHERINFO
1. Maklerleistung ist der Nachweis der Gelegenheit zum Abschluss eines Vertrages bzw. Vermittlung eines Vertrages über eine Immobilie gegen die Courtagezahlungspflicht des Kunden
2. Unternehmer,Anschrift,Beschwerdeadressat
LBSi NordWest, Himmelreichallee 40, 48149 Münster, Tel:0251/973233-997, eMail:info@lbsi-nw.de
GF:Martin Englert, Volker Goldbeck
3. Es besteht ein Widerrufsrecht
4. Weitere Infos: verbraucherinfo.lbsi-nordwest.de

Anbieterdaten

Susanne Sauerbrei

Ansprech­partner

Susanne Sauerbrei

Ihre Nachricht an Sparkasse Herford - Immobilien -

Ihr Ansprechpartner: Susanne Sauerbrei

Mit (*) gekennzeichnete Felder sind Pflichtangaben.