Attraktives Gewerbe im Herzen der Stadt!

Eckdaten

 Zimmer
 Wohnfl.
 Grundst.
Kaufpreis
 Zimmer
Wohnfl.
 Grundst.

Kaufpreis

Basisdaten

Objektnummer
Immopark ID
IP-305458
Objekt ID
1148-1115-TS
Adresse
Ort
73728 Esslingen am Neckar
Fakten und Zahlen
Immobilientyp
Einzel­han­dels­laden
Vermarktungsart
Kauf
Nutzungsart
Gewerbliche Nutzung
Verkaufsstatus
offen
Baujahr
1915
Kerndaten
Zimmer
1.0
Nutzfläche
48,14 m2
Bauweise / Substanz
Objektzustand
gepflegt

Preisdaten

Preis
Kaufpreis
149.000 €
Zus. Preis Info
149.000 €
Courtage
Käufercourtage
4,76 % inkl. MwSt.

Merkmale

Zimmer und Bereiche
Voll unterkellert
Gesamtfläche
4,75 m2
Anzahl (Terrassen)
1.0
Ausstattung und Technik
Einbau­küche
Marmor­boden
Sanitäre Einrichtung
Gäste WC

Energie

Energieausweis
Typ
Bedarfs­ausweis
EnEV
ab 01.05.2014 (gemäß EnEV 2014)
Energieausweis gültig bis
2035-09-24
Endenergiebedarf gemessen in kWh/(m²a)
483.03

A+ABCDEFGH

Energieeffizienz­klasse
H
Baujahr lt. Energieausweis
1912
Gebäudeart lt. Energieausweis
Nicht Wohngebäude
Befeuerungsart
Gas

Umgebung

Es wurden keine Daten angegeben.

Objektbeschreibung

Hier erwartet Sie eine seltene Gelegenheit im Herzen der historischen Altstadt von Esslingen.

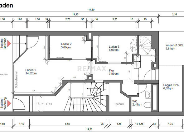
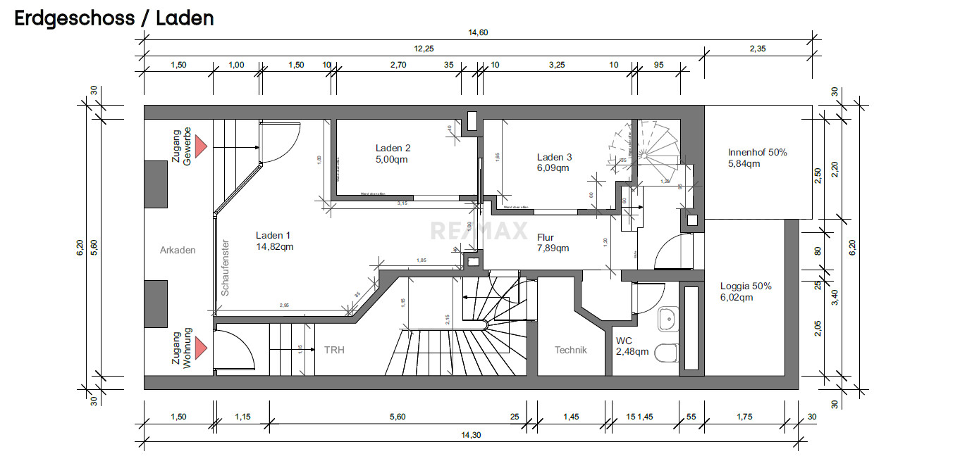
Die ca. 48,14 m² große Gewerbeeinheit im Erdgeschoss eines gepflegten Mehrfamilienhauses aus dem Jahr 1915 überzeugt durch ihren besonderen Charme und ihre vielseitigen Nutzungsmöglichkeiten. Ob als Büro, Atelier, Praxis oder kleiner Laden – der Grundriss bietet flexible Gestaltungsspielräume für individuelle Konzepte.

Die Einheit verfügt über einen separat zugänglichen Eingang und einen großzügigen Kellerraum, der zusätzlichen Stauraum oder Platz für Arbeitsmaterial bietet. Dank der zentralen Lage profitieren Sie von einer hohen Laufkundschaft, einem lebendigen Umfeld und der ausgezeichneten Anbindung an das städtische Geschehen.

Die Immobilie ist aktuell vermietet und eignet sich daher ideal als Kapitalanlage mit solider Rendite in einer der attraktivsten Lagen Esslingens.

Bitte beachten: Der Eigentümer wünscht keine direkte Kontaktaufnahme.

Dieses Angebot spricht Kapitalanleger und Unternehmer gleichermaßen an – ideal für alle, die eine repräsentative und werthaltige Gewerbefläche mitten in der Esslinger Altstadt suchen.

Ausstattung

- Dach gedämmt
- Gewerbeeinheit mit großem Keller

Lage

Die Immobilie befindet sich in absolut zentraler Innenstadtlage von Esslingen am Neckar direkt am Roßmarkt, einem historischen Platz mit urbanem Flair. Die Lage überzeugt durch ihre ausgezeichnete Infrastruktur, kurze Wege und ein hohes Maß an Lebensqualität.

Sämtliche Einrichtungen des täglichen Bedarfs wie Supermärkte, Bäckereien, Apotheken, Cafés und Restaurants befinden sich in unmittelbarer Umgebung und sind bequem zu Fuß erreichbar. Der nahegelegene Wochenmarkt auf dem Marktplatz bietet zusätzlich eine große Auswahl an frischen, regionalen Produkten.

Für Familien besonders attraktiv: Der nächste Kindergarten ist nur etwa 450 Meter entfernt, die Grundschule rund 600 Meter. Weiterführende Schulen wie das Schelztor-Gymnasium sind ebenfalls in weniger als 15 Gehminuten erreichbar. Auch die Hochschule Esslingen (Campus Stadtmitte) liegt in unmittelbarer Nähe – ideal für Studierende oder Mitarbeitende im Bildungsbereich.

Der Bahnhof Esslingen ist in wenigen Minuten fußläufig erreichbar und ermöglicht eine schnelle Anbindung nach Stuttgart und in die umliegenden Städte. Durch die Nähe zur B10 sowie zur B313 ist auch die Verkehrsanbindung mit dem Auto hervorragend.

Der Standort bietet die perfekte Kombination aus urbanem Leben, hervorragender Infrastruktur und kurzen Wegen – und das mitten in einer der schönsten Altstädte Baden-Württembergs.
Lade Orte in der Umgebung

Sonstiges

Folgende Kosten sind im Kaufpreis nicht enthalten und vom Käufer zusätzlich zu entrichten: Notar- und Grundbuchkosten (ca. 2 %), Grunderwerbsteuer (5 %), und die mit der Finanzierung entstehenden Kosten. 4,76 % Maklerprovision inkl. gesetzlicher MwSt.. Ab dem Zeitpunkt der Übergabe hat der Käufer die Grundsteuer zu tragen.
Irrtümer vorbehalten. Die Objektdaten beruhen auf Angaben und Unterlagen, die uns vom Veräußerer zur Verfügung gestellt wurden. Für inhaltliche Richtigkeit und Vollständigkeit übernehmen wir keine Haftung. Eine Weitergabe an Dritte ist nicht gestattet.

---
Verpassen Sie keine Immobilie mehr!
Unser komplettes Immobilienangebot finden Sie immer zuerst auf www.remax.de
Gerne helfen wir Ihnen auch beim Verkauf oder der Vermietung Ihrer Immobilie.
Karriere bei REMAX?
Infos: www.remax.de/karriere

Anbieterdaten

Timo Seidel

Ansprech­partner

Timo Seidel

Ihre Nachricht an RE/MAX Wohnerlebnis - Bianka und Thorsten Maier GbR

Ihr Ansprechpartner: Timo Seidel

Mit (*) gekennzeichnete Felder sind Pflichtangaben.