+++ Bauernhaus sucht... +++

Eckdaten

 Zimmer
 Wohnfl.
 Grundst.
Kaufpreis
 Zimmer
 Wohnfl.
 Grundst.

Kaufpreis

Basisdaten

Objektnummer
Immopark ID
IP-223812
Objekt ID
FALC-PV-31169
Adresse
Ort
21493 Elmenhorst
Fakten und Zahlen
Haustyp
Bauern­haus
Vermarktungsart
Kauf
Nutzungsart
wohnen
Baujahr
1908
Kerndaten
Wohnfläche
240 m2
Zimmer
7.0
Schlafzimmer
3.0
Badezimmer
1.0
Nutzfläche
815 m2
Grundstücksfläche
3.700 m2
Anzahl Stellplätze (gesamt)
8.0
Bauweise / Substanz
Etagenanzahl der Immobilie
2

Preisdaten

Preis
Kaufpreis
450.000 €
Courtage
provisionspflichtig
Käufercourtage
5,95 % inkl. 19 % MwSt. vom notariellen Kaufpreis.

Merkmale

Zimmer und Bereiche
Voll unterkellert
Schlaf­zimmer
Abstell­raum
Sanitäre Einrichtung
Gäste WC
Stellplätze
Anzahl Stellplätze (gesamt)
8.0
Freiplatz
Anzahl
8.0
Garage

Energie

Energieausweis
Typ
Bedarfs­ausweis
Energieausweis gültig bis
02.08.2032
wesentlicher Energieträger
Gas
Energieeffizienz­klasse
H
Gebäudeart lt. Energieausweis
Wohngebäude
Heizung
Zentral­heizung
Befeuerungsart
Gas

Umgebung

Es wurden keine Daten angegeben.

Objektbeschreibung

Geht nicht, gibt es nicht. Sie wollten Platz, gerne auch etwas mehr? Sie hätten dabei gerne Tierhaltung, vorzugsweise direkt unter dem eigenen Dach und doch getrennt?

Lassen Sie sich beeindrucken! Dieses Objekt bietet Ihnen dies alles und noch mehr.

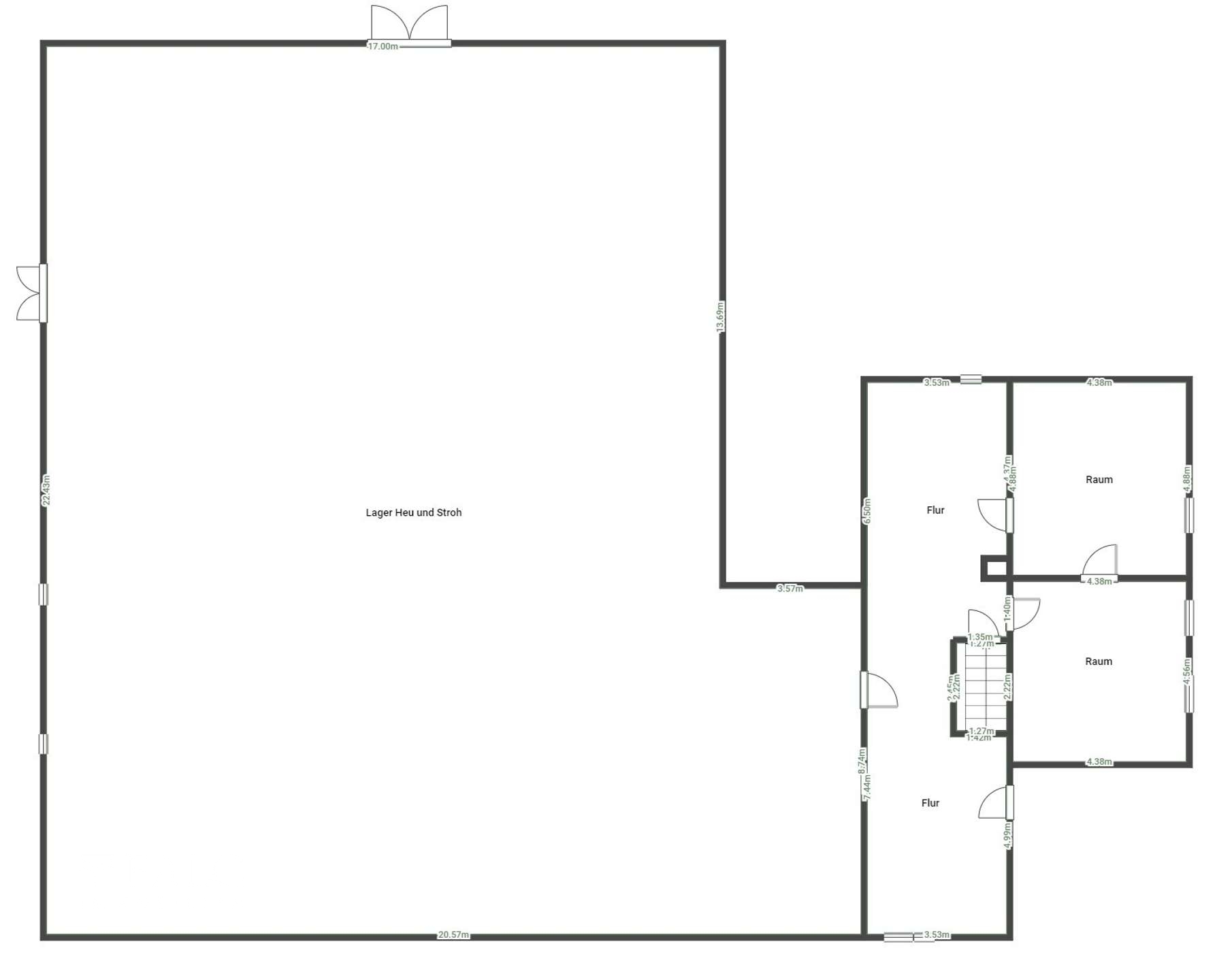
Runter von der Autobahn, ein paar mal abgebogen und schon sind Sie am Ende des schönen Dorfes. 1908 als Bauernhaus errichtet, wurde es die letzten knapp 100 Jahre auch als solches genutzt. Hohe Decken, breite Flügeltüren und die alten Holzdielen lassen nur
erahnen, was für Potenzial hier schlummert. Nach Betreten des Hauses befinden Sie sich direkt im großen Eingangsbereich. Zwei Schlafzimmer, das große Wohnzimmer, die alte Bauernküche und das Bad sind neben den vier kleinen Wirtschafts -und Büroräumen im Erdgeschoss angelegt.

Ein Blick aus den vielen Fenstern und dieser schweift über die Wiese. Ob Kühe oder Pferde. Platz ist hier für alle da.

Über eine Treppe im Hausflur gelangen Sie in den oberen Teil des Hauses.

Doch das Herzstück des Grundstücks ist nicht die traumhafte Wohnung. Im Eingangsbereich dieser befindet sich eine große Flügeltür. Gehen Sie durch diese hindurch, stehen Sie im Stall. Pferdeboxen, die Stallung für Rindvieh mit Selbsttränke oder der große Heuboden. Dieses Objekt bietet jedem Tierfreund oder Hobbybauern das volle Paket an Platz und Möglichkeiten. Abgerundet wird dieses mit dem umwerfenden Holztor, führend auf den vorderen Hof.

Neben der Tierhaltung soll noch Perspektive für Werkstatt und Garagen bestehen? Gar kein Problem. Auf dem vorderen Hof, gleich neben dem Holztor der Stallungen, wurden im Laufe der Jahre ein Komplex bestehend aus vier Garagen mit Anbau geschaffen.

Um den Tieren genug Außenfläche bieten zu können, gibt es die einmalige Gelegenheit, vom Eigentümer ein Grundstück mit einer Fläche von ca. 3.700 qm zu erwerben und alternativ eine Weidefläche von bis zu ca. 1,7 ha zu pachten.

Lage

Der Ort Elmenhorst liegt etwa 6 km nördlich von Schwarzenbek in Schleswig-Holstein. Er besteht aus den Ortsteilen Elmenhorst und Lanken. Mit seinen ca. 850 Einwohnern ist Elmenhorst eine wahrlich überschaubare Ortschaft. Es gibt mehrere Einzelhandelsbetriebe, außerdem befindet sich in Elmenhorst die Kreisfeuerwehrzentrale.

In der Gemeinde gibt es einen Kindergarten und im Ortsteil Lanken befindet sich ein eigenes Industriegebiet mit mehreren dort ansässigen Betrieben.

Der 1976 gegründete Sportverein SIG Elmenhorst bietet Sport in mehreren Sparten an.

Von Elmenhorst aus sind es nur ungefähr 8 km nach Schwarzenbek mit seinen ca. 15.000 Einwohnern. Hier finden Sie alle Geschäfte des täglichen Lebens, Schulen und Ärzte.

Schwarzenbek selbst liegt in der Geest im Südosten Schleswig-Holsteins. Unmittelbar im Nordwesten angrenzend befindet sich mit dem Sachsenwald das größte zusammenhängende Waldgebiet des Bundeslandes.

Besonders hervorzuheben ist die Nähe zur A24. Die Auffahrt liegt gerade einmal 5 Autominuten entfernt und bringt Sie auf der einen Seite in 36 km in die Hansestadt Hamburg und auf der anderen Seite in 224 km nach Berlin.
Lade Orte in der Umgebung

Sonstiges

Eine Besichtigung sagt mehr als jede Beschreibung, bei Interesse zögern Sie nicht und vereinbaren Sie einen unverbindlichen Termin.

Wir bieten nicht nur eine kostenlose Hotline, sondern auch einen Service am Wochenende an. Bei Interesse geben Sie bitte immer Ihre vollständigen Kontaktdaten an. Die Objektbeschreibung beruht ganz oder zum Teil auf Angaben des Eigentümers. Für die Richtigkeit oder Vollständigkeit übernehmen wir keine Gewähr. Sie haben auf Anhieb nichts gefunden oder suchen Sie etwas ganz bestimmtes?
Teilen Sie uns einfach mit was Sie suchen und wonach wir für Sie die Augen offenhalten dürfen. Profitieren Sie von den Vorteilen einer professionellen Maklersuche.

Der Suchauftrag ist unverbindlich. Auf unserer Homepage www.falcimmo.de unter der Rubrik Immobiliensuche halten wir für Sie zum einen den Onlinesuchauftrag bereit, haben aber auch viele andere nützliche Informationen für Kaufinteressenten und Eigentümer.

Anbieterdaten

Paul Voshage

Ansprech­partner

Paul Voshage

Ihre Nachricht an FALC Immobilien Herzogtum Lauenburg Süd (Paul Voshage)

Ihr Ansprechpartner: Paul Voshage

Mit (*) gekennzeichnete Felder sind Pflichtangaben.