Beste Aussichten für Sie & Ihre Familie! Wohnhaus mit Baugrundstück

Eckdaten

 Zimmer
 Wohnfl.
 Grundst.
Kaufpreis
 Zimmer
 Wohnfl.
 Grundst.

Kaufpreis

Basisdaten

Objektnummer
Immopark ID
IP-313561
Objekt ID
1148-1220-TS
Adresse
Ort
73061 Ebersbach
Fakten und Zahlen
Haustyp
Zwei­familien­haus
Vermarktungsart
Kauf
Nutzungsart
wohnen
Verkaufsstatus
offen
Baujahr
1905
Kerndaten
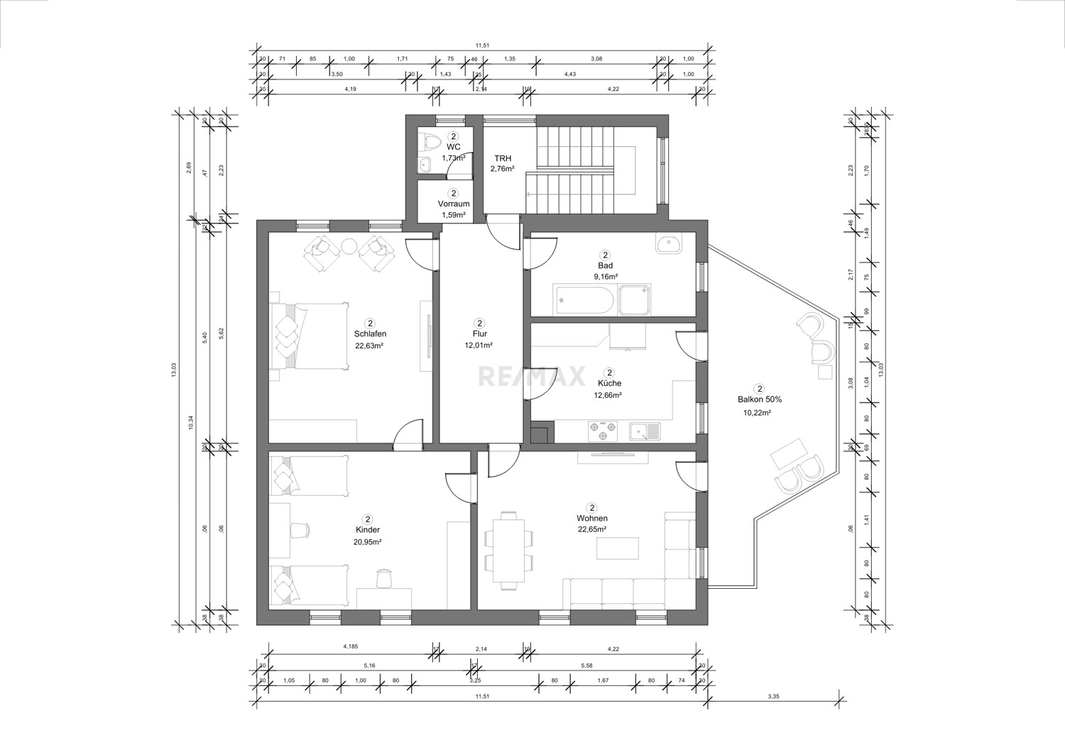
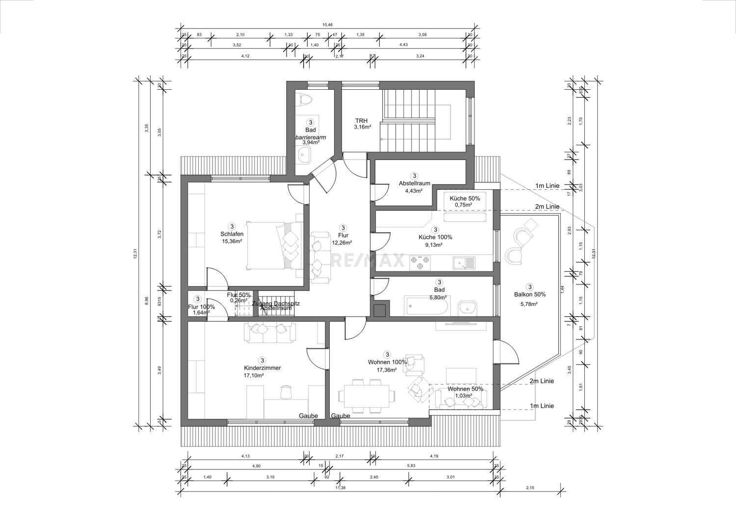
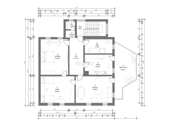
Wohnfläche
274,66 m2
Zimmer
8.0
Schlafzimmer
5.0
Badezimmer
3.0
Nutzfläche
104,49 m2
Grundstücksfläche
2.479 m2
Bauweise / Substanz
Objektzustand
teil- vollrenovie­rungsbedürftig
Etagenanzahl der Immobilie
2

Preisdaten

Preis
Kaufpreis
599.000 €
Zus. Preis Info
599.000 EUR + 179.000 EUR Bauplatz
Courtage
Käufercourtage
4,76
inkl. MwSt.

Merkmale

Zimmer und Bereiche
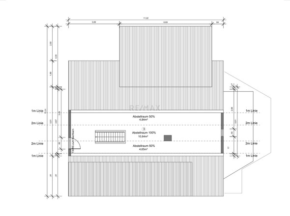
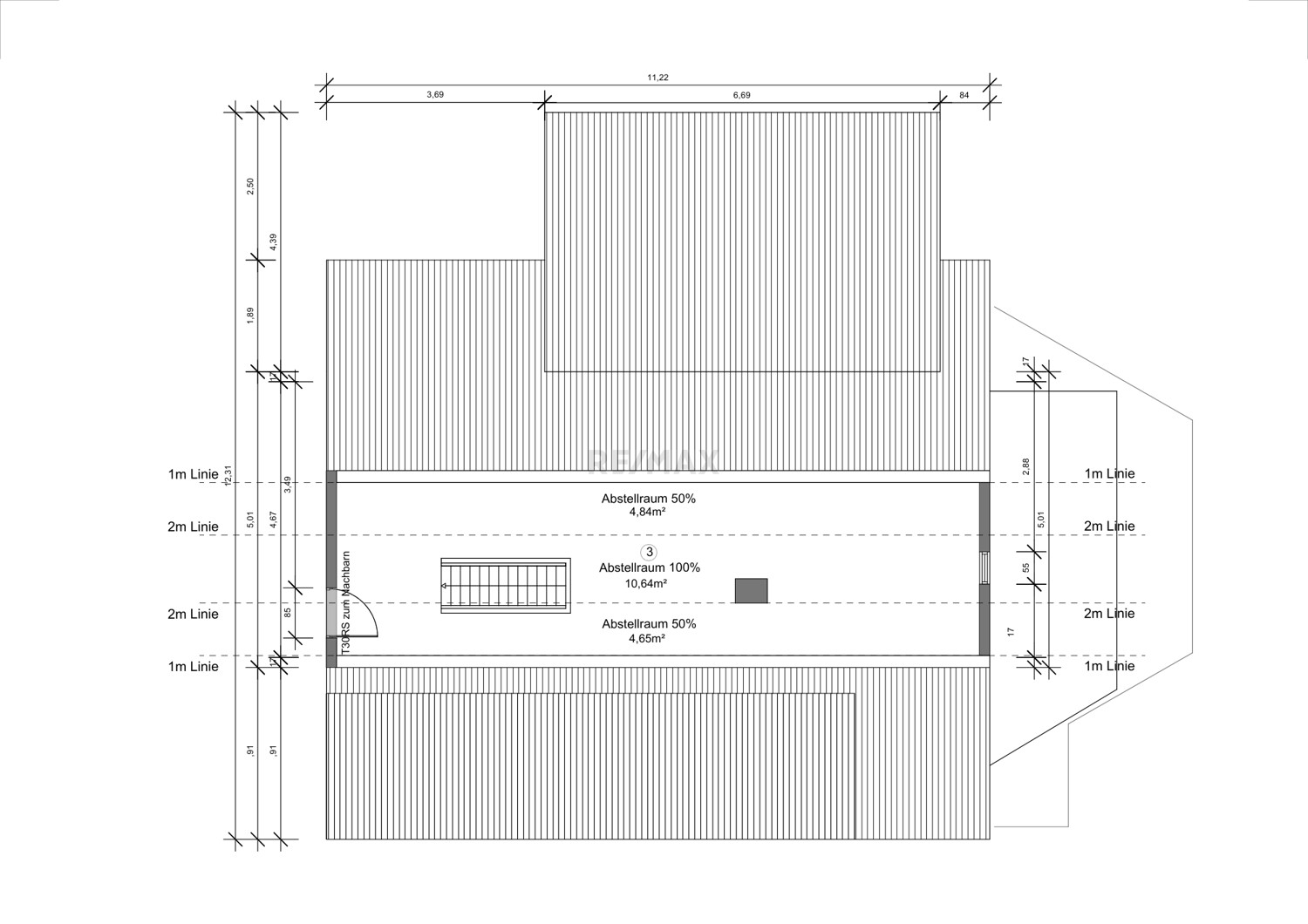
Teilweise unterkellert
Anzahl (Balkone)
2.0
Anzahl (Terrassen)
1.0
Schlaf­zimmer
Ausstattung und Technik
Einbau­küche
Sanitäre Einrichtung
Gäste WC
Stellplätze
Freiplatz

Energie

Energieausweis
Typ
Bedarfs­ausweis
EnEV
ab 01.05.2014 (gemäß EnEV 2014)
Energieausweis gültig bis
2036-03-02
Endenergiebedarf gemessen in kWh/(m²a)
178.40

A+ABCDEFGH

wesentlicher Energieträger
Öl
Energieeffizienz­klasse
G
Baujahr lt. Energieausweis
1988
Gebäudeart lt. Energieausweis
Wohngebäude
Heizung
Etagen­heizung
Befeuerungsart
Öl
Holz

Umgebung

Es wurden keine Daten angegeben.

Objektbeschreibung

Dieses Angebot eröffnet interessante Möglichkeiten für Käufer mit Ideen und Visionen. Neben dem Wohnhaus am Ortsrand gehören auch ein Bauplatz sowie Grünflächen zu diesem Angebot. Diese Flächen werden gemeinsam mit dem Haus verkauft und sind mit einem zusätzlichen Kaufpreis von 179.000 € berücksichtigt. Das Haus bietet mit ca. 274,66 m² Wohnfläche und insgesamt 8 Zimmern viel Platz für verschiedene Wohnkonzepte. Das Gebäude stammt aus dem Jahr 1905 und befindet sich in renovierungsbedürftigem Zustand. Für Käufer mit Ideen bietet sich hier die Möglichkeit, ein Haus mit viel Platz nach eigenen Vorstellungen zu modernisieren und neu zu gestalten. Besonders interessant ist das zusätzliche Baugrundstück, das weiteres Entwicklungspotenzial bietet. Eine Immobilie für Menschen, die nicht nur ein Haus suchen, sondern Möglichkeiten.

Energieausweisdaten: Bedarfsausweis, gültig bis: 02.03.2026, Klasse G, 178,4kWh/(m²*a), Öl.
Ein ausführliches Exposé erhalten Sie nach vollständiger Anfrage!

Ausstattung

• Großzügiges Grundstück mit ca. 2.479 m² Gesamtfläche
• Zusätzliches Baugrundstück mit Entwicklungspotenzial
• 2 Balkone und eine Terrasse vorhanden
• Teilunterkellertes Gebäude mit zusätzlicher Nutzfläche

Lage

Die Immobilie befindet sich im Ebersbacher Ortsteil Bünzwangen, einer ruhigen und gewachsenen Wohnlage von Ebersbach an der Fils. Der Ortsteil ist geprägt von Wohnhäusern, viel Grün und einer angenehmen dörflichen Struktur.

Ein Kindergarten sowie eine Grundschule befinden sich jeweils in ca. 0,3 km Entfernung. Die Realschule sowie das Gymnasium sind in ca. 1,2 km erreichbar. Dadurch sind wichtige Bildungseinrichtungen schnell und unkompliziert erreichbar.

Bünzwangen verbindet eine ruhige Wohnlage mit der Nähe zur Infrastruktur von Ebersbach an der Fils. Einkaufsmöglichkeiten, weitere Einrichtungen des täglichen Bedarfs sowie weitere Angebote befinden sich im nahegelegenen Stadtgebiet. Die Lage eignet sich besonders für alle, die ein ruhigeres Wohnumfeld schätzen und dennoch die Vorteile der Stadt in kurzer Entfernung nutzen möchten.
Lade Orte in der Umgebung

Sonstiges

Folgende Kosten sind im Kaufpreis nicht enthalten und vom Käufer zusätzlich zu entrichten: Notar- und Grundbuchkosten (ca. 2 %), Grunderwerbsteuer (5 %), und die mit der Finanzierung entstehenden Kosten. 4,76 % Maklerprovision inkl. gesetzlicher MwSt.. Ab dem Zeitpunkt der Übergabe hat der Käufer die Grundsteuer zu tragen.
Irrtümer vorbehalten. Die Objektdaten beruhen auf Angaben und Unterlagen, die uns vom Veräußerer zur Verfügung gestellt wurden. Für inhaltliche Richtigkeit und Vollständigkeit übernehmen wir keine Haftung. Eine Weitergabe an Dritte ist nicht gestattet.

---
Verpassen Sie keine Immobilie mehr!
Unser komplettes Immobilienangebot finden Sie immer zuerst auf www.remax.de
Gerne helfen wir Ihnen auch beim Verkauf oder der Vermietung Ihrer Immobilie.
Karriere bei REMAX?
Infos: www.remax.de/karriere

Anbieterdaten

Timo Seidel

Ansprech­partner

Timo Seidel

Ihre Nachricht an RE/MAX Wohnerlebnis - Bianka und Thorsten Maier GbR

Ihr Ansprechpartner: Timo Seidel

Mit (*) gekennzeichnete Felder sind Pflichtangaben.