Bezugsfrei ab sofort: ideal zum Vermieten oder Einziehen

Eckdaten

 Zimmer
 Wohnfl.
 Grundst.
Kaufpreis
 Zimmer
 Wohnfl.
 Grundst.

Kaufpreis

Basisdaten

Objektnummer
Immopark ID
IP-309991
Objekt ID
FALC-KrMa-78330
Adresse
Ort
86830 Schwabmünchen
Fakten und Zahlen
Vermarktungsart
Kauf
Nutzungsart
wohnen
Baujahr
1967
Kerndaten
Wohnfläche
58 m2
Zimmer
3.0
Schlafzimmer
2.0
Badezimmer
1.0
Anzahl Stellplätze (gesamt)
1.0
Bauweise / Substanz
Objektzustand
gepflegt
Etagenanzahl der Immobilie
3
Lage im Gebäude
Etage
2
Wohnungsnummer
5
Verfügbarkeit
Verfügbar ab
sofort

Preisdaten

Preis
Kaufpreis
214.000 €
Heizkosten enthalten
Weitere Kosten
Hausgeld
394 €
Courtage
provisionspflichtig
Käufercourtage
3,57 % inkl. MwSt vom Kaufpreis durch Abwälzung
Courtage Hinweis
Weitere Informationen unter "Sonstige Angaben" in Exposee

Merkmale

Zimmer und Bereiche
Voll unterkellert
Gesamtfläche
3,9 m2
Anzahl (Balkone)
1.0
Schlaf­zimmer
Ausstattung und Technik
Qualität der Ausstattung
standard
Einbau­küche
Sanitäre Einrichtung
Wanne
Stellplätze
Anzahl Stellplätze (gesamt)
1.0
Tiefgarage
Anzahl
1.0
Kaufpreis
10.000 €

Energie

Energieausweis
Typ
Verbrauchs­ausweis
EnEV
ab 01.05.2014 (gemäß EnEV 2014)
Energieausweis gültig bis
14.05.2034
Energie­verbrauchs­kennwert gemessen in kWh/(m²a)
118

A+ABCDEFGH

Energieeffizienz­klasse
D
Ausstelldatum
16.10.2023
Gebäudeart lt. Energieausweis
Wohngebäude
Heizung
Zentral­heizung

Umgebung

Es wurden keine Daten angegeben.

Objektbeschreibung

Diese gepflegte 3-Zimmer-Wohnung mit einer Wohnfläche von ca. 58,8 m² befindet sich im 2. Obergeschoss eines Mehrfamilienhauses mit insgesamt 34 Wohneinheiten. Die Wohnung ist ab sofort bezugsfrei und bietet somit ideale Voraussetzungen für Kapitalanleger zur direkten Neuvermietung.

Die praktische Raumaufteilung umfasst ein Wohnzimmer, ein Elternschlafzimmer, ein Kinder- bzw. Arbeitszimmer, einen Flur sowie ein Badezimmer. Eine moderne Einbauküche inklusive Elektrogeräten (Herd, Backofen, Dunstabzugshaube, Kühlschrank, Waschmaschine und Spülmaschine) ist bereits vorhanden und steigert die Attraktivität für zukünftige Mieter.

Ein Kellerabteil sorgt für zusätzlichen Stauraum. Besonders komfortabel ist die Gesamtschließanlage, bei der ein Schlüssel für Haus-, Wohnungs-, Keller- und Garagenzugang genügt.

Die Beheizung erfolgt über Erdgas. Ein Tiefgaragenstellplatz kann optional für 10.000 € zusätzlich erworben werden.

Dank des soliden Vermietungspotenzials ist eine mögliche Kaltmiete von ca. 9–14 € pro m² realistisch – eine interessante Gelegenheit für Anleger mit Fokus auf nachhaltige Rendite. Mögliche jährliche Kaltmieteinnahmen liegt somit bei ca. 6.350 € – 9.880 €.

Falls Sie Wert auf eine ruhige Lage, eine durchdachte Raumaufteilung und ein gehobenes Wohnumfeld legen, könnte dieses Objekt genau das Richtige für Sie sein. Wir bieten Ihnen eine kostenlose 24/7-Hotline unter der Rufnummer 0800-6460646, über die Sie uns jederzeit erreichen können.

Wenn Sie Interesse an der Immobilie haben, fordern Sie gerne das ausführliche Exposé an, das Ihnen in der Regel kurzfristig und automatisch zugesandt wird. Sollten Sie eine Besichtigung wünschen, antworten Sie am besten direkt per E-Mail auf das Exposé. Wir setzen uns umgehend mit Ihnen in Verbindung und unterbreiten Ihnen passende Terminvorschläge. Bitte geben Sie dabei stets Ihre vollständigen Kontaktdaten an.

Die Objektbeschreibung basiert auf den Angaben des Eigentümers. Für die Richtigkeit und Vollständigkeit dieser Informationen übernehmen wir keine Gewähr.

***************************************************************************
Besichtigungstermine sind bereits mit dem Eigentümer abgestimmt.

Bei einem Besichtigungswunsch antworten Sie am besten per Mail. Wir melden uns dann umgehend mit Terminvorschlägen bei Ihnen. Bitte geben Sie immer Ihre vollständigen Kontaktdaten an sowie die Adresse des Objektes an, das Sie interessiert.

Ihr persönlicher Ansprechpartner:

Kristina Mayrhofer

E-Mail: kristina.mayrhofer@falcimmo.de
Tel: 0800 / 646 0 646 / kostenlos / von 6:00-22:00 / Mo-So
Mobil: 0155-600-65-018.
***************************************************************************
Möchten auch Sie Ihre Immobilie professionell vermarkten? Dann kontaktieren Sie uns gerne! Wir stehen Ihnen täglich von Montag bis Sonntag zwischen 6:00 und 22:00 Uhr persönlich zur Verfügung. Über 200.000 aktive Interessenten warten bereits auf Ihr Angebot.

Ausstattung

Besichtigen Sie Ihre zukünftige Immobilie schon heute unter: https://app.immoviewer.com/portal/tour/3137335?accessKey=698e

1) Wohnfläche: 58,8 m²
2) Anzahl der Zimmer: 3
3) Geschoss: 2. OG, Treppe vorhanden
4) Aufzug: nicht vorhanden
5) Aufteilung: Kinderzimmer/Arbeitszimmer, Elternzimmer, Wohnzimmer, Bad, Flur
6) Bodenbelag: Laminat in Elternzimmer, Kinderzimmer, Flur Fliesen im Bereich der Wohnzimmer und Küche, Bad
7) Fenster: PVC, 2-fach verglast, Dreh-Kipp-Funktion, mit Rollläden aus Kunststoff
8) Innentüren: Holztüren
9) Einbauküche, inkl. Herd, Ofen, Dunstabzugshaube, Kühlschrank, Waschmaschine, Spülmaschine
10) Kabel TV: vorhanden
11) Internet: DSL-Leitung - vorhanden, Glasfaseranschluss: vorhanden
12) Anschluss für Waschmaschine: in der Küche und im Wäschetrockenraum
13) Telefonanschluss: vorhanden
14) Sprechanlage: vorhanden
15) Gesamtschließanlage im Haus: nur 1 Schlüssel für Haustür, Eingangstür, Garage und Kellerraum
Kellerabteil: vorhanden
16) Heizungsart: Erdgas
17) Digitale Strom- und Heizungsabrechnung sowie Wasserzähler: vorhanden.
18) Tiefgaragenparkplatz: vorhanden, zzgl. zum Kaufpreis - 10.000 €
19) Fahrradstellplatz: vorhanden
***************************************************************************
Hausgeld = ca.313€, zzgl. ca. 81€ monatlichen Rücklagen
Stand Rücklagen am 31.12.2024= 127.779,65€
Umlagefähige Kosten, ohne Rücklagen (Stand Wirtschaftsplan vom Jahr 2025)= 52,49 €
Anzahl Wohnungen bei der WEG= 34
Die mögliche Kaltrendite liegt im Rahmen von ca. 9,00 € bis 14,00 € pro m² (abhängig von Ausstattung und Vermietungskonzept).
Mögliche jährliche Kaltmieteinnahmen: ca. 6.350 € – 9.880 €.
***************************************************************************
Besondere Merkmale der Immobilie:

- Bezugsfähig ab sofort
- 3 Zimmer mit offener Küche: Praktische Aufteilung für komfortables Wohnen. Die gut geschnittenen Zimmer bieten viel Platz zur individuellen Gestaltung.
- Die vorhandene Kücheneinrichtung verbleibt in der Wohnung und ermöglicht einen unkomplizierten Einzug.
- Großzügige Räume. Die gut geschnittenen Zimmer bieten viel Platz zur individuellen Gestaltung.
- Tageslichtbad: Das Badezimmer ist mit einem Fenster ausgestattet und sorgt für eine angenehme Atmosphäre.
- Spielplatz direkt vor der Haustür – ideal für Familien: Kinder können sicher und bequem draußen spielen, ohne lange Wege.
- Grüne Umgebung im Sommer – viel Natur und frische Luft: Perfekt für entspannte Nachmittage, Spaziergänge und ein angenehmes Wohngefühl.
- Kindergarten gleich ums Eck – spart Zeit und erleichtert den Alltag: kurze Wege, schnelle Organisation und maximale Familienfreundlichkeit.

Lage

- Verkehrsanbindung:
- Öffentliche Verkehrsmittel: Mehrere Bushaltestellen sind fußläufig erreichbar, darunter Schwabmünchen Osram sowie Schwabmünchen Sägewerk. Der Bahnhof Schwabmünchen ist in wenigen Minuten mit dem Fahrrad oder Auto erreichbar und bietet eine gute regionale Schienenanbindung.
- Straßenanbindung: Die Lage profitiert von der schnellen Erreichbarkeit der überregionalen Achsen im Raum Augsburg. Die Bundesstraße B17 ist in wenigen Minuten mit dem Auto erreichbar und verbindet Richtung Augsburg sowie Landsberg. Die Autobahn A8 ist über den Raum Augsburg ebenfalls gut angebunden.
- München ist über die A96 in ca. 80 km erreichbar. Der Flughafen München liegt in etwa 80 km Entfernung, der Flughafen Memmingen in ca. 55 km.
- Parkmöglichkeiten: Im Umfeld sind typischerweise öffentliche Stellplätze im Straßenraum vorhanden; je nach Objekt können zusätzliche private Stellplätze oder Garagen die Vermietbarkeit weiter stärken.
- Einrichtungen des täglichen Bedarfs:
- Supermärkte, Discounter, Bäckereien, Apotheken: Die Nahversorgung ist sehr komfortabel. NORMA liegt in der Nähe, ebenso Drogerie Müller. Weitere Einkaufsmöglichkeiten wie REWE sowie ALDI Süd sind in wenigen Minuten mit dem Fahrrad oder Auto erreichbar. Damit ist die Lage für Mieterinnen und Mieter besonders alltagstauglich.
- Bildungseinrichtungen:
- Kindergärten, Schulen (Grundschulen, weiterführende Schulen): Der Kindergarten St. Anna ist in der Nähe. Weitere Betreuungseinrichtungen wie der Luise-Scheppler-Kindergarten sind gut erreichbar. Mit der Leonhard-Wagner-Mittelschule und weiteren Schulen im Stadtgebiet besteht eine solide Bildungsinfrastruktur, was die Nachfrage bei Familien und langfristigen Mietverhältnissen unterstützt.
- Gesundheitsversorgung:
- Ärzte, Fachärzte, Krankenhäuser: Mehrere Arztpraxen und Zahnärzte befinden sich im näheren Umfeld. Für die stationäre Versorgung ist die Wertachklinik Schwabmünchen gut erreichbar; darüber hinaus ist das Universitätsklinikum Augsburg als Maximalversorger im Großraum in sinnvoller Distanz angebunden.

***************************************************************************

Falls Sie Wert auf eine ruhige Lage, eine durchdachte Raumaufteilung und ein gehobenes Wohnumfeld legen, könnte dieses Objekt genau das Richtige für Sie sein. Wir bieten Ihnen eine kostenlose 24/7-Hotline unter der Rufnummer 0800-6460646, über die Sie uns jederzeit erreichen können.

Wenn Sie Interesse an der Immobilie haben, fordern Sie gerne das ausführliche Exposé an, das Ihnen in der Regel kurzfristig und automatisch zugesandt wird. Sollten Sie eine Besichtigung wünschen, antworten Sie am besten direkt per E-Mail auf das Exposé. Wir setzen uns umgehend mit Ihnen in Verbindung und unterbreiten Ihnen passende Terminvorschläge. Bitte geben Sie dabei stets Ihre vollständigen Kontaktdaten an.

Die Objektbeschreibung basiert ganz oder teilweise auf den Angaben des Eigentümers. Für die Richtigkeit und Vollständigkeit dieser Informationen übernehmen wir keine Gewähr.

Möchten auch Sie Ihre Immobilie professionell vermarkten? Dann kontaktieren Sie uns gerne! Wir stehen Ihnen täglich von Montag bis Sonntag zwischen 6:00 und 22:00 Uhr persönlich zur Verfügung. Über 200.000 aktive Interessenten warten bereits auf Ihr Angebot.
Lade Orte in der Umgebung

Sonstiges

***************************************************************************
Durchgeführte Instandsetzungsarbeiten in den letzten Jahren:

Die Mülleinhausung und Balkone wurden saniert, die Außenkellertreppen zurückgebaut, die betroffenen Kellerräume können jetzt von innen betreten werden. Die beiden Häuser wurden von außen rundherum aufgegraben und ab Fundament bis Sockelbereich saniert. Die Hauseingangstüren und die Eingangssituation außen wurden saniert. In den Kellern wurden die gemeinschaftlichen Gänge und die Waschküchen saniert. Beide Heizanlagen wurden ausgetauscht (Heizanlage Haus 43-47a im Jahr 2011, hierzu muss erwähnt werden, dass 2024 ein neuer Gasbrenner eingebaut wurde). Im Jahr 2024 wurden in beiden Häusern Entkalkungsanlagen eingebaut. Beide Fassaden von der Anlage wurden gestrichen.
**************************************************************************
Sonstiges in der Wohnung:
- Kleines Fenster im Bad kann nur gekippt werden
- Türklinken klemmen
- 1 Heizkörper im Kinderzimmer ist zu montieren, das Heizkörper ist aktuell demontiert
- Bad: Anschlussleisten am Kabelkanal ist auszutauschen
- 1 Türblatt zwischen Flur und Wohnzimmer ist nicht vorhanden
- Der Einbaukühlschrank ist funktionstüchtig, zeigt innen jedoch eine leichte gelbliche Verfärbung
**************************************************************************
Beim ausgewiesenen Preis handelt es sich um den Angebotspreis, der sich durch Verhandlungen auch ändern kann.

Bei diesem Objekt ist nicht vorgesehen, dass der Käufer mit uns eine eigenständige Provisionsvereinbarung trifft, sofern dieser als Verbraucher (§ 14 BGB) zu qualifizieren ist. Der Verkauf erfolgt nur an denjenigen, der sich bereit erklärt, einen Teil der vom Verkäufer zugesagten Provision zu übernehmen (maximal 50 %, vgl. § 656 d BGB).
Dieser Anteil beträgt 3,57% inkl. Umsatzsteuer bezogen auf den notariell beurkundeten Kaufpreis.

Der Energieausweis liegt vor und kann zur Besichtigung eingesehen werden.
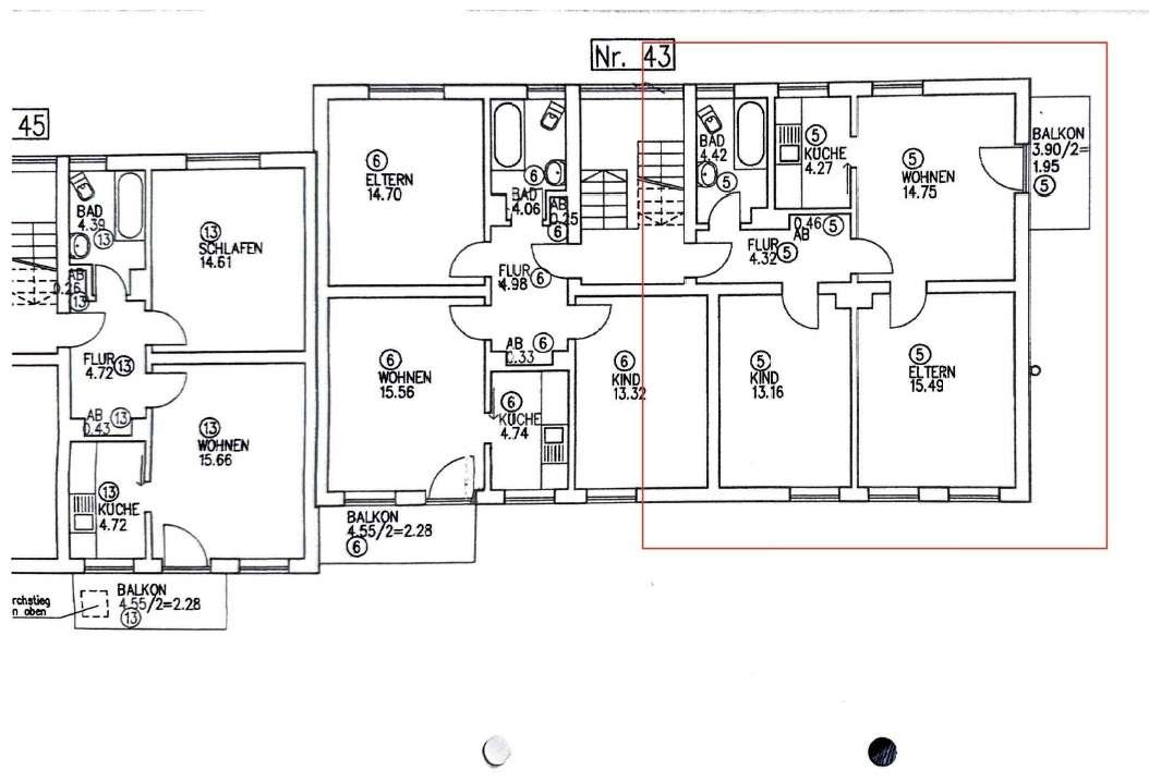
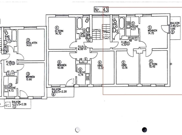
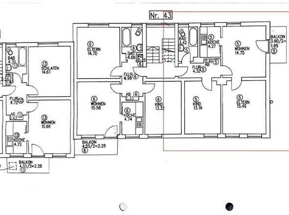
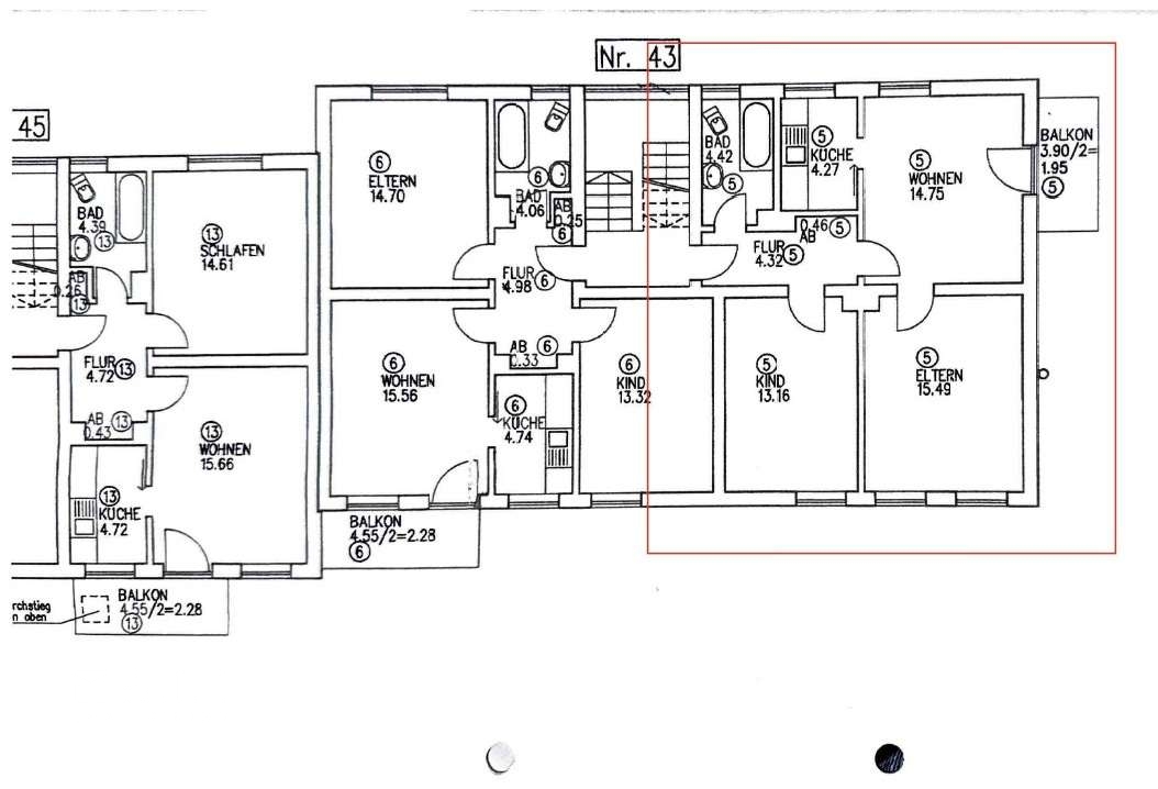
Die Flächen wurden von dem original Plan des Verkäufers übernommen, siehe FALC Grundriss.
Die Gesamtwohnfläche wurde aus dem Grundrissplan vom Verkäufer entnommen.
Baujahr von Anlagentechnik wurde aus dem Energieausweis übernommen.

Die wesentliche Objektunterlagen liegen vor und können bei ernsthaftem Kaufinteresse bereitgestellt werden.
Die Objektbeschreibung basiert auf den Angaben des Eigentümers.
Für die Richtigkeit und Vollständigkeit dieser Informationen übernehmen wir keine Gewähr.
***************************************************************************
Wenn Sie Interesse an der Immobilie haben, fordern Sie gerne das ausführliche Exposé an, das Ihnen in der Regel kurzfristig und automatisch zugesandt wird. Sollten Sie eine Besichtigung wünschen, antworten Sie am besten direkt per E-Mail auf das Exposé. Wir setzen uns umgehend mit Ihnen in Verbindung und unterbreiten Ihnen passende Terminvorschläge. Bitte geben Sie dabei stets Ihre vollständigen Kontaktdaten an.

Möchten auch Sie Ihre Immobilie professionell vermarkten? Dann kontaktieren Sie uns gerne! Wir stehen Ihnen täglich von Montag bis Sonntag zwischen 6:00 und 22:00 Uhr persönlich zur Verfügung. Über 200.000 aktive Interessenten warten bereits auf Ihr Angebot.

Bitte beachten Sie, dass das Exposé und Möbilierung möglicherweise unter Zuhilfenahme von Künstlicher Intelligenz (KI) erstellt oder überarbeitet wurde.

Anbieterdaten

Kristina Mayrhofer

Ansprech­partner

Kristina Mayrhofer

Ihre Nachricht an FALC Immobilien Untermeitingen

Ihr Ansprechpartner: Kristina Mayrhofer

Mit (*) gekennzeichnete Felder sind Pflichtangaben.