Bielefeld-Nähe Obersee: Altbau mit bewährtem WG-Konzept | 11 Mietverhältnisse | Energieklasse C

Eckdaten

 Zimmer
 Wohnfl.
 Grundst.
Kaufpreis
 Zimmer
 Wohnfl.
 Grundst.

Kaufpreis

Basisdaten

Objektnummer
Immopark ID
IP-301566
Objekt ID
25 019 032
Adresse
Ort
33611 Bielefeld
Fakten und Zahlen
Renditeobjekt Typ
Mehr­familien­haus
Vermarktungsart
Kauf
Nutzungsart
Anlage
Verkaufsstatus
offen
Baujahr
1905
Kerndaten
Wohnfläche
246 m2
Zimmer
11.0
Schlafzimmer
11.0
Badezimmer
3.0
Vermietbare Fläche
246 m2
Bauweise / Substanz
Objektzustand
teil- vollrenovie­rungsbedürftig
Dachform
Satteldach
Etagenanzahl der Immobilie
3

Preisdaten

Preis
Kaufpreis
535.000 €
Kaufpreis pro Quadratmeter
2.174,80 €
Kaufpreis bezogen auf Jahresmiete (X-fache)
17.18
Courtage
Käufercourtage
Käuferprovision beträgt 3,57 % (inkl. MwSt.) des beurkundeten Kaufpreises
Mieteinnahmen
aktuelle Mieteinnahmen
31.140 €
pro Jahr

Merkmale

Zimmer und Bereiche
Voll unterkellert
Anzahl (Balkone)
1.0
Schlaf­zimmer
Ausstattung und Technik
Qualität der Ausstattung
standard
Fliesen­boden
Lami­nat

Energie

Energieausweis
Typ
Verbrauchs­ausweis
EnEV
ab 01.05.2014 (gemäß EnEV 2014)
Energieausweis gültig bis
2026-01-27
Energie­verbrauchs­kennwert gemessen in kWh/(m²a)
97.60

A+ABCDEFGH

wesentlicher Energieträger
Gas
Energieeffizienz­klasse
C
Baujahr lt. Energieausweis
1905
Gebäudeart lt. Energieausweis
Wohngebäude
Heizung
Etagen­heizung
Befeuerungsart
Gas

Umgebung

Es wurden keine Daten angegeben.

Objektbeschreibung

Dieses charmante Mehrfamilienhaus wurde ca. 1905 erbaut und befindet sich in zentraler Lage des Ortskerns Schildesche. Die Immobilie verfügt über insgesamt etwa 246 m² Wohnfläche, verteilt auf Erd-, Ober- und Dachgeschoss.

Das gesamte Haus ist derzeit über alle Etagen hinweg an eine große Wohngemeinschaft vermietet, die das Objekt vollständig bewohnt. Insgesamt umfasst das Haus elf Zimmer, die jeweils mit einzelnen Staffelmietverträgen vermietet sind. Die jährliche Netto-Kaltmiete beträgt derzeit 31140 Euro. Die Mieterstruktur gilt als sehr stabil – viele Bewohner leben bereits seit mehreren Jahren im Haus und bilden eine eingespielte Gemeinschaft, was zu einer konstanten Vermietung und verlässlichen Einnahmesituation beiträgt.

Das Gebäude befindet sich, gemessen an seinem Alter, in einem soliden Allgemeinzustand. Im Laufe der Jahre wurden verschiedene Modernisierungsmaßnahmen vorgenommen. So wurden die beiden Gasetagenheizungen in den Jahren 2014 und 2017 erneuert, das Dach vermutlich Anfang der 1990er-Jahre saniert und im Jahr 2005 eine Dämmung durchgeführt. Zur Straßenseite hin wurden 2023 alle Fenster mit moderner Schallschutzverglasung ausgetauscht, während die Fenster auf der Gartenseite teilweise älteren Datums sind. Auch die Gas- und Wasserleitungen wurden in Teilen, zuletzt 2018, erneuert. Die Bäder stammen aus den frühen 1990er-Jahren und präsentieren sich in klassischem Weiß.

Insgesamt zeigt sich das Haus technisch in einem guten Zustand, wenn auch die Innenräume – bedingt durch die intensive Nutzung als große Wohngemeinschaft – deutliche Gebrauchsspuren aufweisen und entsprechend gepflegt werden müssten.

Das Objekt überzeugt insbesondere durch seine zentrale Lage in Bielefeld Schildesche und die damit verbundene sehr gute Vermietbarkeit. Die solide Mieterstruktur sowie die kontinuierlich durchgeführten Erhaltungsmaßnahmen machen dieses historische Mehrfamilienhaus zu einer attraktiven und nachhaltigen Kapitalanlage mit weiterem Entwicklungspotenzial.

Haben wir Ihr Interesse geweckt? Gerne informieren wir Sie ausführlich über diese Immobilie und ihre Perspektiven in einem persönlichen Gespräch.

Ausstattung

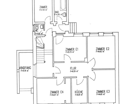
FOLGENDE AUFTEILUNG DER IMMOBILIE ERWARTET SIE

Zimmer 1, EG
Zimmer 2, EG
Zimmer 3, EG
Zimmer 4, EG

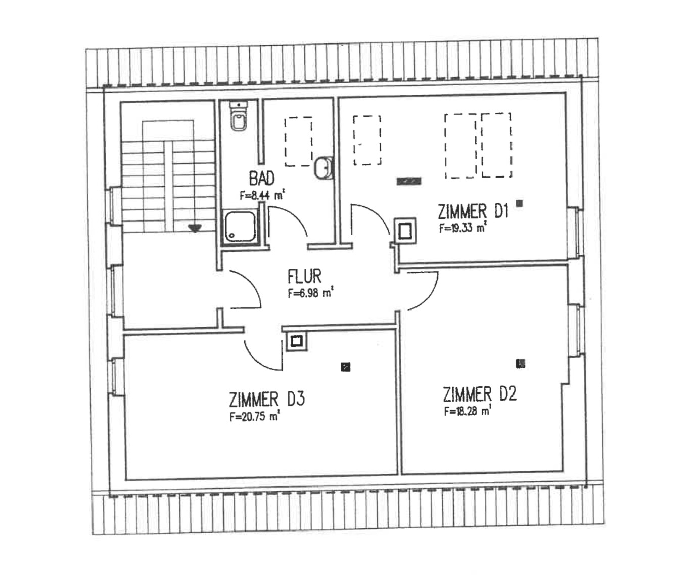
Zimmer 5, 1. OG
Zimmer 6, 1. OG
Zimmer 7, 1. OG
Zimmer 8, 1. OG

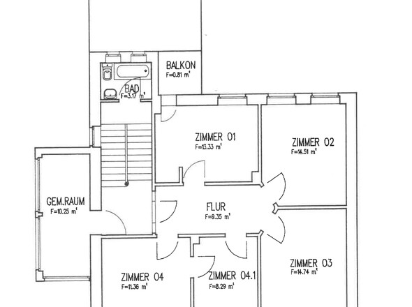
Zimmer 9, DG
Zimmer 10, DG
Zimmer 11, DG

Insgesamt sind ca. 246 m² vermietete Fläche im Gebäude vorhanden. Die Flächenangaben wurden der Mietaufstellung und Flächenaufstellung des Eigentümers entnommen.

Lage

Schildesche gehört zu den ältesten Stadtteilen Bielefelds. Die Bielefelder Innenstadt ist in wenigen Minuten mit dem Auto oder in ca. 5 Minuten mit der Bahn zu erreichen. Gute Verkehrsanbindungen ins Umland bieten die Autobahnen A2 und A33 und der Bielefelder Hauptbahnhof. Namenhafte und hochwertige Einkaufsmöglichkeiten, kleinere Shops, ein vielfältiges Angebot an Restaurants und Cafés sorgen für eine angenehme, über die Stadtgrenzen hinaus bekannte Lebensqualität. Zahlreiche Freizeitaktivitäten bietet der in wenigen Gehminuten entfernte Obersee. Genießen Sie die schönen Abendstunden in gemütlicher Runde in der Strandbar "DÜNE 13" direkt am Obersee.
Lade Orte in der Umgebung

Sonstiges

Es liegt ein Energieverbrauchsausweis vor.
Dieser ist gültig bis 27.1.2026.
Endenergieverbrauch beträgt 97.60 kwh/(m²*a).
Wesentlicher Energieträger der Heizung ist Gas.
Das Baujahr des Objekts lt. Energieausweis ist 1905.
Die Energieeffizienzklasse ist C.

Anbieterdaten

Tobias Tiemann

Ansprech­partner

Tobias Tiemann

Ihre Nachricht an VON POLL IMMOBILIEN Bielefeld - Markus Nagel

Ihr Ansprechpartner: Tobias Tiemann

Mit (*) gekennzeichnete Felder sind Pflichtangaben.