BODENSEE TRAUMWOHNUNG MIT PANORAMA SEESICHT: Hochwertige ETW z.B. FEWO nah zu historischer Altstadt

Eckdaten

 Zimmer
 Wohnfl.
 Grundst.
Kaufpreis
 Zimmer
 Wohnfl.
Grundst.

Kaufpreis

Basisdaten

Objektnummer
Immopark ID
IP-309024
Objekt ID
1069-587-1-FB
Adresse
Ort
88662 Überlingen
Fakten und Zahlen
Wohnungstyp
Mai­sonette
Vermarktungsart
Kauf
Nutzungsart
wohnen
Verkaufsstatus
offen
Baujahr
2008
Kerndaten
Wohnfläche
140 m2
Zimmer
4.5
Schlafzimmer
2.0
Badezimmer
2.0
separate WC
1.0
Anzahl Stellplätze (gesamt)
1.0
Bauweise / Substanz
Objektzustand
neuwertig
Etagenanzahl der Immobilie
2

Preisdaten

Preis
Kaufpreis
990.000 €
Weitere Kosten
Hausgeld
480 €
Courtage
provisionspflichtig
Käufercourtage
3,57 % inkl. gesetzl. MwSt. (19%)
inkl. MwSt.

Merkmale

Zimmer und Bereiche
Voll unterkellert
Anzahl (Balkone)
2.0
Schlaf­zimmer
Wasch- / Trocken­raum
Fahrrad­raum
Abstell­raum
Ausstattung und Technik
Qualität der Ausstattung
lu­xu­ri­ös
Sanitäre Einrichtung
Fenster
Dusche
Wanne
Gäste WC
Stellplätze
Anzahl Stellplätze (gesamt)
1.0
Sonstiger Stellplatz
Anzahl
1.0

Energie

Energieausweis
Typ
Verbrauchs­ausweis
EnEV
ab 01.05.2014 (gemäß EnEV 2014)
Energieausweis gültig bis
2032-05-29
Energie­verbrauchs­kennwert gemessen in kWh/(m²a)
111.00

A+ABCDEFGH

wesentlicher Energieträger
Gas
Energieeffizienz­klasse
D
Baujahr lt. Energieausweis
2008
Gebäudeart lt. Energieausweis
Wohngebäude
Heizung
Fußboden­heizung
Befeuerungsart
Gas

Umgebung

Es wurden keine Daten angegeben.

Objektbeschreibung

Das große RE/MAX Immobilien Netzwerk Südbaden // Lörrach-Weil am Rhein-Rheinfelden-Schopfheim-Müllheim-Freiburg // Die *NR. 1* Immobilienvermittlung mit Ihrem 1. Ansprechpartner Fritz Bruchmann von RE/MAX in Ihrer Nähe freuen wir uns Ihnen diese spannende Immobilie im exklusiven Kooperations-Auftrag mit einem Partnerunternehmen zu präsentieren:

*Einmalige Kaufchance!*
BODENSEE TRAUMWOHNUNG MIT PANORAMA SEESICHT: Hochwertige ETW z.B. FEWO nah zu historischer Altstadt

Der Gebäudekomplex befindet sich in einer exponierten und begehrten Wohnlage in Überlingen am Bodensee, Ortsteil Aufkirch, mit exklusivem Blick auf Stadt und Bodensee. Die Wohnbebauung wurde vor ca. 15 Jahren im ortsbildprägenden Charakter erstellt. Seinerzeit wie heute ist Aufkirch ein sehr beliebter und ruhiger Vorort der Stadt. «Eine wirklich liebenswerte Gegend mit vielen Gärten und Grün» und vor allem die phänomenale unbezahlbare Seesicht auf den Bodensee mit Weitblick auf die Schweizer Alpen begeistert.
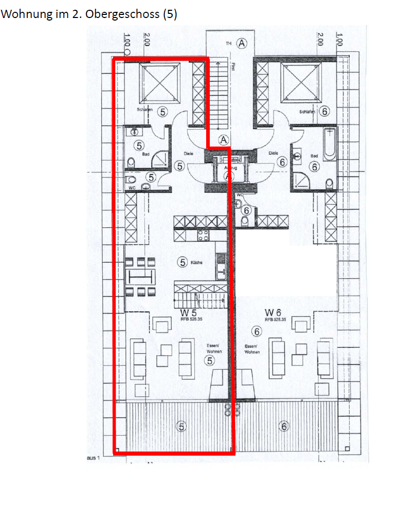
Die 4,5-Zimmer-Maisonette-Wohnung besticht durch ihre großzügigen und offenen Wohnbereiche. Und sie hat einen weiteren entscheidenden Vorteil: Sie ist sofort beziehbar und wartet nur darauf wieder mit Leben und Lebensfreude befüllt zu werden. Eine sehr gut erhaltene Einbauküche (Jg. 2008) wurde in das offene Ess- und Wohnzimmer integriert. Ein weiträumiger Balkon im Loggiacharakter schließt sich direkt in Südausrichtung an. 2 Schlafzimmer auf der Etage und im Maisonettebereich runden das Bild ab. Im oberen Geschoss befindet sich ein Salon mit Süd-Balkon und wiederum Blick auf den Bodensee. 2 Bäder (beide Bäder en Suite, 1x mit Whirlpoolwanne) im Stil der Zeit passen zur Wohnung. Abstellräume und 1 großer Kellerraum bieten ausreichend Stauraum. Die weiteren gemeinschaftlichen Räume im Keller, Fahrradraum, Trockenraum, alles in einem einwandfreien top gepflegten Zustand. Zudem gehört 1 Tiefgaragen-Stellplatz zum Wohnungseigentum. Diese 3 "B"s führen zum Glück: Besser, Bequemer und noch dazu Barrierefrei geht es nicht: Von der Tiefgarage führt ein Lift direkt in die Wohnung.
Die Hausgemeinschaft ist sehr harmonisch. Das Haus ist sehr gut unterhalten und bewirtschaftet. Durch die gute laufende Pflege befindet es sich in einem zeitgemäß sehr guten neuwertigem Zustand.
Besichtigungen können jederzeit kurzfristig vereinbart werden. Vor Kauf ist ein Kapitalnachweis oder eine Finanzierungsbestätigung erforderlich.
Informationen zur Lage, Wirtschaftsstruktur und Infrastruktur der Stadt Überlingen am Bodensee mit seiner gut erhaltenen Altstadt direkt am Ufer des Bodensees finden Sie unter folgendem Link: https://de.wikipedia.org/wiki/Überlingen

Ausstattung

- ART: Wohnung
- TYP: Maisonette
- GRÖSSE: 4,5-Zimmer-Maisonette-Wohnung
[Info !] davon 2 Schlafzimmer (SZ), 2 große Wohnzimmer, 1/2 Zimmer Essbereich
- IMMOBILIE: Massiv gebautes MFH
[Info !] Sehr gute Bausubstanz
- BAUJAHR: 2008
- WOHNFLÄCHE: ca. 140 m²
- HAUSGELD: ca. 480,- € pro Monat
- ETAGE: 2. OG und DG

***TOP HIGHLIGHT! 1***
- AUFZUG: Ja mit einem bequemen modernen Personenaufzug erreichen Sie die Wohnung vom EG oder von der Garage ganz mühelos
IHR VORTEIL: Barrierefreier Zugang zur Wohnung möglich!
UNSER TIPP: Gerade auch für das Alter ein Top Investment!

- OBJEKTZUSTAND: Neuwertig und top gepflegt
- AUSSTATTUNG: Luxuriös
- AKTUELLE NUTZUNG: Leer stehend, daher sofort frei zur Eigennutzung
- LAGE: Die Lage begeistert jung und alt: Gelegen in einer wunderbar ruhigen sehr guten Wohngegend in Aufkirch am Rande der Stadt gesegnet mit einer hervorragenden Infrastruktur und hohen Lebensqualität bietet sich Ihnen die seltene Chance auf einen Kauf zur Eigennutzung oder alternativ die perfekte solide Kapitalanlage mit Potenzial. Egal ob Sie entscheiden, hier selbst zu wohnen (Hauptwohnung oder Ferienwohnung) oder Sie vermieten wollen: In dieser Wohnumgebung in einer Nachbarschaft mit Gleichgesinnten und Menschen mit gehobenen Bildungsniveau fühlt man sich schnell zu Hause und spürt vollkommene Freiheit. Dies ist sicherlich sowohl der Seesicht Bodensee mit Blick auf die Schweizer Berge als auch der schnellen Erreichbarkeit von Geschäften des täglichen Bedarfs, Restaurants, Ärzte, Kindergärten etc. zu verdanken.
- WANN VERFÜGBAR: sofort verfügbar bzw. innerhalb von ca. 3-6 Wochen nach notarieller Beurkundung des Objekts
- NUTZUNGARTEN:
1.) Selbstnutzung Erstwohnsitz / Ferienwohnung
2.) Vermietung Kapitalanlage / Rendite-Objekt / AirBnB Ferienwohnung
- BAD: 2 hell geflieste großzügige moderne Bäder (je en Suite) einmal mit Whirlpoolwanne

***TOP HIGHLIGHT! 2***
- LOGGIEN/BALKONE: 2 urgemütliche überdachte Traum Balkone im Loggiacharakter mit Südausrichtung und 24/7 traumhaftem Blick Seesicht auf den Bodensee und die Schweizer Alpen, die Herzen sofort höher schlagen lassen, mit viel Platz zum Verweilen, Grillen, Essen, Frühstücken und Feiern mit Freunden und Familie

- KÜCHE: 1 schöne offene Tageslicht-Küche mit attraktiver gut erhaltener rustikaler in hellem Holzton gehaltene Einbauküche (EBK) mit opulenter Kücheninsel, einschl. Kücheneinrichtung mit Elektrogeräten u.a. sep. Kühlschrank-Gefrierkombination
- FENSTER: Sehr gute 3-fach verglaste Balkontür und -fenster Außen mit weißem Kunststoff und Innen Holzverkleidung
- BÖDEN:
o Bäder: Großflächige anthrazitfarbene Fliesen
o Flur und Zimmer: Hochwertiges Echtholz Parkett
o Küche und Eingangsbereich/Diele: Lachsfarbener Teppich (auf Echtholz Parkett) => bei Bedarf problemlos schnell wieder zu entfernen
- ABSTELLRAUM: Ja 1 praktischer Abstellraum ist vorhanden
- HEIZUNG: Fußbodenheizung (Gas) für ein sehr angenehmes Wohnklima
- DACH: Sehr guter Zustand wie neu, laufend gepflegt und gewartet
- KELLER / UNTERGESCHOSS:
[Info !] Keller ist trocken!
1 schöner großer Kellerraum zur Eigennutzung
1 Fahrradraum sowie 1 Wasch- und Trockenraum zur Gemeinschaftsnutzung

***TOP HIGHLIGHT! 3***
- GARAGE/STELLPLATZ: 1 sehr wertvoller TG-Stellplatz ist im Kaufpreis mit enthalten

Lage

"Grüß Gott" IN ÜBERLINGEN - DIREKT AM BODENSEE
Die Altstadtkulisse – bunt & lebendig!
Die Menschen – herzlich & mitreißend!
Der Alltag – weit & weg!

Der Gebäudekomplex mit der Wohnung im Ortstteil Aufkirch liegt sehr ruhig in einer grünen Umgebung. In nur wenigen Minuten erreicht man die historische Altstadt und die Seepromenade.
Die komplette und vollständige Infrastruktur mit Bildungseinrichtungen, Schulen, Kindergärten, aber auch alle Einkaufsmöglichkeiten, Banken, Ärzte, Apotheken, und anderes, sind auf kurzen schnellen Wegen erreichbar. Ebenso das gastronomische und kulturelle Angebot der Stadt Überlingen.

Kann Ihnen noch etwas zum Glück fehlen? Lernen Sie uns und die Immobilie daher noch heute kennen!


ÜBERÖRTLICHE ANBINDUNG/ENTFERNUNGEN:

Nächstgelegene größere Städte & Sehenswürdigkeiten
- Konstanz Bodensee (GER): ca. 41 Min. / 46 km
- Stuttgart (GER): ca. 2 Std. / 164 km
- München (GER): ca. 3 Std. / 225 km
- Zürich (CH) ca. 1 Std. 19 Min. / 95 km

Bundes- und Landstraßen:
- B31, B31n

Nächster Bahnhof:
- Überlingen

Nächste Flughäfen:
- München (GER), Stuttgart (GER), Zürich (CH), Basel-Mulhouse-Freiburg (GER/FR/CH)
Lade Orte in der Umgebung

Sonstiges

*Einmalige Kaufchance!*
BODENSEE TRAUMWOHNUNG MIT PANORAMA SEESICHT: Hochwertige ETW z.B. FEWO nah zu historischer Altstadt

Hinweis: Exklusive Kooperation mit einem Partnerunternehmen. Vor einer Besichtigung ist zwingend die Nachweisbestätigung des Partners zu unterzeichnen. Vielen Dank.

Basiert auf einer von RE/MAX durchgeführten professionellen Immobilienbewertung

Kaufpreis Wohnung inkl. TG-Stellplatz: EUR 990.000,00*

Kaufnebenkosten:
5% Grunderwerbssteuer
ca. 1,5% Notarkosten / Grundbuch
3,57% Maklerprovision inkl. 19% MwSt.


Haben wir Ihr Interesse geweckt?
>> Dann freuen wir uns auf Ihre Anfrage und stehen Ihnen gerne für die Vereinbarung eines Besichtigungstermins zur Verfügung.
WICHTIG! Bitte haben Sie Verständnis, dass wir ausschließlich Anfragen mit vollständiger Adresse und Telefonnummer bearbeiten können.


Alle Informationen wurden vom Makler mit der notwendigen Sorgfalt veröffentlicht. Da wir meist jedoch auf Informationen der Auftraggeber angewiesen sind, können wir keine Gewähr, Haftung und Garantie für die Richtigkeit, Aktualität und Vollständigkeit übernehmen.


************************************************

Niemand vermittelt weltweit mehr Immobilien als RE/MAX -
Legen auch Sie daher den Verkauf und/oder die Vermietung Ihrer Immobilie vertrauensvoll in die Hände von RE/MAX.

[*GUTSCHEIN* JETZT DEN WERT IHRER IMMOBILIE CHECKEN!] Sie wollen wissen, was Ihre Immobilie heute auf dem Markt wert ist? Gerne komme ich unverbindlich für eine kostenlose Wertermittlung Ihrer Immobilie vorbei.

Kennen Sie jemanden, der eine Immobilie verkaufen oder vermieten möchte?
Ich freue mich auf Ihre Empfehlung!

Mit freundlichen Grüßen
Fritz Bruchmann

RE/MAX IMMOBILIEN NETZWERK SÜDBADEN, FRITZ BRUCHMANN: IHR EXPERTE VERKAUF & VERMIETUNG, +49 176 57701049, +49 761 88850024, fritz.bruchmann@remax.de, www.bruchmann-remax.de

************************************************

Anbieterdaten

Fritz Bruchmann

Ansprech­partner

Fritz Bruchmann

Ihre Nachricht an RE/MAX Immobilienmakler Lörrach

Ihr Ansprechpartner: Fritz Bruchmann

Mit (*) gekennzeichnete Felder sind Pflichtangaben.