+++ Bürogebäude mit Werkstatt, Lagerfläche und Stellplätzen +++
Eingangsbereich/Besprechungsraum - (KI generiert)Büro I - (KI generiert)Büro II - (KI generiert)Büro III - (KI generiert)Besprechungsraum - (KI generiert)Flur/KücheKücheWC-DamenWC-HerrenFlurFlurArchiv - (KI generiert)Werkstatt - (KI generiert)Werkstatt - (KI generiert)Werkstatt - (KI generiert)LagerLagerGrundriss ErdgeschossGrundriss ObergeschossTitelbild
Eckdaten
Zimmer
Wohnfl.
Grundst.
Kaltmiete
Zimmer
Wohnfl.
Grundst.
1828.0€ Kaltmiete
Basisdaten
Objektnummer
Immopark ID
IP-303853
Objekt ID
FALC-PV-76973
Adresse
19243 Wittenburg
Ort
19243 Wittenburg
Fakten und Zahlen
Vermarktungsart
Miete / Pacht
Nutzungsart
Gewerbliche Nutzung
Baujahr
1970
Kerndaten
Gesamtfläche
456,66 m2
Bürofläche
456,66 m2
Bauweise / Substanz
Objektzustand
Nach Vereinbarung
Verfügbarkeit
Verfügbar ab
sofort
Preisdaten
Preis
Kaltmiete
1.828 €
Nebenkosten
0,65 €
Mietpreis pro Quadratmeter
4 €
Weitere Kosten
Kaution Info
3 Monatskaltmieten
Merkmale
Ausstattung und Technik
Telefon und Internet
EDV - Verkabelung
Gewerbe Merkmale
Bürofläche
456,66 m2
Energie
Energieausweis
Typ
Verbrauchsausweis
Energieausweis gültig bis
02.11.2035
Energieverbrauch für Warmwasser enthalten
Energieverbrauch für Warmwasser enthalten
wesentlicher Energieträger
Gas
Stromwert
35
Wärmewert
60
Ausstelldatum
02.11.2025
Gebäudeart lt. Energieausweis
Nicht Wohngebäude
Befeuerungsart
Befeuerungsart
Gas
Umgebung
Es wurden keine Daten angegeben.
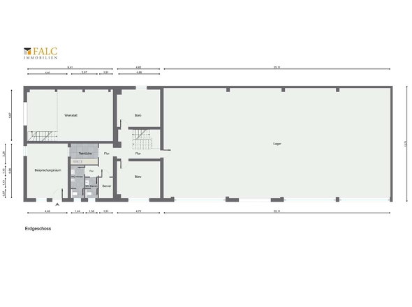
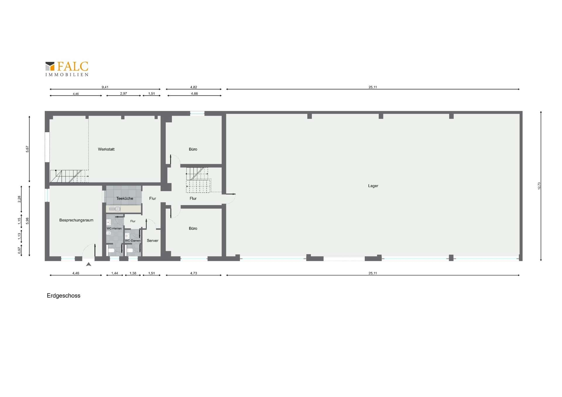
Objektbeschreibung
Betreten Sie dieses großzügige Bürogebäude, vielseitig nutzbar mit einer Fläche von 456,66 m². Der Eingangsbereich empfängt Sie mit einem einladenden Foyer, das ausreichend Platz für einen Empfangsbereich bietet. Von hier aus gelangen Sie, durch die Küche, in die verschiedenen Bereiche des Büros, die sich durch eine durchdachte Raumaufteilung auszeichnen.
Das Erdgeschoss bietet mehrere Büroräume, die flexibel genutzt werden können, sei es als Einzel- oder Teambüros. Die Räume sind so angeordnet, dass sie eine effiziente Kommunikation und Zusammenarbeit ermöglichen.
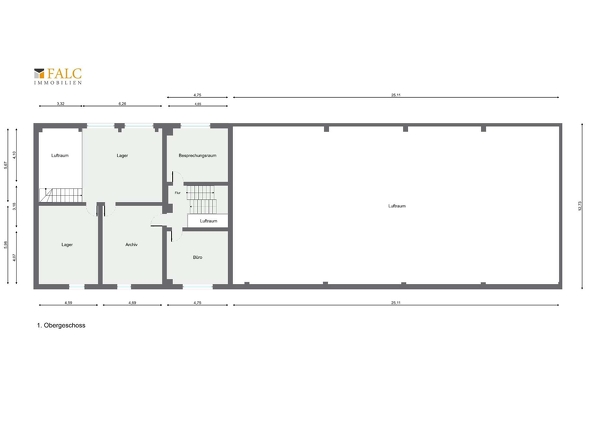
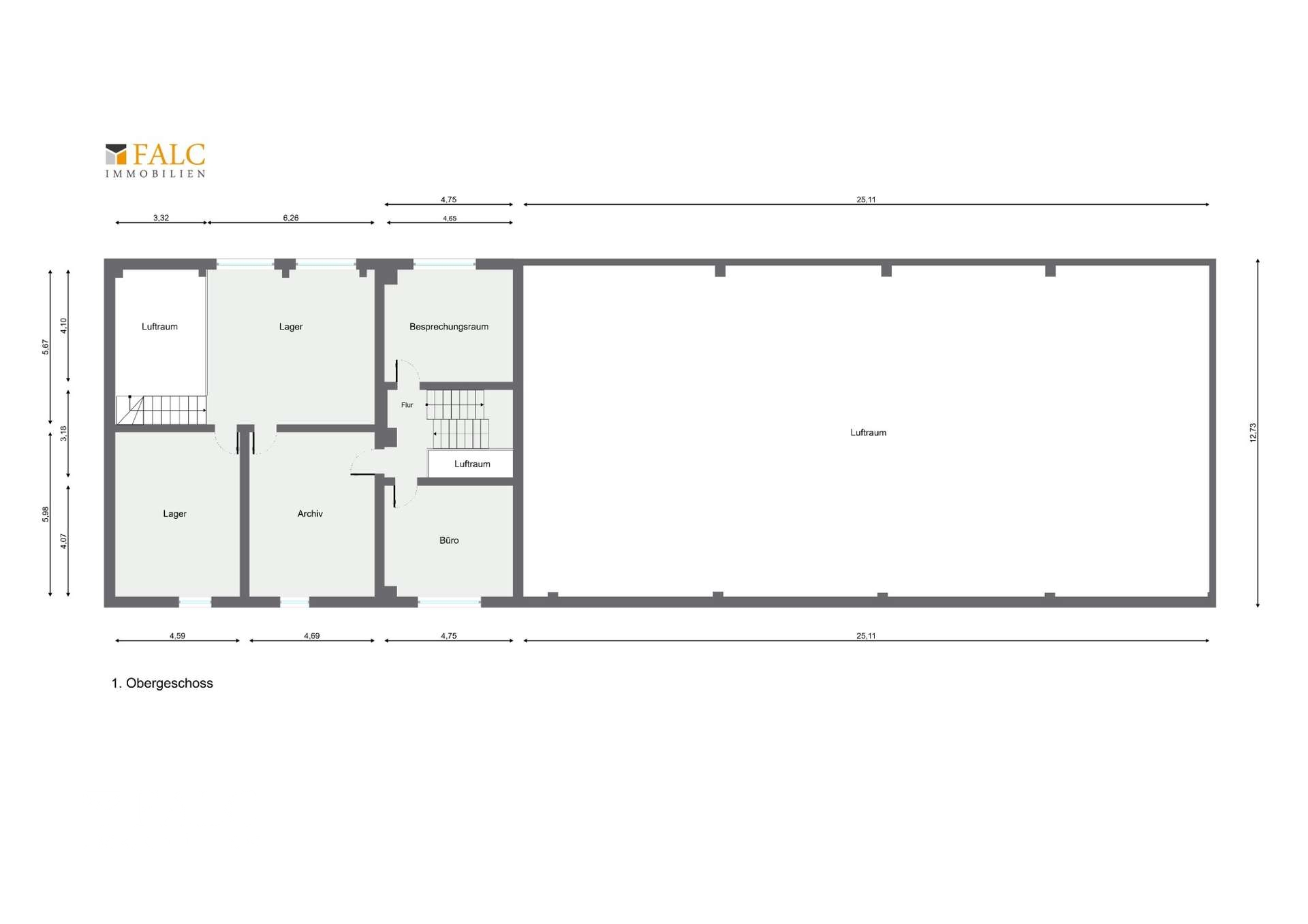
Der Flur führt Sie über eine Treppe weiter ins Obergeschoss, hier befinden sich neben einem Konferenzraum, ein großes und lichtdurchflutetes Büro. Zudem gibt es hier reichlich Kapazitäten für ein Archiv oder allgemeine Lagerflächen. Von hier aus gibt es einen direkten Zugang zur Werkstatt. Die Werkstatt ist ebenfalls über ein Rolltor zu erreichen. Auch das Lager ist über ein externes Rolltor zu erreichen, hat aber auch einen direkten Zugang vom Bürogebäude.
Besonders hervorzuheben ist die funktionale Gestaltung der Büroflächen, die eine optimale Nutzung der gesamten Fläche ermöglicht. Die Räume sind mit hochwertigen Bodenbelägen ausgestattet und bieten durch ihre klare Struktur vielfältige Gestaltungsmöglichkeiten.
Abgerundet wird das Angebot durch sanitäre Einrichtungen, die sich in einem gepflegten Zustand befinden und den Anforderungen eines modernen Büroalltags gerecht werden. Die Lage des Gebäudes bietet zudem eine gute Anbindung an öffentliche Verkehrsmittel und eine Vielzahl von Parkmöglichkeiten.
Dieses Bürogebäude bietet Ihnen die Möglichkeit, Ihre Geschäftstätigkeiten in einem professionellen Umfeld zu entfalten und von der funktionalen Raumaufteilung zu profitieren.
Lage
Diese Gewerbeimmobilie in Wittenburg bietet eine hervorragende Anbindung an wichtige Verkehrsknotenpunkte und eine Vielzahl von Annehmlichkeiten in der Umgebung. Die Lage ist ideal für Unternehmen, die sowohl auf eine gute Erreichbarkeit als auch auf eine inspirierende Umgebung Wert legen.
Die Nähe zur Autobahnauffahrt, die in wenigen Minuten erreichbar ist, ermöglicht eine schnelle Verbindung zu umliegenden Städten und Regionen. Der öffentliche Nahverkehr ist ebenfalls gut angebunden, mit mehreren Bushaltestellen in der Nähe, die den täglichen Pendelverkehr erleichtern.
Für Geschäftsreisende ist der nächste Flughafen in etwa einer Stunde mit dem Auto erreichbar, was die Immobilie auch für internationale Kontakte attraktiv macht.
In unmittelbarer Umgebung befinden sich zahlreiche Supermärkte, darunter Rewe und ALDI Nord, die eine bequeme Versorgung mit Lebensmitteln und Alltagsgegenständen gewährleisten. Für die Mittagspause oder Geschäftsessen stehen mehrere Restaurants in der Nähe zur Verfügung, darunter "Die Kantine Wittenburg" und der Landgasthof "Zur Mühle", die eine abwechslungsreiche Auswahl an Speisen bieten.
Für Unternehmen, die auf Nachhaltigkeit setzen, sind mehrere E-Ladestationen in der Umgebung vorhanden, was die Nutzung von Elektrofahrzeugen unterstützt. Auch Parkmöglichkeiten sind in ausreichender Zahl vorhanden, was den Zugang für Mitarbeiter und Kunden erleichtert.
Zusätzlich profitieren Unternehmen von der Nähe zu verschiedenen Sportstätten, die Möglichkeiten für Teambuilding-Events oder sportliche Aktivitäten nach der Arbeit bieten. Das Alpincenter Hamburg-Wittenburg ist nur einen kurzen Weg entfernt und bietet vielfältige Freizeitmöglichkeiten.
Diese Immobilie bietet eine strategisch günstige Lage mit einer Vielzahl von Annehmlichkeiten, die den Arbeitsalltag erleichtern und bereichern.
Lade Orte in der Umgebung
Sonstiges
Eine Besichtigung sagt mehr als jede Beschreibung, bei Interesse zögern Sie nicht und vereinbaren Sie einen unverbindlichen Termin. Wir bieten nicht nur eine kostenlose Hotline, sondern auch einen Service am Wochenende an. Bei Interesse geben Sie bitte immer Ihre vollständigen Kontaktdaten an. Die Objektbeschreibung beruht ganz oder zum Teil auf Angaben des Eigentümers. Für die Richtigkeit oder Vollständigkeit übernehmen wir keine Gewähr. Sie haben auf Anhieb nichts gefunden oder suchen Sie etwas ganz bestimmtes? Teilen Sie uns einfach mit was Sie suchen und wonach wir für Sie die Augen offenhalten dürfen. Profitieren Sie von den Vorteilen einer professionellen Maklersuche. Der Suchauftrag ist unverbindlich. Auf unserer Homepage www.falcimmo.de unter der Rubrik Immobiliensuche halten wir für Sie zum einen den Onlinesuchauftrag bereit, haben aber auch viele andere nützliche Informationen für Kaufinteressenten und Eigentümer.