* ca. 15 Km nach Bad Zwischenahn * KfW-Fördermittel möglich/Förderfähig! * KW 40 * Wärmepumpe * Photovoltaik * Neubau* Bezugsfertig gebaut *

Eckdaten

 Zimmer
 Wohnfl.
 Grundst.
Kaufpreis
 Zimmer
 Wohnfl.
 Grundst.

Kaufpreis

Basisdaten

Objektnummer
Immopark ID
IP-312680
Objekt ID
1057-498-HaLe
Adresse
Ort
26160 Bad Zwischenahn
Fakten und Zahlen
Haustyp
Einfamilien­haus
Vermarktungsart
Kauf
Nutzungsart
wohnen
Verkaufsstatus
offen
Baujahr
2026
Kerndaten
Wohnfläche
121,06 m2
Zimmer
4.0
Nutzfläche
26,73 m2
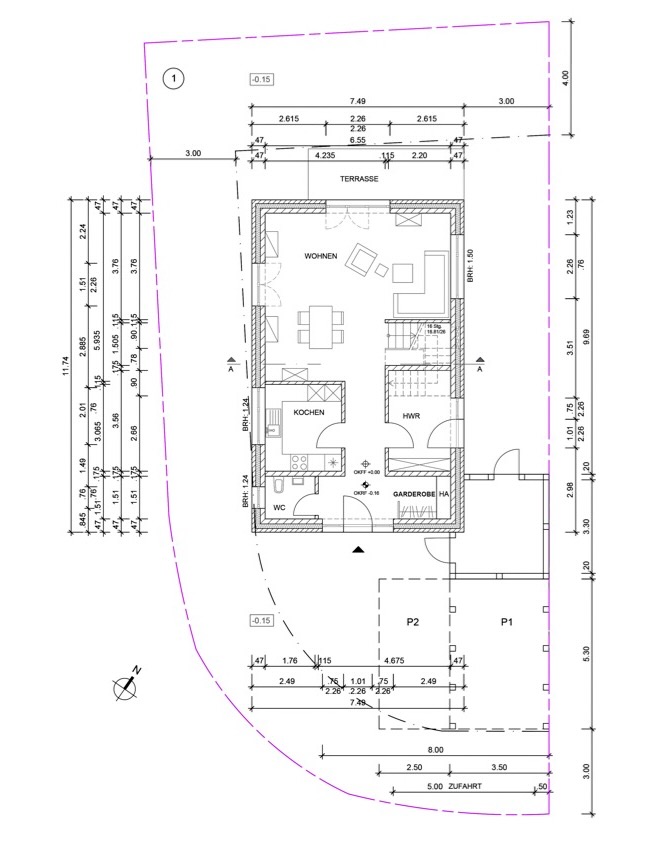
Grundstücksfläche
355 m2

Preisdaten

Preis
Kaufpreis
439.000 €
Courtage
Käufercourtage
4,76 % vom Kaufpreis inkl. MwSt

Merkmale

Stellplätze
Carport
Anzahl
1.0

Energie

Energieausweis
Gebäudeart lt. Energieausweis
Wohngebäude

Umgebung

Es wurden keine Daten angegeben.

Objektbeschreibung

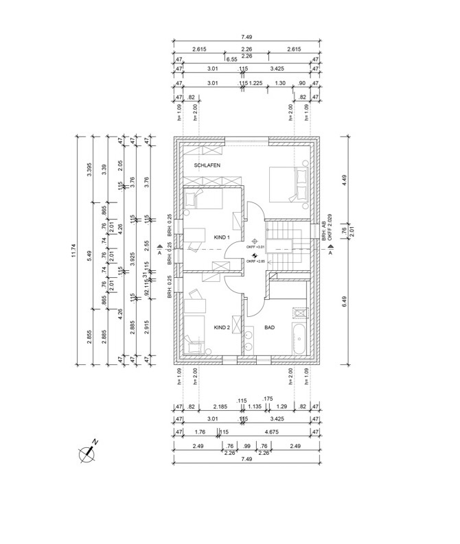
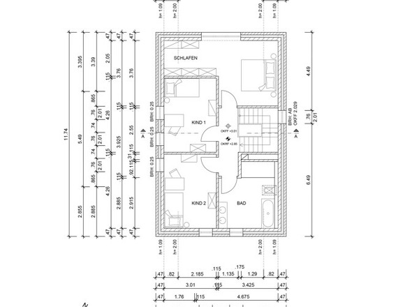
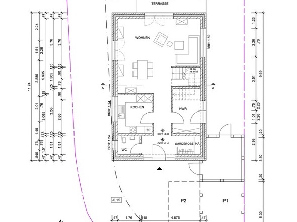
Raumaufteilung:

Erdgeschoss:

- Diele: ca. 7,06 qm
- WC: ca. 2,66 qm
- Küche: ca. 15,54 qm
- Wohnzimmer: ca. 35,24 qm
- Hauswirtschaftsraum: ca. 5,85 qm

- Carport: ca. 17,49 qm
- Abstellraum: ca. 9,24 qm

Obergeschoss:

- Treppe: ca. 2,16 qm
- Flur: ca. 4,45 qm
- Zimmer 1: ca. 12,35 qm
- Zimmer 2: ca. 11,64 qm
- Schlafzimmer: ca. 17,58 qm
- Bad: ca. 10,26 qm

Die Innenaufnahmen stammen von einem stilgleichen Objekt des Eigentümers, welches bereits fertiggestellt wurde.

Ausstattung

Highlights:

- KfW-Fördermittel möglich!
- Wärmepumpe
- Photovoltaik mit 9 Kw
- Neubau
- Wallbox
- Bezugsfertig
- Rasen angelegt
- Gepflastert
- Carport + Stellplatz
- Nebengebäude
- Zentrale Be- und Entlüftungsanlage
- 3-fach Verglasung
- Elektrische Jalousien in beiden Geschossen
- Ausreichend Steckdosen
- Hochwertige Baustoffe
- Ideale Lage zwischen Oldenburg/Cloppenburg/Friesoythe/Edewecht
- Gute Verkehrsanbindung
- Wünsche bezüglich Böden bzw. Sanitäreinrichtungen können berücksichtig werden

Lage

Edewechterdamm, benannt nach dem Straßendamm von Edewecht nach Friesoythe durch das Vehnemoor, ist ein Dorf in Niedersachsen. Es liegt in der Nähe von Oldenburg direkt am Küstenkanal. Ein kleiner Teil des Dorfes gehört zur Gemeinde Bösel, der größte Teil jedoch zur Stadt Friesoythe. Beide Gemeinden gehören zum Landkreis Cloppenburg und Edewechterdamm liegt genau an der Kreisgrenze zum Ammerland im Vehnemoor.

Friesoythe ist an das Bundesfernstraßennetz über die Bundesstraße B 72 angeschlossen, welche zudem Friesoythe indirekt mit den Bundesautobahnen A 28 und A 1 sowie der Bundesstraße B 401 verbindet.

In Edewechterdamm befindet sich eine Grundschule und weiterführende Schulen in Altenoythe (Oberschule). Zudem gibt es in Friesoythe die Realschule, das Albertus-Magnus Gymnasium sowie diverse Fachgymnasien.

"Groß"-Einkaufen kann man in Altenoythe, Friesoythe, oder in Edewecht. Auch Oldenburg lädt zum Shoppen ein und ist in ca. 20 Minuten mit einer der Buslinien zu erreichen.
Lade Orte in der Umgebung

Sonstiges

*** BITTE SCHICKEN SIE UNS EINE E-Mail, DAMIT WIR IHRE ANFRAGE BERÜCKSICHTIGEN KÖNNEN !!!! ****

Ihr Ansprechpartner
Hartwig Leemhuis
RE/MAX Immo-Team

hartwig.leemhuis@remax.de
Tel.: 0491 997568-10

Provision: 4,76 % vom Kaufpreis inkl. 19% MwSt.

Impressum:
Vertretungsberechtigter:Hartwig Leemhuis
Berufsaufsichtsbehörde:nach § 34c GewO: IHK für Ostfriesland und Papenburg, Postfach 1752, 26697 Emden
USt.ID:DE 246581814

Anbieterdaten

Hartwig Leemhuis

Ansprech­partner

Hartwig Leemhuis

Ihre Nachricht an RE/MAX Immo - Team

Ihr Ansprechpartner: Hartwig Leemhuis

Mit (*) gekennzeichnete Felder sind Pflichtangaben.