Charmante 2-Zimmer-Wohnung mit herrlichem Ausblick – perfekt für Naturliebhaber und Ferienvermietung!

Eckdaten

 Zimmer
 Wohnfl.
 Grundst.
Kaufpreis
 Zimmer
 Wohnfl.
Grundst.

Kaufpreis

Basisdaten

Objektnummer
Immopark ID
IP-305453
Objekt ID
1067-705-1-SG
Adresse
Ort
79682 Todtmoos
Fakten und Zahlen
Wohnungstyp
Etage
Vermarktungsart
Kauf
Nutzungsart
wohnen
Verkaufsstatus
offen
Baujahr
1982
Kerndaten
Wohnfläche
58,92 m2
Zimmer
2.0
Schlafzimmer
1.0
Badezimmer
1.0
Gesamtfläche
58,92 m2
Anzahl Stellplätze (gesamt)
1.0
Bauweise / Substanz
Objektzustand
gepflegt

Preisdaten

Preis
Kaufpreis
119.000 €
Weitere Kosten
Hausgeld
165 €
Courtage
provisionspflichtig
Käufercourtage
3,57%
inkl. MwSt.

Merkmale

Zimmer und Bereiche
Nicht unterkellert
Anzahl (Balkone)
1.0
Schlaf­zimmer
Ausstattung und Technik
Qualität der Ausstattung
standard
Stellplätze
Anzahl Stellplätze (gesamt)
1.0
Tiefgarage
Anzahl
1.0
Kaufpreis
9.000 €

Energie

Energieausweis
Typ
Verbrauchs­ausweis
EnEV
ab 01.05.2014 (gemäß EnEV 2014)
Energieausweis gültig bis
2029-08-27
Energie­verbrauchs­kennwert gemessen in kWh/(m²a)
92.80

A+ABCDEFGH

wesentlicher Energieträger
Elektro
Energieeffizienz­klasse
C
Baujahr lt. Energieausweis
1982
Gebäudeart lt. Energieausweis
Wohngebäude
Heizung
Etagen­heizung

Umgebung

Es wurden keine Daten angegeben.

Objektbeschreibung

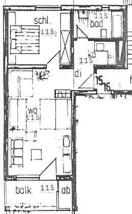
Diese lichtdurchflutete 2-Zimmer-Wohnung besticht durch ihre großzügige Raumaufteilung und ihre idyllische Lage, die ideal für all jene ist, die Natur und Freizeit genießen möchten. Das große Wohnzimmer bietet ausreichend Platz für einen gemütlichen Wohnbereich und einen separaten Essplatz. Vom Wohnzimmer aus erreichen Sie den Balkon, der mit seinem atemberaubenden Ausblick auf die umliegende Landschaft ein echtes Highlight darstellt – der perfekte Ort, um nach einem erlebnisreichen Tag zu entspannen.

Das Schlafzimmer bietet Raum für Ihre persönliche Ruhezone, während die funktionale Küche die Grundlage für kulinarische Genüsse bietet. Das Badezimmer mit Fenster und Badewanne sorgt für zusätzlichen Komfort und Gemütlichkeit.

Die Lage der Wohnung ist ein weiteres Plus: Sie wird Sie mit der Nähe zu herrlichen Wander- und Radwegen im Sommer sowie den Winteraktivitäten wie Skifahren in der kalten Jahreszeit begeistern. Diese Wohnung ist nicht nur ein ideales Zuhause für Naturliebhaber, sondern eignet sich auch hervorragend für die Ferienvermietung, da sie den Gästen eine perfekte Kombination aus Ruhe, Natur und Freizeitmöglichkeiten bietet.

Genießen Sie das Beste aus beiden Welten – eine gemütliche Wohnung in Top-Lage, die sowohl zum Verweilen als auch zur Vermietung einlädt!

Ausstattung

Wohnzimmer
Schlafzimmer
Badezimmer mit Wanne
Küche

Lage

Todtmoos liegt im Süden des Hochschwarzwaldes im oberen Wehratal. Das Gemeindegebiet erstreckt sich über eine Höhenlage von 700 m im Wehratal bis 1263 m. In der Ortsmitte bietet sich dem Gast zur Erholung ein schöner Kurpark und die Kurpromenade mit zahlreichen Geschäften und gemütlichen Straßencafés. 100 km ausgeschilderte Wanderwege führen zu schönen Aussichtspunkten, deren markantester der Aussichtsturm auf dem Hausberg Hochkopf ist. Es werden auch geführte Wanderungen und Nordic-Walking Touren angeboten. Für Mountainbiker sind ebenfalls einige Touren ausgeschildert, die Berge rund um Todtmoos bieten echte Herausforderungen.

4 Skilifte mit Pisten von leicht bis mittelschwer sind im Winter in Todtmoos in Betrieb. Das Langlaufzentrum Todtmoos- Gersbach bietet 25 km präparierte und ausgeschilderte Loipen und ermöglicht auch mittelschwere bis schwere Teilstrecken. Eine für Anfänger geeignete Loipe mit Skaterspur befindet sich beim Schwimmbad in Vordertodtmoos.

Weitere Ziele:
Bushaltestelle: nur 100 Meter
Bahnhof: etwa 1 km
Edeka: ca.1,5 km
Fitnessstudio gegenüber
A5: ca. 40km
A81: ca. 80km
Waldhut: 30km

===

Todtmoos is located in the south of the Black Forest in the upper Wehratal. The municipal area extends over an altitude of 700 m in the Wehratal to 1263 m. In the center of the town, guests can relax in a beautiful spa park and the spa promenade with numerous shops and cozy street cafes. 100 km of signposted hiking trails lead to beautiful viewing points, the most striking of which is the observation tower on the local mountain Hochkopf. Guided hikes and Nordic walking tours are also offered. Some tours are also signposted for mountain bikers; the mountains around Todtmoos offer real challenges.

4 ski lifts with slopes ranging from easy to medium difficulty are in operation in Todtmoos in winter. The Todtmoos-Gersbach cross-country skiing center offers 25 km of groomed and signposted trails and also allows moderate to difficult sections. A cross-country ski trail with a skate track suitable for beginners is located near the swimming pool in Vordertodtmoos.

Other goals:
 Bus stop: only 100 meters
 Train station: about 1 km
 Edeka: approx. 1.5 km
 Gym opposite
 A5: approx. 40km
 A81: approx. 80km
 Forest Hut: 30km
Lade Orte in der Umgebung

Sonstiges

Verpassen Sie keine Immobilie mehr!
Unser komplettes Immobilienangebot finden Sie immer zuerst auf www.remax.de
Gerne helfen wir Ihnen auch beim Verkauf oder der Vermietung Ihrer Immobilie.

===

Never miss a property again!
You will always find our complete real estate offer first on www.remax.de.
We are also happy to help you with the sale or rental of your property. We would be very pleased if you recommend us to others.
IMPRINT / DUTIES according to TMG: Service provider in terms of the Telemediengesetz (TMG) is the respective property manager. To view the legal information according to TMG, please click on the name or the picture of the specified property manager.

Anbieterdaten

Samuel Grauer

Ansprech­partner

Samuel Grauer

Ihre Nachricht an RE/MAX Immobilienmakler Lörrach

Ihr Ansprechpartner: Samuel Grauer

Mit (*) gekennzeichnete Felder sind Pflichtangaben.