Denkmalgeschütztes Wohnhaus in neuem Gewand in zentraler Lage von Schönberg!

Eckdaten

 Zimmer
 Wohnfl.
 Grundst.
Kaufpreis
 Zimmer
 Wohnfl.
 Grundst.

Kaufpreis

Basisdaten

Objektnummer
Immopark ID
IP-310662
Objekt ID
10134 - OH
Adresse
Ort
24217 Schönberg (Holstein)
Fakten und Zahlen
Haustyp
Mehr­familien­haus
Vermarktungsart
Kauf
Nutzungsart
wohnen
Verkaufsstatus
offen
Baujahr
1904
Kerndaten
Wohnfläche
375 m2
Zimmer
12.0
Wohn- und Schlafzimmer
5.0
Schlafzimmer
5.0
Badezimmer
5.0
Gesamtfläche
502 m2
Vermietbare Fläche
375 m2
Grundstücksfläche
404 m2
Anzahl Stellplätze (gesamt)
2.0
Bauweise / Substanz
Objektzustand
modernisiert
Wohneinheiten
5.0
Denkmalschutz

Preisdaten

Preis
Kaufpreis
850.000 €
Kaufpreis bezogen auf Jahresmiete (X-fache)
16.77
Courtage
Käufercourtage
4,76 % inklusive gesetzlicher Mehrwertsteuer
Mieteinnahmen
aktuelle Mieteinnahmen
50.700 €
pro Jahr

Merkmale

Zimmer und Bereiche
Kellerfläche
127 m2
Anzahl (Balkone)
1.0
Anzahl (Terrassen)
1.0
Schlaf­zimmer
Stellplätze
Anzahl Stellplätze (gesamt)
2.0
Garage
Anzahl
2.0

Energie

Energieausweis
Typ
Bedarfs­ausweis
EnEV
ab 01.05.2014 (gemäß EnEV 2014)
Energieausweis gültig bis
2036-02-04
Endenergiebedarf gemessen in kWh/(m²a)
212.16

A+ABCDEFGH

wesentlicher Energieträger
Öl
Energieeffizienz­klasse
G
Baujahr lt. Energieausweis
1904
Gebäudeart lt. Energieausweis
Wohngebäude
Heizung
Zentral­heizung
Befeuerungsart
Öl

Umgebung

Es wurden keine Daten angegeben.

Objektbeschreibung

Zum Verkauf steht ein denkmalgeschütztes Mehrfamilienhaus in Schönberg, das historischen Charme mit zeitgemäßen Investitionen verbindet. Das im Jahr 1904 errichtete Gebäude umfasst insgesamt fünf Wohneinheiten mit einer Gesamtwohnfläche von ca. 375 m², verteilt auf zwölf Zimmer. Die Immobilie befindet sich in einem überwiegend guten und gepflegten Zustand und bietet eine attraktive Kombination aus stabilen Mieteinnahmen und weiterem Entwicklungspotenzial.

In den vergangenen Jahren wurde das Objekt umfassend aufgewertet. Im Jahr 2022 erhielt das Haus ein neues Dach, zudem wurden nahezu alle Fenster erneuert. Ebenfalls im Jahr 2022 wurde eine der bestehenden Wohnungen modernisiert und drei neue Wohnungen geschaffen, wodurch die Nutzung der vorhandenen Flächen deutlich optimiert wurde. Vier der fünf Wohneinheiten präsentieren sich heute in einem zeitgemäßen Zustand. Lediglich eine Wohnung im Erdgeschoss befindet sich noch in einem älteren Ausstattungsstandard und bietet damit zusätzliche Möglichkeiten zur Wertsteigerung durch Modernisierung.

Das Mehrfamilienhaus ist vollständig vermietet und erzielt derzeit eine monatliche Kaltmiete von 4.225 €, was einer jährlichen Kaltmiete von rund 50.700 € entspricht. Die Wohnungszuschnitte sind funktional und marktgerecht, was eine nachhaltige Vermietbarkeit gewährleistet.

Aufgrund des Denkmalschutzes überzeugt die Immobilie nicht nur durch ihren architektonischen Charakter, sondern bietet – abhängig von der individuellen steuerlichen Situation – potenzielle Abschreibungsvorteile. Insgesamt stellt dieses Objekt eine interessante Kapitalanlage dar, die laufende Erträge mit langfristigem Wertentwicklungspotenzial in guter Lage von Schönberg verbindet.

Ausstattung

ALLGEMEINE AUSSTATTUNGSMERKMALE:
+ Denkmalgeschütztes Mehrfamilienhaus von 1904
+ Großer Teilkeller
+ Fünf Wohneinheiten
+ Jahresnettokaltmiete ca. 51.000 Euro
+ Öl-Zentralheizung von 1995
+ Dacheindeckung von 2022
+ Isolierverglaste Holzfenster von 2022
+ Zwei Garagen
+ Zentrale Lage im Stadtzentrum

AUFTEILUNG ERDGESCHOSS:
Wohnung 1 - ca. 68 m²:
+ Separater Eingang im Hinterhof
+ Flur mit Platz für eine Garderobe
+ Tageslichtbad mit Dusche
+ Küche mit Platz für eine Essecke
+ Gästezimmer
+ Wohnzimmer
+ Schlafzimmer

Wohnung 2 - ca. 58 m²:
+ Eingang / Küche
+ Wohn- und Schlafzimmer
+ Innenliegendes Bad mit Dusche

AUFTEILUNG OBERGESCHOSS:
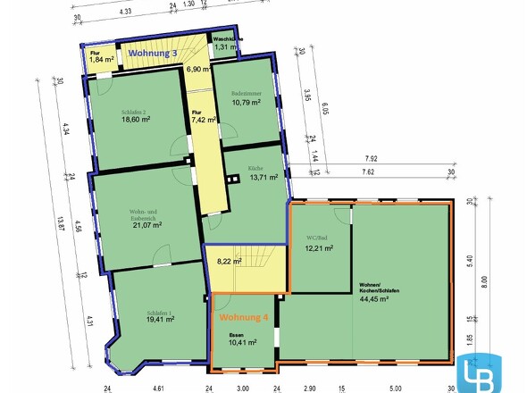
Wohnung 3 - ca. 101 m²:
+ Separater Eingang im EG
+ Tageslichtbad mit Dusche
+ Schlafzimmer
+ Wohn- und Esszimmer
+ Küche mit Platz für eine Essecke
+ Arbeitszimmer

Wohnung 4 - ca. 84 m²:
+ Eingang / Esszimmer
+ Wohnzimmer mit offener Küche
+ Tageslichtbad mit Badewanne und Dusche
+ Schlafbereich in der Galerie-Ebene

AUFTEILUNG DACHGESCHOSS:
Wohnung 5 - ca. 65 m²:
+ Eingang / Wohnzimmer
+ Tageslichtbad mit Dusche
+ Schlafzimmer
+ Küche mit Platz für eine Essecke

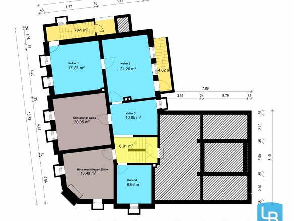
AUFTEILUNG KELLER:
+ Vier Kellerräume
+ Hausanschlussraum
+ Heizung- und Öltankraum

Lage

Die Immobilie liegt direkt im Zentrum von Schönberg. Die Stadt ist ein attraktiver Freizeit- und Ferienstandort mit vielfältigem Kulturangebot auf hohem Niveau. Das abwechslungsreiche Angebot der hier ansässigen Gewerbetreibenden macht Schönberg u. a. zu einer gern besuchten Einkaufsstadt der umliegenden Gemeinden und lädt zum schlendern und verweilen ein. Kindertagesstätten, Grund- und weiterführende Schulen befinden sich ebenfalls im Ort. Die gute Infrastruktur von Schönberg wird abgerundet von guten hervorragenden Busanbindungen. Eine Reaktivierung der Bahnstrecke nach Kiel ist geplant.
Durch die B 502 ist Schönberg hervorragend an die Landeshauptstadt Kiel angeschlossen, die in ca. zwanzig Minuten mit dem Auto zu erreichen ist.
Lade Orte in der Umgebung

Sonstiges

EXPOSÉ ZUM SOFORT-DOWNLOAD:
Als regionaler Qualitätsmakler mit Standorten in Kiel und Plön bieten wir Ihnen auf unserer Homepage die vollständigen Exposés durch einmalige Registrierung zum Sofort-Download an.

Einfach auf unserer Internetseite www.langner-burmeister.de unter "Mein Konto" anmelden und das Exposé inkl. Adresse direkt selber herunterladen.

IHRE VORTEILE:
+ Vollständiges Exposé inkl. Adresse zum Sofort-Download
+ Viele weitere Fotos
+ Zugriff auf Objektunterlagen inkl. der Grundrisse
+ Zugang zum virtuellen 3D-360°-Immobilienrundgang
+ Mit nur einer Anmeldung haben Sie zusätzlich Zugang zu allen weiteren Immobilien-Angeboten


+++ SERVICE FÜR EIGENTÜMER / VERKÄUFER +++

KOSTENLOSE IMMOBILIENBEWERTUNG
www.einfach-sicher-verkaufen.de

KOSTENLOSES BERATUNGSGESPRÄCH
www.langner-burmeister.de/bewertung/immobilienbewertung-immobiliengutachten

WAS UNTERSCHEIDET UNS VON ANDEREN MAKLERN
www.langner-burmeister.de

ALLE IMMOBILIENANGEBOTE
www.langner-burmeister.de/kaufen



+++ HINWEISE FÜR KÄUFER +++

Bitte haben Sie dafür Verständnis, dass wir nur Anfragen mit VOLLSTÄNDIGEN ANGABEN zu

- Ihrem NAMEN
- Ihrer ANSCHRIFT
- Ihrer TELEFONNUMMER
- Ihrer E-MAIL-ADRESSE (sofern vorhanden)

beantworten können.

Gerne informieren wir Sie über weitere Details der Immobilie und halten Bau- und Grundrisszeichnungen sowie weitere Dokumente wie z.B. den Energieausweis für Sie bereit. Den Eigentümern ist es sehr wichtig dass Besichtigungstermine ausschließlich über unser Unternehmen abgestimmt werden. Bitte nehmen Sie Rücksicht auf diesen Wunsch und respektieren Sie die Privatsphäre der Eigentümer.
Sofern in dem Exposé Angaben zum Energieausweis fehlen sollten, so wird dieser aktuell von einem Energieberater erstellt. Sobald uns die energetischen Kennwerte vorliegen werden diese ergänzt. Spätestens bei der Besichtigung wird Ihnen der Energieausweis vorgelegt.

PROSPEKTHAFTUNG:

Unser Angebot ist freibleibend und nur für den Empfänger bestimmt, der bei unerlaubter Weitergabe für unsere Provision haftet. Ein Maklervertrag kommt zustande, wenn Sie von diesem Angebot Gebrauch machen, z. B. wenn Sie sich mit uns oder dem Eigentümer direkt in Verbindung setzen. Die angegebene Provision zahlen Sie nur, wenn ein notarieller Kaufvertrag bzw. ein Mietvertrag über das angebotene Objekt zustande kommt. Die Provision ist auch dann fällig, wenn wir nicht beim Vertragsabschluss mitwirken.
Bezüglich der Objektangaben ist die Langner & Burmeister GbR auf die Auskünfte des Eigentümers angewiesen. Daher kann für die Richtigkeit und Vollständigkeit dieser Angaben, trotz sorgfältiger Prüfung, keine Haftung übernommen werden. Darüber hinaus kann auch für die Qualität der Immobilie keine Gewähr übernommen werden. Zwischenverkauf bleibt vorbehalten.

Anbieterdaten

Oliver Husen

Ansprech­partner

Oliver Husen

Ihre Nachricht an Langner & Burmeister Immobilien

Ihr Ansprechpartner: Oliver Husen

Mit (*) gekennzeichnete Felder sind Pflichtangaben.