HausansichtEingangEingangTreppenhausTreppenhausDiele - (KI generiert)Wohnzimmer - (KI generiert)Terrasse mit GartenBadezimmerTop-Finanzierung finden!Grundriss UntergeschossGrundriss ErdgeschossGrundriss ObergeschossGrundriss Dachgeschoss 1Grundriss Dachgeschoss 2Titelbild
Eckdaten
Zimmer
Wohnfl.
Grundst.
Kaufpreis
Zimmer
Wohnfl.
Grundst.
380000.0€ Kaufpreis
Basisdaten
Objektnummer
Immopark ID
IP-310886
Objekt ID
FALC-SL-77423
Adresse
42651 Solingen
Ort
42651 Solingen
Fakten und Zahlen
Haustyp
Mehrfamilienhaus
Vermarktungsart
Kauf
Nutzungsart
wohnen
Baujahr
1931
Kerndaten
Wohnfläche
174,16 m2
Zimmer
7.0
Schlafzimmer
4.0
Badezimmer
3.0
Gesamtfläche
202,25 m2
Nutzfläche
28,09 m2
Grundstücksfläche
232 m2
Bauweise / Substanz
Objektzustand
modernisiert
Etagenanzahl der Immobilie
3
Preisdaten
Preis
Kaufpreis
380.000 €
Courtage
Käufercourtage
keine Käuferprovision
Merkmale
Zimmer und Bereiche
Typ
Voll unterkellert
Anzahl (Balkone)
1.0
Anzahl (Terrassen)
1.0
Zimmer und Räume
Schlafzimmer
Zimmer und Räume
Abstellraum
Ausstattung und Technik
Qualität der Ausstattung
standard
Böden
Fliesenboden
Böden
Laminat
Sanitäre Einrichtung
Sanitäre Einrichtung
Fenster
Sanitäre Einrichtung
Dusche
Energie
Energieausweis
Typ
Bedarfsausweis
EnEV
ab 01.05.2014 (gemäß EnEV 2014)
Energieausweis gültig bis
26.01.2036
Endenergiebedarf gemessen in kWh/(m²a)
219.7
A+ABCDEFGH
Wärmewert
219.7
Energieeffizienzklasse
G
Ausstelldatum
27.01.2026
Gebäudeart lt. Energieausweis
Wohngebäude
Heizung
Heizungsart
Zentralheizung
Umgebung
Es wurden keine Daten angegeben.
Objektbeschreibung
Das gepflegte Dreifamilienhaus in strategisch guter Lage der Hasseldelle, bietet eine attraktive Gelegenheit für Kapitalanleger, Selbstnutzer, oder eine Kombination aus Beidem.
Die ca. 1930 errichtete Doppelhaushälfte wurde laufend instand gehalten. Mit einer gesamt nutzbaren Fläche von insgesamt ca. 202,25 m², verteilt auf drei Wohnungen, können Mehrgenerationen Haushalte oder Kapitalanleger ein interesantes Investitionsobjekt erwerben.
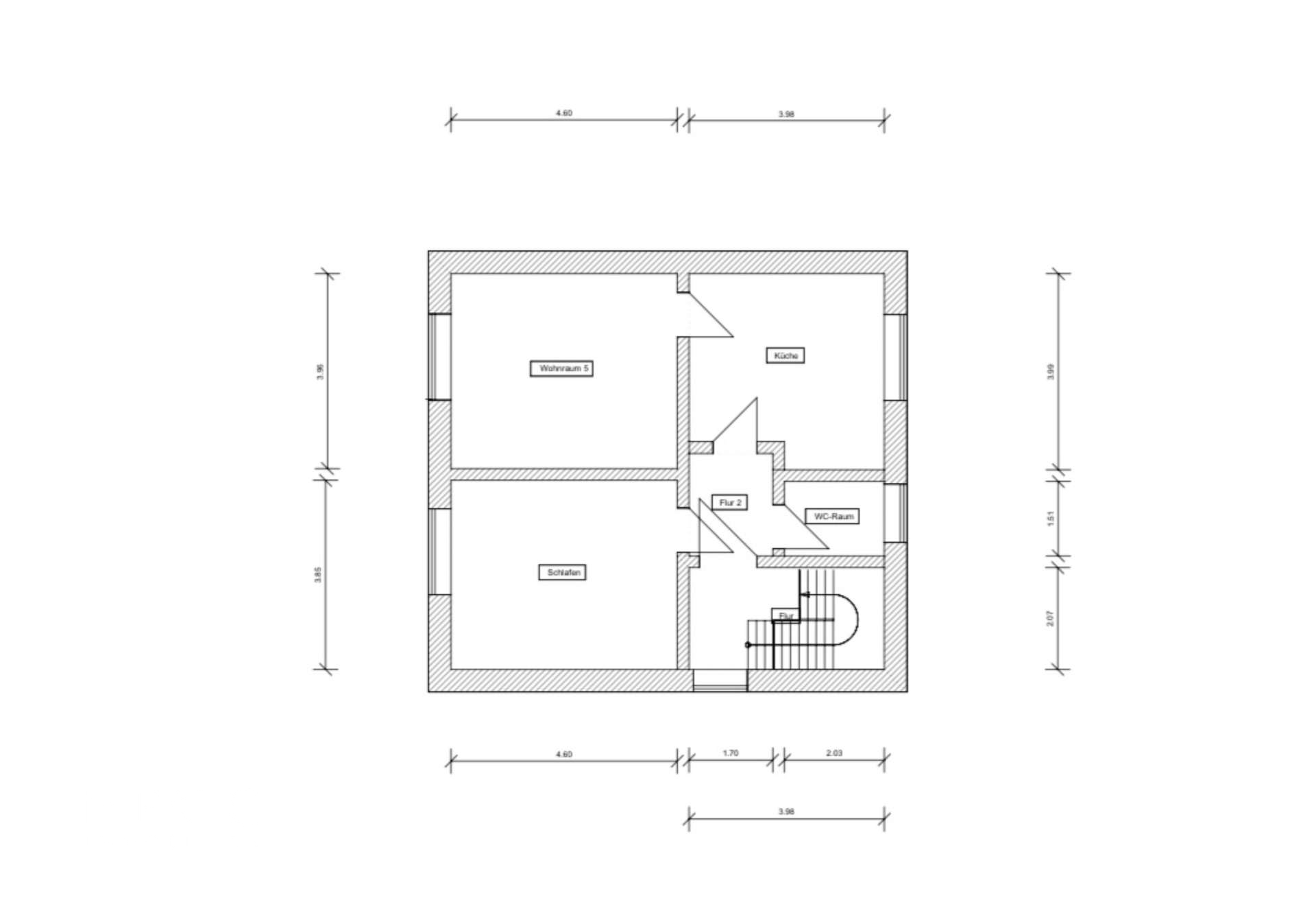
Erdgeschoss ca. 59,42 m², Untergeschoss ca. 28,09 m² Die Wohnung erstreckt sich über zwei Ebenen, die über eine Wendeltreppe verbunden sind. Die offene Raumgestaltung verschafft eine gemütliche Atmosphäre. Das Herzstück ist der Wohn- und Essbereich mit angrenzender offener Küche. Die großen Fensterfronten durchfluten die Zimmer mit Licht. Ein direkter Zugang zur Terrasse mit Garten ist vorhanden. Hier findet sich viel Platz zum Spielen und Entspannen, während die überdachte Terrasse zu gemütlichen Grillabenden einlädt. Ein zusätzlicher Abstellraum befindet sich ebenfalls in der Wohnung. Über die Wendeltreppe gelangen Sie ins Untergeschoss (Nutzfläche), wo sich das Schlafzimmer und ein weiterer Raum befinden.
1. Obergeschoss ca. 65,46 m²: Diese Wohneinheit besteht aus einer zweckmäßigen 2-Zimmer Wohnung mit Bad und Diele. Die durchdachte Raumstruktur ermöglicht eine komfortable Nutzung und bietet ausreichend Platz für individuelle Wohnkonzepte. Wohnung wird zum 1. April 2026 frei.
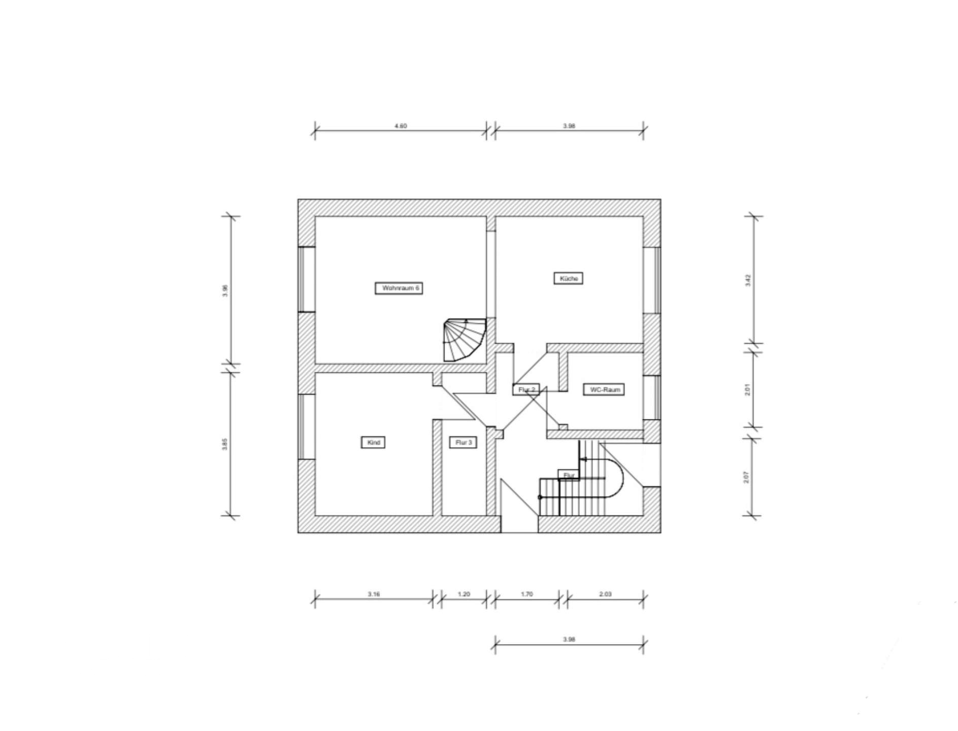
Dachgeschoss ca 49,28 m²: Praktisch aufgeteilte Wohneinheit, bestehend aus zwei Zimmern, Küche, Diele und Bad. Über den zentralen Flur sind alle Räume bequem erreichbar.
Die Istmiete beträgt 13.956 €/Jahr.
Jede Wohneinheit verfügt über einen eigenen Kellerraum. Zusätzlich steht den Bewohnern ein gemeinsamer Wasch-und Trockenraum zur Verfügung.
Dieses Haus ist ideal für Familien, die ein gemütliches Zuhause mit viel Platz und zahlreichen Nutzungsmöglichkeiten suchen.
Diese Immobilie befindet sich in einer familienfreundlichen Umgebung in Solingen, die sich durch ihre hervorragende Infrastruktur und die Nähe zu zahlreichen Freizeitmöglichkeiten auszeichnet. In unmittelbarer Nähe liegt der Hassel Park, der sich ideal für entspannte Spaziergänge oder Spielnachmittage mit den Kindern eignet. Weitere Parks sind ebenfalls gut erreichbar.
Für Familien mit kleinen Kindern ist die Nähe zu Kindergärten und Schulen von großer Bedeutung. Mehrere Spielplätze in der Umgebung bieten zudem reichlich Gelegenheit für kindgerechte Aktivitäten.
Die Nahversorgung ist durch Supermärkte sowie Drogerien gesichert. Für die medizinische Versorgung stehen mehrere Ärzte und Zahnärzte in der Umgebung zur Verfügung.
Die Anbindung an den öffentlichen Nahverkehr ist ausgezeichnet. Die Bushaltestelle Erbenhäuschen ist nur einen Katzensprung entfernt, und die Bahnstation Solingen Mitte ist ebenfalls gut erreichbar. Der Flughafen Düsseldorf ist in etwa 30 Minuten mit dem Auto erreichbar, was die Lage auch für Berufspendler attraktiv macht.
Für sportliche Aktivitäten bieten sich mehrere Sporthallen und ein Sportcenter in der Nähe an. Zudem gibt es eine Vielzahl an Restaurants, die für kulinarische Abwechslung sorgen.
Insgesamt bietet diese Lage eine perfekte Mischung aus städtischem Komfort und naturnaher Umgebung, die ideal für Familien ist, die Wert auf eine gute Infrastruktur und ein sicheres Wohnumfeld legen.
Lade Orte in der Umgebung
Sonstiges
Das Kaufangebot wurde nach Angaben und Unterlagen des Verkäufers erstellt. Eine Gewähr für Vollständigkeit und Richtigkeit können wir nicht übernehmen.
Haftungsausschluss: Wir bemühen uns, möglichst vollständige und richtige Angaben zu erhalten und weiterzuleiten. Eine Haftung für die Richtigkeit, Vollständigkeit und Aktualität der Angaben können wir jedoch nicht übernehmen. Änderungen, Irrtum und Zwischenverkauf vorbehalten.
Hinweis: Die im Exposé evtl. abgebildeten Einrichtungsgegenstände sind nicht Bestandteil des Angebotes, es sei denn, es wurde besonders darauf hingewiesen.
Sie überlegen Ihre Immobilie zu verkaufen?
Als lokale Immobilienexperten bieten wir Ihnen unseren kompletten Service, der Sie als Verkäufer von Beginn an bis hin zum Notartermin begleitet. Mit unserer langjährigen Erfahrung und der hervorragenden Kenntnis des lokalen Immobilienmarktes möchten wir gerne auch Sie beim Immobilienverkauf unterstützen.
Wir sind stolz, durch unser Engagement in den führenden Internetportalen überdurchschnittlich gute Bewertungen erzielt zu haben. Die Fachzeitschrift "Focus-Spezial" hat unser Unternehmen seit 2013 durchgehend als eines der besten Immobilienunternehmen in Deutschland ausgezeichnet.
Als FALC Exklusivpartner bieten wir unseren Kunden noch mehr Vorteile. Wir sind jetzt Teil eines Immobiliennetzwerkes mit mehr als 150 Partnern an über 100 Standorten in Deutschland und Europa. So können wir Ihnen über 1.000 Immobilien anbieten, national wie international. In unserer Datenbank warten weit über 50.000 Interessenten auf Ihre Immobilie.
Gerne verkaufen wir mit Kompetenz und Leidenschaft auch Ihre Immobilie.
Schenken Sie uns Ihr Vertrauen! Sie erreichen uns unter Tel : 0212 88 13 47 99