Dreifamilienhaus mit großem Grundstück und Entwicklungspotenzial

Eckdaten

 Zimmer
 Wohnfl.
 Grundst.
Kaufpreis
 Zimmer
 Wohnfl.
 Grundst.

Kaufpreis

Basisdaten

Objektnummer
Immopark ID
IP-313115
Objekt ID
LDW1.MS.11004
Adresse
Ort
70567 Stuttgart / Möhringen
Fakten und Zahlen
Haustyp
Mehr­familien­haus
Vermarktungsart
Kauf
Nutzungsart
Anlage
Verkaufsstatus
offen
Baujahr
1958
Kerndaten
Wohnfläche
240 m2
Zimmer
9.0
Badezimmer
4.0
Vermietbare Fläche
240 m2
Grundstücksfläche
874 m2
Anzahl Stellplätze (gesamt)
2.0
Bauweise / Substanz
Objektzustand
gepflegt
Wohneinheiten
3.0
Verfügbarkeit
Verfügbar ab
nach Vereinbarung

Preisdaten

Preis
Kaufpreis
1.300.000 €
Courtage
Käufercourtage
jeweils 4,76 % vom Kaufpreis inkl. gesetzl. MwSt.

Merkmale

Zimmer und Bereiche
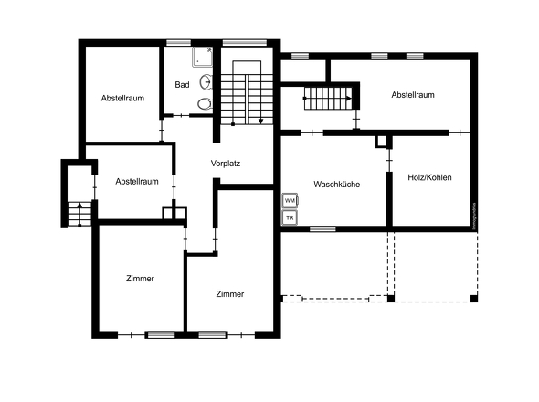
Voll unterkellert
Stellplätze
Anzahl Stellplätze (gesamt)
2.0
Garage
Anzahl
2.0

Energie

Energieausweis
Typ
Bedarfs­ausweis
EnEV
ab 01.05.2014 (gemäß EnEV 2014)
Energieausweis gültig bis
2035-10-24
Endenergiebedarf gemessen in kWh/(m²a)
202.60

A+ABCDEFGH

wesentlicher Energieträger
Gas
Energieeffizienz­klasse
G
Baujahr lt. Energieausweis
2011
Gebäudeart lt. Energieausweis
Wohngebäude
Befeuerungsart
Gas

Umgebung

Es wurden keine Daten angegeben.

Objektbeschreibung

Dieses freistehende Dreifamilienhaus in bevorzugter Wohnlage von Stuttgart-Möhringen überzeugt durch seine großzügige Bauweise, helle Räume und die attraktive Grundstücksgröße. Auf einer Gesamtwohnfläche von ca. 240 m² verteilen sich drei Wohneinheiten, die sowohl Kapitalanlegern als auch Eigennutzern interessante Möglichkeiten bieten. Die Immobilie ist derzeit teilweise vermietet.

Die Wohnungen verfügen über große Fensterflächen, die viel Tageslicht hereinlassen und für eine freundliche Wohnatmosphäre sorgen. Die Raumaufteilungen sind durchdacht und funktional, sodass sich die Flächen optimal nutzen lassen. Besonders hervorzuheben ist die große Grundstücksfläche von 874 m².

Das Gebäude wurde in zwei Bauabschnitten errichtet (1958 und 1978) und fortlaufend modernisiert. So wurden teilweise Heizungen erneuert und eine Wohnung 2020 vollständig saniert, weitere umfassende Modernisierungen erfolgten bereits 2010/2011. Der Zustand ist insgesamt gepflegt und zeitgemäß.

Ausstattung

Wohnung 1 (EG rechts, ca. 74 m²): leerstehend, 2020 vollständig saniert, moderne Ausstattung, Garten-Sondernutzung, Terrasse, offener Kamin - zugehörig zur Wohnung sind zwei vollwertige Räume im UG

Wohnung 2 (DG rechts, ca. 68 m²): renoviert 2010, Badezimmer in den 90ern modernisiert, Balkon, helle Räume durch große Fenster

Wohnung 3 (EG/OG links, ca. 98 m², Maisonette): 2010/2011 umfassend saniert (Böden, Sanitär, Heizung), großzügiger Grundriss, Balkon, Gartenanteil

Derzeitige Jahreskaltmiete 26.520,- €

Lage

Die Immobilie liegt in Stuttgart-Möhringen, einem der begehrten Stadtteile im Süden der Landeshauptstadt. Möhringen bietet eine gelungene Kombination aus ruhiger, grüner Wohnlage und gleichzeitig sehr guter Anbindung an die Innenstadt sowie an die umliegenden Wirtschaftsstandorte.

Einkaufsmöglichkeiten, Schulen, Kindergärten und Ärzte befinden sich in unmittelbarer Nähe. Für Freizeit und Erholung sorgen zahlreiche Grünanlagen, Sportvereine und das nahegelegene SI-Centrum mit Kino, Gastronomie und Musicaltheater.

Die Verkehrsanbindung ist hervorragend: Mit der U-Bahn erreichen Sie die Stuttgarter Innenstadt in etwa 15 Minuten. Über die B27 sowie die Autobahnanschlüsse A8 und A81 sind auch der Flughafen und die gesamte Region bestens angebunden.

Das direkte Wohnumfeld überzeugt durch seine familienfreundliche, gepflegte Atmosphäre, wenig Durchgangsverkehr und viel Grün – ideal für alle, die eine ruhige Lage mit städtischer Nähe verbinden möchten.
Lade Orte in der Umgebung

Sonstiges

Da wir uns bei allen Angaben auf die Informationen Dritter stützen müssen, können wir keine Gewähr für deren Richtigkeit und Vollständigkeit übernehmen.

Bitte haben Sie Verständnis dafür, dass wir nur Anfragen mit vollständiger Adressangabe und erreichbarer Handynummer bearbeiten können.

Nachdem Ihre Anfrage per E-Mail bei uns eingegangen ist, werden wir uns mit Ihnen zur Abstimmung eines Besichtigungstermins in Verbindung setzen. Bitte nennen Sie deshalb in Ihrer E-Mail eine Tel.-Nr., unter der wir Sie sicher erreichen können.

Widerrufsbelehrung für Verbraucher:
Sie haben das Recht, binnen vierzehn Tagen ohne Angabe von Gründen diesen Vertrag zu widerrufen. Die Widerrufsfrist beträgt vierzehn Tage ab dem Tag des Vertragsabschlusses.

Um Ihr Widerrufsrecht auszuüben, müssen Sie uns (FinanzKontor Farkas GmbH Franchisenehmer der Königskinder Immobilien GmbH, Aussiedlerhöfe 7, 74906 Bad Rappenau j.farkas@koenigskinder.de) mittels einer eindeutigen Erklärung (z. B. ein mit der Post versandter Brief, Telefax oder E-Mail) über Ihren Entschluss, diesen Vertrag zu widerrufen, informieren.

Zur Wahrung der Widerrufsfrist reicht es aus, dass Sie die Mitteilung über die Ausübung des Widerrufsrechts vor Ablauf der Widerrufsfrist absenden.

Folgen des Widerrufs:
Wenn Sie diesen Vertrag widerrufen, haben wir Ihnen alle Zahlungen, die wir von Ihnen erhalten haben, unverzüglich und spätestens binnen vierzehn Tagen ab dem Tag zurückzuzahlen, an dem die Mitteilung über Ihren Widerruf dieses Vertrags bei uns eingegangen ist. Für diese Rückzahlung verwenden wir dasselbe Zahlungsmittel, das Sie bei der ursprünglichen Transaktion eingesetzt haben, es sei denn, mit Ihnen wurde ausdrücklich etwas anderes vereinbart; in keinem Fall werden Ihnen wegen dieser Rückzahlung Entgelte berechnet.

Haben Sie verlangt, dass die Dienstleistungen während der Widerrufsfrist beginnen soll, so haben Sie uns einen angemessenen Betrag zu zahlen, der dem Anteil der bis zu dem Zeitpunkt, zu dem Sie uns von der Ausübung des Widerrufsrechts hinsichtlich dieses Vertrags unterrichten, bereits erbrachten Dienstleistungen im Vergleich zum Gesamtumfang der im Vertrag vorgesehenen Dienstleistungen entspricht.

Anbieterdaten

Marc Schwarz

Ansprech­partner

Marc Schwarz

Ihre Nachricht an Königskinder Immobilien GmbH

Ihr Ansprechpartner: Marc Schwarz

Mit (*) gekennzeichnete Felder sind Pflichtangaben.