Dreifamilienhaus mit Traumgarten, Garagen und Chance auf Baugrundstück

Eckdaten

 Zimmer
 Wohnfl.
 Grundst.
Kaufpreis
 Zimmer
 Wohnfl.
 Grundst.

Kaufpreis

Basisdaten

Objektnummer
Immopark ID
IP-296115
Objekt ID
FALC-MAG-73107
Adresse
Ort
51145 Köln
Fakten und Zahlen
Haustyp
Mehr­familien­haus
Vermarktungsart
Kauf
Nutzungsart
wohnen
Baujahr
1963
Kerndaten
Wohnfläche
227 m2
Zimmer
9.0
Grundstücksfläche
752 m2
Bauweise / Substanz
Etagenanzahl der Immobilie
3

Preisdaten

Preis
Kaufpreis
799.000 €
Courtage
provisionspflichtig
Käufercourtage
3,57 % inklusive Mehrwertsteuer

Merkmale

Zimmer und Bereiche
Voll unterkellert
Anzahl (Balkone)
1.0
Ausstattung und Technik
Einbau­küche
Sanitäre Einrichtung
Gäste WC

Energie

Energieausweis
Gebäudeart lt. Energieausweis
Wohngebäude

Umgebung

Es wurden keine Daten angegeben.

Objektbeschreibung

Dieses gepflegte Dreifamilienhaus aus dem Baujahr 1963 bietet vielfältige Nutzungsmöglichkeiten und ist sowohl für Kapitalanleger als auch für Familien, die ein Mehrgenerationenhaus suchen, eine äußerst interessante Option. Im Jahr 1978 wurde das Gebäude um eine Garage erweitert und das Dachgeschoss vollständig ausgebaut, wodurch zusätzlicher Wohnraum entstand. Insgesamt verfügt das Haus über rund 227 m² Wohnfläche, die sich auf drei abgeschlossene Wohneinheiten verteilt: etwa 90 m² im Erdgeschoss, rund 80 m² im Obergeschoss und ca. 57 m² im Dachgeschoss. Jede Etage stellt damit eine eigenständige Wohnung mit durchdachten Grundrissen dar.

Das Haus ist vollständig unterkellert und bietet neben einer gemeinschaftlichen Waschküche mit direktem Zugang in den großzügigen Garten auch separate Kellerräume, die den einzelnen Wohnungen zugeordnet sind und zusätzlichen Stauraum ermöglichen. Das weitläufige Gartengrundstück lädt nicht nur zum Verweilen ein, sondern eröffnet auch die Möglichkeit einer weiteren Bebauung, die allerdings vorab mit dem zuständigen Bauamt abgestimmt werden muss.

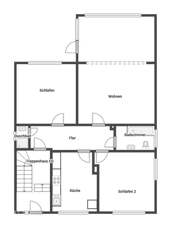
Die Erdgeschosswohnung umfasst drei großzügige Zimmer, eine Küche, ein Badezimmer sowie eine separate Dusche und Waschbecken. Vom hellen Wohnzimmer aus gelangt man direkt auf die Terrasse, die einen schönen Blick in den weitläufigen Garten bietet und zum Entspannen einlädt. Sämtliche weiteren Räume sind vom zentralen Flur aus erreichbar, was eine klare und funktionale Struktur schafft.

Im Obergeschoss befindet sich eine weitere Dreizimmerwohnung, die sich ebenfalls durch eine praktische Aufteilung auszeichnet. Neben einer Küche, einem Badezimmer und einem separaten Gäste-WC bieten hier das Wohnzimmer und Schlafzimmer den Zugang auf den Balkon, der einen schönen Blick in den Garten eröffnet. Auch in dieser Etage sind die restlichen Räume bequem über den Flur zugänglich.

Das Dachgeschoss, das 1978 ausgebaut wurde, verfügt über rund 57 m² Wohnfläche. Hier stehen drei Zimmer, eine Küche sowie ein Badezimmer zur Verfügung. Alle Räume sind vom Flur aus begehbar, wodurch auch diese Wohnung eine angenehme Wohnstruktur erhält. Der besondere Charme dieser Einheit entsteht durch die gemütlichen Dachschrägen, die den Räumen eine behagliche Atmosphäre verleihen.

Insgesamt besticht die Immobilie durch ihre solide Bauweise, die flexible Nutzungsmöglichkeit der drei Wohneinheiten und das große Grundstück mit viel Potenzial. Ob zur Vermietung als Kapitalanlage, zur Eigennutzung oder als Mehrgenerationenhaus – dieses Objekt bietet eine Vielzahl von Optionen und eine wertbeständige Grundlage für die Zukunft.

Ausstattung

Die Immobilie bietet drei eigenständige Wohneinheiten, jeweils eine pro Etage, und überzeugt durch eine solide Ausstattung sowie einen insgesamt sehr gepflegten Zustand. Das großzügige Gartengrundstück, das direkt von der Erdgeschosswohnung aus zugänglich ist, stellt ein besonderes Highlight dar. Es bietet mit seiner Größe zahlreiche Gestaltungsmöglichkeiten, während ein idyllisch angelegter Teich für eine entspannte Atmosphäre sorgt. Darüber hinaus eröffnet das Grundstück die Chance auf eine zusätzliche Bebauung, die jedoch im Vorfeld mit dem zuständigen Bauamt abgestimmt werden muss. Ergänzt wird das Raumangebot durch zwei Garagen, die praktischen Schutz für Fahrzeuge und zusätzlichen Stauraum bieten.

Die technische Ausstattung des Hauses ist ebenso durchdacht: Jede Wohnung verfügt über eine eigene Gasetagenheizung, die über separate Zähler gesteuert wird. Damit ist eine transparente Verbrauchsabrechnung jederzeit gewährleistet. In allen Wohneinheiten sind Rolläden verbaut, die für zusätzlichen Komfort und Energieeffizienz sorgen. Der gesamte Kellerbereich bietet neben einer gemeinschaftlich genutzten Waschküche großzügige Abstellmöglichkeiten. Für jede Wohnung ist ein eigener Kellerraum vorhanden, sodass ausreichend Stauraum für Fahrräder, Vorräte oder persönliche Gegenstände gegeben ist.

Die Erdgeschosswohnung erstreckt sich über ca. 90 m² und befindet sich in einem älteren, aber sehr gepflegten Zustand. Besonders hervorzuheben ist das großzügige Wohnzimmer, das mit einem klassischen Parkettboden ausgestattet ist und den direkten Zugang zur Terrasse und in den Garten bietet. Badezimmer und Flur sind mit Fliesen versehen, was die Räume pflegeleicht und funktional macht. Ein Badezimmer sowie ein separate Dusche runden das Raumangebot dieser Einheit ab und machen sie zu einer attraktiven Wohnung, die durch den direkten Gartenzugang besonders familienfreundlich wirkt.

Die Obergeschosswohnung umfasst rund 80 m² und wurde 1996 umfassend modernisiert. Neben einem neu gestalteten Badezimmer erhielt die Wohnung pflegeleichte Fliesen- und Parkettböden, die für eine helle und moderne Wohnatmosphäre sorgen. 2017 wurde zudem der Balkon erneuert, der vom Wohnzimmer und Schlafzimmer aus begehbar ist und einen angenehmen Blick in den Garten eröffnet. Diese Wohnung bietet somit zeitgemäßen Komfort in einem gepflegten Umfeld.

Die Dachgeschosswohnung, die im Jahr 1978 durch einen Ausbau entstand, verfügt über ca. 57 m² Wohnfläche und wurde 2015 mit einem neuen Badezimmer ausgestattet. Auch hier sind die Böden mit Laminat und Fliesen versehen, was eine freundliche und pflegeleichte Wohnatmosphäre schafft. Rolläden sorgen auch in dieser Etage für zusätzlichen Komfort. Die Wohnung ist derzeit vermietet und bietet damit direkt sichere Einnahmen für einen Kapitalanleger.

Insgesamt präsentiert sich die Immobilie in einem durchgehend guten und gepflegten Zustand. Während das Haus durch eine solide Bauweise überzeugt, verleihen die Modernisierungen und Erneuerungen in den einzelnen Wohnungen ein zeitgemäßes Erscheinungsbild. Zusammen mit dem großzügigen Garten, den beiden Garagen und der möglichen Option einer weiteren Bebauung ergibt sich ein äußerst attraktives Gesamtpaket, das sowohl für Kapitalanleger als auch für Eigennutzer oder Familien mit mehreren Generationen viele Perspektiven eröffnet.

Lage

Das angebotene Mehrparteienhaus befindet sich im Kölner Stadtteil Porz-Eil, einer ruhigen und familienfreundlichen Wohnlage im rechtsrheinischen Köln. Eil überzeugt durch eine gewachsene Nachbarschaftsstruktur mit Ein- und Mehrfamilienhäusern sowie kleineren Wohnanlagen und verbindet die Vorzüge einer grünen Umgebung mit einer sehr guten Infrastruktur. Einkaufsmöglichkeiten, Supermärkte, Bäckereien sowie Ärzte, Apotheken, Schulen und Kindergärten sind direkt vor Ort oder schnell erreichbar. Für größere Einkäufe stehen das nahegelegene City Center Porz oder die Köln Arcaden zur Verfügung.

Die Verkehrsanbindung ist hervorragend: Über die Bundesstraße B8 sowie die Autobahnen A3, A4 und A59 sind regionale und überregionale Ziele in kürzester Zeit erreichbar. Auch der Flughafen Köln/Bonn befindet sich nur wenige Fahrminuten entfernt. Mehrere Buslinien binden den Stadtteil an das Zentrum von Porz und an die S-Bahn an, sodass die Kölner Innenstadt schnell und bequem erreicht werden kann.

Darüber hinaus besticht die Lage durch eine große Nähe zu attraktiven Naherholungsgebieten. Die Wahner Heide und der Königsforst bieten mit weitläufigen Wald- und Wiesenflächen ideale Möglichkeiten für Spaziergänge, Radtouren und sportliche Aktivitäten. Auch das Rheinufer lädt zum Verweilen ein.

Köln selbst zählt mit über 1,1 Millionen Einwohnern zu den bedeutendsten Metropolen Deutschlands. Die Stadt ist ein wichtiger Wirtschafts- und Wissenschaftsstandort, geprägt von namhaften Unternehmen, internationalen Messen und renommierten Hochschulen. Gleichzeitig bietet Köln ein außergewöhnlich breites Kultur- und Freizeitangebot – vom Kölner Dom und der historischen Altstadt bis hin zu Theatern, Museen und vielfältigen Veranstaltungen. Ein dichtes Verkehrsnetz, ein internationaler Flughafen sowie der Hauptbahnhof mit ICE-Anbindung unterstreichen die Attraktivität des Standorts.

Damit vereint die Immobilie in Porz-Eil ruhiges Wohnen im Grünen mit der direkten Nähe zur Großstadt. Die Lage ist sowohl für Familien und Mehrgenerationenwohnen als auch für Kapitalanleger attraktiv und bietet eine langfristig wertstabile Investition.
Lade Orte in der Umgebung

Sonstiges

Falls Sie Wert auf eine ruhige Lage, eine durchdachte Raumaufteilung und ein gehobenes Wohnumfeld legen, könnte dieses Objekt genau das Richtige für Sie sein. Wir bieten Ihnen eine kostenlose 24/7-Hotline unter der Rufnummer 0800-6460646, über die Sie uns jederzeit erreichen können.

Wenn Sie Interesse an der Immobilie haben, fordern Sie gerne das ausführliche Exposé an, das Ihnen in der Regel kurzfristig und automatisch zugesandt wird. Sollten Sie eine Besichtigung wünschen, antworten Sie am besten direkt per E-Mail auf das Exposé. Wir setzen uns umgehend mit Ihnen in Verbindung und unterbreiten Ihnen passende Terminvorschläge. Bitte geben Sie dabei stets Ihre vollständigen Kontaktdaten an.

Die Objektbeschreibung basiert ganz oder teilweise auf den Angaben des Eigentümers. Für die Richtigkeit und Vollständigkeit dieser Informationen übernehmen wir keine Gewähr.

Möchten auch Sie Ihre Immobilie professionell vermarkten? Dann kontaktieren Sie uns gerne! Wir stehen Ihnen täglich von Montag bis Sonntag zwischen 6:00 und 22:00 Uhr persönlich zur Verfügung. Über 200.000 aktive Interessenten warten bereits auf Ihr Angebot.

Bitte beachten Sie, dass das Exposé möglicherweise unter Zuhilfenahme von Künstlicher Intelligenz (KI) erstellt oder überarbeitet wurde. Dabei wurden jedoch keine wesentlichen Merkmale verändert.

Anbieterdaten

Kevin Alheit

Ansprech­partner

Kevin Alheit

Ihre Nachricht an FALC Immobilien Hennef (Sieg) (Andreas Laarmann)

Ihr Ansprechpartner: Kevin Alheit

Mit (*) gekennzeichnete Felder sind Pflichtangaben.