Effizienz trifft Stil – Ihr neuer Arbeitsplatz wartet!

Eckdaten

 Zimmer
 Wohnfl.
 Grundst.
Kaltmiete
 Zimmer
Wohnfl.
Grundst.

Kaltmiete

Basisdaten

Objektnummer
Immopark ID
IP-291372
Objekt ID
FALC-LLa-72485
Adresse
Ort
53721 Siegburg / Wolsdorf
Fakten und Zahlen
Immobilientyp
Büro­fläche
Vermarktungsart
Miete / Pacht
Nutzungsart
Gewerbliche Nutzung
Kerndaten
Zimmer
4.0
Gesamtfläche
270 m2
Nutzfläche
320 m2
Bürofläche
270 m2
Bauweise / Substanz
Objektzustand
gepflegt
Etagenanzahl der Immobilie
1
Denkmalschutz
Verfügbarkeit
Verfügbar ab
01.11.2025

Preisdaten

Preis
Kaltmiete
3.500 €
Nebenkosten
400 €
Warmmiete
3.900 €
Heizkosten enthalten
Courtage
provisionspflichtig
Käufercourtage
2,38 Kaltmieten inkl. 19% MwSt.

Merkmale

Ausstattung und Technik
Kunst­stoff­boden
Sanitäre Einrichtung
Gäste WC
Gewerbe Merkmale
Bürofläche
270 m2
Besondere Merkmale
barriere­frei
Stellplätze
Freiplatz

Energie

Energieausweis
Energieausweis ist nicht notwendig nach EnEV
Gebäudeart lt. Energieausweis
Nicht Wohngebäude

Umgebung

Es wurden keine Daten angegeben.

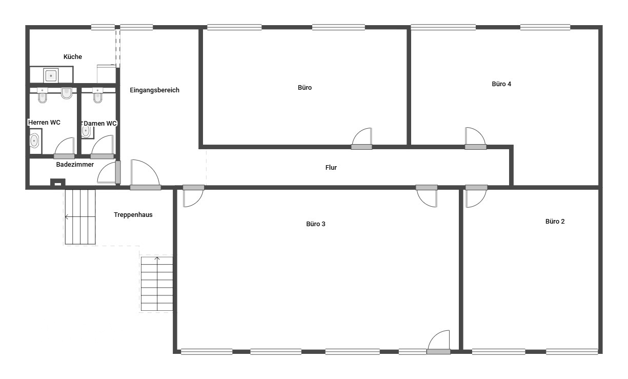
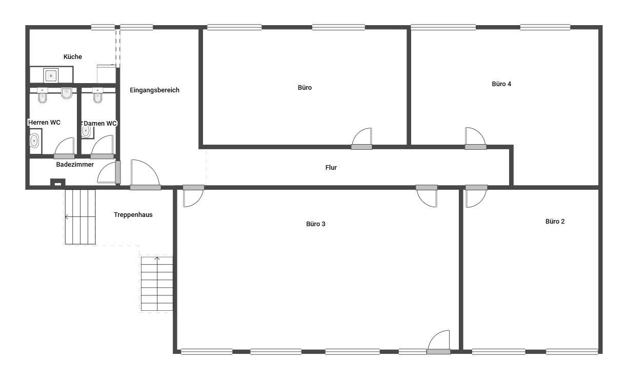
Objektbeschreibung

Ihr neues Büro befindet sich in der ersten Etage eines gepflegten Geschäftshauses und ist bequem über einen Fahrstuhl erreichbar. Die zentrale Lage macht es besonders attraktiv für Unternehmen, die Wert auf eine gute Erreichbarkeit und ein professionelles Umfeld legen. Das industrielle Design in Kombination mit einer durchdachten Raumaufteilung schafft ideale Bedingungen für einen modernen Büroalltag.

Bereits der Eingangsbereich empfängt mit einer offen gestalteten Küche, die nicht nur funktional ist, sondern auch als Treffpunkt für kurze Pausen oder informelle Gespräche dient. Die großzügige, offene Bürofläche bietet Platz für mehrere Arbeitsplätze und überzeugt mit einer stilvollen Backsteinwand, die dem Raum einen besonderen Charakter verleiht. Die offene Struktur fördert das gemeinschaftliche Arbeiten und den Austausch im Team.

Ergänzt wird das Raumangebot durch drei separat zugängliche Büros mit sehr ansprechenden Größen – ideal als Einzel-, Doppelbüros oder Besprechungsräume.

Zwei gepflegte WC-Anlagen runden das Angebot ab und sorgen für den nötigen Komfort im Arbeitsalltag.

Dieses Büro vereint modernes Design mit praktischer Funktionalität und bietet Gewerbetreibenden ein repräsentatives Arbeitsumfeld mit Wohlfühlfaktor.

Diese Einheit wird zum 01.11.2025 frei.

Ausstattung

Das Büro präsentiert sich in einem einzigartigen industriellen Stil, der durch teilweise verklinkerte Wände und einen durchgehenden Vinylboden geprägt ist. Die Kombination dieser Elemente schafft nicht nur einen modernen Look, sondern verleiht dem gesamten Raum auch eine robuste Eleganz.

Die doppelt verglasten Fenster bieten nicht nur eine hervorragende Schalldämmung, sondern sorgen auch für eine effiziente Energieisolierung. Dies schafft eine angenehme Arbeitsatmosphäre und trägt zur Reduzierung von Energiekosten bei.

Die großzügigen Parkmöglichkeiten vor der Einheit erleichtern nicht nur die Anreise für Kunden, sondern bieten auch Mitarbeitern eine bequeme Option.

Die Auswahl hochwertiger Materialien und die präzise Verarbeitung unterstreichen die Qualität des Ladens. Der industrielle Stil wird durch klare Linienführung und moderne Elemente betont, was dem Raum ein zeitgemäßes und ansprechendes Ambiente verleiht.

Technisch ist das Büro auf dem neuesten Stand, um den Anforderungen moderner Geschäftstätigkeit gerecht zu werden. Effiziente Beleuchtung, moderne Büroausstattung und technische Installationen für reibungslose Verkaufsprozesse komplettieren die hochwertige Ausstattung dieses außergewöhnlichen Ladens. Hier kommt Funktionalität mit einem ästhetischen Gesamtkonzept in perfektem Einklang.

Lage

Im Osten der lebhaften Kreisstadt Siegburg – je rund 10 Fußminuten zwischen Stadtzentrum und Flussufer – erhebt sich eines der Wahrzeichen unserer Stadt: Der „Phrix-Turm, einst Wasserturm einer Zellwollefabrik. Heute ist er Herzstück und Namensgeber des TurmCenters – Ihrer Adresse für maßgeschneiderte Büro-, Lager- und Produktionsräume.

Der Rhein-Sieg-Kreis ist, gemessen an der Zahl seiner Einwohner, drittgrößter Landkreis der Republik. Entsprechend groß ist das Kundenpotenzial für die Unternehmen vor Ort. Dabei liegt der Kaufkraftindex – auch durch die Entwicklung zum Dienstleistungs- und IT-Zentrum des Landes – spürbar über dem Bundesdurchschnitt. Aus diesem Grund bietet die Region beste Voraussetzungen für Ihr gutes Geschäft.

Innerhalb von wenigen Minuten erreichen Sie vom TurmCenter, das sich nur rund 30 km vor den Toren Kölns befindet,

- die Autobahn, insbesondere die A 3 und die A 560
- den ICE-Bahnhof Siegburg (2,5 km)
- den Flughafen Köln/Bonn (9 km).

Der Flughafen Düsseldorf liegt ca. 60 km entfernt.

Als „Homezone“ namhafter Anbieter aus dem Kommunikations- und IT-Bereich verfügen wir selbstverständlich über erstklassige Anbindung an alle digitalen Netze.
Lade Orte in der Umgebung

Sonstiges

Sofern Sie auf eine ruhige und doch zentrale Lage, eine beeindruckende Aufteilung und ein gehobenes Umfeld Wert legen, ist dieses Objekt das ideale Angebot für Sie.

Wir bieten Ihnen eine kostenlose 24/7 Hotline (0800-6460646) an. Bei Interesse fordern Sie einfach das Exposé mit einigen weiteren Inhalten an. Dieses wird Ihnen automatisch i. d. R. kurzfristig zugesandt. Bei einem Besichtigungswunsch antworten Sie am besten per Mail auf das Exposé, wir melden uns dann umgehend mit Terminvorschlägen bei Ihnen. Bitte geben Sie immer Ihre vollständigen Kontaktdaten an.

Die Objektbeschreibung beruht ganz oder zum Teil auf Angaben des Eigentümers. Für die Richtigkeit oder Vollständigkeit übernehmen wir keine Gewähr.

Sie wollen Ihre Immobilie ebenfalls professionell vermarkten, rufen Sie uns an, wir stehen Ihnen von Mo. bis So. von 6.00 - 22.00 h persönlich zur Seite, über 200.000 aktive Interessenten warten bereits auf Sie.

Die Inhalte und Bilder dieses Exposés könnten mithilfe von künstlicher Intelligenz (KI) erstellt worden sein.

Anbieterdaten

Andreas Laarmann

Ansprech­partner

Andreas Laarmann

Ihre Nachricht an FALC Immobilien Hennef (Sieg) (Andreas Laarmann)

Ihr Ansprechpartner: Andreas Laarmann

Mit (*) gekennzeichnete Felder sind Pflichtangaben.