EG-Neubauwohnung mit Veranda am Pool & privatem Garten – Maleme bei Chania (Kreta)

Eckdaten

 Zimmer
 Wohnfl.
 Grundst.
Kaufpreis
 Zimmer
 Wohnfl.
Grundst.

Kaufpreis

Basisdaten

Objektnummer
Immopark ID
IP-307626
Objekt ID
KR-OCC-GF07
Adresse
Ort
730 14 Maleme
Fakten und Zahlen
Wohnungstyp
Erd­geschoss
Vermarktungsart
Kauf
Nutzungsart
wohnen
Baujahr
2025
Kerndaten
Wohnfläche
72,18 m2
Zimmer
3.0
Schlafzimmer
2.0
Badezimmer
1.0
Bauweise / Substanz
Objektzustand
Erstbezug

Preisdaten

Preis
Kaufpreis
345.000 €

Merkmale

Zimmer und Bereiche
Gesamtfläche
13,94 m2
Anzahl (Balkone)
1.0
Anzahl (Loggien)
1.0
Schlaf­zimmer
Abstell­raum
Ausstattung und Technik
Qualität der Ausstattung
gehoben
Einbau­küche
Fliesen­boden
Parkett­boden
Klima­anlage
Sanitäre Einrichtung
Dusche
Besondere Merkmale
Nutzung als Ferienimmobilie
Garten
Garten­nutzung

Energie

Energieausweis
Gebäudeart lt. Energieausweis
Wohngebäude

Umgebung

Es wurden keine Daten angegeben.

Objektbeschreibung

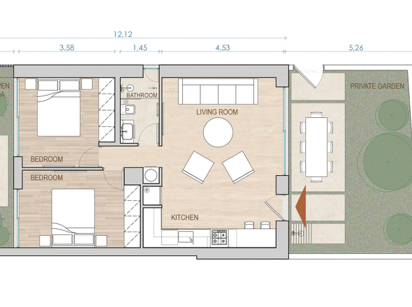
2 SZ | EG | ca. 72,18 m² Innenfläche + ca. 48,91 m² Außenflächen | poolnahe Veranda & privater Garten | bezugsfertig | Vermietung möglich (Rules) | keine Käuferprovision

Die Kombination aus Veranda in Poolnähe und privatem Garten macht diese Einheit besonders alltagstauglich – ideal als Zweitwohnsitz mit Vermietungsoption.

Diese bezugsfertige 2-Schlafzimmer-Neubauwohnung in Maleme (Gemeinde Platanias, Region Chania) ist eine sehr stimmige Wahl für Käufer, die eine pflegeleichte Zweitimmobilie auf Kreta suchen – mit Außenflächen, die im Alltag wirklich genutzt werden. Kurzzeitvermietung ist grundsätzlich möglich (ohne Renditeversprechen; maßgeblich sind die Rules of Operation & Management der Anlage).

Die Einheit liegt im Erdgeschoss und bietet ca. 72,18 m² Innenfläche (griechische Ausweisung). Ergänzend stehen ca. 48,91 m² Außenflächen zur Verfügung (separat ausgewiesen): Garten ca. 34,97 m² und Veranda ca. 13,94 m². Der Grundriss entspricht dem bewährten Konzept der Garden-Apartments: offener Wohn-/Essbereich mit integrierter Küche, zwei gleich große Schlafzimmer mit Einbauschränken und ein Badezimmer mit Dusche.

Ein privater Abstellraum (Underground Storage) ist der Einheit zugeordnet.

Ausstattung

Flächen (klar getrennt)
• Innenfläche: ca. 72,18 m² (griechische Ausweisung)
• Außenflächen: ca. 48,91 m² (separat) – Garten ca. 34,97 m², Veranda ca. 13,94 m²
• Privater Abstellraum (Underground Storage): vorhanden (Nummer/Größe gemäß Dokumentenpaket)
• Privater Stellplatz: nein

Wohnen & Komfort
• Erdgeschosswohnung, offener Wohn-/Essbereich
• 2 gleich große Schlafzimmer mit Einbauschränken
• Badezimmer mit Dusche

Materialien & Innenausbau (Highlights gemäß Spezifikation)
• Wohn-/Küchenbereich: großformatige Keramikfliesen (ca. 120×60 cm)
• Schlafbereiche: Eiche-Holzboden (semi-massiv)
• Bad: Zementmörtel-Finish (Boden/Wand) mit Versiegelung
• Küche: EGGER-Oberflächen, LED-Arbeitslicht (Details gemäß Spezifikation)

Fenster, Beschattung, Sicherheit
• Aluminiumfenster mit thermischer Trennung, Doppel-/teils Dreifachverglasung, Screens
• Elektrische Rollläden in Wohn- und Schlafräumen
• Sicherheitseingangstür

Technik & Energie
• Energieeffizienzklasse A+
• Multi-Split-System zum Kühlen/Heizen
• Warmwasser über Solar-/Boilersystem
• Alarmanlage vorbereitet (Vorverkabelung)

Außenbereich & Gemeinschaft
• Poolnahe Veranda + privater Gartenbereich
• Gemeinschaftspool (ca. 120 m²), Nutzung gemäß Regelwerk
• Verwaltung/Property Management für Gemeinschaftsflächen

Lage

Maleme liegt an der Nordwestküste Kretas in der Gemeinde Platanias (Region Chania). Die Lage verbindet Strandnähe mit guter Erreichbarkeit Richtung Chania und eignet sich damit für Eigennutzung ebenso wie für längere Aufenthalte im Jahresverlauf.

Strände & Umgebung: Maleme Beach (lange Küstenlinie, teils Sand mit glatten Kieseln) liegt fußläufig. Für klassische Strandtage mit Infrastruktur bieten sich Platanias Beach und Agia Marina Beach an. Westkretas bekannte Ausflugsstrände Falassarna, Balos und Elafonisi sind – je nach Saison – als Tagesziele erreichbar.

Alltag & Versorgung: Im Ort und im Umfeld finden sich üblicherweise Einkaufsmöglichkeiten und Tavernen/Cafés; das deutlich größere Angebot bietet die Stadt Chania.

Bewegung: Jogging entlang der Küstenwege und Strandabschnitte; Rad- und Tourenfahrten Richtung Platanias/Chania oder westwärts Richtung Kolymbari.

Hinweis Umfeld: In der Nähe befindet sich das frühere Flugfeld Maleme; es handelt sich nicht um einen Linienflughafen. Vereinzelt können Aktivitäten kleinerer Flugzeuge vorkommen.

Entfernungen (Orientierungswerte): Flughafen Chania (CHQ) ca. 36,3 km; Krankenhaus Chania ca. 19,4 km; Fährhafen Souda ca. 24,6 km.
Lade Orte in der Umgebung

Zusätzliche Information

GF07 ist eine bezugsfertige 2-Schlafzimmer-Gartenwohnung innerhalb der Olive Courtyard Collection in Maleme (Platanias/Chania). Sie richtet sich an Eigennutzer, die eine zweite Heimat auf Kreta suchen, die unkompliziert funktioniert – und zugleich eine Vermietungsoption offenhalten möchten (ohne Renditeversprechen; maßgeblich sind die Rules of Operation & Management).


Flächen (klar getrennt): ca. 72,18 m² Innenfläche (griechische Ausweisung) plus ca. 48,91 m² Außenflächen (separat): Garten ca. 34,97 m² und Veranda ca. 13,94 m². Die Veranda liegt poolnah und eignet sich als „kurzer Weg nach draußen“, während der private Garten einen eigenen Rückzugsbereich schafft – sehr angenehm für längere Aufenthalte, Homeoffice-Wochen oder entspannte Urlaube.


Der Innenbereich ist modern und klar organisiert: offener Wohn-/Essbereich mit integrierter Küche, zwei gleich große Schlafzimmer mit Einbauschränken sowie ein Badezimmer mit Dusche. Küche und Bad sind im Vergleich zu GF-05 gespiegelt – funktional identisch, aber mit leicht anderer Wegeführung. Ein privater Abstellraum (Underground Storage) gehört zur Einheit und ist gerade bei saisonaler Nutzung und Vermietung ein praktischer Vorteil.

Sonstiges

Flächenhinweis: Angegeben ist die Innenfläche (griechische Ausweisung); Außenflächen (Garten/Veranda) sind separat ausgewiesen.

Parken: Kein privater Stellplatz zur Einheit ausgewiesen; Parkmöglichkeiten in der Umgebung.

Vermietung: Kurzzeitvermietung grundsätzlich möglich; maßgeblich sind die Rules of Operation & Management der Anlage.

Community Fees: Richtwert ca. 70–100 € / Monat je Einheit (abhängig von tatsächlichen Kosten und Miteigentumsanteil).

Steuern: Laut Entwickler keine 24% MwSt./VAT; Käufer zahlt Transfer Tax 3,09% (maßgeblich Vertrag/Anwalt; keine Steuerberatung).

Bilder: Teilweise beispielhafte Innenfotos und Renderings; maßgeblich sind Grundriss/Lageplan/Unterlagen.

Über uns: Kaste Immobilien – Familienunternehmen mit über 55 Jahren Erfahrung. Keine Käuferprovision.

Anbieterdaten

Jean René Kaste

Ansprech­partner

Jean René Kaste

Ihre Nachricht an Kaste Immobilien

Ihr Ansprechpartner: Jean René Kaste

Mit (*) gekennzeichnete Felder sind Pflichtangaben.