Erdgeschosswohnung mit großem Garten, Terrassen und nur 50 m zum Strand

Eckdaten

 Zimmer
 Wohnfl.
 Grundst.
Kaufpreis
 Zimmer
 Wohnfl.
Grundst.

Kaufpreis

Basisdaten

Objektnummer
Immopark ID
IP-315991
Objekt ID
9124
Adresse
Ort
23000 Zadar
Fakten und Zahlen
Wohnungstyp
Erd­geschoss
Vermarktungsart
Kauf
Nutzungsart
wohnen
Verkaufsstatus
offen
Baujahr
2026
Kerndaten
Wohnfläche
108,56 m2
Zimmer
3.0
Schlafzimmer
2.0
Badezimmer
1.0
Anzahl Stellplätze (gesamt)
2.0
Bauweise / Substanz
Objektzustand
Erstbezug
Etagenanzahl der Immobilie
1

Preisdaten

Preis
Kaufpreis
440.000 €
Courtage
Käufercourtage
3,75 % inkl. MwSt. in Kroatien

Merkmale

Zimmer und Bereiche
Ausrichtung
West
Schlaf­zimmer
Abstell­raum
Ausstattung und Technik
Klima­anlage
Sanitäre Einrichtung
Gäste WC
Stellplätze
Anzahl Stellplätze (gesamt)
2.0
Freiplatz
Anzahl
2.0

Energie

Energieausweis
Gebäudeart lt. Energieausweis
Wohngebäude
Heizung
Fußboden­heizung

Umgebung

Es wurden keine Daten angegeben.

Objektbeschreibung

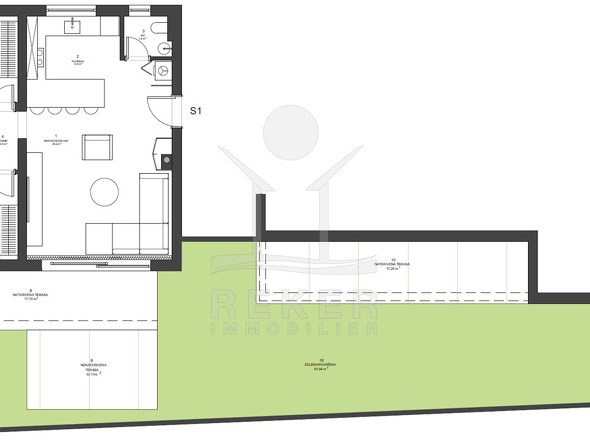
Diese Wohnung bietet alles auf einer Ebene: Zwei Schlafzimmer, ein großzügiger Wohnbereich und ein privater Garten mit über 80 m² Fläche. Dazu drei Terrassen und das Meer fast vor der Tür – ideal für alle, die Freiraum suchen.

Ausstattung

https://www.reker-immobilien.de/kroatien/erdgeschoss-zadar-ammeer-neubau_9124?utm_source=ausstattung&utm_medium=txt&utm_campaign=9124
~

Lage

Nur etwa 50 Meter vom Meer entfernt – zur Promenade sind es sogar nur rund 20. Die Umgebung: entspannt, gepflegt, grün. Moderne Häuser, viel Platz zwischen den Grundstücken. Wer das Meer sucht und Privatsphäre schätzt, wird sich hier schnell wohlfühlen.

Das Gebäude? Hochwertig gebaut, mit einem klaren Fokus auf Design, Qualität und Ästhetik. Drei Etagen, zehn Wohnungen – jede für sich besonders. Im Erdgeschoss haben die Wohnungen private Gartenanteile. Die Einheiten im zweiten Obergeschoss verfügen über große Dachterrassen mit weitem Meerblick. Großzügige Grundrisse, große Fensterflächen, viel Tageslicht. Der Bau schreitet zügig voran, mit einer geplanten Fertigstellung im Mai 2026. Ein Aufzug verbindet alle Etagen. Jede Wohnung kommt mit zwei Stellplätzen – bei manchen auch inklusive Garage.
Lade Orte in der Umgebung

Anbieterdaten

Ansprech­partner

Ihre Nachricht an Reker Immobilien

Ihr Ansprechpartner: admin@reker-immobilien.de

Mit (*) gekennzeichnete Felder sind Pflichtangaben.