Erleben Sie den Gipfel des Luxus: Neubau Luxusvilla in Primošten mit atemberaubendem Meerblick
Spektakulärer Meerblick in PrimoštenBildModernes Meisterwerk in bester LageBildBildBildPerfekte Kombination aus Eleganz und KomfortBildBildBildBildBildBildGroßzügige Schlafzimmer und TerrassenBildBildBildBildBildBildBauzustand der Villen im Januar 2024BildBildBildBildBildBildBildUGEGOGLageSpektakulärer Meerblick in Primošten
Eckdaten
Zimmer
Wohnfl.
Grundst.
Kaufpreis
Zimmer
Wohnfl.
Grundst.
1350000.0€ Kaufpreis
Basisdaten
Objektnummer
Immopark ID
IP-315973
Objekt ID
6595
Adresse
22202 Primošten
Ort
22202 Primošten
Fakten und Zahlen
Haustyp
Villa
Vermarktungsart
Kauf
Nutzungsart
wohnen
Verkaufsstatus
offen
Baujahr
2024
Kerndaten
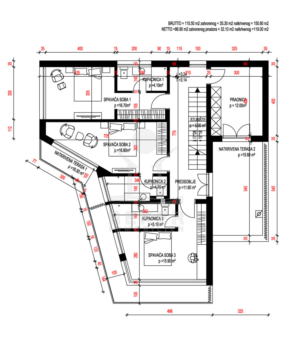
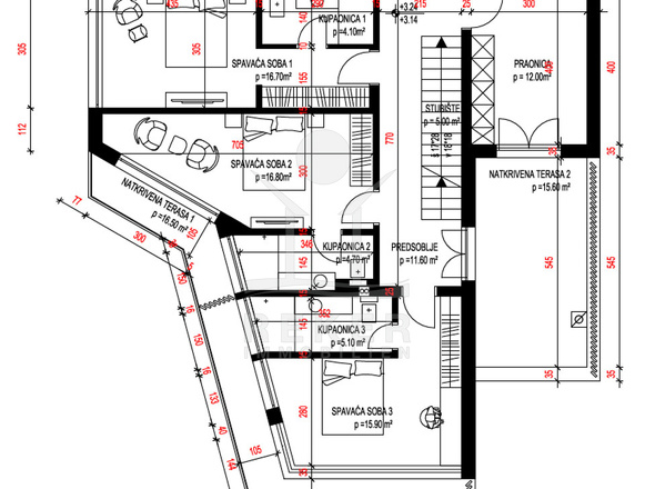
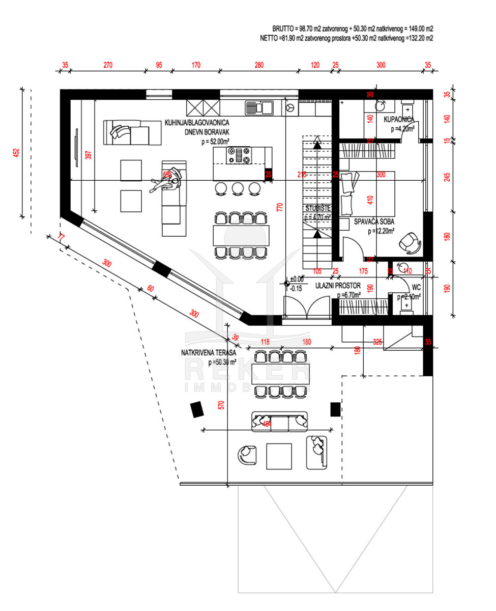
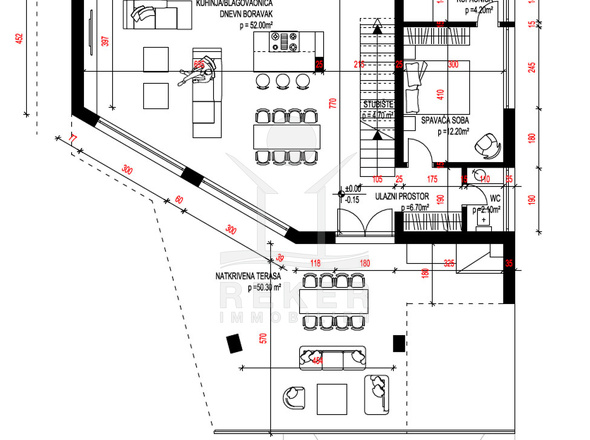
Wohnfläche
348,35 m2
Zimmer
5.0
Schlafzimmer
4.0
Badezimmer
5.0
Grundstücksfläche
528 m2
Anzahl Stellplätze (gesamt)
2.0
Bauweise / Substanz
Objektzustand
Erstbezug
Etagenanzahl der Immobilie
2
Preisdaten
Preis
Kaufpreis
1.350.000 €
Courtage
Käufercourtage
3,75 % inkl. MwSt. in Kroatien
Merkmale
Zimmer und Bereiche
Typ
Voll unterkellert
Anzahl (Terrassen)
1.0
Zimmer und Räume
Schlafzimmer
Zimmer und Räume
Abstellraum
Ausstattung und Technik
Sicherheitstechnik
Alarmanlage
Weitere Ausstattung
Kamin
Weitere Ausstattung
Klimaanlage
Sanitäre Einrichtung
Sanitäre Einrichtung
Gäste WC
Wellness
Wellness Merkmale
Swimming-Pool
Stellplätze
Anzahl Stellplätze (gesamt)
2.0
Stellplatzdetails
Garage
Anzahl
2.0
Ausblick
Ausblick
Meer
Energie
Energieausweis
Gebäudeart lt. Energieausweis
Wohngebäude
Heizung
Heizungsart
Fußbodenheizung
Umgebung
Es wurden keine Daten angegeben.
Objektbeschreibung
Diese exklusive Neubau Luxusvilla verkörpert die Perfektion von Eleganz und Schönheit. Jedes Detail dieser Traumresidenz strahlt höchste Qualität und erstklassige Bauweise aus. Genießen Sie den atemberaubenden Blick über die malerische Landschaft und spüren Sie die Meeresbrise, die Sie begleitet. Die Nähe zum Strand macht diese Villa zu einem wahren Juwel an der Adriaküste. Entspannen Sie im Swimmingpool und lassen Sie die Luxusausstattung auf sich wirken. Tauchen Sie ein in das mediterrane Lebensgefühl und erleben Sie ein Leben voller Stil und Komfort. Diese Immobilie ist nicht nur ein Zuhause - sie ist ein Ort, an dem Träume wahr werden und südländisches Flair gelebt wird.
Daneben befinden sich drei weiteren Villen zum Erwerb bereit!