Erleben Sie den ultimativen Luxus: Neubauvilla 1. Reihe am Meer in Bilice

Eckdaten

 Zimmer
 Wohnfl.
 Grundst.
Kaufpreis
 Zimmer
 Wohnfl.
 Grundst.

Kaufpreis

Basisdaten

Objektnummer
Immopark ID
IP-304094
Objekt ID
6857
Adresse
Ort
22000 Šibenik
Fakten und Zahlen
Haustyp
Villa
Vermarktungsart
Kauf
Nutzungsart
wohnen
Verkaufsstatus
offen
Baujahr
2024
Kerndaten
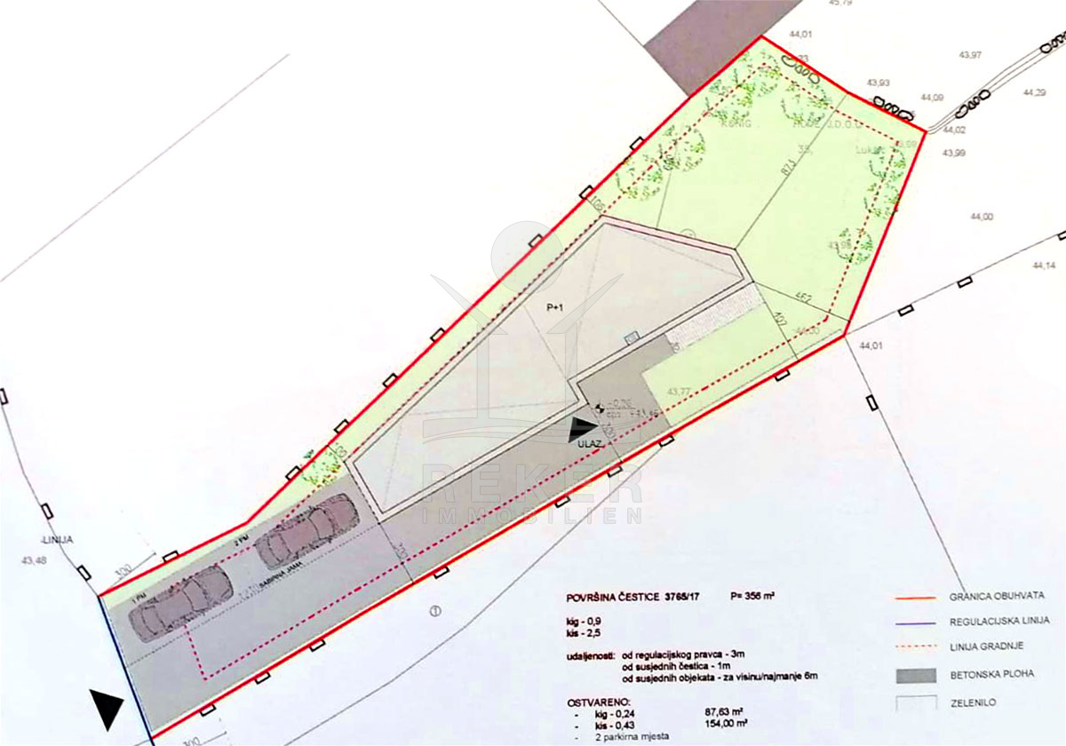
Wohnfläche
154 m2
Zimmer
3.0
Schlafzimmer
2.0
Badezimmer
2.0
Grundstücksfläche
352 m2
Anzahl Stellplätze (gesamt)
2.0
Bauweise / Substanz
Objektzustand
Erstbezug
Etagenanzahl der Immobilie
2

Preisdaten

Preis
Kaufpreis
459.000 €
Courtage
Käufercourtage
3,75 % inkl. MwSt. in Kroatien

Merkmale

Zimmer und Bereiche
Anzahl (Terrassen)
1.0
Schlaf­zimmer
Abstell­raum
Ausstattung und Technik
Klima­anlage
Sanitäre Einrichtung
Gäste WC
Stellplätze
Anzahl Stellplätze (gesamt)
2.0
Freiplatz
Anzahl
2.0
Ausblick
Meer

Energie

Heizung
Fußboden­heizung

Umgebung

Es wurden keine Daten angegeben.

Objektbeschreibung

Erleben Sie das ultimative Maß an Komfort und Raffinesse in dieser exklusiven Neubauvilla direkt am Meer in Bilice! Diese moderne Villa in erster Reihe bietet einen unvergleichlichen Blick auf das türkisblaue Meer. Hier können Sie jeden Tag das entspannende Rauschen der Wellen genießen und in privater Atmosphäre schwimmen.

Ausstattung

https://www.reker-immobilien.de/kroatien/villa-bilice-neubau-erstereihe_6857?utm_source=ausstattung&utm_medium=txt&utm_campaign=6857
~

Lage

Die exklusive Neubauvilla in Bilice bietet eine einzigartige Kombination aus Luxus, natürlicher Schönheit und kulturellen Höhepunkten. Nur 40 Meter vom Meer entfernt gelegen, können Sie hier das mediterrane Lebensgefühl in vollen Zügen genießen. Die Villa liegt in unmittelbarer Nähe zu Restaurants, Einkaufsmöglichkeiten und weiteren Annehmlichkeiten.

Eine neue Marina entsteht nur 300 m, mit bis zu 120 Liegeplätzen für Boote und Yachten, ideal für Wassersportliebhaber. Die Fertigstellung ist für das Ende des nächsten Jahres geplant. Auch das erste 18-Loch Golfresort Kroatiens entsteht in unmittelbarer Nähe, mit gehobener Gastronomie und einem 5-Sterne-Hotel, was die Wertsteigerung des Objektes garantiert. In der Umgebung befindet sich zudem eine ganzjährige Bootsfahrschule und Bootsvermietung, was zu einer guten Auslastung der Immobilie beiträgt und zusätzliche Annehmlichkeiten für Bewohner bietet.
Lade Orte in der Umgebung

Anbieterdaten

Ansprech­partner

Ihre Nachricht an Reker Immobilien

Ihr Ansprechpartner: admin@reker-immobilien.de

Mit (*) gekennzeichnete Felder sind Pflichtangaben.