Exklusive Eigentumswohnung in Düsseldorf-Lohausen - modernes Baujahr, 4 Zimmer - sofort frei !

Eckdaten

 Zimmer
 Wohnfl.
 Grundst.
Kaufpreis
 Zimmer
 Wohnfl.
Grundst.

Kaufpreis

Basisdaten

Objektnummer
Immopark ID
IP-314412
Objekt ID
LDW1.TBA.10328
Adresse
Ort
40474 Düsseldorf
Fakten und Zahlen
Wohnungstyp
Etage
Vermarktungsart
Kauf
Nutzungsart
wohnen
Verkaufsstatus
offen
Baujahr
2016
Kerndaten
Wohnfläche
100 m2
Zimmer
4.0
Schlafzimmer
3.0
Badezimmer
1.0
separate WC
2.0
Anzahl Stellplätze (gesamt)
2.0
Bauweise / Substanz
Objektzustand
gepflegt
Bauweise
Massivhaus

Preisdaten

Preis
Kaufpreis
549.000 €
Weitere Kosten
Hausgeld
652,57 €
Courtage
Käufercourtage
3,57 % inkl. MwSt.
inkl. MwSt.

Merkmale

Zimmer und Bereiche
Voll unterkellert
Schlaf­zimmer
Wasch- / Trocken­raum
Sanitäre Einrichtung
Gäste WC
Besondere Merkmale
WG-geeignet
Stellplätze
Anzahl Stellplätze (gesamt)
2.0
Tiefgarage
Anzahl
2.0
Kaufpreis
20.000 €

Energie

Energieausweis
Typ
Bedarfs­ausweis
EnEV
ab 01.05.2014 (gemäß EnEV 2014)
Energieausweis gültig bis
2026-12-12
Endenergiebedarf gemessen in kWh/(m²a)
49.00

A+ABCDEFGH

wesentlicher Energieträger
Gas
Energieeffizienz­klasse
A
Baujahr lt. Energieausweis
2016
Gebäudeart lt. Energieausweis
Wohngebäude
Befeuerungsart
Gas

Umgebung

Es wurden keine Daten angegeben.

Objektbeschreibung

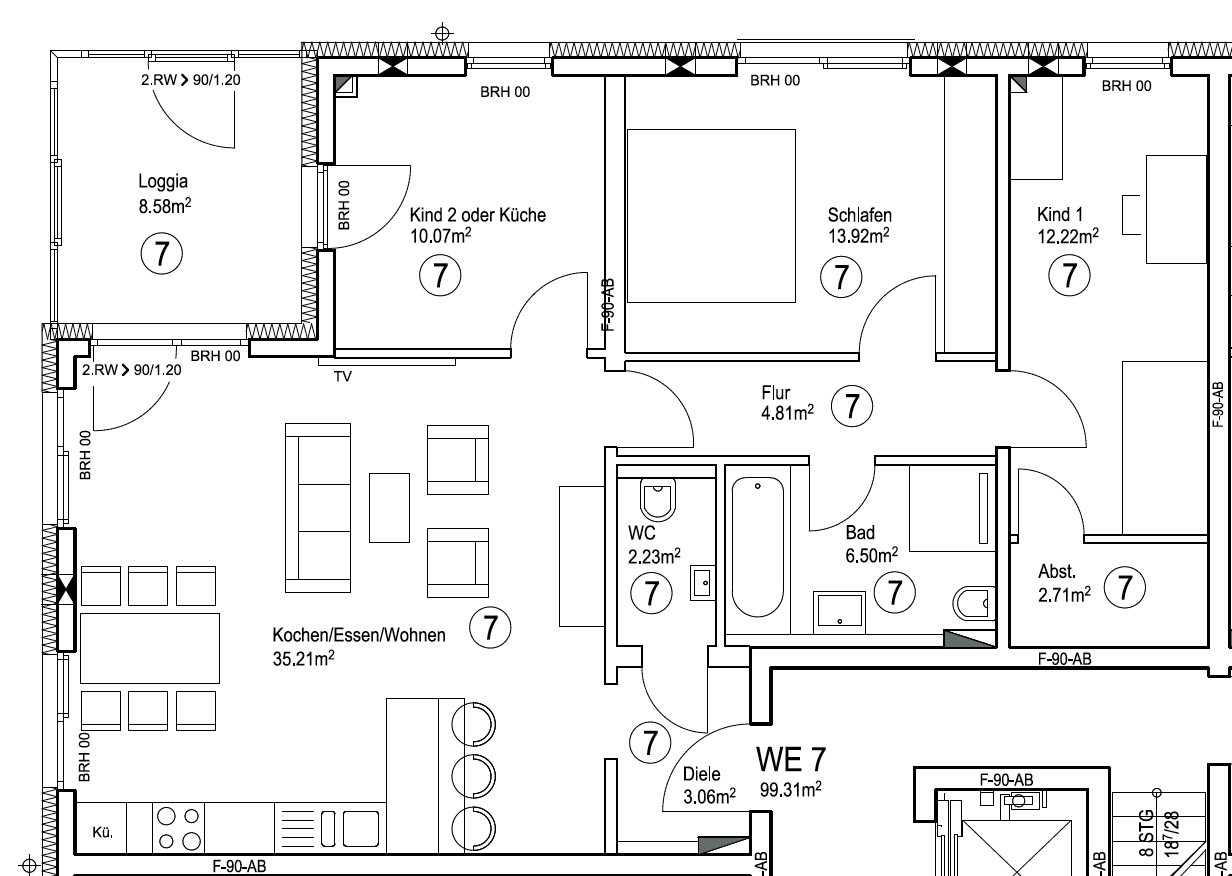
Zum Verkauf steht eine exklusive Eigentumswohnung, gelegen im 1. Obergeschoss eines repräsentativen und modernen Mehrfamilienhauses aus dem Jahr 2016 in der begehrten Wohngegend Düsseldorf-Lohausen.

Dieses außergewöhnliche Domizil bietet auf einer großzügigen Wohnfläche von rund 100 Quadratmetern vier Zimmer, die viel Platz für individuelles und behagliches Wohnen bieten.

Die Eigentumswohnung ist ideal für Paare mit bis zu zwei Kindern, verfügt über ein modernes Badezimmer mit Fenster, Badewanne und Dusche.

Ein weiteres Highlight ist der großzügige und helle Loggia mit Verglasung, welche den Wohnraum erweitert und zu gemütlichen Abenden einlädt, um das ganze Jahr über das besondere Ambiente der Eigentumswohnung zu genießen.
Hochwertiges Parkett in den Räumen steigert den Wohnkomfort zusätzlich.

Das moderne Haus besticht durch seine herausragende Energieeffizienz, unterstützt von einer fortschrittlichen Gaszentralheizung. Diese sorgt nicht nur für eine gleichmäßige und behagliche Wärme durch Fußbodenheizung in allen Räumen, sondern gewährleistet auch die Warmwasserversorgung effizient und umweltschonend.

Laut Energieausweis erfüllt das Haus die Energieeffizienzklasse A mit einem niedrigen Endenergiebedarf von nur 49 kWh/(m²·a), was die Nachhaltigkeit und Wirtschaftlichkeit des Wohnens in diesem Gebäude unterstreicht.

Besonderes Augenmerk wurde auf die Wohnqualität gelegt, indem Schallschutzfenster höchster Güte eingebaut wurden, um möglichen Beeinträchtigungen durch die Nähe zum Flughafen effektiv entgegenzuwirken.

Ein Kellerabteil gehört ebenfalls zum Wohnangebot. Für die Aufstellung einer Waschmaschine und eines Trockners steht eine Waschküche zur Verfügung, die mit Anschlüssen versehen ist, die jeweils über einen eigenen Wasser- und Stromzähler verfügen.

Das Gebäude umfasst insgesamt neun Wohneinheiten auf einer Gebäudenutzfläche von 959m² und bietet mit seiner Architektur sowie den naturnahen Grünflächen in der Umgebung eine hohe Lebensqualität.

Die Gemeinschaft innerhalb des Mehrfamilienhauses ist hervorragend, mit einem generellen und vertrauensvollen Miteinander unter den Bewohnern.

Zu der Wohnung gehören zwei KFZ-Stellplätze, die für jeweils 20.000 € mit angeboten werden.

Die Wohnung ist sofort bezugsfrei. Nach dem Auszug wurde die gesamte Wohnung frisch gestrichen und der hochwertige Parkettboden von einer Spezialfirma neu abgeschliffen und saniert.

Wir freuen uns darauf, Ihnen in einem persönlichen Besichtigungstermin die Einzigartigkeit und den Charme dieser exklusiven Wohnung vorzustellen. Erleben Sie selbst, wie die Kombination aus modernem Komfort, durchdachter Architektur, hervorragender Energieeffizienz und einer harmonischen Wohnatmosphäre in dieser begehrten Lage Ihr neues Zuhause werden könnte.

Lage

Die exklusive Eigentumswohnung befindet sich in Düsseldorf-Lohausen, einem begehrten Wohnviertel im nördlichen Einzugsbereich der Landeshauptstadt Düsseldorf. Die Lage bietet eine harmonische Verbindung zwischen urbanem Lebensstil und natürlicher Umgebung.

In unmittelbarer Nähe liegt der Lantz'sche Park, der zu erholsamen Spaziergängen einlädt und eine grüne Oase inmitten der Stadt darstellt. Für Sportbegeisterte stehen verschiedene Möglichkeiten zur Verfügung, darunter der Lohausener Sport-Verein 1920 e.V. sowie die Tennis-Sportgemeinschaft Blau-Weiß.

Die Wohnlage zeichnet sich zudem durch eine ausgezeichnete Infrastruktur aus, mit zahlreichen Einkaufsmöglichkeiten in unmittelbarer Umgebung wie einem Aldi und einem Edeka, beide nur wenige Meter entfernt. Zudem sind weitere Supermärkte, Bäcker, Ärzte und Apotheken schnell erreichbar, was den Alltag erleichtert. Die unmittelbare Nähe zum Flughafen Düsseldorf ist insbesondere perfekt für jeden Urlauber.

Die Verkehrsanbindung ist sowohl mit dem Auto als auch mit öffentlichen Verkehrsmitteln hervorragend. Eine Bushaltestelle befindet sich in unmittelbarer Nähe, und die Autobahnen A44, A52 und B8 sind sehr schnell zu erreichen.

Für Familien bietet Lohausen eine gute Auswahl an Bildungseinrichtungen, darunter Kindergärten und eine Grundschule im Stadtteil selbst sowie renommierte Gymnasien und eine Internationale Schule im benachbarten Kaiserswerth.

Die idyllische Niederrheinlandschaft rund um Lohausen lädt zu verschiedenen Freizeitaktivitäten ein, darunter Spaziergänge, Fahrradfahren und Joggen entlang des Rheins, die direkt von der Haustür aus möglich sind. Die Kombination aus urbaner Annehmlichkeit und natürlicher Schönheit macht diese Wohnlage besonders attraktiv für anspruchsvolle Bewohner.

Die Lage der Immobilie in unmittelbarer Nähe zum internationalen Flughafen Düsseldorf ist ein großer Vorteil für Reisende, sei es für diejenigen, die gerne Urlaub machen, oder für Geschäftsreisende, die häufig mit dem Flugzeug unterwegs sind.
Lade Orte in der Umgebung

Sonstiges

Für die Richtigkeit sowie der Vollständigkeit der genannten Immobilienangabe übernehmen wir keine Haftung. Diese basieren ausschließlich auf Angaben vom Eigentümer.

Provisionsanspruch: Wir haben Ihnen für diese Immobilie eine Gelegenheit zum Kauf vorgestellt und nachgewiesen. Sollte es infolgedessen für dieses Objekt zu einem Kaufvertragsabschluss mit der Eigentümerseite kommen, wird hiermit darauf hingewiesen, dass Nachweis bzw. Vermittlung ausschließlich durch uns zustande kamen und somit wird, im Falle des Zustandekommens eines Kaufvertrages, die nachfolgend aufgeführte Maklerprovision fällig und zahlbar.

Maklerprovision: Die Höhe der vom Käufer bei Abschluss eines Kaufvertrages zu entrichtende Maklerprovision beträgt im Falle des Erwerbs einer Immobilie 3,57 % inkl. MwSt. des notariell beurkundeten Kaufpreises. Diese Maklerprovision ist verdient und fällig bei Abschluss des Kaufvertrages.

Der Maklervertrag mit uns kommt entweder durch schriftliche Vereinbarung oder auch durch die Inanspruchnahme unserer Maklertätigkeit auf der Basis des Objekt-Exposés und seiner Bedingungen zustande. Sollte das von uns nachgewiesene Objekt bereits bekannt sein, teilen Sie uns dieses bitte unverzüglich mit.

Widerrufsrecht: Ihr Widerrufsrecht ist in § 355 des BGB geregelt und schützt Sie als Verbraucher vor vertraglichen Bedingungen. Sie als Verbraucher haben das Recht, sich unter bestimmten Voraussetzungen von einem bereits geschlossenen Vertrag innerhalb gesetzlicher Fristen durch Erklärung des Widerrufs zu lösen.

GELDWÄSCHE: Als Immobilienmaklerunternehmen sind wir nach § § 1, 2 Abs. 1 Nr. 10, 4 Abs. 3 Geldwäschegesetz (GwG) dazu verpflichtet, vor Begründung einer Geschäftsbeziehung die Identität des Vertragspartners festzustellen und zu überprüfen. Hierzu ist es erforderlich, dass wir die relevanten Daten Ihres Personalausweises festhalten - beispielsweise mittels einer Kopie. Das Geldwäschegesetz (GwG) sieht vor, dass der Makler die Kopien bzw. Unterlagen fünf Jahre aufbewahren muss.

Anbieterdaten

Tobias Bartsch

Ansprech­partner

Tobias Bartsch

Ihre Nachricht an Königskinder Immobilien GmbH

Ihr Ansprechpartner: Tobias Bartsch

Mit (*) gekennzeichnete Felder sind Pflichtangaben.