"Exklusive Villa in idyllischer Lage mit einem wunderschönen Anwesen eingebettet in ein ruhiges Eck.

Eckdaten

 Zimmer
 Wohnfl.
 Grundst.
Kaufpreis
 Zimmer
 Wohnfl.
 Grundst.

Kaufpreis

Basisdaten

Objektnummer
Immopark ID
IP-296397
Objekt ID
FALC-AnKu-40811
Adresse
Ort
99320 Ozankoy
Fakten und Zahlen
Haustyp
Einfamilien­haus
Vermarktungsart
Kauf
Nutzungsart
wohnen
Baujahr
2013
Kerndaten
Wohnfläche
380 m2
Zimmer
6.0
Schlafzimmer
4.0
Badezimmer
4.0
Grundstücksfläche
1.100 m2
Anzahl Stellplätze (gesamt)
2.0
Bauweise / Substanz
Etagenanzahl der Immobilie
3
Wohneinheiten
1.0
Verfügbarkeit
Verfügbar ab
sofort

Preisdaten

Preis
Kaufpreis
1.112.000 €
Kaufpreis pro Quadratmeter
2.855,26 €

Merkmale

Zimmer und Bereiche
Anzahl (Balkone)
1.0
Gast­terrasse
Schlaf­zimmer
Ausstattung und Technik
Einbau­küche
Klima­anlage
Sanitäre Einrichtung
Gäste WC
Wellness
Swimming-Pool
Stellplätze
Anzahl Stellplätze (gesamt)
2.0
Freiplatz
Anzahl
2.0

Energie

Energieausweis
Energieausweis ist nicht notwendig nach EnEV
wesentlicher Energieträger
Elektro
Gebäudeart lt. Energieausweis
Wohngebäude
Heizung
Zentral­heizung

Umgebung

Es wurden keine Daten angegeben.

Objektbeschreibung

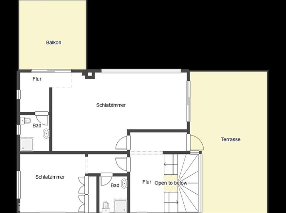
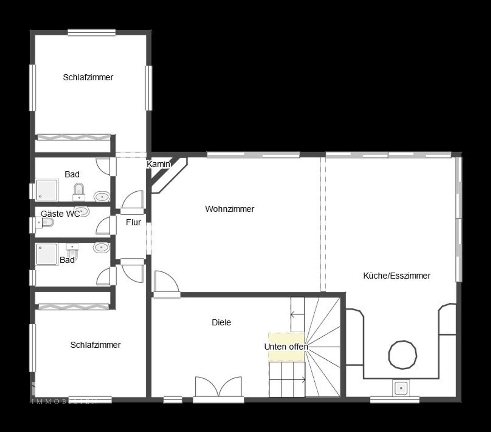
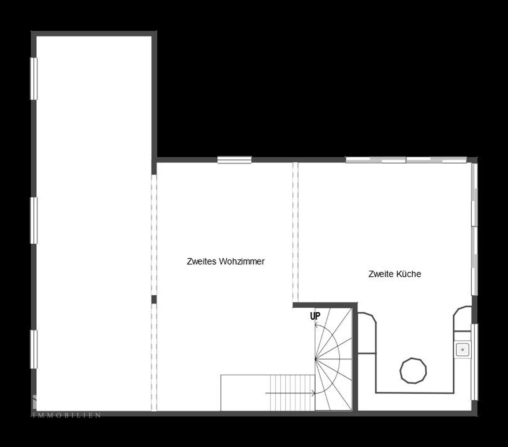
Zum Verkauf steht ein luxuriöses freistehendes Haus in Ozankoy, Kyrenia. Das im Jahr 2013 erbaute Haus wird im Moment umfassend renoviert und wird in einem erstklassigen Zustand übergeben. Mit einer Wohnfläche von ca. 380 m² bietet das Haus auf drei Etagen ausreichend Platz für eine Familie.

Das Haus verfügt über insgesamt sechs Zimmer, darunter vier Schlafzimmer und vier Badezimmer. Die hochwertige Ausstattung und die luxuriöse Bauweise machen dieses Objekt zu einem echten Highlight. Eine moderne Einbauküche, ein Gäste-WC und ein Kamin sorgen für zusätzlichen Komfort.

Die Immobilie ist vollständig klimatisiert und verfügt über eine Terrasse und einen Balkon, die zum Entspannen und Genießen der mediterranen Atmosphäre einladen. Ein Swimmingpool rundet das Angebot ab und bietet an heißen Tagen eine erfrischende Abkühlung.

Das Haus ist ab sofort verfügbar und eignet sich ideal für anspruchsvolle Käufer, die ein exklusives Wohnobjekt in einer attraktiven Lage suchen. Lassen Sie sich diese einmalige Gelegenheit nicht entgehen und vereinbaren Sie noch heute einen Besichtigungstermin.

Ausstattung

- Gäste WC
- Einbauküche
- Kamin
- Klimatisiert
- Terrasse
- Balkon
- Infinitypool
- Unterkellert
- Zentralheizung
- Strom als Befeuerung
- Mediterraner Baustil
- 2 PKW Stellplätze
- Kellergeschoss mit Küche und großem Wohnzimmer
- Weitere Informationen auf Anfrage

Lage

Das freistehende Haus befindet sich in der charmanten Stadt Ozankoy auf Zypern. Die Immobilie mit der Hausnummer 2 liegt in einer ruhigen Wohngegend und ist ideal für Familien geeignet.

Die Lage des Hauses zeichnet sich durch ihre Nähe zum Stadtzentrum aus, das nur 1 Kilometer entfernt ist. Hier finden Sie eine Vielzahl von Einkaufsmöglichkeiten, Restaurants und Unterhaltungsmöglichkeiten.

Auch die Autobahn ist nur 2,5 Kilometer entfernt, was eine gute Anbindung an die umliegenden Städte und Regionen bietet.

Für Familien mit kleinen Kindern ist die Nähe zum Kindergarten und zur Grundschule von Vorteil. Der Kindergarten ist nur 0,8 Kilometer entfernt und die Grundschule befindet sich in einer Entfernung von 1 Kilometer.

Die Lage des Hauses kombiniert die Vorzüge einer ruhigen Wohngegend mit der Nähe zu allen wichtigen Einrichtungen und Verkehrsanbindungen.
Lade Orte in der Umgebung

Sonstiges

Bitte beachten Sie, dass kein Energieausweis vorhanden ist, da es keine Pflicht zur Erstellung gibt. Die genaue Lage und weitere Details zur Immobilie können Sie gerne bei uns erfragen. Wir stehen Ihnen jederzeit gerne zur Verfügung und freuen uns auf Ihre Anfrage. Die Objektbeschreibung beruht ganz oder zum Teil auf Angaben des Eigentümers. Für die Richtigkeit oder Vollständigkeit übernehmen wir keine Gewähr.

Anbieterdaten

Leonie Laarmann

Ansprech­partner

Leonie Laarmann

Ihre Nachricht an FALC Immobilien Hennef (Sieg) (Andreas Laarmann)

Ihr Ansprechpartner: Leonie Laarmann

Mit (*) gekennzeichnete Felder sind Pflichtangaben.