Gemütliches Reiheneckhaus mit Herz in citynaher, ruhiger Lage mit Terrasse, Garten, Garage, ASP,
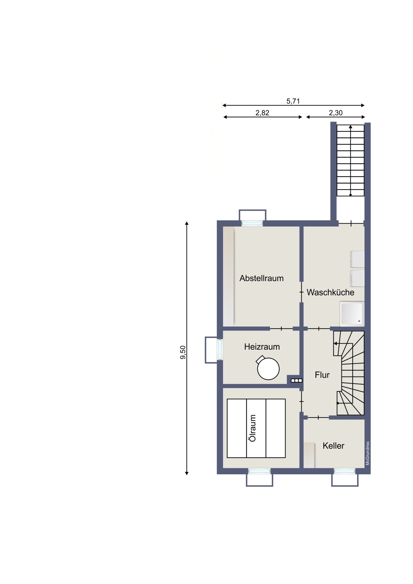
EG Wohnen/EssenEG EingangEG FlurEG Wohnen/EssenGartenEG KochenEG KochenOG SchlafenOG SchlafenOG BadOG BadOG Zimmer1OG Zimmer1OG Zimmer2DG StudioDG StudioKellerHausansicht mit Garage & StellplatzHausansichtEG Grundriss mit Garage Grundriss OGDG Grundriss UG Grundriss Außenansicht
Eckdaten
Zimmer
Wohnfl.
Grundst.
Kaufpreis
Zimmer
Wohnfl.
Grundst.
435000.0€ Kaufpreis
Basisdaten
Objektnummer
Immopark ID
IP-307498
Objekt ID
LDW1.CS.10657
Adresse
73240 Wendlingen am Neckar
Ort
73240 Wendlingen am Neckar
Fakten und Zahlen
Haustyp
Reiheneckhaus
Vermarktungsart
Kauf
Nutzungsart
wohnen
Verkaufsstatus
offen
Baujahr
1974
Kerndaten
Wohnfläche
103,81 m2
Zimmer
5.5
separate WC
1.0
Grundstücksfläche
188 m2
Anzahl Stellplätze (gesamt)
3.0
Bauweise / Substanz
Objektzustand
gepflegt
Verfügbarkeit
Verfügbar ab
sofort
Preisdaten
Preis
Kaufpreis
435.000 €
Courtage
Käufercourtage
3,57 % vom Kaufpreis inkl. gesetzl. MwSt.
Merkmale
Zimmer und Bereiche
Typ
Voll unterkellert
Dachboden Merkmale
Dachboden
Zimmer und Räume
Wasch- / Trockenraum
Ausstattung und Technik
Küche
Einbauküche
Sanitäre Einrichtung
Sanitäre Einrichtung
Gäste WC
Stellplätze
Anzahl Stellplätze (gesamt)
3.0
Stellplatzdetails
Freiplatz
Anzahl
3.0
Stellplatzdetails
Garage
Anzahl
3.0
Energie
Energieausweis
Typ
Verbrauchsausweis
EnEV
ab 01.05.2014 (gemäß EnEV 2014)
Energieausweis gültig bis
2035-12-18
Energieverbrauchskennwert gemessen in kWh/(m²a)
170.10
A+ABCDEFGH
wesentlicher Energieträger
Öl
Energieeffizienzklasse
F
Baujahr lt. Energieausweis
2001
Gebäudeart lt. Energieausweis
Wohngebäude
Heizung
Heizungsart
Zentralheizung
Befeuerungsart
Befeuerungsart
Öl
Umgebung
Es wurden keine Daten angegeben.
Objektbeschreibung
Ein Zuhause zum Ankommen – Reiheneckhaus mit Herz in citynaher Ruhe Schon beim Eintreten spürt man: Dieses Haus erzählt Geschichten. Geschichten von Geborgenheit, von sonnigen Nachmittagen im Garten und von gemütlichen Abenden unter dem Dach. In ruhiger, citynaher Lage präsentiert sich dieses ansprechende Reiheneckhaus als ein Ort, an dem Wohnen mehr ist als nur Quadratmeter – es ist ein Gefühl. Mit einer Hauslänge von ca. 9,50 m und einer Breite von 5,71 m bietet das Haus großzügige 5,5 Zimmer, die Raum für Familie, Kreativität und Rückzug schaffen. Der Grundriss ist durchdacht und einladend – ideal für Menschen, die Wert auf Platz und Wohnqualität legen. Das Erdgeschoss empfängt Sie mit einem wohnlichen Ambiente. Die vintage Einbauküche in massiver Schreinerarbeit verleiht dem Zuhause Charakter und Charme – ein Ort, an dem gekocht, gelacht und gelebt wird. Ein Gäste-WC sorgt für zusätzlichen Komfort. Von hier aus öffnet sich der Blick in die bezaubernde kleine Gartenoase: eine sonnige Terrasse, perfekt für entspannte Stunden, Morgenkaffee oder laue Sommerabende. Im Obergeschoss erwartet Sie ein helles Tageslichtbad mit Wanne, Waschtisch und WC – ein Raum zum Abschalten. Ergänzt wird diese Etage durch ein geräumiges Schlafzimmer und zwei Kinderzimmer, sowie dem großzügigen Süd-/West-Balkon, der Sonne und Entspannung verspricht. Ein besonderes Highlight ist das herrliche Dachstudiozimmer. Lichtdurchflutet, offen und vielseitig nutzbar – ob als Atelier, Homeoffice oder Rückzugsort. Ein zusätzliches Waschbecken im Dachgeschoss unterstreicht den praktischen Komfort. Auch funktional überzeugt das Haus: Eine Waschküche mit zusätzlicher Dusche, geräumige Keller- und Aufbewahrungsmöglichkeiten sowie eine Einzelgarage und zwei Außenstellplätze bieten Platz für alles, was das Leben mit sich bringt. Die Immobilie ist technisch solide ausgestattet: Die Öl-Zentralheizung von 2001 (Buderus Öl-Spezialheizkessel G115 UELT, Niedertemperaturheizkessel nach DIN EN 303) sorgt zuverlässig für Wärme, unterstützt durch drei Kunststoff-Heizöltanks mit je 2.000 Litern. Das Dach ist bereits gedämmt – ein Plus für Energieeffizienz und Wohnkomfort. Sie erhalten diese herrliche Immobilie inkl. hochwertiger Behr-Möblierung im Wohn- und Schlafzimmer, sowie eine stylische Garderobe, ebenfalls von der Luxusmarke Behr – ein weiterer Schritt hin zu einem sofortigen Wohlfühlzuhause. Dieses Reiheneckhaus vereint Charme, Raum und Lage zu einem stimmigen Gesamtbild. Ein Zuhause für Menschen, die Ruhe schätzen, die Nähe zur Stadt lieben und einen Ort suchen, an dem Erinnerungen entstehen dürfen.
Ausstattung
* Ansprechendes Reiheneckhaus in citynaher, ruhiger Lage * 9,50m Hauslänge / 5,71m Hausbreite * Getrennte Wände/Einzelwände in der Häuserreihe * Einzelgarage * 2 Außenstellplätze * Großzügige 5,5 Zimmer * Tageslichtbad mit Wanne, Waschtisch und WC * Gäste WC im EG * Herrliches Dachstudiozimmer * Zus. Waschbecken im DG * Vintage- EBK / Schreinerarbeit Massiv * Bezaubernde kleine Gartenoase mit Sonnenterrasse * Dach gedämmt * Großer Süd/West-Balkon * Waschküche mit zusätzlicher Dusche * Geräumige Keller-und Aufbewahrungsmöglichkeiten * Öl-Zentralheizung von 2001 : * Buderus ÖL-Spezialheizkessel G115 UELT, Gußheizkessel nach DIN EN 303. Niedertemperatur-Heizkessel nach HeizAn1V. als Unit mit integriertem Buderus Öl-Blaubrenner BE und tiefliegendem Speicher-Wassererwärmer * 3x 2000 Liter Heizöltanks in Kunststoff * Inkl. hochwertiger Behr-Möbel in Wohn-und Schlafzimmer & Garderobe
Lage
Wendlingen am Neckar liegt zentral im Landkreis Esslingen, liegt etwa 20 Kilometer südöstlich von Stuttgart und ist eingebettet in den attraktiven Wirtschaftsraum mittig von Esslingen, Kirchheim und Nürtingen. Die Stadt bietet seinen rund 16 000 Bürgerinnen und Bürgern ein vielfältiges Angebot an Freizeit-und Gestaltungsmöglichkeiten und ist darüber hinaus ein attraktiver Wohn- und Arbeitsort. Der voll ausgebaute Schulstandort, die hervorragende Verkehrslage und das außerordentliche bürgerschaftliche Engagement mit rund 68 Vereinen und vielen weiteren Institutionen und Einrichtungen sind nur einige, der Pluspunkte der Stadt. Die moderne und junge Stadt verfügt über zwei historische Ortskerne, eine attraktive Stadtmitte mit guten Einkaufsmöglichkeiten und einen wunderschönen, durch Freizeitangebote im ländlichen Raum geprägten Weiler. Die Immobilie befindet sich in ruhiger Lage, naher der City in einem gewachsenen und soliden Wohngebiet.
Lade Orte in der Umgebung
Sonstiges
Da wir uns bei allen Angaben auf die Informationen Dritter stützen müssen, können wir keine Gewähr für deren Richtigkeit und Vollständigkeit übernehmen.
Bitte haben Sie Verständnis dafür, dass wir nur Anfragen mit vollständiger Adressangabe und erreichbarer Handynummer bearbeiten können.
Nachdem Ihre Anfrage per E-Mail bei uns eingegangen ist, werden wir uns mit Ihnen zur Abstimmung eines Besichtigungstermins in Verbindung setzen. Bitte nennen Sie deshalb in Ihrer E-Mail eine Tel.-Nr., unter der wir Sie sicher erreichen können.
Widerrufsbelehrung für Verbraucher: Sie haben das Recht, binnen vierzehn Tagen ohne Angabe von Gründen diesen Vertrag zu widerrufen. Die Widerrufsfrist beträgt vierzehn Tage ab dem Tag des Vertragsabschlusses.
Um Ihr Widerrufsrecht auszuüben, müssen Sie uns (Königskinder Immobilien GmbH, Königstraße 62, 70173 Stuttgart, Tel: 0711 4005440, Fax: 0711 40054433, info@koenigskinder.de) mittels einer eindeutigen Erklärung (z. B. ein mit der Post versandter Brief, Telefax oder E-Mail) über Ihren Entschluss, diesen Vertrag zu widerrufen, informieren.
Zur Wahrung der Widerrufsfrist reicht es aus, dass Sie die Mitteilung über die Ausübung des Widerrufsrechts vor Ablauf der Widerrufsfrist absenden.
Folgen des Widerrufs: Wenn Sie diesen Vertrag widerrufen, haben wir Ihnen alle Zahlungen, die wir von Ihnen erhalten haben, unverzüglich und spätestens binnen vierzehn Tagen ab dem Tag zurückzuzahlen, an dem die Mitteilung über Ihren Widerruf dieses Vertrags bei uns eingegangen ist. Für diese Rückzahlung verwenden wir dasselbe Zahlungsmittel, das Sie bei der ursprünglichen Transaktion eingesetzt haben, es sei denn, mit Ihnen wurde ausdrücklich etwas anderes vereinbart; in keinem Fall werden Ihnen wegen dieser Rückzahlung Entgelte berechnet.
Haben Sie verlangt, dass die Dienstleistungen während der Widerrufsfrist beginnen soll, so haben Sie uns einen angemessenen Betrag zu zahlen, der dem Anteil der bis zu dem Zeitpunkt, zu dem Sie uns von der Ausübung des Widerrufsrechts hinsichtlich dieses Vertrags unterrichten, bereits erbrachten Dienstleistungen im Vergleich zum Gesamtumfang der im Vertrag vorgesehenen Dienstleistungen entspricht.