Genießen Sie Ruhe und Komfort: Doppelhaushälfte mit Pool und Meer in Nähe

Eckdaten

 Zimmer
 Wohnfl.
 Grundst.
Kaufpreis
 Zimmer
 Wohnfl.
 Grundst.

Kaufpreis

Basisdaten

Objektnummer
Immopark ID
IP-314826
Objekt ID
9316
Adresse
Ort
51511 Malinska
Fakten und Zahlen
Haustyp
Doppel­haus­hälfte
Vermarktungsart
Kauf
Nutzungsart
wohnen
Verkaufsstatus
offen
Baujahr
2026
Kerndaten
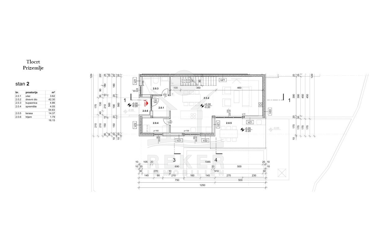
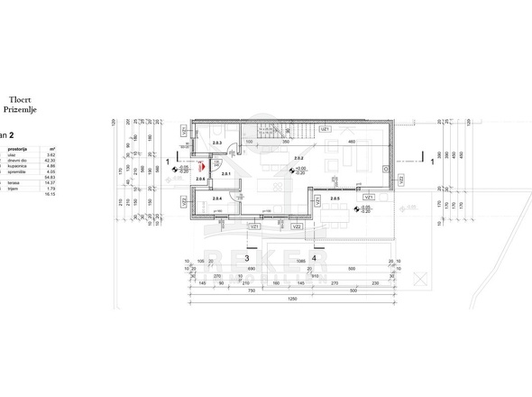
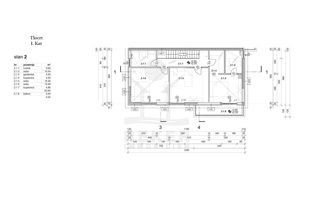
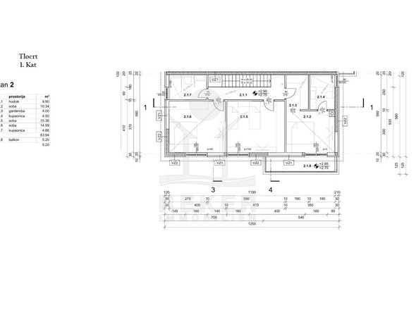
Wohnfläche
140 m2
Zimmer
4.0
Schlafzimmer
3.0
Badezimmer
3.0
Grundstücksfläche
150 m2
Anzahl Stellplätze (gesamt)
2.0
Bauweise / Substanz
Objektzustand
Erstbezug
Etagenanzahl der Immobilie
2

Preisdaten

Preis
Kaufpreis
780.000 €
Courtage
Käufercourtage
3,75 % inkl. MwSt. in Kroatien

Merkmale

Zimmer und Bereiche
Anzahl (Terrassen)
1.0
Schlaf­zimmer
Abstell­raum
Ausstattung und Technik
Klima­anlage
Wellness
Swimming-Pool
Stellplätze
Anzahl Stellplätze (gesamt)
2.0
Sonstiger Stellplatz
Anzahl
2.0

Energie

Energieausweis
Gebäudeart lt. Energieausweis
Wohngebäude

Umgebung

Es wurden keine Daten angegeben.

Objektbeschreibung

Nur 150 m vom Meer entfernt bietet dieses Neubau-Doppelhaus 140 m² Wohnfläche, drei Schlafzimmer und hochwertige Ausstattung. Mit privatem Pool und zwei Stellplätzen genießen Sie Komfort und Sicherheit. Ein rundum durchdachtes Zuhause.

Ausstattung

https://www.reker-immobilien.de/kroatien/doppelhaushaelfte-malisnka-neubau-pool_9316?utm_source=ausstattung&utm_medium=txt&utm_campaign=9316
~

Lage

In Malinska auf der Insel Krk entsteht ein neues Doppelhaus. Moderne Architektur trifft hier auf eine ausgezeichnete Lage. Nur 150 Meter bis zum Meer, nur wenige Minuten bis zum Strand. Gleichzeitig genießen Sie Ruhe und Privatsphäre. Zwei Stellplätze am Haus machen das Ankommen leicht. Das Grundstück umfasst 150 m². Dazu gehören ein eigener Garten und ein privater Pool. Ein Platz zum Entspannen. Zum Schwimmen oder für gemeinsame Stunden mit Familie und Freunden. Die 14 m² große Terrasse grenzt direkt an den Wohnbereich und bietet Raum für sonnige Nachmittage und laue Abende.
Lade Orte in der Umgebung

Anbieterdaten

Ansprech­partner

Ihre Nachricht an Reker Immobilien

Ihr Ansprechpartner: admin@reker-immobilien.de

Mit (*) gekennzeichnete Felder sind Pflichtangaben.